Kohteen esittely
Miksi Asuntosäätiö?
Me uskomme, että onnellinen koti ja laadukas asuminen kuuluvat kaikille. Emme tavoittele voittoa, vaan käytämme kaikki vastikkeista ja vuokrista saadut tulot toimintamme kehittämiseen. Jo yli 33 000 suomalaista on valinnut Asuntosäätiön tarjoaman kodin. Tiesithän, että myös lemmikit ovat tervetulleita kaikkiin koteihimme!
Rakennuksen tiedot
- Asumismuoto Asokoti
- Keskimääräinen asumisoikeusmaksu / jm² 381,57€
- Hissit Ei
- Talosauna Ei
- Kuivaushuone Kyllä
- Asuntoja 21
- Asuinrakennuksia 1
- Käyttövastike / kk / jm² 12,66€
- Valmistumisvuosi 2001
- Porrashuoneet 2
- Energialuokka D
- Lämmitysmuoto Kauko
- Autopaikat 21
- Laajakaista Elisa
- Antennijärjestelmä Kaapeli
- KaapeliTV Elisa
- Kattomateriaali Tiili
- Runkomateriaali Betoni
- Lemmikit Sallittu
Huoneistot ja pohjakuvat: Pikkulukontie 1, Kerrostalo
Lisää hakemukselle kaikki haluamasi asuntotyypit. Mahdollisuutesi asunnon saamiseksi paranevat, kun voimme tarjota sinulle kaikkia valitsemasi asuntotyypin asuntoja, jotka mahdollisesti vapautuvat myöhemmin tästä kohteesta. Olet automaattisesti näiden asuntotyyppien hakuprosessissa.
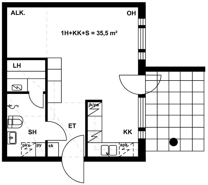
Pikkulukontie 1 A 2
1h+kk+s
, Kerrostalo
35.5 m2
1/3
Pikkulukontie 1 A 2
1h+kk+s
, Kerrostalo
35.5 m2
Kerros 1/3
Pikkulukontie 1 B 11
1h+kk+s
, Kerrostalo
35.5 m2
1/3
Pikkulukontie 1 B 11
1h+kk+s
, Kerrostalo
35.5 m2
Kerros 1/3
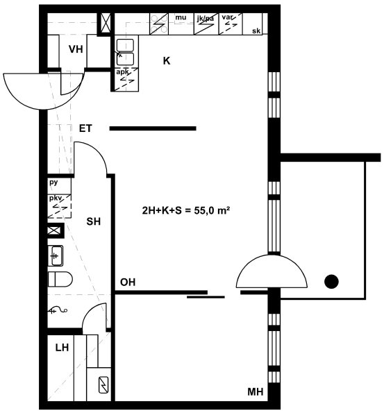
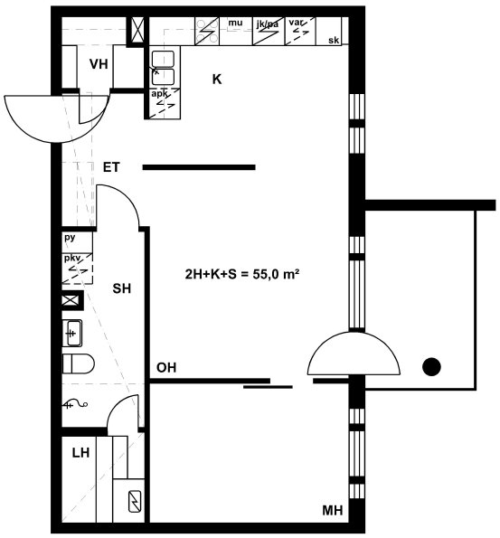
Pikkulukontie 1 A 6
2h+k+s
, Kerrostalo
55 m2
2/3
Pikkulukontie 1 A 6
2h+k+s
, Kerrostalo
55 m2
Kerros 2/3
Pikkulukontie 1 B 19
2h+k+s
, Kerrostalo
55 m2
3/3
Pikkulukontie 1 B 19
2h+k+s
, Kerrostalo
55 m2
Kerros 3/3
Pikkulukontie 1 B 15
2h+k+s
, Kerrostalo
55 m2
2/3
Pikkulukontie 1 B 15
2h+k+s
, Kerrostalo
55 m2
Kerros 2/3
Pikkulukontie 1 B 17
2h+k+s
, Kerrostalo
56.5 m2
2/3
Pikkulukontie 1 B 17
2h+k+s
, Kerrostalo
56.5 m2
Kerros 2/3
Pikkulukontie 1 B 21
2h+k+s
, Kerrostalo
56.5 m2
Kerros 3/3
Pikkulukontie 1 B 13
2h+kk
, Kerrostalo
46 m2
1/3
Pikkulukontie 1 B 13
2h+kk
, Kerrostalo
46 m2
Kerros 1/3
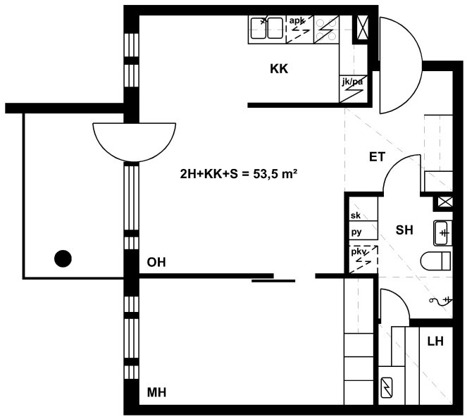
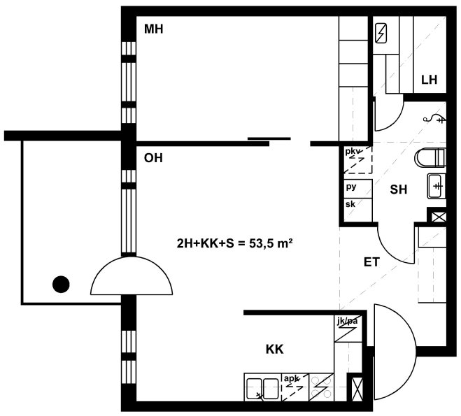
Pikkulukontie 1 B 14
2h+kk+s
, Kerrostalo
53.5 m2
Kerros 2/3
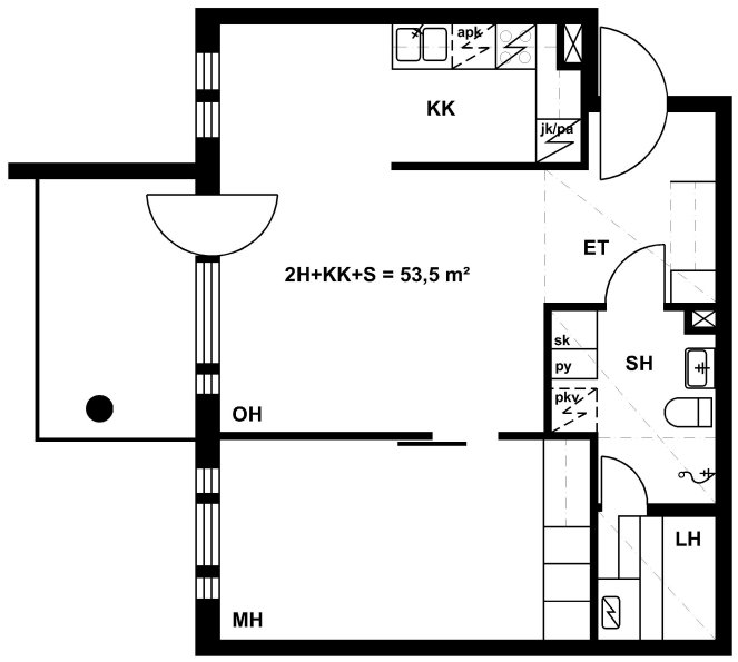
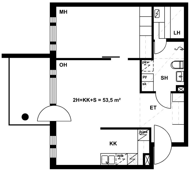
Pikkulukontie 1 A 5
2h+kk+s
, Kerrostalo
53.5 m2
2/3
Pikkulukontie 1 A 5
2h+kk+s
, Kerrostalo
53.5 m2
Kerros 2/3
Pikkulukontie 1 B 18
2h+kk+s
, Kerrostalo
53.5 m2
Kerros 3/3
Pikkulukontie 1 A 9
2h+kk+s
, Kerrostalo
53.5 m2
3/3
Pikkulukontie 1 A 9
2h+kk+s
, Kerrostalo
53.5 m2
Kerros 3/3
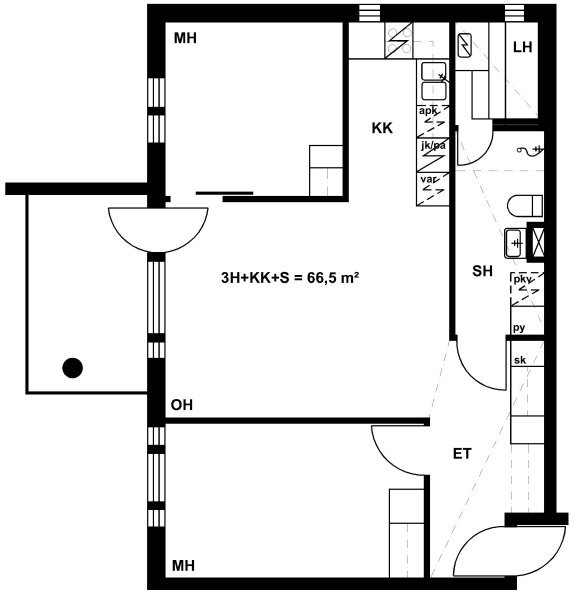
Pikkulukontie 1 A 4
3h+k+s
, Kerrostalo
66.5 m2
2/3
Pikkulukontie 1 A 4
3h+k+s
, Kerrostalo
66.5 m2
Kerros 2/3
Pikkulukontie 1 A 8
3h+k+s
, Kerrostalo
66.5 m2
3/3
Pikkulukontie 1 A 8
3h+k+s
, Kerrostalo
66.5 m2
Kerros 3/3
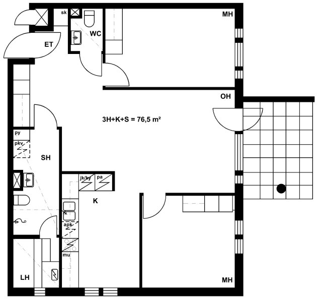
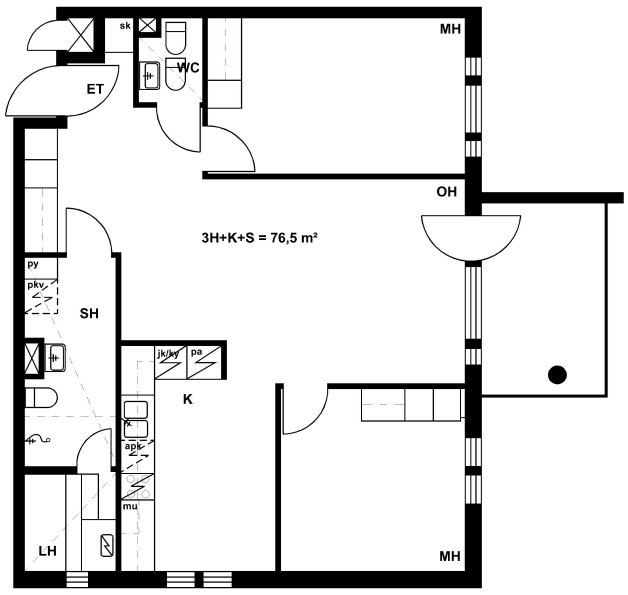
Pikkulukontie 1 B 12
3h+k+s
, Kerrostalo
76.5 m2
1/3
Pikkulukontie 1 B 12
3h+k+s
, Kerrostalo
76.5 m2
Kerros 1/3
Pikkulukontie 1 B 16
3h+k+s
, Kerrostalo
76.5 m2
2/3
Pikkulukontie 1 B 16
3h+k+s
, Kerrostalo
76.5 m2
Kerros 2/3
Pikkulukontie 1 B 20
3h+k+s
, Kerrostalo
76.5 m2
3/3
Pikkulukontie 1 B 20
3h+k+s
, Kerrostalo
76.5 m2
Kerros 3/3
Pikkulukontie 1 A 3
4h+k+s
, Kerrostalo
90.5 m2
2/3
Pikkulukontie 1 A 3
4h+k+s
, Kerrostalo
90.5 m2
Kerros 2/3
Pikkulukontie 1 A 1
4h+k+s
, Kerrostalo
90.5 m2
1/3
Pikkulukontie 1 A 1
4h+k+s
, Kerrostalo
90.5 m2
Kerros 1/3


