Kohteen esittely
Keskustan tuntumassa rivitalokohde, jossa asuinratkaisuja yhdessä ja kahdessa tasossa.
Lähellä joenrantaa ja Imatrankoskea sekä Imatran valtionhotellin viereen jäävää upeaa puistoaluetta. Kävelymatka eri kauppoihin, myös kaikkiin keskustan palveluihin ja kesällä kesäteatteriin!
Miksi Asuntosäätiö?
Me uskomme, että onnellinen koti ja laadukas asuminen kuuluvat kaikille. Emme tavoittele voittoa, vaan käytämme kaikki vastikkeista ja vuokrista saadut tulot toimintamme kehittämiseen. Jo yli 33 000 suomalaista on valinnut Asuntosäätiön tarjoaman kodin. Tiesithän, että myös lemmikit ovat tervetulleita kaikkiin koteihimme!
Rakennuksen tiedot
- Asumismuoto Asokoti
- Keskimääräinen asumisoikeusmaksu / jm² 343,21€
- Hissit Ei
- Talosauna Ei
- Asuntoja 22
- Asuinrakennuksia 4
- Käyttövastike / kk / jm² 10,06€
- Valmistumisvuosi 2002
- Energialuokka D, C
- Lämmitysmuoto Kauko
- Autopaikat 23
- Laajakaista Elisa
- Antennijärjestelmä Kaapeli
- KaapeliTV Elisa
- Kattomateriaali Pelti
- Runkomateriaali Puu
- Lemmikit Sallittu
Huoneistot ja pohjakuvat: Esterinkatu 39, Rivitalo, Piharakennus
Lisää hakemukselle kaikki haluamasi asuntotyypit. Mahdollisuutesi asunnon saamiseksi paranevat, kun voimme tarjota sinulle kaikkia valitsemasi asuntotyypin asuntoja, jotka mahdollisesti vapautuvat myöhemmin tästä kohteesta. Olet automaattisesti näiden asuntotyyppien hakuprosessissa.
Esterinkatu 39 A 1
1h+tk+s
, Rivitalo
43.5 m2
/1
Esterinkatu 39 A 1
1h+tk+s
, Rivitalo
43.5 m2
Kerros /1
Esterinkatu 39 B 10
1h+tk+s
, Rivitalo
43.5 m2
/1
Esterinkatu 39 B 10
1h+tk+s
, Rivitalo
43.5 m2
Kerros /1
Esterinkatu 39 B 5
1h+tk+s
, Rivitalo
43.5 m2
/1
Esterinkatu 39 B 5
1h+tk+s
, Rivitalo
43.5 m2
Kerros /1
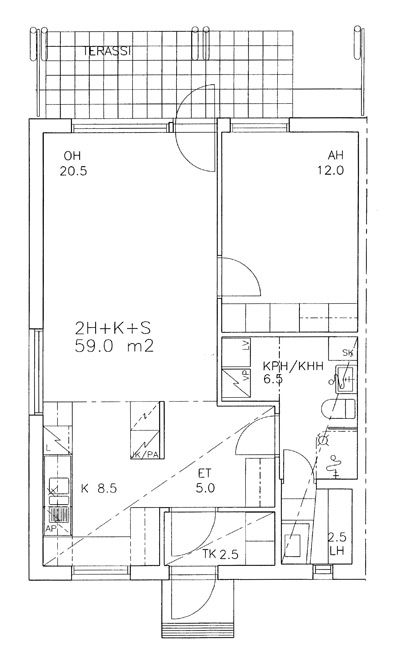
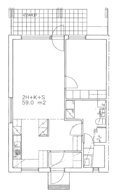
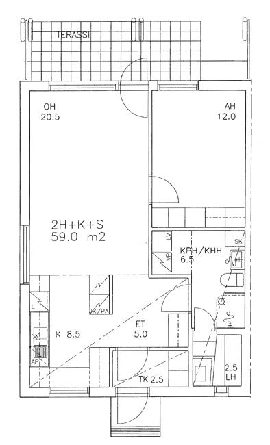
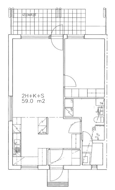
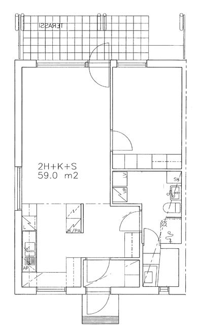
Esterinkatu 39 C 11
2h+k+s
, Rivitalo
59 m2
/1
Esterinkatu 39 C 11
2h+k+s
, Rivitalo
59 m2
Kerros /1
Esterinkatu 39 C 14
2h+k+s
, Rivitalo
59 m2
/1
Esterinkatu 39 C 14
2h+k+s
, Rivitalo
59 m2
Kerros /1
Esterinkatu 39 C 16
2h+k+s
, Rivitalo
59 m2
/1
Esterinkatu 39 C 16
2h+k+s
, Rivitalo
59 m2
Kerros /1
Esterinkatu 39 C 13
2h+k+s
, Rivitalo
59 m2
/1
Esterinkatu 39 C 13
2h+k+s
, Rivitalo
59 m2
Kerros /1
Esterinkatu 39 C 15
2h+k+s
, Rivitalo
59 m2
/1
Esterinkatu 39 C 15
2h+k+s
, Rivitalo
59 m2
Kerros /1
Esterinkatu 39 C 12
2h+k+s
, Rivitalo
59 m2
/1
Esterinkatu 39 C 12
2h+k+s
, Rivitalo
59 m2
Kerros /1
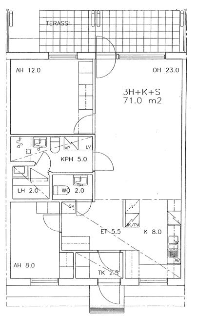
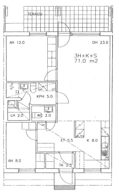
Esterinkatu 39 A 3
3h+k+s
, Rivitalo
71 m2
Kerros /1
Esterinkatu 39 B 6
3h+k+s
, Rivitalo
71 m2
/1
Esterinkatu 39 B 6
3h+k+s
, Rivitalo
71 m2
Kerros /1
Esterinkatu 39 B 9
3h+k+s
, Rivitalo
71 m2
/1
Esterinkatu 39 B 9
3h+k+s
, Rivitalo
71 m2
Kerros /1
Esterinkatu 39 B 7
3h+k+s
, Rivitalo
71 m2
/1
Esterinkatu 39 B 7
3h+k+s
, Rivitalo
71 m2
Kerros /1
Esterinkatu 39 B 8
3h+k+s
, Rivitalo
71 m2
/1
Esterinkatu 39 B 8
3h+k+s
, Rivitalo
71 m2
Kerros /1
Esterinkatu 39 A 4
3h+k+s
, Rivitalo
71 m2
1/1
Esterinkatu 39 A 4
3h+k+s
, Rivitalo
71 m2
Kerros 1/1
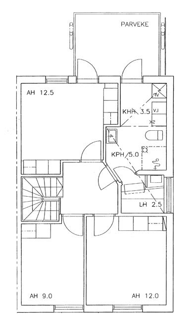
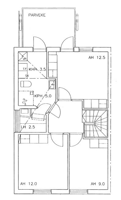
Esterinkatu 39 D 20
4h+k+s
, Rivitalo
91.5 m2
/2
Esterinkatu 39 D 20
4h+k+s
, Rivitalo
91.5 m2
Kerros /2
Esterinkatu 39 D 19
4h+k+s
, Rivitalo
91.5 m2
2/2
Esterinkatu 39 D 19
4h+k+s
, Rivitalo
91.5 m2
Kerros 2/2
Esterinkatu 39 D 18
4h+k+s
, Rivitalo
91.5 m2
/2
Esterinkatu 39 D 18
4h+k+s
, Rivitalo
91.5 m2
Kerros /2
Esterinkatu 39 D 21
4h+k+s
, Rivitalo
91.5 m2
/2
Esterinkatu 39 D 21
4h+k+s
, Rivitalo
91.5 m2
Kerros /2
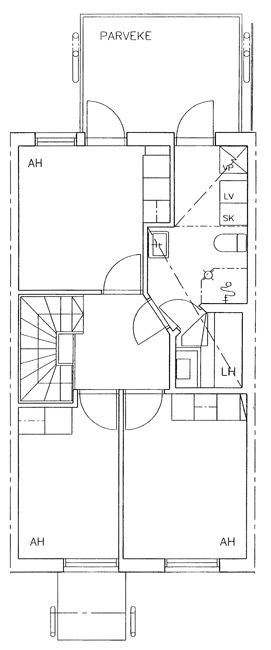
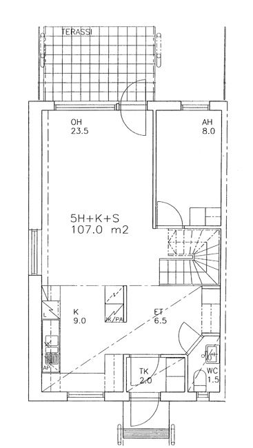
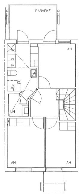
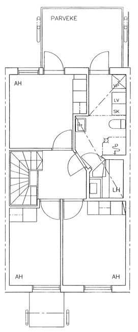
Esterinkatu 39 D 17
5h+k+s
, Rivitalo
107 m2
/2
Esterinkatu 39 D 17
5h+k+s
, Rivitalo
107 m2
Kerros /2
Esterinkatu 39 D 22
5h+k+s
, Rivitalo
107 m2
/2
Esterinkatu 39 D 22
5h+k+s
, Rivitalo
107 m2
Kerros /2
