Kohteen esittely
Valssikuja 1 koostuu kahdesta rakennuksesta: pienkerros-/luhtitalosta ja hissillisestä kerrostalosta. Asunnot koostuvat tilavista yksiöistä ja kaksioista 3- 4 huoneen ja keittiön asuntoihin saakka. Kaikissa asunnoissa on oma sauna ja parvekehuone, joka sopii ympärivuotiseen käyttöön esimerkiksi viherhuoneeksi tai ruokailutilaksi. Parvekehuoneet ovat lämmintä tilaa, joissa on patteri, lattiakaivo ja umpi-ikkunat, jotka saa avattua. Hissi on vain A-rapussa.
Jyväsjärvi rantaraitteineen muutaman sadan metrin päässä. Läheltä löytyy koulu, perhepuisto, useampi ruokakauppa, liikuntapaikkoja ja koirapuisto.
Miksi Asuntosäätiö?
Me uskomme, että onnellinen koti ja laadukas asuminen kuuluvat kaikille. Emme tavoittele voittoa, vaan käytämme kaikki vastikkeista ja vuokrista saadut tulot toimintamme kehittämiseen. Jo yli 33 000 suomalaista on valinnut Asuntosäätiön tarjoaman kodin. Tiesithän, että myös lemmikit ovat tervetulleita kaikkiin koteihimme!
Rakennuksen tiedot
- Asumismuoto Asokoti
- Keskimääräinen asumisoikeusmaksu / jm² 354,39€
- Hissit 1
- Talosauna Ei
- Asuntoja 29
- Asuinrakennuksia 2
- Käyttövastike / kk / jm² 11,78€
- Valmistumisvuosi 2003
- Porrashuoneet 2
- Energialuokka E, D
- Lämmitysmuoto Kauko
- Autopaikat 29
- Laajakaista Elisa
- Antennijärjestelmä Kaapeli
- KaapeliTV Elisa
- Kattomateriaali Pelti
- Runkomateriaali Betoni
- Lemmikit Sallittu
Huoneistot ja pohjakuvat: Valssikuja 1, Piharakennus, Pienkerrostalo, Kerrostalo
Lisää hakemukselle kaikki haluamasi asuntotyypit. Mahdollisuutesi asunnon saamiseksi paranevat, kun voimme tarjota sinulle kaikkia valitsemasi asuntotyypin asuntoja, jotka mahdollisesti vapautuvat myöhemmin tästä kohteesta. Olet automaattisesti näiden asuntotyyppien hakuprosessissa.
Valssikuja 1 A 2
1h+tk+s+parv.h
, Kerrostalo
48 m2
1/4
Valssikuja 1 A 2
1h+tk+s+parv.h
, Kerrostalo
48 m2
Kerros 1/4
Valssikuja 1 A 5
1h+tk+s+parv.h
, Kerrostalo
48 m2
2/4
Valssikuja 1 A 5
1h+tk+s+parv.h
, Kerrostalo
48 m2
Kerros 2/4
Valssikuja 1 A 15
1h+tk+s+parv.h
, Kerrostalo
48 m2
4/4
Valssikuja 1 A 15
1h+tk+s+parv.h
, Kerrostalo
48 m2
Kerros 4/4
Valssikuja 1 A 10
1h+tk+s+parv.h
, Kerrostalo
48 m2
3/4
Valssikuja 1 A 10
1h+tk+s+parv.h
, Kerrostalo
48 m2
Kerros 3/4
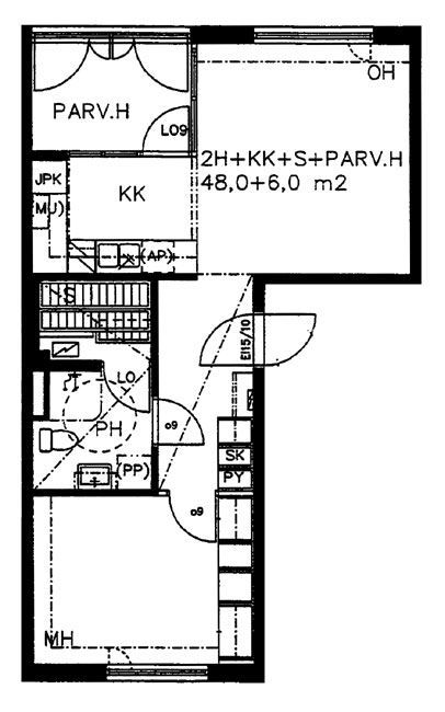
Valssikuja 1 A 9
2h+k+s+parv.h
, Kerrostalo
55.5 m2
Kerros 3/4
Valssikuja 1 B 22
2h+k+s+parv.h
, Pienkerrostalo
62.5 m2
2/2
Valssikuja 1 B 22
2h+k+s+parv.h
, Pienkerrostalo
62.5 m2
Kerros 2/2
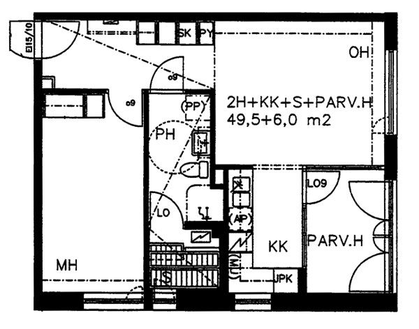
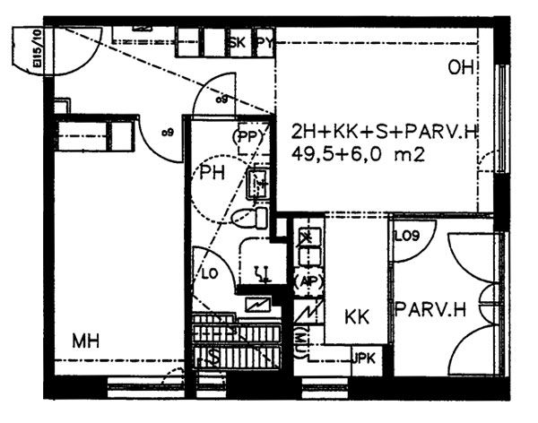
Valssikuja 1 A 8
2h+kk+s+parv.h
, Kerrostalo
49.5 m2
2/4
Valssikuja 1 A 8
2h+kk+s+parv.h
, Kerrostalo
49.5 m2
Kerros 2/4
Valssikuja 1 A 13
2h+kk+s+parv.h
, Kerrostalo
49.5 m2
3/4
Valssikuja 1 A 13
2h+kk+s+parv.h
, Kerrostalo
49.5 m2
Kerros 3/4
Valssikuja 1 A 18
2h+kk+s+parv.h
, Kerrostalo
49.5 m2
Kerros 4/4
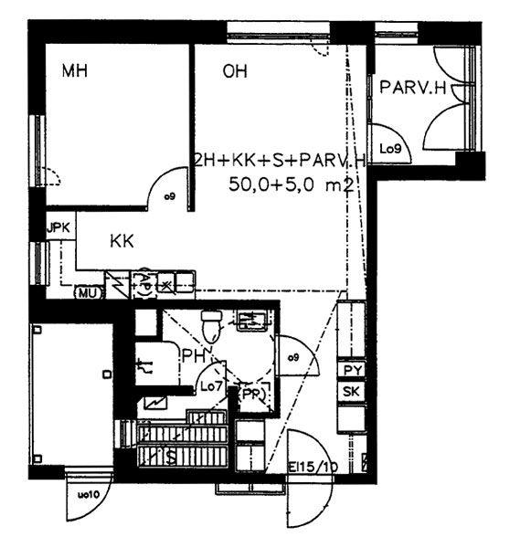
Valssikuja 1 C 27
2h+kk+s+parv.h
, Pienkerrostalo
50 m2
2/2
Valssikuja 1 C 27
2h+kk+s+parv.h
, Pienkerrostalo
50 m2
Kerros 2/2
Valssikuja 1 C 25
2h+kk+s+parv.h
, Pienkerrostalo
50 m2
1/2
Valssikuja 1 C 25
2h+kk+s+parv.h
, Pienkerrostalo
50 m2
Kerros 1/2
Valssikuja 1 C 26
2h+kk+s+parv.h
, Pienkerrostalo
50 m2
1/2
Valssikuja 1 C 26
2h+kk+s+parv.h
, Pienkerrostalo
50 m2
Kerros 1/2
Valssikuja 1 C 28
2h+kk+s+parv.h
, Pienkerrostalo
50 m2
2/2
Valssikuja 1 C 28
2h+kk+s+parv.h
, Pienkerrostalo
50 m2
Kerros 2/2
Valssikuja 1 B 19
2h+kk+s+parv.h
, Pienkerrostalo
54 m2
1/2
Valssikuja 1 B 19
2h+kk+s+parv.h
, Pienkerrostalo
54 m2
Kerros 1/2
Valssikuja 1 A 12
2h+kk+s+parv.h
, Kerrostalo
55 m2
3/4
Valssikuja 1 A 12
2h+kk+s+parv.h
, Kerrostalo
55 m2
Kerros 3/4
Valssikuja 1 A 17
2h+kk+s+parv.h
, Kerrostalo
55 m2
4/4
Valssikuja 1 A 17
2h+kk+s+parv.h
, Kerrostalo
55 m2
Kerros 4/4
Valssikuja 1 B 23
2h+kk+s+parv.h
, Pienkerrostalo
55.5 m2
2/2
Valssikuja 1 B 23
2h+kk+s+parv.h
, Pienkerrostalo
55.5 m2
Kerros 2/2
Valssikuja 1 B 21
2h+kk+s+parv.h
, Pienkerrostalo
55.5 m2
1/2
Valssikuja 1 B 21
2h+kk+s+parv.h
, Pienkerrostalo
55.5 m2
Kerros 1/2
Valssikuja 1 B 20
2h+kk+s+parv.h
, Pienkerrostalo
55.5 m2
1/2
Valssikuja 1 B 20
2h+kk+s+parv.h
, Pienkerrostalo
55.5 m2
Kerros 1/2
Valssikuja 1 B 24
2h+kk+s+parv.h
, Pienkerrostalo
55.5 m2
2/2
Valssikuja 1 B 24
2h+kk+s+parv.h
, Pienkerrostalo
55.5 m2
Kerros 2/2
Valssikuja 1 A 1
2h+kk+s+parv.h
, Kerrostalo
55.5 m2
1/4
Valssikuja 1 A 1
2h+kk+s+parv.h
, Kerrostalo
55.5 m2
Kerros 1/4
Valssikuja 1 A 14
2h+kk+s+parv.h
, Kerrostalo
55.5 m2
4/4
Valssikuja 1 A 14
2h+kk+s+parv.h
, Kerrostalo
55.5 m2
Kerros 4/4
Valssikuja 1 A 4
2h+kk+s+parv.h
, Kerrostalo
55.5 m2
2/4
Valssikuja 1 A 4
2h+kk+s+parv.h
, Kerrostalo
55.5 m2
Kerros 2/4
Valssikuja 1 A 11
3h+k+s+parv.h
, Kerrostalo
79.5 m2
3/4
Valssikuja 1 A 11
3h+k+s+parv.h
, Kerrostalo
79.5 m2
Kerros 3/4
Valssikuja 1 A 16
3h+k+s+parv.h
, Kerrostalo
79.5 m2
4/4
Valssikuja 1 A 16
3h+k+s+parv.h
, Kerrostalo
79.5 m2
Kerros 4/4
Valssikuja 1 A 3
3h+k+s+parv.h
, Kerrostalo
79.5 m2
1/4
Valssikuja 1 A 3
3h+k+s+parv.h
, Kerrostalo
79.5 m2
Kerros 1/4
Valssikuja 1 A 6
3h+k+s+parv.h
, Kerrostalo
79.5 m2
2/4
Valssikuja 1 A 6
3h+k+s+parv.h
, Kerrostalo
79.5 m2
Kerros 2/4
Valssikuja 1 C 29
4h+k+s+parv.h
, Pienkerrostalo
96.5 m2
1-2/2
Valssikuja 1 C 29
4h+k+s+parv.h
, Pienkerrostalo
96.5 m2
Kerros 1-2/2


