Kohteen esittely
Rivitalokohde pientaloalueella Keravan Ahjossa. Osa asunnoista on kahdessa kerroksessa ja osa yhdessä tasossa. Lapsiystävällinen pihapiiri. Asuntojen kylpyhuoneet on remontoitu 2018-2019. Tämä talo lämpiää ekologisesti maalämmöllä ja aurinkosähköllä. Vehreät lähimaastot sopivat erilaiseen ulkoiluun. Lähellä mm. Keinukallion urheilukeskus. Kohteessa on omatoimiviherhoito.
Kohteeseen on haettu rahoitus peruskorjausta varten ja hankkeen aloitus ajankohta tarkentuu kun suunnitteluvaihe etenee. Hanke ei tule kuitenkaan alkamaan ennen kevättä 2026. Lisätietoja sivuillamme: www.asuntosaatio.fi/asukkaalle/tietoa-asokoti-asukkaalle/asokotien-peruskorjaus/
Miksi Asuntosäätiö?
Me uskomme, että onnellinen koti ja laadukas asuminen kuuluvat kaikille. Emme tavoittele voittoa, vaan käytämme kaikki vastikkeista ja vuokrista saadut tulot toimintamme kehittämiseen. Jo yli 33 000 suomalaista on valinnut Asuntosäätiön tarjoaman kodin. Tiesithän, että myös lemmikit ovat tervetulleita kaikkiin koteihimme!
Rakennuksen tiedot
- Asumismuoto Asokoti
- Keskimääräinen asumisoikeusmaksu / jm² 225,4€
- Hissit Ei
- Talosauna Ei
- Asuntoja 18
- Asuinrakennuksia 5
- Käyttövastike / kk / jm² 12,68€
- Valmistumisvuosi 1992
- Energialuokka C
- Lämmitysmuoto Maalämpö + aurinkosähkö
- Autopaikat 24
- Laajakaista Elisa
- Antennijärjestelmä Kaapeli
- KaapeliTV Elisa
- Kattomateriaali Tiili
- Runkomateriaali Puu
- Lemmikit Sallittu
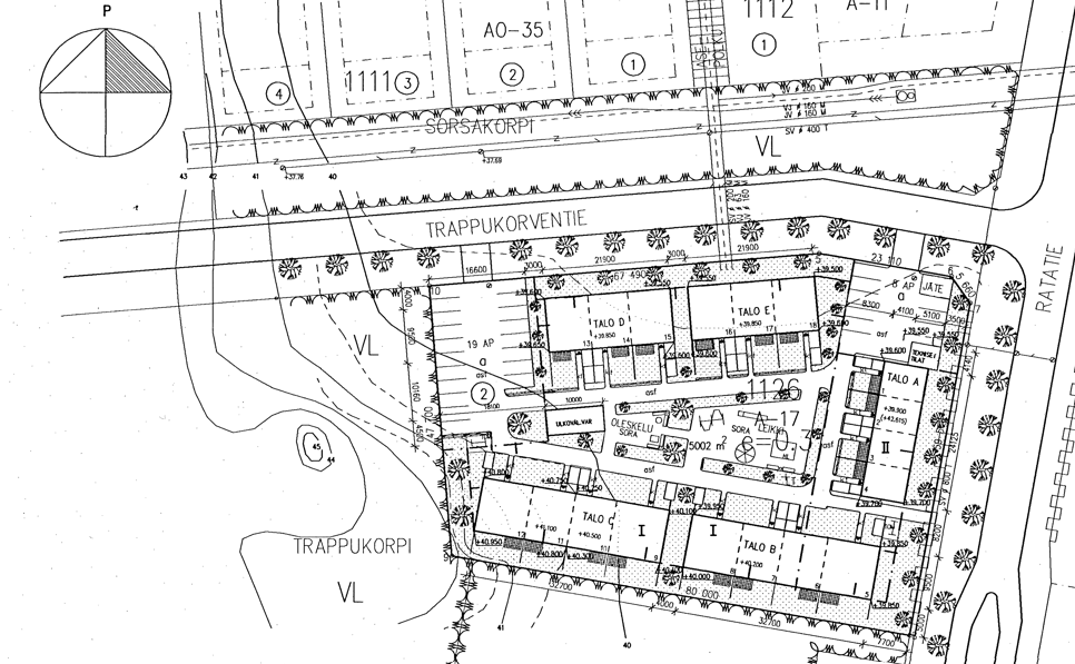
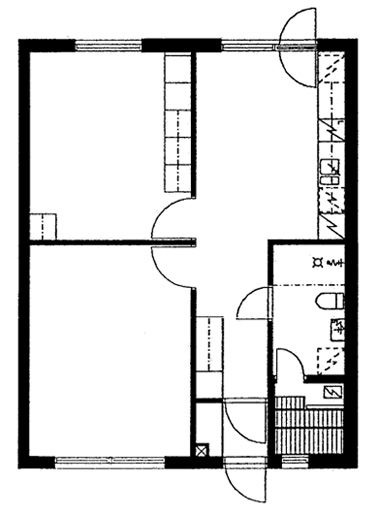
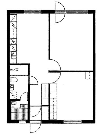
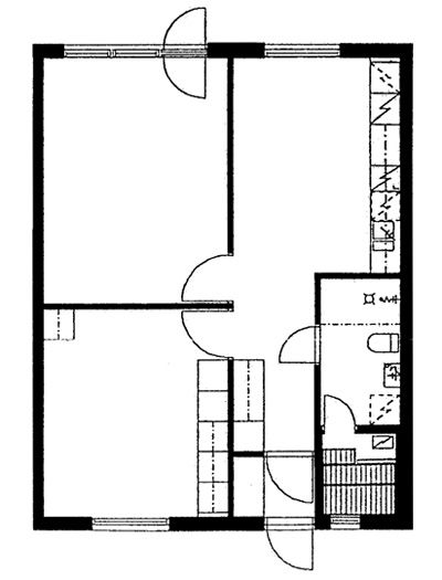
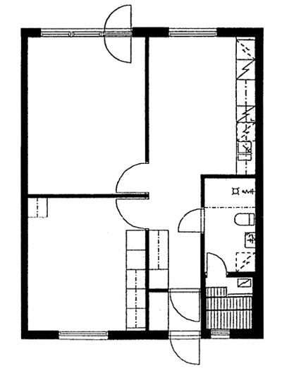
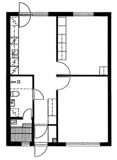
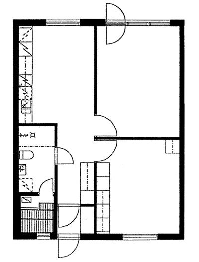
Huoneistot ja pohjakuvat: Trappukorventie 2, Rivitalo, Piharakennus
Lisää hakemukselle kaikki haluamasi asuntotyypit. Mahdollisuutesi asunnon saamiseksi paranevat, kun voimme tarjota sinulle kaikkia valitsemasi asuntotyypin asuntoja, jotka mahdollisesti vapautuvat myöhemmin tästä kohteesta. Olet automaattisesti näiden asuntotyyppien hakuprosessissa.
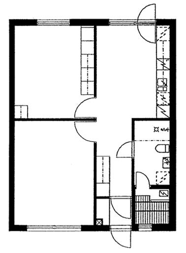
Trappukorventie 2 B 7
2h+k+s
, Rivitalo
63 m2
1/1
Trappukorventie 2 B 7
2h+k+s
, Rivitalo
63 m2
Kerros 1/1
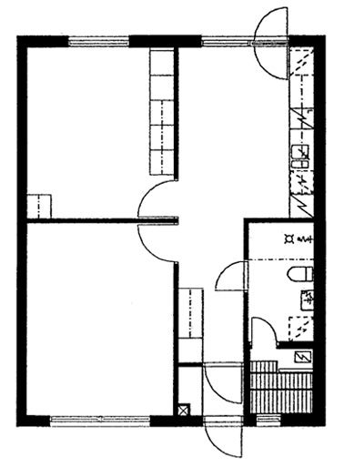
Trappukorventie 2 D 14
2h+k+s
, Rivitalo
63 m2
1/1
Trappukorventie 2 D 14
2h+k+s
, Rivitalo
63 m2
Kerros 1/1
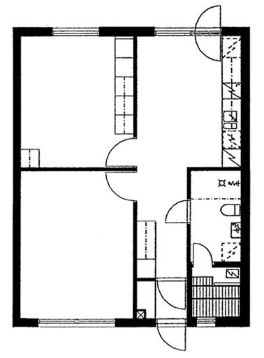
Trappukorventie 2 B 6
2h+k+s
, Rivitalo
63 m2
1/1
Trappukorventie 2 B 6
2h+k+s
, Rivitalo
63 m2
Kerros 1/1
Trappukorventie 2 C 10
2h+k+s
, Rivitalo
63 m2
1/1
Trappukorventie 2 C 10
2h+k+s
, Rivitalo
63 m2
Kerros 1/1
Trappukorventie 2 C 11
2h+k+s
, Rivitalo
63 m2
1/1
Trappukorventie 2 C 11
2h+k+s
, Rivitalo
63 m2
Kerros 1/1
Trappukorventie 2 D 15
2h+k+s
, Rivitalo
63 m2
1/1
Trappukorventie 2 D 15
2h+k+s
, Rivitalo
63 m2
Kerros 1/1
Trappukorventie 2 D 13
2h+k+s
, Rivitalo
63 m2
1/1
Trappukorventie 2 D 13
2h+k+s
, Rivitalo
63 m2
Kerros 1/1
Trappukorventie 2 E 18
2h+k+s
, Rivitalo
63 m2
1/1
Trappukorventie 2 E 18
2h+k+s
, Rivitalo
63 m2
Kerros 1/1
Trappukorventie 2 E 17
2h+k+s
, Rivitalo
63 m2
1/1
Trappukorventie 2 E 17
2h+k+s
, Rivitalo
63 m2
Kerros 1/1
Trappukorventie 2 E 16
2h+k+s
, Rivitalo
63 m2
1/1
Trappukorventie 2 E 16
2h+k+s
, Rivitalo
63 m2
Kerros 1/1
Trappukorventie 2 A 1
3h+k+s
, Rivitalo
79 m2
1-2/2
Trappukorventie 2 A 1
3h+k+s
, Rivitalo
79 m2
Kerros 1-2/2
Trappukorventie 2 A 4
3h+k+s
, Rivitalo
79 m2
1-2/2
Trappukorventie 2 A 4
3h+k+s
, Rivitalo
79 m2
Kerros 1-2/2
Trappukorventie 2 A 3
3h+k+s
, Rivitalo
79 m2
1-2/2
Trappukorventie 2 A 3
3h+k+s
, Rivitalo
79 m2
Kerros 1-2/2
Trappukorventie 2 A 2
3h+k+s
, Rivitalo
79 m2
1-2/2
Trappukorventie 2 A 2
3h+k+s
, Rivitalo
79 m2
Kerros 1-2/2
Trappukorventie 2 B 5
3h+k+s
, Rivitalo
79 m2
1/1
Trappukorventie 2 B 5
3h+k+s
, Rivitalo
79 m2
Kerros 1/1
Trappukorventie 2 B 8
3h+k+s
, Rivitalo
79 m2
1/1
Trappukorventie 2 B 8
3h+k+s
, Rivitalo
79 m2
Kerros 1/1
Trappukorventie 2 C 12
3h+k+s
, Rivitalo
79 m2
1/1
Trappukorventie 2 C 12
3h+k+s
, Rivitalo
79 m2
Kerros 1/1
Trappukorventie 2 C 9
3h+k+s
, Rivitalo
79 m2
1/1
Trappukorventie 2 C 9
3h+k+s
, Rivitalo
79 m2
Kerros 1/1