Kohteen esittely
Viihtyisä rivitalokohde kalliorinteen kupeessa, jossa asunnot kahdessa tasossa. Koulut ja päiväkoti lähellä. Viherpeukaloille riittää puuhaa, kun pihaa molemmilla puolilla asuntoa ja lisäksi parvekkeet. Huoneistokohtaiset vesimittarit. Vastikkeet sisältävät 10M kiinteistölaajakaistan.
Hyvät kulkuyhteydet keskustaan ja Kolmisopelle.
Miksi Asuntosäätiö?
Me uskomme, että onnellinen koti ja laadukas asuminen kuuluvat kaikille. Emme tavoittele voittoa, vaan käytämme kaikki vastikkeista ja vuokrista saadut tulot toimintamme kehittämiseen. Jo yli 33 000 suomalaista on valinnut Asuntosäätiön tarjoaman kodin. Tiesithän, että myös lemmikit ovat tervetulleita kaikkiin koteihimme!
Rakennuksen tiedot
- Asumismuoto Asokoti
- Keskimääräinen asumisoikeusmaksu / jm² 293,95€
- Hissit Ei
- Talosauna Ei
- Kuivaushuone Kyllä
- Asuntoja 15
- Asuinrakennuksia 3
- Käyttövastike / kk / jm² 11,84€
- Valmistumisvuosi 1999
- Energialuokka D
- Lämmitysmuoto Kauko
- Autopaikat 18
- Laajakaista DNA Welho
- Antennijärjestelmä Kaapeli
- KaapeliTV DNA
- Kattomateriaali Pelti
- Runkomateriaali Puu
- Lemmikit Sallittu
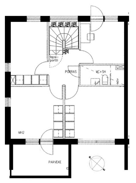
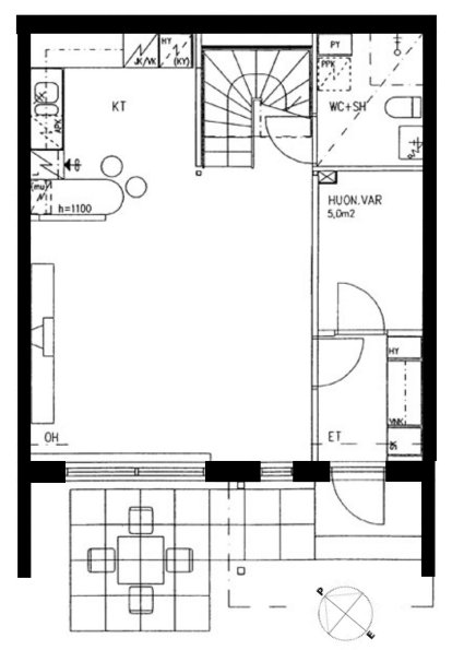
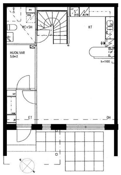
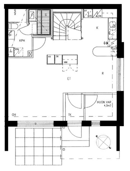
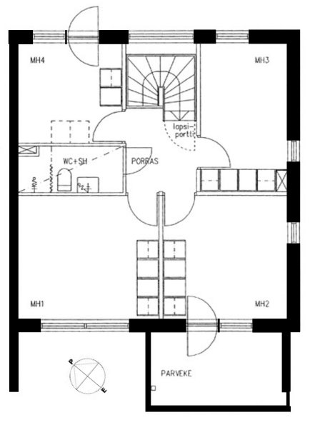
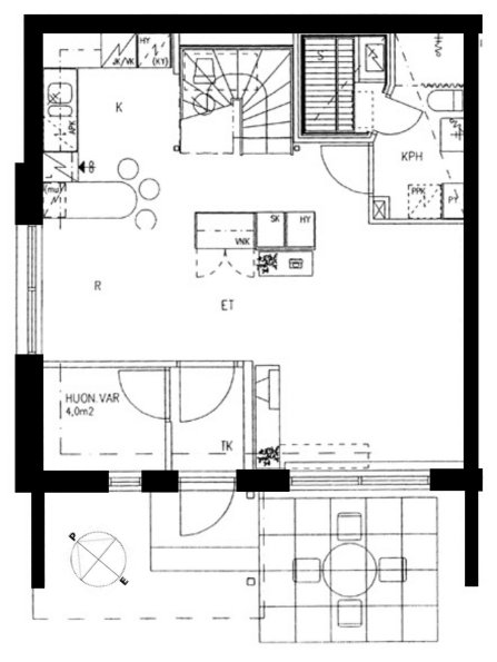
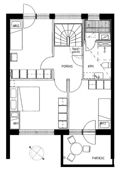
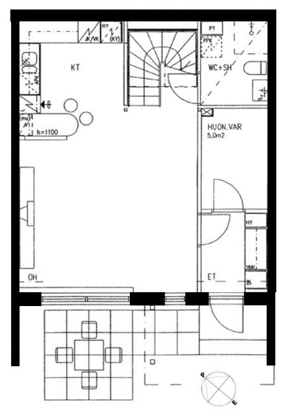
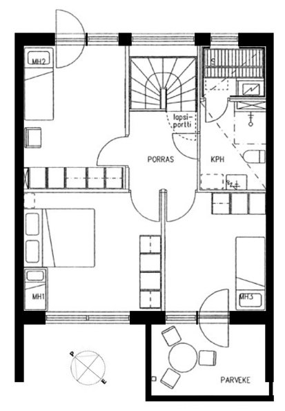
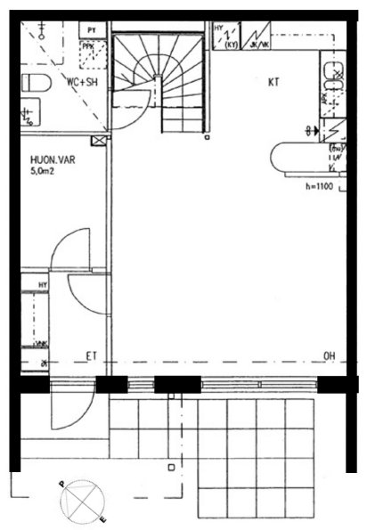
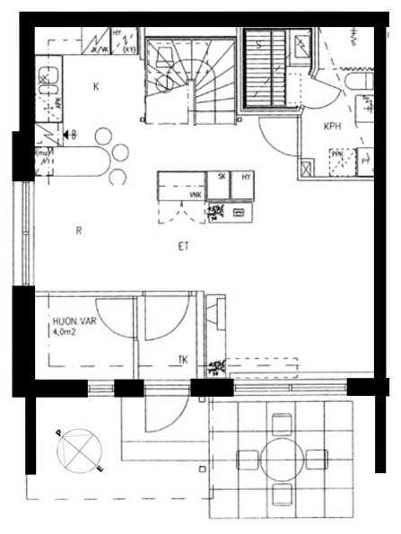
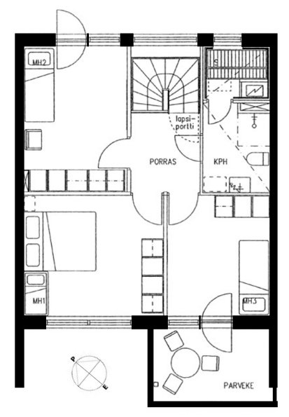
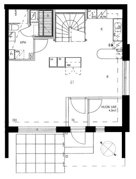
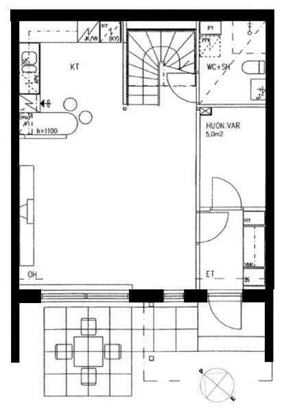
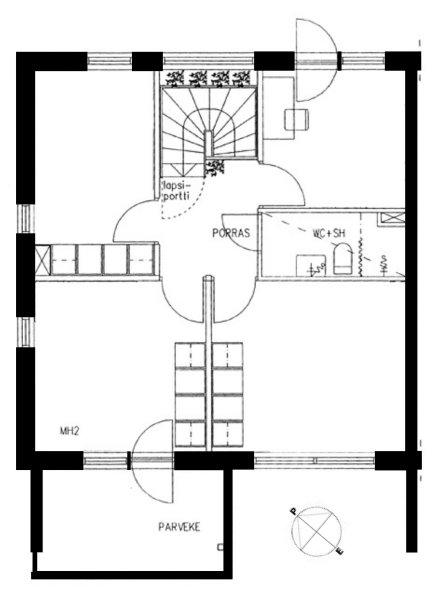
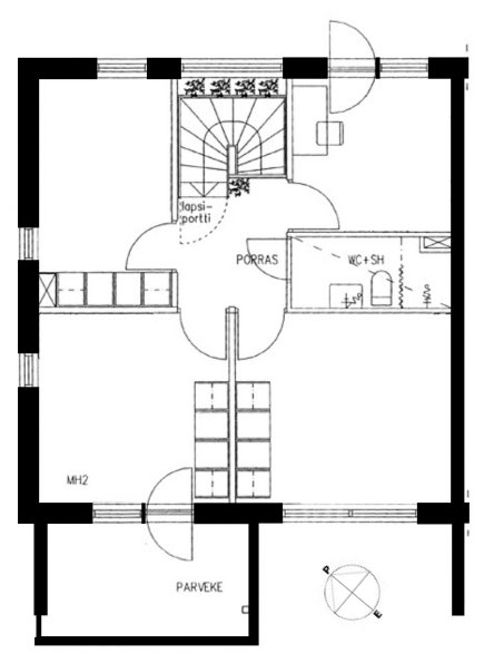
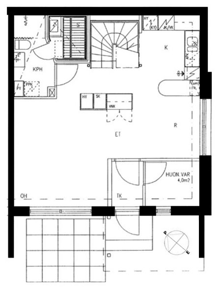
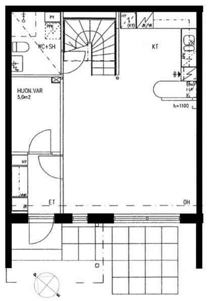
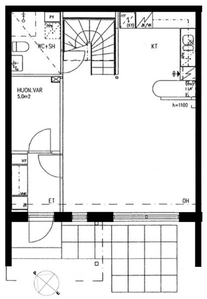
Huoneistot ja pohjakuvat: Kivenkulmantie 3-5, Rivitalo, Piharakennus
Lisää hakemukselle kaikki haluamasi asuntotyypit. Mahdollisuutesi asunnon saamiseksi paranevat, kun voimme tarjota sinulle kaikkia valitsemasi asuntotyypin asuntoja, jotka mahdollisesti vapautuvat myöhemmin tästä kohteesta. Olet automaattisesti näiden asuntotyyppien hakuprosessissa.
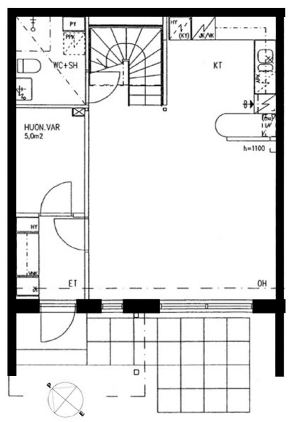
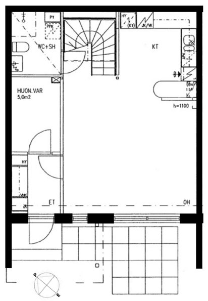
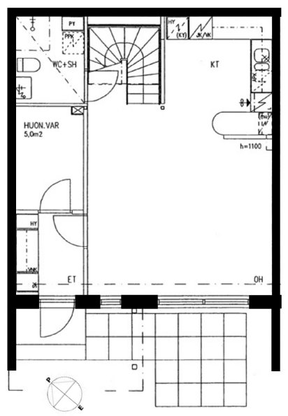
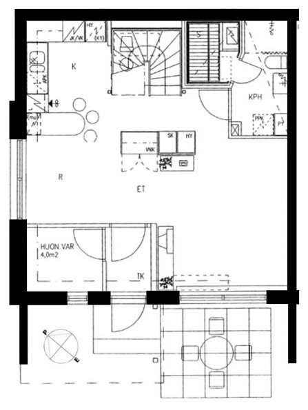
Kivenkulmantie 3-5 C 12
4h+k+s
, Rivitalo
90.5 m2
1-2/2
Kivenkulmantie 3-5 C 12
4h+k+s
, Rivitalo
90.5 m2
Kerros 1-2/2
Kivenkulmantie 3-5 C 13
4h+k+s
, Rivitalo
90.5 m2
1-2/2
Kivenkulmantie 3-5 C 13
4h+k+s
, Rivitalo
90.5 m2
Kerros 1-2/2
Kivenkulmantie 3-5 C 14
4h+k+s
, Rivitalo
90.5 m2
1-2/2
Kivenkulmantie 3-5 C 14
4h+k+s
, Rivitalo
90.5 m2
Kerros 1-2/2
Kivenkulmantie 3-5 B 9
4h+k+s
, Rivitalo
90.5 m2
1-2/2
Kivenkulmantie 3-5 B 9
4h+k+s
, Rivitalo
90.5 m2
Kerros 1-2/2
Kivenkulmantie 3-5 B 8
4h+k+s
, Rivitalo
90.5 m2
1-2/2
Kivenkulmantie 3-5 B 8
4h+k+s
, Rivitalo
90.5 m2
Kerros 1-2/2
Kivenkulmantie 3-5 B 7
4h+k+s
, Rivitalo
90.5 m2
1-2/2
Kivenkulmantie 3-5 B 7
4h+k+s
, Rivitalo
90.5 m2
Kerros 1-2/2
Kivenkulmantie 3-5 A 2
4h+k+s
, Rivitalo
90.5 m2
1-2/2
Kivenkulmantie 3-5 A 2
4h+k+s
, Rivitalo
90.5 m2
Kerros 1-2/2
Kivenkulmantie 3-5 A 4
4h+k+s
, Rivitalo
90.5 m2
1-2/2
Kivenkulmantie 3-5 A 4
4h+k+s
, Rivitalo
90.5 m2
Kerros 1-2/2
Kivenkulmantie 3-5 A 3
4h+k+s
, Rivitalo
90.5 m2
1-2/2
Kivenkulmantie 3-5 A 3
4h+k+s
, Rivitalo
90.5 m2
Kerros 1-2/2
Kivenkulmantie 3-5 C 11
5h+k+s
, Rivitalo
97.5 m2
1-2/2
Kivenkulmantie 3-5 C 11
5h+k+s
, Rivitalo
97.5 m2
Kerros 1-2/2
Kivenkulmantie 3-5 C 15
5h+k+s
, Rivitalo
97.5 m2
1-2/2
Kivenkulmantie 3-5 C 15
5h+k+s
, Rivitalo
97.5 m2
Kerros 1-2/2
Kivenkulmantie 3-5 B 10
5h+k+s
, Rivitalo
97.5 m2
1-2/2
Kivenkulmantie 3-5 B 10
5h+k+s
, Rivitalo
97.5 m2
Kerros 1-2/2
Kivenkulmantie 3-5 B 6
5h+k+s
, Rivitalo
97.5 m2
1-2/2
Kivenkulmantie 3-5 B 6
5h+k+s
, Rivitalo
97.5 m2
Kerros 1-2/2
Kivenkulmantie 3-5 A 1
5h+k+s
, Rivitalo
97.5 m2
1-2/2
Kivenkulmantie 3-5 A 1
5h+k+s
, Rivitalo
97.5 m2
Kerros 1-2/2
Kivenkulmantie 3-5 A 5
5h+k+s
, Rivitalo
97.5 m2
1-2/2
Kivenkulmantie 3-5 A 5
5h+k+s
, Rivitalo
97.5 m2
Kerros 1-2/2