Kohteen esittely
Särkiniemen kaupunginosassa hissillinen kerrostalokohde. Kiinteistössä on asuntokohtaiset varastokopit. Vastikkeet sisältävät 10M kiinteistölaajakaistan.
Särkiniemessä on useita lenkkeilypolkuja ja lähistöllä sijaitseva Huuhanmäen valaistu latupururata on asukkaiden käytettävissä. Alue sijaitsee lähellä Rauhalahden monipuolista hotelli-leirintäaluetta, josta löytyy kylpylä, palloiluhallit. Hyvät kulkuyhteydet keskustaan.
Miksi Asuntosäätiö?
Me uskomme, että onnellinen koti ja laadukas asuminen kuuluvat kaikille. Emme tavoittele voittoa, vaan käytämme kaikki vastikkeista ja vuokrista saadut tulot toimintamme kehittämiseen. Jo yli 33 000 suomalaista on valinnut Asuntosäätiön tarjoaman kodin. Tiesithän, että myös lemmikit ovat tervetulleita kaikkiin koteihimme!
Rakennuksen tiedot
- Asumismuoto Asokoti
- Keskimääräinen asumisoikeusmaksu / jm² 319,26€
- Hissit 1
- Talosauna Ei
- Kuivaushuone Kyllä
- Asuntoja 18
- Asuinrakennuksia 1
- Käyttövastike / kk / jm² 12,03€
- Valmistumisvuosi 1999
- Porrashuoneet 1
- Energialuokka E
- Lämmitysmuoto Kauko
- Autopaikat 18
- Laajakaista DNA Welho
- Antennijärjestelmä Kaapeli
- KaapeliTV DNA
- Kattomateriaali Pelti
- Runkomateriaali Betoni
- Lemmikit Sallittu
Huoneistot ja pohjakuvat: Särkiniementie 7, Kerrostalo, Piharakennus
Lisää hakemukselle kaikki haluamasi asuntotyypit. Mahdollisuutesi asunnon saamiseksi paranevat, kun voimme tarjota sinulle kaikkia valitsemasi asuntotyypin asuntoja, jotka mahdollisesti vapautuvat myöhemmin tästä kohteesta. Olet automaattisesti näiden asuntotyyppien hakuprosessissa.
Särkiniementie 7 A 10
2h+kk+s
, Kerrostalo
52 m2
/4
Särkiniementie 7 A 10
2h+kk+s
, Kerrostalo
52 m2
Kerros /4
Särkiniementie 7 A 17
2h+kk+s
, Kerrostalo
52 m2
/4
Särkiniementie 7 A 17
2h+kk+s
, Kerrostalo
52 m2
Kerros /4
Särkiniementie 7 A 5
2h+kk+s
, Kerrostalo
52 m2
2/4
Särkiniementie 7 A 5
2h+kk+s
, Kerrostalo
52 m2
Kerros 2/4
Särkiniementie 7 A 15
2h+kk+s
, Kerrostalo
52 m2
/4
Särkiniementie 7 A 15
2h+kk+s
, Kerrostalo
52 m2
Kerros /4
Särkiniementie 7 A 7
2h+kk+s
, Kerrostalo
52 m2
/4
Särkiniementie 7 A 7
2h+kk+s
, Kerrostalo
52 m2
Kerros /4
Särkiniementie 7 A 2
2h+kk+s
, Kerrostalo
52 m2
1/4
Särkiniementie 7 A 2
2h+kk+s
, Kerrostalo
52 m2
Kerros 1/4
Särkiniementie 7 A 12
2h+kk+s
, Kerrostalo
52 m2
/4
Särkiniementie 7 A 12
2h+kk+s
, Kerrostalo
52 m2
Kerros /4
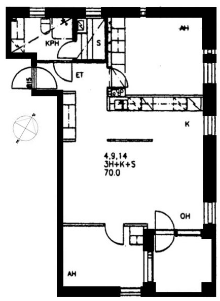
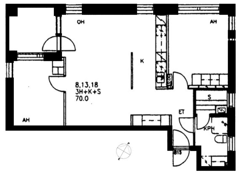
Särkiniementie 7 A 8
3h+k+s
, Kerrostalo
70 m2
/4
Särkiniementie 7 A 8
3h+k+s
, Kerrostalo
70 m2
Kerros /4
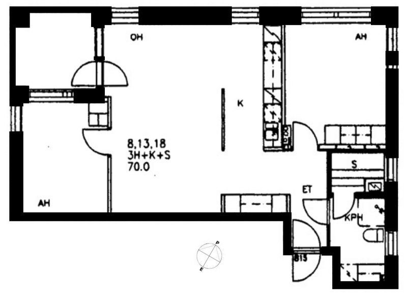
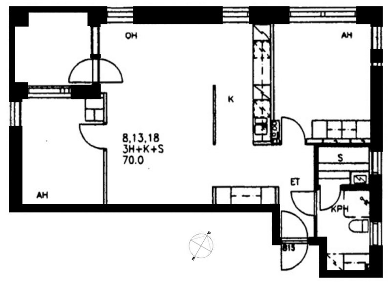
Särkiniementie 7 A 13
3h+k+s
, Kerrostalo
70 m2
/4
Särkiniementie 7 A 13
3h+k+s
, Kerrostalo
70 m2
Kerros /4
Särkiniementie 7 A 14
3h+k+s
, Kerrostalo
70 m2
/4
Särkiniementie 7 A 14
3h+k+s
, Kerrostalo
70 m2
Kerros /4
Särkiniementie 7 A 18
3h+k+s
, Kerrostalo
70 m2
/4
Särkiniementie 7 A 18
3h+k+s
, Kerrostalo
70 m2
Kerros /4
Särkiniementie 7 A 9
3h+k+s
, Kerrostalo
70 m2
/4
Särkiniementie 7 A 9
3h+k+s
, Kerrostalo
70 m2
Kerros /4
Särkiniementie 7 A 4
3h+k+s
, Kerrostalo
70 m2
1/4
Särkiniementie 7 A 4
3h+k+s
, Kerrostalo
70 m2
Kerros 1/4
Särkiniementie 7 A 1
3h+k+s
, Kerrostalo
70 m2
1/4
Särkiniementie 7 A 1
3h+k+s
, Kerrostalo
70 m2
Kerros 1/4
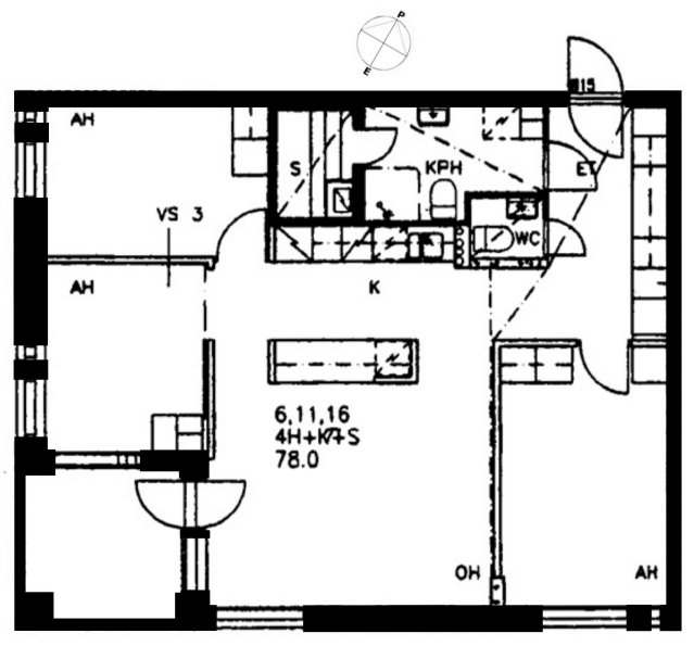
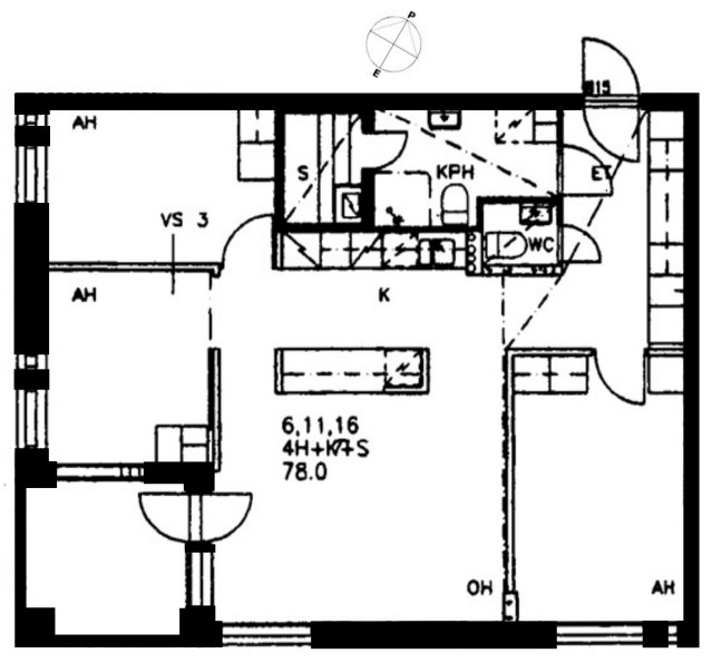
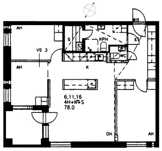
Särkiniementie 7 A 11
4h+k+s
, Kerrostalo
78 m2
/4
Särkiniementie 7 A 11
4h+k+s
, Kerrostalo
78 m2
Kerros /4
Särkiniementie 7 A 6
4h+k+s
, Kerrostalo
78 m2
2/4
Särkiniementie 7 A 6
4h+k+s
, Kerrostalo
78 m2
Kerros 2/4
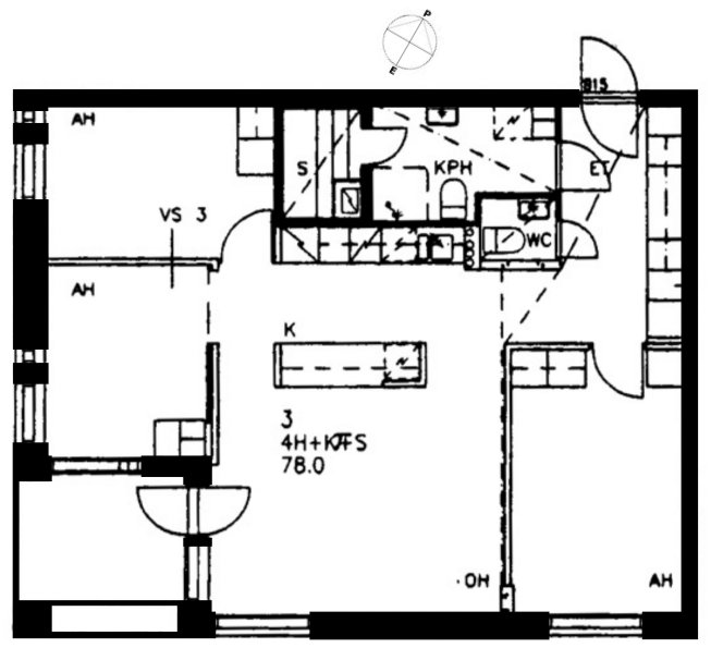
Särkiniementie 7 A 3
4h+k+s
, Kerrostalo
78 m2
1/4
Särkiniementie 7 A 3
4h+k+s
, Kerrostalo
78 m2
Kerros 1/4
Särkiniementie 7 A 16
4h+k+s
, Kerrostalo
78 m2
4/4
Särkiniementie 7 A 16
4h+k+s
, Kerrostalo
78 m2
Kerros 4/4