Kohteen esittely
Viihtyisä kerrostalokohde hyvillä liikenneyhteyksillä. Huoneistoissa on laminaattilattiat, ja kylpyhuoneet on laatoitettu ja varustettu lattialämmityksellä. Keittiössä on jää-pakastinkaappi, astianpesukone, liesi ja liesikupu. Asunnoissa on lämmön talteenotolla varustettu huoneistokohtainen ilmanvaihto ja huoneistoissa on palovaroittimet. Kohteessa on aurinkopaneelit ja hyödyntää kaukolämpöä.
Sijainniltaan Wolter Ramsayn katu sijaitsee ihannepaikalla Länsiharjun koulun läheisyydessä ja vain kilometrin päässä Launeen perhepuistosta. Lähistöllä ovat myös urheilukentät ja Salpausselän ulkoilumaastot. Matka kauppaan kestää auton kanssa vain viisi minuuttia ja Lahden rautatieasema on vain parin kilometrin päässä.
Miksi Asuntosäätiö?
Me uskomme, että onnellinen koti ja laadukas asuminen kuuluvat kaikille. Emme tavoittele voittoa, vaan käytämme kaikki vastikkeista ja vuokrista saadut tulot toimintamme kehittämiseen. Jo yli 33 000 suomalaista on valinnut Asuntosäätiön tarjoaman kodin. Tiesithän, että myös lemmikit ovat tervetulleita kaikkiin koteihimme!
Rakennuksen tiedot
- Asumismuoto Asokoti
- Keskimääräinen asumisoikeusmaksu / jm² 511,04€
- Hissit 1
- Talosauna Ei
- Kuivaushuone Kyllä
- Asuntoja 40
- Asuinrakennuksia 1
- Käyttövastike / kk / jm² 13,02€
- Valmistumisvuosi 2016
- Porrashuoneet 1
- Energialuokka C
- Lämmitysmuoto Kauko + aurinkosähkö
- Autopaikat 30
- Laajakaista DNA Welho
- Antennijärjestelmä Kaapeli
- KaapeliTV DNA
- Kattomateriaali Pelti
- Runkomateriaali Betoni
- Lemmikit Sallittu
Huoneistot ja pohjakuvat: Wolter Ramsayn katu 4, Kerrostalo
Lisää hakemukselle kaikki haluamasi asuntotyypit. Mahdollisuutesi asunnon saamiseksi paranevat, kun voimme tarjota sinulle kaikkia valitsemasi asuntotyypin asuntoja, jotka mahdollisesti vapautuvat myöhemmin tästä kohteesta. Olet automaattisesti näiden asuntotyyppien hakuprosessissa.
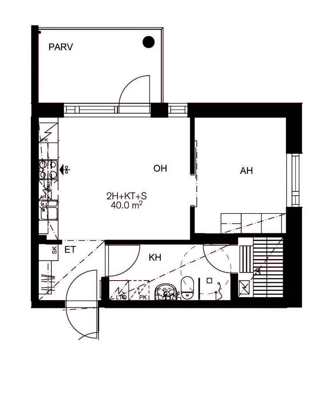
Wolter Ramsayn katu 4 A 21
2h+kt+s
, Kerrostalo
40 m2
3/5
Wolter Ramsayn katu 4 A 21
2h+kt+s
, Kerrostalo
40 m2
Kerros 3/5
Wolter Ramsayn katu 4 A 12
2h+kt+s
, Kerrostalo
40 m2
2/5
Wolter Ramsayn katu 4 A 12
2h+kt+s
, Kerrostalo
40 m2
Kerros 2/5
Wolter Ramsayn katu 4 A 30
2h+kt+s
, Kerrostalo
40 m2
4/5
Wolter Ramsayn katu 4 A 30
2h+kt+s
, Kerrostalo
40 m2
Kerros 4/5
Wolter Ramsayn katu 4 A 39
2h+kt+s
, Kerrostalo
40 m2
5/5
Wolter Ramsayn katu 4 A 39
2h+kt+s
, Kerrostalo
40 m2
Kerros 5/5
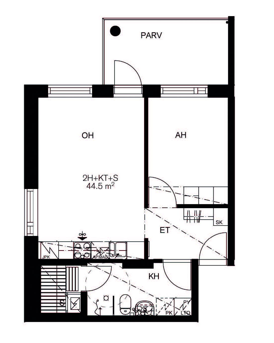
Wolter Ramsayn katu 4 A 33
2h+kt+s
, Kerrostalo
44.5 m2
5/5
Wolter Ramsayn katu 4 A 33
2h+kt+s
, Kerrostalo
44.5 m2
Kerros 5/5
Wolter Ramsayn katu 4 A 6
2h+kt+s
, Kerrostalo
44.5 m2
2/5
Wolter Ramsayn katu 4 A 6
2h+kt+s
, Kerrostalo
44.5 m2
Kerros 2/5
Wolter Ramsayn katu 4 A 24
2h+kt+s
, Kerrostalo
44.5 m2
4/5
Wolter Ramsayn katu 4 A 24
2h+kt+s
, Kerrostalo
44.5 m2
Kerros 4/5
Wolter Ramsayn katu 4 A 13
2h+kt+s
, Kerrostalo
44.5 m2
2/5
Wolter Ramsayn katu 4 A 13
2h+kt+s
, Kerrostalo
44.5 m2
Kerros 2/5
Wolter Ramsayn katu 4 A 15
2h+kt+s
, Kerrostalo
44.5 m2
3/5
Wolter Ramsayn katu 4 A 15
2h+kt+s
, Kerrostalo
44.5 m2
Kerros 3/5
Wolter Ramsayn katu 4 A 31
2h+kt+s
, Kerrostalo
44.5 m2
4/5
Wolter Ramsayn katu 4 A 31
2h+kt+s
, Kerrostalo
44.5 m2
Kerros 4/5
Wolter Ramsayn katu 4 A 40
2h+kt+s
, Kerrostalo
44.5 m2
5/5
Wolter Ramsayn katu 4 A 40
2h+kt+s
, Kerrostalo
44.5 m2
Kerros 5/5
Wolter Ramsayn katu 4 A 22
2h+kt+s
, Kerrostalo
44.5 m2
3/5
Wolter Ramsayn katu 4 A 22
2h+kt+s
, Kerrostalo
44.5 m2
Kerros 3/5
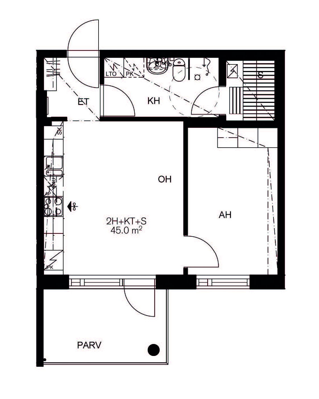
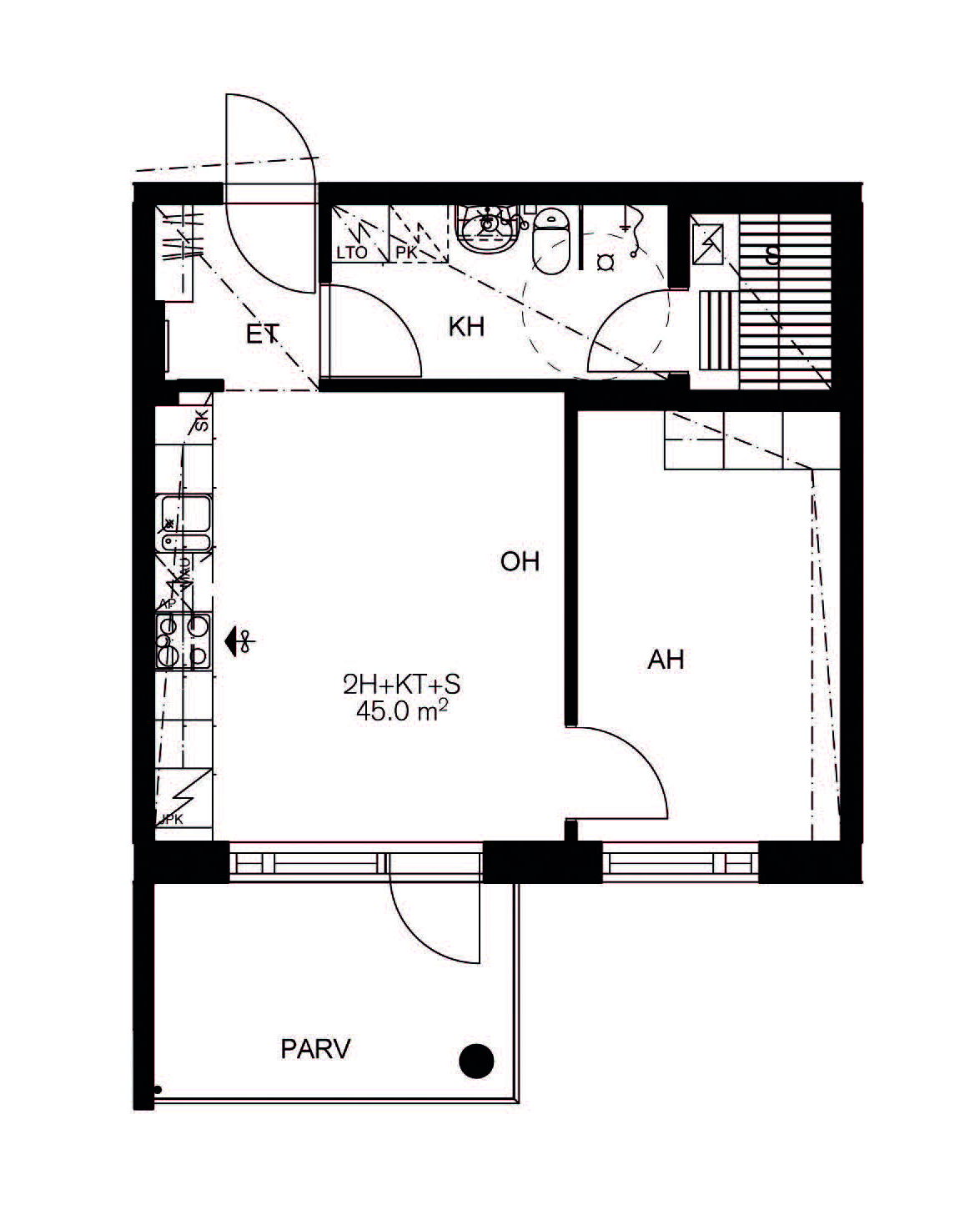
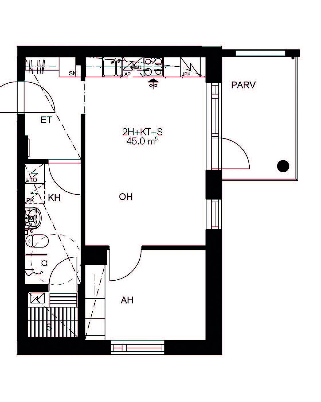
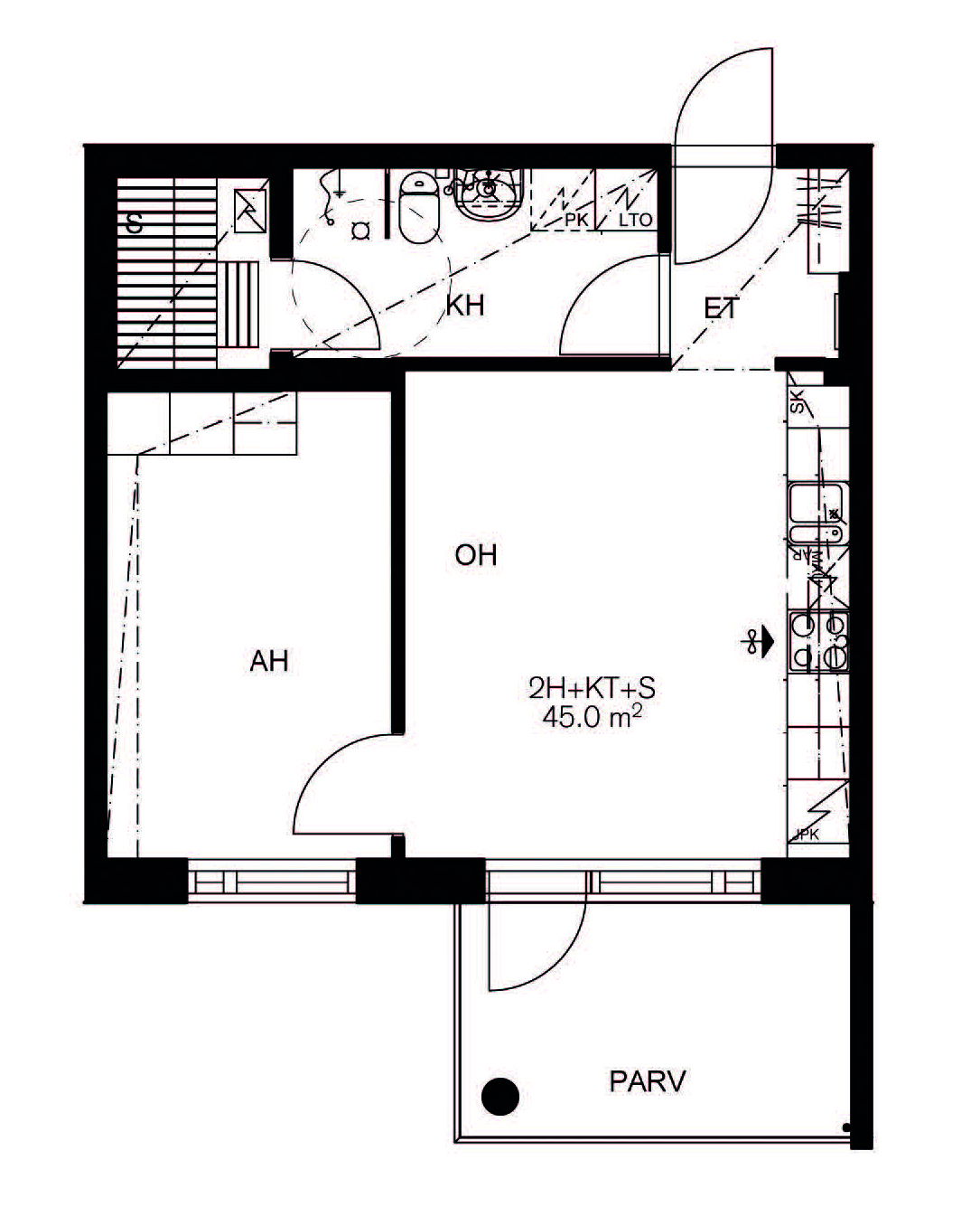
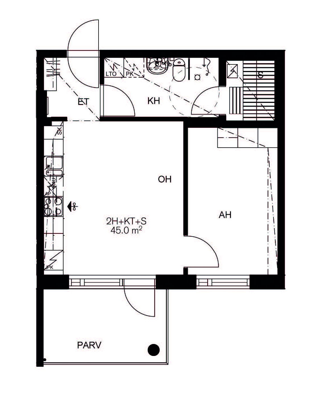
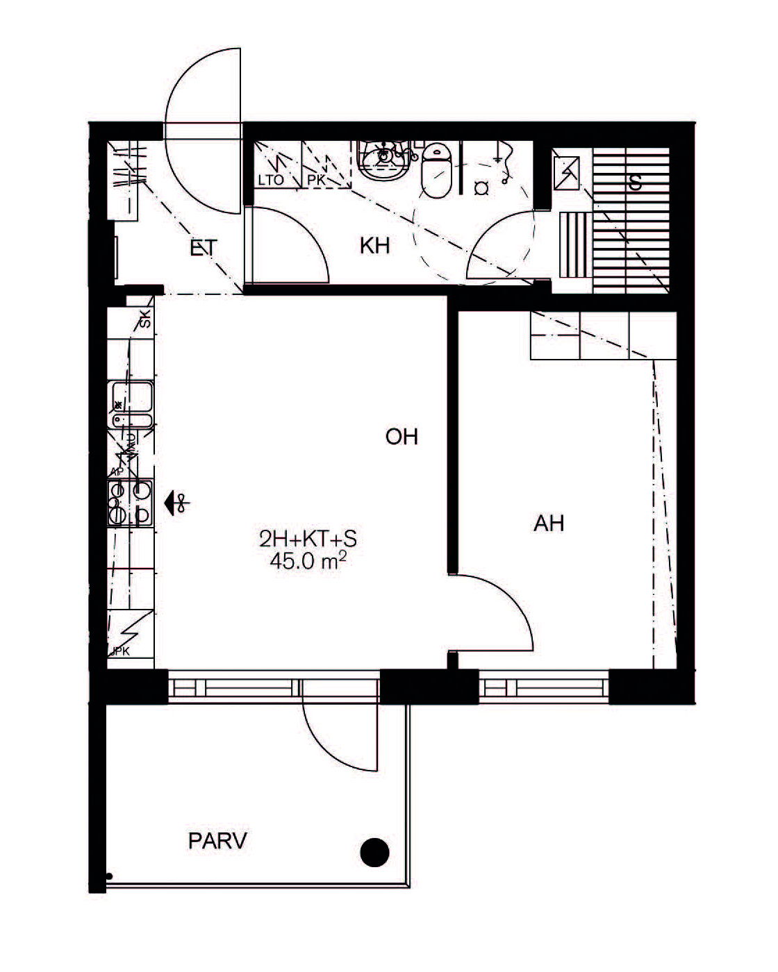
Wolter Ramsayn katu 4 A 3
2h+kt+s
, Kerrostalo
45 m2
1/5
Wolter Ramsayn katu 4 A 3
2h+kt+s
, Kerrostalo
45 m2
Kerros 1/5
Wolter Ramsayn katu 4 A 8
2h+kt+s
, Kerrostalo
45 m2
2/5
Wolter Ramsayn katu 4 A 8
2h+kt+s
, Kerrostalo
45 m2
Kerros 2/5
Wolter Ramsayn katu 4 A 19
2h+kt+s
, Kerrostalo
45 m2
3/5
Wolter Ramsayn katu 4 A 19
2h+kt+s
, Kerrostalo
45 m2
Kerros 3/5
Wolter Ramsayn katu 4 A 29
2h+kt+s
, Kerrostalo
45 m2
4/5
Wolter Ramsayn katu 4 A 29
2h+kt+s
, Kerrostalo
45 m2
Kerros 4/5
Wolter Ramsayn katu 4 A 2
2h+kt+s
, Kerrostalo
45 m2
1/5
Wolter Ramsayn katu 4 A 2
2h+kt+s
, Kerrostalo
45 m2
Kerros 1/5
Wolter Ramsayn katu 4 A 36
2h+kt+s
, Kerrostalo
45 m2
5/5
Wolter Ramsayn katu 4 A 36
2h+kt+s
, Kerrostalo
45 m2
Kerros 5/5
Wolter Ramsayn katu 4 A 26
2h+kt+s
, Kerrostalo
45 m2
4/5
Wolter Ramsayn katu 4 A 26
2h+kt+s
, Kerrostalo
45 m2
Kerros 4/5
Wolter Ramsayn katu 4 A 4
2h+kt+s
, Kerrostalo
45 m2
1/5
Wolter Ramsayn katu 4 A 4
2h+kt+s
, Kerrostalo
45 m2
Kerros 1/5
Wolter Ramsayn katu 4 A 10
2h+kt+s
, Kerrostalo
45 m2
2/5
Wolter Ramsayn katu 4 A 10
2h+kt+s
, Kerrostalo
45 m2
Kerros 2/5
Wolter Ramsayn katu 4 A 17
2h+kt+s
, Kerrostalo
45 m2
3/5
Wolter Ramsayn katu 4 A 17
2h+kt+s
, Kerrostalo
45 m2
Kerros 3/5
Wolter Ramsayn katu 4 A 28
2h+kt+s
, Kerrostalo
45 m2
4/5
Wolter Ramsayn katu 4 A 28
2h+kt+s
, Kerrostalo
45 m2
Kerros 4/5
Wolter Ramsayn katu 4 A 18
2h+kt+s
, Kerrostalo
45 m2
3/5
Wolter Ramsayn katu 4 A 18
2h+kt+s
, Kerrostalo
45 m2
Kerros 3/5
Wolter Ramsayn katu 4 A 27
2h+kt+s
, Kerrostalo
45 m2
4/5
Wolter Ramsayn katu 4 A 27
2h+kt+s
, Kerrostalo
45 m2
Kerros 4/5
Wolter Ramsayn katu 4 A 35
2h+kt+s
, Kerrostalo
45 m2
5/5
Wolter Ramsayn katu 4 A 35
2h+kt+s
, Kerrostalo
45 m2
Kerros 5/5
Wolter Ramsayn katu 4 A 11
2h+kt+s
, Kerrostalo
45 m2
2/5
Wolter Ramsayn katu 4 A 11
2h+kt+s
, Kerrostalo
45 m2
Kerros 2/5
Wolter Ramsayn katu 4 A 37
2h+kt+s
, Kerrostalo
45 m2
5/5
Wolter Ramsayn katu 4 A 37
2h+kt+s
, Kerrostalo
45 m2
Kerros 5/5
Wolter Ramsayn katu 4 A 9
2h+kt+s
, Kerrostalo
45 m2
2/5
Wolter Ramsayn katu 4 A 9
2h+kt+s
, Kerrostalo
45 m2
Kerros 2/5
Wolter Ramsayn katu 4 A 38
2h+kt+s
, Kerrostalo
45 m2
5/5
Wolter Ramsayn katu 4 A 38
2h+kt+s
, Kerrostalo
45 m2
Kerros 5/5
Wolter Ramsayn katu 4 A 1
2h+kt+s
, Kerrostalo
45 m2
1/5
Wolter Ramsayn katu 4 A 1
2h+kt+s
, Kerrostalo
45 m2
Kerros 1/5
Wolter Ramsayn katu 4 A 20
2h+kt+s
, Kerrostalo
45 m2
3/5
Wolter Ramsayn katu 4 A 20
2h+kt+s
, Kerrostalo
45 m2
Kerros 3/5
Wolter Ramsayn katu 4 A 23
2h+kt+s
, Kerrostalo
45.5 m2
4/5
Wolter Ramsayn katu 4 A 23
2h+kt+s
, Kerrostalo
45.5 m2
Kerros 4/5
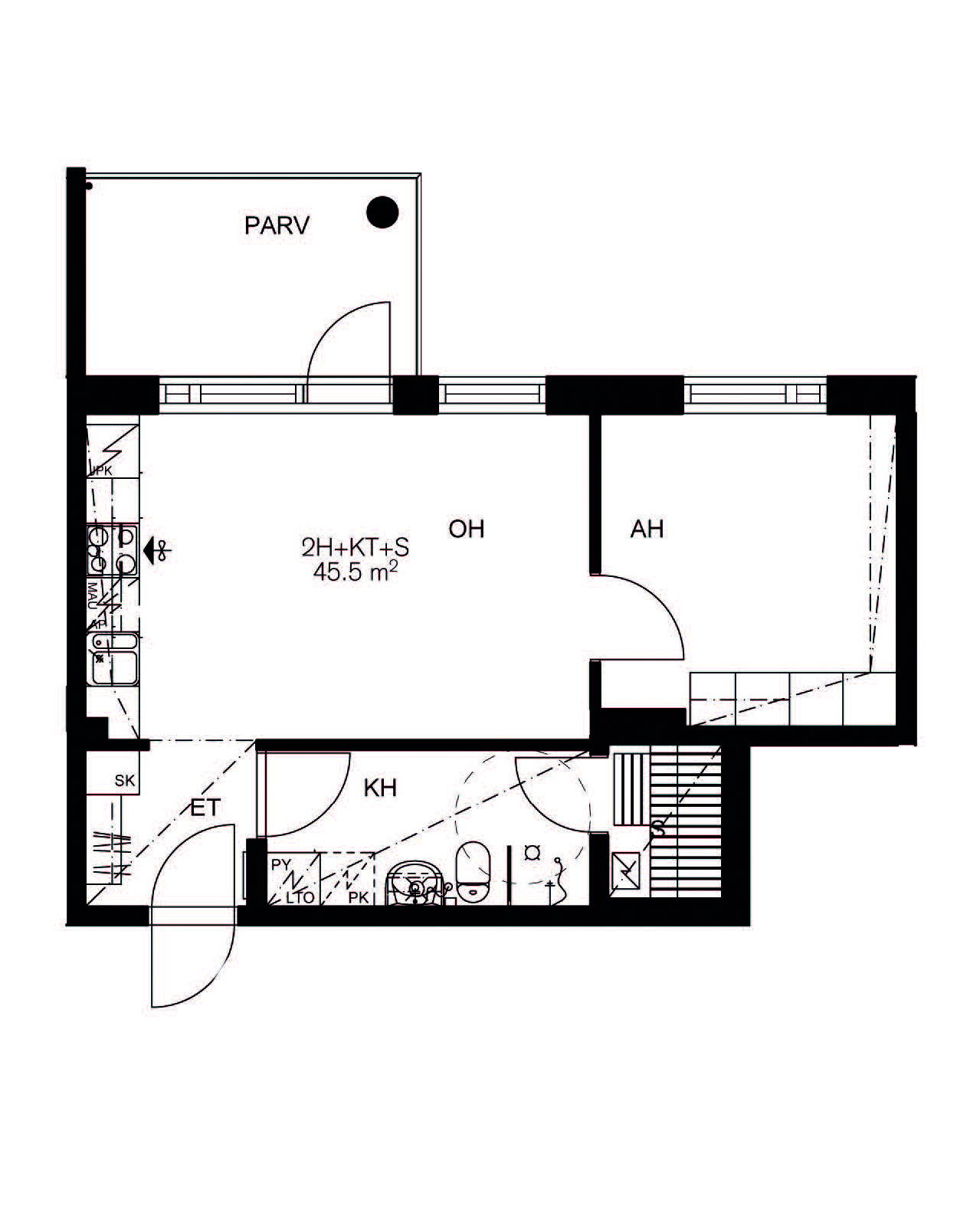
Wolter Ramsayn katu 4 A 5
2h+kt+s
, Kerrostalo
45.5 m2
2/5
Wolter Ramsayn katu 4 A 5
2h+kt+s
, Kerrostalo
45.5 m2
Kerros 2/5
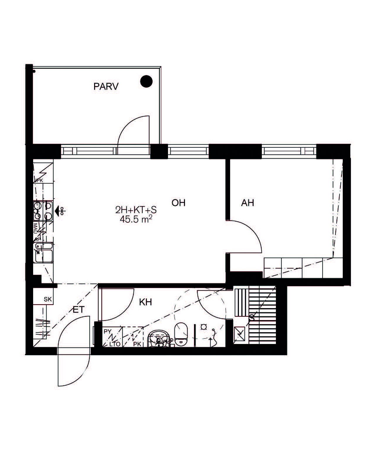
Wolter Ramsayn katu 4 A 32
2h+kt+s
, Kerrostalo
45.5 m2
5/5
Wolter Ramsayn katu 4 A 32
2h+kt+s
, Kerrostalo
45.5 m2
Kerros 5/5
Wolter Ramsayn katu 4 A 14
2h+kt+s
, Kerrostalo
45.5 m2
3/5
Wolter Ramsayn katu 4 A 14
2h+kt+s
, Kerrostalo
45.5 m2
Kerros 3/5
Wolter Ramsayn katu 4 A 25
2h+kt+s
, Kerrostalo
46.5 m2
4/5
Wolter Ramsayn katu 4 A 25
2h+kt+s
, Kerrostalo
46.5 m2
Kerros 4/5
Wolter Ramsayn katu 4 A 34
2h+kt+s
, Kerrostalo
46.5 m2
5/5
Wolter Ramsayn katu 4 A 34
2h+kt+s
, Kerrostalo
46.5 m2
Kerros 5/5
Wolter Ramsayn katu 4 A 16
2h+kt+s
, Kerrostalo
46.5 m2
3/5
Wolter Ramsayn katu 4 A 16
2h+kt+s
, Kerrostalo
46.5 m2
Kerros 3/5
Wolter Ramsayn katu 4 A 7
2h+kt+s
, Kerrostalo
46.5 m2
2/5
Wolter Ramsayn katu 4 A 7
2h+kt+s
, Kerrostalo
46.5 m2
Kerros 2/5
