Kohteen esittely
Lauritsalan Kartanonpellolla lähellä Saimaan Kanavaa kolmen kerrostalon rypäs lapsiystävällisellä alueella. Jos perheesi tarvitsee enemmän tilaa, niin vain täältä löytyy 5h+k+s huoneistoja. Autosikin saa katon suojakseen, sillä autokatospaikkakin löytyy jokaiselle tarvitsevalle. Kohteessa käytetään hiilineutraalia kaukolämpöä.
Koulut, kaupat, uimahalli ym. palvelut löytyvät vajaan kahden kilometrin päässä Lauritsalasta.
Miksi Asuntosäätiö?
Me uskomme, että onnellinen koti ja laadukas asuminen kuuluvat kaikille. Emme tavoittele voittoa, vaan käytämme kaikki vastikkeista ja vuokrista saadut tulot toimintamme kehittämiseen. Jo yli 33 000 suomalaista on valinnut Asuntosäätiön tarjoaman kodin. Tiesithän, että myös lemmikit ovat tervetulleita kaikkiin koteihimme!
Rakennuksen tiedot
- Asumismuoto Asokoti
- Keskimääräinen asumisoikeusmaksu / jm² 366,49€
- Hissit Ei
- Talosauna Ei
- Kuivaushuone Kyllä
- Asuntoja 27
- Asuinrakennuksia 3
- Käyttövastike / kk / jm² 10,43€
- Valmistumisvuosi 1999
- Porrashuoneet 3
- Energialuokka E
- Lämmitysmuoto Kauko
- Autopaikat Ei
- Kerhohuone 1
- Laajakaista Elisa
- Antennijärjestelmä Kaapeli
- KaapeliTV Elisa
- Kattomateriaali Pelti
- Runkomateriaali Betoni
- Lemmikit Sallittu
Huoneistot ja pohjakuvat: Läntinen Kanavatie, Kerrostalo, Piharakennus
Lisää hakemukselle kaikki haluamasi asuntotyypit. Mahdollisuutesi asunnon saamiseksi paranevat, kun voimme tarjota sinulle kaikkia valitsemasi asuntotyypin asuntoja, jotka mahdollisesti vapautuvat myöhemmin tästä kohteesta. Olet automaattisesti näiden asuntotyyppien hakuprosessissa.
Läntinen Kanavatie 31 As 2
2h+k+s
, Kerrostalo
60.5 m2
1/3
Läntinen Kanavatie 31 As 2
2h+k+s
, Kerrostalo
60.5 m2
Kerros 1/3
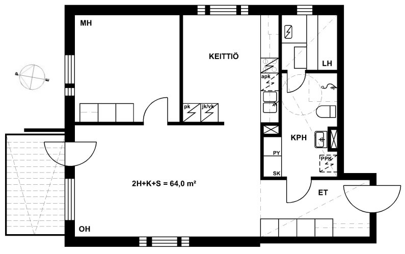
Läntinen Kanavatie 29 As 3
2h+k+s
, Kerrostalo
64 m2
2/3
Läntinen Kanavatie 29 As 3
2h+k+s
, Kerrostalo
64 m2
Kerros 2/3
Läntinen Kanavatie 27 As 6
2h+k+s
, Kerrostalo
64 m2
2/3
Läntinen Kanavatie 27 As 6
2h+k+s
, Kerrostalo
64 m2
Kerros 2/3
Läntinen Kanavatie 31 As 6
2h+k+s
, Kerrostalo
64 m2
2/3
Läntinen Kanavatie 31 As 6
2h+k+s
, Kerrostalo
64 m2
Kerros 2/3
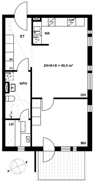
Läntinen Kanavatie 27 As 7
2h+kk+s
, Kerrostalo
49.5 m2
3/3
Läntinen Kanavatie 27 As 7
2h+kk+s
, Kerrostalo
49.5 m2
Kerros 3/3
Läntinen Kanavatie 27 As 2
2h+kk+s
, Kerrostalo
49.5 m2
1/3
Läntinen Kanavatie 27 As 2
2h+kk+s
, Kerrostalo
49.5 m2
Kerros 1/3
Läntinen Kanavatie 27 As 8
2h+kk+s
, Kerrostalo
49.5 m2
3/3
Läntinen Kanavatie 27 As 8
2h+kk+s
, Kerrostalo
49.5 m2
Kerros 3/3
Läntinen Kanavatie 27 As 1
2h+kk+s
, Kerrostalo
49.5 m2
1/3
Läntinen Kanavatie 27 As 1
2h+kk+s
, Kerrostalo
49.5 m2
Kerros 1/3
Läntinen Kanavatie 27 As 4
2h+kk+s
, Kerrostalo
49.5 m2
2/3
Läntinen Kanavatie 27 As 4
2h+kk+s
, Kerrostalo
49.5 m2
Kerros 2/3
Läntinen Kanavatie 27 As 3
2h+kk+s
, Kerrostalo
49.5 m2
2/3
Läntinen Kanavatie 27 As 3
2h+kk+s
, Kerrostalo
49.5 m2
Kerros 2/3
Läntinen Kanavatie 31 As 1
2h+kk+s
, Kerrostalo
49.5 m2
1/3
Läntinen Kanavatie 31 As 1
2h+kk+s
, Kerrostalo
49.5 m2
Kerros 1/3
Läntinen Kanavatie 31 As 4
2h+kk+s
, Kerrostalo
49.5 m2
2/3
Läntinen Kanavatie 31 As 4
2h+kk+s
, Kerrostalo
49.5 m2
Kerros 2/3
Läntinen Kanavatie 31 As 3
2h+kk+s
, Kerrostalo
49.5 m2
2/3
Läntinen Kanavatie 31 As 3
2h+kk+s
, Kerrostalo
49.5 m2
Kerros 2/3
Läntinen Kanavatie 31 As 7
2h+kk+s
, Kerrostalo
49.5 m2
3/3
Läntinen Kanavatie 31 As 7
2h+kk+s
, Kerrostalo
49.5 m2
Kerros 3/3
Läntinen Kanavatie 31 As 8
2h+kk+s
, Kerrostalo
49.5 m2
3/3
Läntinen Kanavatie 31 As 8
2h+kk+s
, Kerrostalo
49.5 m2
Kerros 3/3
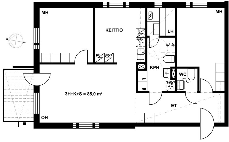
Läntinen Kanavatie 29 As 6
3h+k+s
, Kerrostalo
85 m2
3/3
Läntinen Kanavatie 29 As 6
3h+k+s
, Kerrostalo
85 m2
Kerros 3/3
Läntinen Kanavatie 27 As 10
3h+k+s
, Kerrostalo
85 m2
3/3
Läntinen Kanavatie 27 As 10
3h+k+s
, Kerrostalo
85 m2
Kerros 3/3
Läntinen Kanavatie 31 As 10
3h+k+s
, Kerrostalo
85 m2
3/3
Läntinen Kanavatie 31 As 10
3h+k+s
, Kerrostalo
85 m2
Kerros 3/3
Läntinen Kanavatie 29 As 7
4h+k+s
, Kerrostalo
96 m2
3/3
Läntinen Kanavatie 29 As 7
4h+k+s
, Kerrostalo
96 m2
Kerros 3/3
Läntinen Kanavatie 29 As 4
4h+k+s
, Kerrostalo
96 m2
2/3
Läntinen Kanavatie 29 As 4
4h+k+s
, Kerrostalo
96 m2
Kerros 2/3
Läntinen Kanavatie 27 As 5
4h+k+s
, Kerrostalo
96 m2
2/3
Läntinen Kanavatie 27 As 5
4h+k+s
, Kerrostalo
96 m2
Kerros 2/3
Läntinen Kanavatie 27 As 9
4h+k+s
, Kerrostalo
96 m2
3/3
Läntinen Kanavatie 27 As 9
4h+k+s
, Kerrostalo
96 m2
Kerros 3/3
Läntinen Kanavatie 31 As 9
4h+k+s
, Kerrostalo
96 m2
3/3
Läntinen Kanavatie 31 As 9
4h+k+s
, Kerrostalo
96 m2
Kerros 3/3
Läntinen Kanavatie 31 As 5
4h+k+s
, Kerrostalo
96 m2
2/3
Läntinen Kanavatie 31 As 5
4h+k+s
, Kerrostalo
96 m2
Kerros 2/3
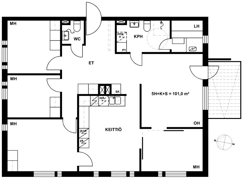
Läntinen Kanavatie 29 As 5
5h+k+s
, Kerrostalo
101 m2
3/3
Läntinen Kanavatie 29 As 5
5h+k+s
, Kerrostalo
101 m2
Kerros 3/3
Läntinen Kanavatie 29 As 2
5h+k+s
, Kerrostalo
101 m2
2/3
Läntinen Kanavatie 29 As 2
5h+k+s
, Kerrostalo
101 m2
Kerros 2/3
Läntinen Kanavatie 29 As 1
5h+k+s
, Kerrostalo
101 m2
1/3
Läntinen Kanavatie 29 As 1
5h+k+s
, Kerrostalo
101 m2
Kerros 1/3


