Kohteen esittely
Pikisaaressa vain muutaman kilometrin päässä keskustan palveluista 2000-luvulla valmistuneet viisi- ja kuusikerroksiset hissitalot. Aivan Saimaan rannalla sijaitsevan Rantakadun puoleisista asunnoista Saimaa-näkymät. Kaikissa asunnoissa omat saunat ja parvekkeet. Kohteessa käytetään hiilineutraalia kaukolämpöä.
Upeat ulkoilumaastot lähellä. Lähipalveluista muutaman sadan metrin päässä S-Market Pallo, kaikki muut palvelut kouluineen ja päiväkoteineen löytyy kaupungin keskustasta reilun kilometrin päässä.
Miksi Asuntosäätiö?
Me uskomme, että onnellinen koti ja laadukas asuminen kuuluvat kaikille. Emme tavoittele voittoa, vaan käytämme kaikki vastikkeista ja vuokrista saadut tulot toimintamme kehittämiseen. Jo yli 33 000 suomalaista on valinnut Asuntosäätiön tarjoaman kodin. Tiesithän, että myös lemmikit ovat tervetulleita kaikkiin koteihimme!
Rakennuksen tiedot
- Asumismuoto Asokoti
- Keskimääräinen asumisoikeusmaksu / jm² 397,1€
- Hissit 2
- Talosauna Ei
- Kuivaushuone Kyllä
- Asuntoja 58
- Asuinrakennuksia 2
- Käyttövastike / kk / jm² 12,62€
- Valmistumisvuosi 2002
- Porrashuoneet 2
- Energialuokka D
- Lämmitysmuoto Kauko
- Autopaikat 59
- Laajakaista Elisa
- Antennijärjestelmä Kaapeli
- KaapeliTV Elisa
- Kattomateriaali Pelti
- Runkomateriaali Betoni
- Lemmikit Sallittu
Huoneistot ja pohjakuvat: Pikisaarenkatu 41, Rantakatu 16, Piharakennus, Kerrostalo
Lisää hakemukselle kaikki haluamasi asuntotyypit. Mahdollisuutesi asunnon saamiseksi paranevat, kun voimme tarjota sinulle kaikkia valitsemasi asuntotyypin asuntoja, jotka mahdollisesti vapautuvat myöhemmin tästä kohteesta. Olet automaattisesti näiden asuntotyyppien hakuprosessissa.
Rantakatu 16 As 3
1h+kk+s
, Kerrostalo
37.5 m2
1/5
Rantakatu 16 As 3
1h+kk+s
, Kerrostalo
37.5 m2
Kerros 1/5
Pikisaarenkatu 41 A 10
1h+kk+s
, Kerrostalo
38 m2
/
Pikisaarenkatu 41 A 10
1h+kk+s
, Kerrostalo
38 m2
Kerros /
Pikisaarenkatu 41 A 4
1h+kk+s
, Kerrostalo
38 m2
/
Pikisaarenkatu 41 A 4
1h+kk+s
, Kerrostalo
38 m2
Kerros /
Pikisaarenkatu 41 A 16
1h+kk+s
, Kerrostalo
38 m2
/
Pikisaarenkatu 41 A 16
1h+kk+s
, Kerrostalo
38 m2
Kerros /
Pikisaarenkatu 41 A 22
1h+kk+s
, Kerrostalo
38 m2
Kerros /
Pikisaarenkatu 41 A 28
1h+kk+s
, Kerrostalo
38 m2
/
Pikisaarenkatu 41 A 28
1h+kk+s
, Kerrostalo
38 m2
Kerros /
Rantakatu 16 As 20
1h+kk+s
, Kerrostalo
38.5 m2
4/5
Rantakatu 16 As 20
1h+kk+s
, Kerrostalo
38.5 m2
Kerros 4/5
Rantakatu 16 As 26
1h+kk+s
, Kerrostalo
38.5 m2
5/5
Rantakatu 16 As 26
1h+kk+s
, Kerrostalo
38.5 m2
Kerros 5/5
Rantakatu 16 As 4
1h+kk+s
, Kerrostalo
38.5 m2
1/5
Rantakatu 16 As 4
1h+kk+s
, Kerrostalo
38.5 m2
Kerros 1/5
Rantakatu 16 As 14
1h+kk+s
, Kerrostalo
38.5 m2
3/5
Rantakatu 16 As 14
1h+kk+s
, Kerrostalo
38.5 m2
Kerros 3/5
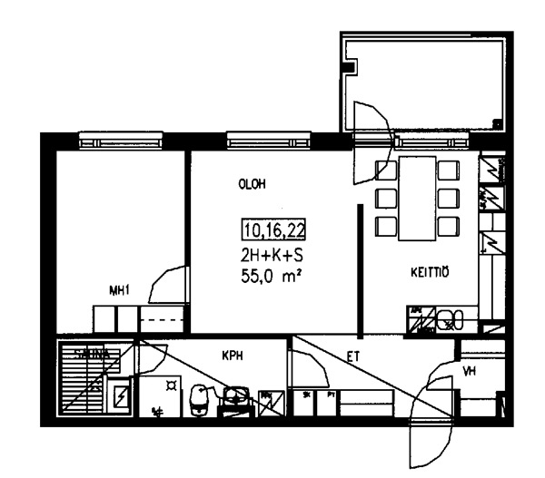
Pikisaarenkatu 41 A 15
2h+k+s
, Kerrostalo
53 m2
/
Pikisaarenkatu 41 A 15
2h+k+s
, Kerrostalo
53 m2
Kerros /
Pikisaarenkatu 41 A 3
2h+k+s
, Kerrostalo
53 m2
/
Pikisaarenkatu 41 A 3
2h+k+s
, Kerrostalo
53 m2
Kerros /
Pikisaarenkatu 41 A 9
2h+k+s
, Kerrostalo
53 m2
/
Pikisaarenkatu 41 A 9
2h+k+s
, Kerrostalo
53 m2
Kerros /
Pikisaarenkatu 41 A 27
2h+k+s
, Kerrostalo
53 m2
/
Pikisaarenkatu 41 A 27
2h+k+s
, Kerrostalo
53 m2
Kerros /
Pikisaarenkatu 41 A 21
2h+k+s
, Kerrostalo
53 m2
/
Pikisaarenkatu 41 A 21
2h+k+s
, Kerrostalo
53 m2
Kerros /
Pikisaarenkatu 41 A 26
2h+k+s
, Kerrostalo
54 m2
/
Pikisaarenkatu 41 A 26
2h+k+s
, Kerrostalo
54 m2
Kerros /
Pikisaarenkatu 41 A 8
2h+k+s
, Kerrostalo
54 m2
/
Pikisaarenkatu 41 A 8
2h+k+s
, Kerrostalo
54 m2
Kerros /
Pikisaarenkatu 41 A 20
2h+k+s
, Kerrostalo
54 m2
/
Pikisaarenkatu 41 A 20
2h+k+s
, Kerrostalo
54 m2
Kerros /
Pikisaarenkatu 41 A 14
2h+k+s
, Kerrostalo
54 m2
/
Pikisaarenkatu 41 A 14
2h+k+s
, Kerrostalo
54 m2
Kerros /
Rantakatu 16 As 16
2h+k+s
, Kerrostalo
55 m2
3/5
Rantakatu 16 As 16
2h+k+s
, Kerrostalo
55 m2
Kerros 3/5
Rantakatu 16 As 10
2h+k+s
, Kerrostalo
55 m2
2/5
Rantakatu 16 As 10
2h+k+s
, Kerrostalo
55 m2
Kerros 2/5
Rantakatu 16 As 22
2h+k+s
, Kerrostalo
55 m2
4/5
Rantakatu 16 As 22
2h+k+s
, Kerrostalo
55 m2
Kerros 4/5
Pikisaarenkatu 41 A 7
2h+k+s
, Kerrostalo
56 m2
/
Pikisaarenkatu 41 A 7
2h+k+s
, Kerrostalo
56 m2
Kerros /
Rantakatu 16 As 28
2h+k+s
, Kerrostalo
56 m2
5/5
Rantakatu 16 As 28
2h+k+s
, Kerrostalo
56 m2
Kerros 5/5
Pikisaarenkatu 41 A 25
2h+k+s
, Kerrostalo
56 m2
/
Pikisaarenkatu 41 A 25
2h+k+s
, Kerrostalo
56 m2
Kerros /
Pikisaarenkatu 41 A 13
2h+k+s
, Kerrostalo
56 m2
/
Pikisaarenkatu 41 A 13
2h+k+s
, Kerrostalo
56 m2
Kerros /
Pikisaarenkatu 41 A 19
2h+k+s
, Kerrostalo
56 m2
/
Pikisaarenkatu 41 A 19
2h+k+s
, Kerrostalo
56 m2
Kerros /
Pikisaarenkatu 41 A 23
2h+kk+s
, Kerrostalo
46 m2
/
Pikisaarenkatu 41 A 23
2h+kk+s
, Kerrostalo
46 m2
Kerros /
Pikisaarenkatu 41 A 5
2h+kk+s
, Kerrostalo
46 m2
/
Pikisaarenkatu 41 A 5
2h+kk+s
, Kerrostalo
46 m2
Kerros /
Pikisaarenkatu 41 A 1
2h+kk+s
, Kerrostalo
46 m2
/
Pikisaarenkatu 41 A 1
2h+kk+s
, Kerrostalo
46 m2
Kerros /
Pikisaarenkatu 41 A 11
2h+kk+s
, Kerrostalo
46 m2
/
Pikisaarenkatu 41 A 11
2h+kk+s
, Kerrostalo
46 m2
Kerros /
Pikisaarenkatu 41 A 29
2h+kk+s
, Kerrostalo
46 m2
/
Pikisaarenkatu 41 A 29
2h+kk+s
, Kerrostalo
46 m2
Kerros /
Pikisaarenkatu 41 A 17
2h+kk+s
, Kerrostalo
46 m2
Kerros /
Rantakatu 16 As 5
2h+kk+s
, Kerrostalo
49.5 m2
2/5
Rantakatu 16 As 5
2h+kk+s
, Kerrostalo
49.5 m2
Kerros 2/5
Rantakatu 16 As 17
2h+kk+s
, Kerrostalo
49.5 m2
4/5
Rantakatu 16 As 17
2h+kk+s
, Kerrostalo
49.5 m2
Kerros 4/5
Rantakatu 16 As 11
2h+kk+s
, Kerrostalo
49.5 m2
3/5
Rantakatu 16 As 11
2h+kk+s
, Kerrostalo
49.5 m2
Kerros 3/5
Rantakatu 16 As 23
2h+kk+s
, Kerrostalo
49.5 m2
5/5
Rantakatu 16 As 23
2h+kk+s
, Kerrostalo
49.5 m2
Kerros 5/5
Rantakatu 16 As 15
2h+kk+s
, Kerrostalo
50 m2
3/5
Rantakatu 16 As 15
2h+kk+s
, Kerrostalo
50 m2
Kerros 3/5
Rantakatu 16 As 9
2h+kk+s
, Kerrostalo
50 m2
2/5
Rantakatu 16 As 9
2h+kk+s
, Kerrostalo
50 m2
Kerros 2/5
Rantakatu 16 As 21
2h+kk+s
, Kerrostalo
50 m2
4/5
Rantakatu 16 As 21
2h+kk+s
, Kerrostalo
50 m2
Kerros 4/5
Rantakatu 16 As 27
2h+kk+s
, Kerrostalo
50.5 m2
5/5
Rantakatu 16 As 27
2h+kk+s
, Kerrostalo
50.5 m2
Kerros 5/5
Rantakatu 16 As 2
2h+kk+s
, Kerrostalo
51 m2
1/5
Rantakatu 16 As 2
2h+kk+s
, Kerrostalo
51 m2
Kerros 1/5
Rantakatu 16 As 18
3h+k+s
, Kerrostalo
74 m2
4/5
Rantakatu 16 As 18
3h+k+s
, Kerrostalo
74 m2
Kerros 4/5
Rantakatu 16 As 12
3h+k+s
, Kerrostalo
74 m2
3/5
Rantakatu 16 As 12
3h+k+s
, Kerrostalo
74 m2
Kerros 3/5
Rantakatu 16 As 1
3h+k+s
, Kerrostalo
74 m2
1/5
Rantakatu 16 As 1
3h+k+s
, Kerrostalo
74 m2
Kerros 1/5
Rantakatu 16 As 6
3h+k+s
, Kerrostalo
74 m2
2/5
Rantakatu 16 As 6
3h+k+s
, Kerrostalo
74 m2
Kerros 2/5
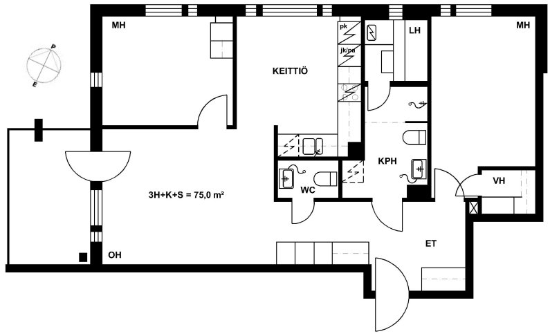
Rantakatu 16 As 24
3h+k+s
, Kerrostalo
75 m2
5/5
Rantakatu 16 As 24
3h+k+s
, Kerrostalo
75 m2
Kerros 5/5
Pikisaarenkatu 41 A 18
3h+k+s
, Kerrostalo
75 m2
/
Pikisaarenkatu 41 A 18
3h+k+s
, Kerrostalo
75 m2
Kerros /
Pikisaarenkatu 41 A 24
3h+k+s
, Kerrostalo
75 m2
/
Pikisaarenkatu 41 A 24
3h+k+s
, Kerrostalo
75 m2
Kerros /
Pikisaarenkatu 41 A 30
3h+k+s
, Kerrostalo
75 m2
/
Pikisaarenkatu 41 A 30
3h+k+s
, Kerrostalo
75 m2
Kerros /
Pikisaarenkatu 41 A 2
3h+k+s
, Kerrostalo
75 m2
/
Pikisaarenkatu 41 A 2
3h+k+s
, Kerrostalo
75 m2
Kerros /
Pikisaarenkatu 41 A 12
3h+k+s
, Kerrostalo
75 m2
Kerros /
Rantakatu 16 As 13
4h+k+s
, Kerrostalo
90.5 m2
3/5
Rantakatu 16 As 13
4h+k+s
, Kerrostalo
90.5 m2
Kerros 3/5
Rantakatu 16 As 19
4h+k+s
, Kerrostalo
90.5 m2
4/5
Rantakatu 16 As 19
4h+k+s
, Kerrostalo
90.5 m2
Kerros 4/5
Rantakatu 16 As 7
4h+k+s
, Kerrostalo
90.5 m2
2/5
Rantakatu 16 As 7
4h+k+s
, Kerrostalo
90.5 m2
Kerros 2/5
Rantakatu 16 As 25
4h+k+s
, Kerrostalo
91.5 m2
5/5
Rantakatu 16 As 25
4h+k+s
, Kerrostalo
91.5 m2
Kerros 5/5


