Kohteen esittely
Pienkerrostalo Lohjan keskustan palveluiden välittömässä läheisyydessä. Upeaa pienkaupunkiasumista parhaimmillaan!
Lähellä koulut lukioon saakka, koirapuisto, uimaranta, terveyskeskus ja kaikki keskustan muut palvelut. Vehreät ulkoilureitit Lohjanjärven tuntumassa.
Miksi Asuntosäätiö?
Me uskomme, että onnellinen koti ja laadukas asuminen kuuluvat kaikille. Emme tavoittele voittoa, vaan käytämme kaikki vastikkeista ja vuokrista saadut tulot toimintamme kehittämiseen. Jo yli 33 000 suomalaista on valinnut Asuntosäätiön tarjoaman kodin. Tiesithän, että myös lemmikit ovat tervetulleita kaikkiin koteihimme!
Rakennuksen tiedot
- Asumismuoto Asokoti
- Keskimääräinen asumisoikeusmaksu / jm² 330,96€
- Hissit Ei
- Talosauna Ei
- Asuntoja 8
- Asuinrakennuksia 1
- Käyttövastike / kk / jm² 11,7€
- Valmistumisvuosi 1999
- Porrashuoneet 1
- Energialuokka E
- Lämmitysmuoto Kauko
- Autopaikat 10
- Laajakaista DNA Welho
- Antennijärjestelmä Kaapeli
- KaapeliTV DNA
- Kattomateriaali Pelti
- Runkomateriaali Betoni
- Lemmikit Sallittu
Huoneistot ja pohjakuvat: Karnaistenkatu 25, Kerrostalo
Lisää hakemukselle kaikki haluamasi asuntotyypit. Mahdollisuutesi asunnon saamiseksi paranevat, kun voimme tarjota sinulle kaikkia valitsemasi asuntotyypin asuntoja, jotka mahdollisesti vapautuvat myöhemmin tästä kohteesta. Olet automaattisesti näiden asuntotyyppien hakuprosessissa.
Karnaistenkatu 25 A 4
2h+kk+s
, Kerrostalo
46.5 m2
2/3
Karnaistenkatu 25 A 4
2h+kk+s
, Kerrostalo
46.5 m2
Kerros 2/3
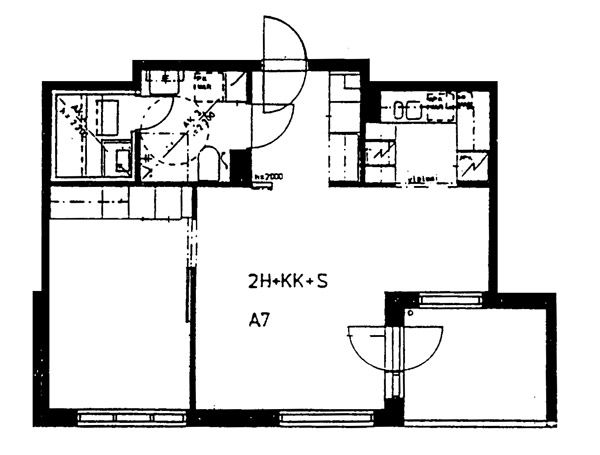
Karnaistenkatu 25 A 7
2h+kk+s
, Kerrostalo
46.5 m2
3/3
Karnaistenkatu 25 A 7
2h+kk+s
, Kerrostalo
46.5 m2
Kerros 3/3
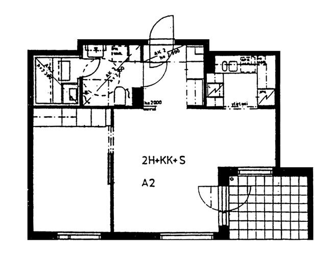
Karnaistenkatu 25 A 2
2h+kk+s
, Kerrostalo
46.5 m2
1/3
Karnaistenkatu 25 A 2
2h+kk+s
, Kerrostalo
46.5 m2
Kerros 1/3
Karnaistenkatu 25 A 1
3h+k+s
, Kerrostalo
75 m2
1/3
Karnaistenkatu 25 A 1
3h+k+s
, Kerrostalo
75 m2
Kerros 1/3
Karnaistenkatu 25 A 3
3h+k+s
, Kerrostalo
75 m2
2/3
Karnaistenkatu 25 A 3
3h+k+s
, Kerrostalo
75 m2
Kerros 2/3
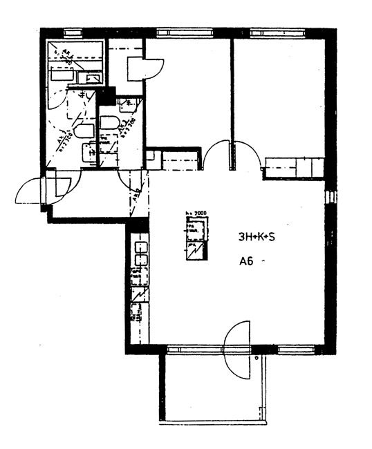
Karnaistenkatu 25 A 6
3h+k+s
, Kerrostalo
75 m2
3/3
Karnaistenkatu 25 A 6
3h+k+s
, Kerrostalo
75 m2
Kerros 3/3
Karnaistenkatu 25 A 8
4h+k+s
, Kerrostalo
87.5 m2
3/3
Karnaistenkatu 25 A 8
4h+k+s
, Kerrostalo
87.5 m2
Kerros 3/3
Karnaistenkatu 25 A 5
4h+k+s
, Kerrostalo
87.5 m2
2/3
Karnaistenkatu 25 A 5
4h+k+s
, Kerrostalo
87.5 m2
Kerros 2/3