Kohteen esittely
Rivitalokohde Päivärinteellä. Omalla pihalla pääsee puuhailemaan vaikka kukkapenkkejä tai istuttamaan oman hyötypuutarhan. Isot asunnot kahdessa tasossa. Vastike sisältää 10M kiinteistölaajakaistan.
Koulu ja päiväkoti lähellä, joten täällä viihtyy lapsiperheet hyvin. Abc-asema ja Halpahalli kivenheiton päässä.
Miksi Asuntosäätiö?
Me uskomme, että onnellinen koti ja laadukas asuminen kuuluvat kaikille. Emme tavoittele voittoa, vaan käytämme kaikki vastikkeista ja vuokrista saadut tulot toimintamme kehittämiseen. Jo yli 33 000 suomalaista on valinnut Asuntosäätiön tarjoaman kodin. Tiesithän, että myös lemmikit ovat tervetulleita kaikkiin koteihimme!
Rakennuksen tiedot
- Asumismuoto Asokoti
- Keskimääräinen asumisoikeusmaksu / jm² 301,4€
- Hissit Ei
- Talosauna Ei
- Asuntoja 13
- Asuinrakennuksia 3
- Käyttövastike / kk / jm² 10,71€
- Valmistumisvuosi 1996
- Peruskorjattu 2024
- Energialuokka D
- Lämmitysmuoto Kauko
- Autopaikat 15
- Laajakaista DNA Welho
- Antennijärjestelmä Kaapeli
- KaapeliTV DNA
- Kattomateriaali Pelti
- Runkomateriaali Puu
- Lemmikit Sallittu
Huoneistot ja pohjakuvat: Kihmulantie 4, Rivitalo, Piharakennus
Lisää hakemukselle kaikki haluamasi asuntotyypit. Mahdollisuutesi asunnon saamiseksi paranevat, kun voimme tarjota sinulle kaikkia valitsemasi asuntotyypin asuntoja, jotka mahdollisesti vapautuvat myöhemmin tästä kohteesta. Olet automaattisesti näiden asuntotyyppien hakuprosessissa.
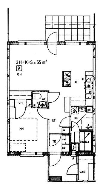
Kihmulantie 4 B 10
2h+k+s
, Rivitalo
55 m2
1/1
Kihmulantie 4 B 10
2h+k+s
, Rivitalo
55 m2
Kerros 1/1
Kihmulantie 4 B 9
2h+k+s
, Rivitalo
55 m2
1/1
Kihmulantie 4 B 9
2h+k+s
, Rivitalo
55 m2
Kerros 1/1
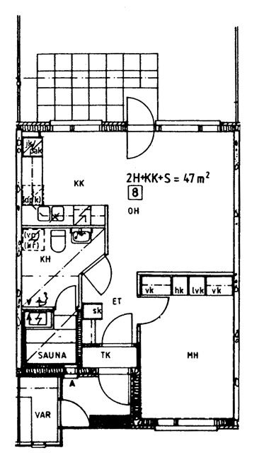
Kihmulantie 4 B 7
2h+kk+s
, Rivitalo
47 m2
1/1
Kihmulantie 4 B 7
2h+kk+s
, Rivitalo
47 m2
Kerros 1/1
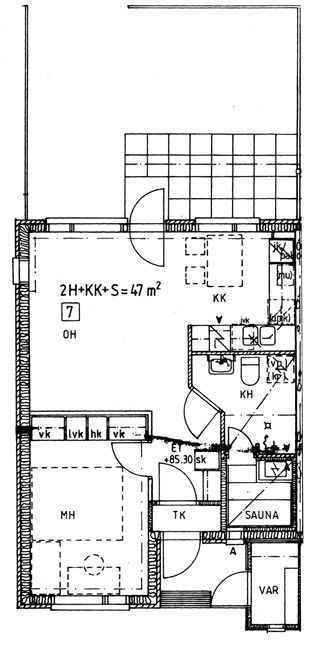
Kihmulantie 4 B 8
2h+kk+s
, Rivitalo
47 m2
1/1
Kihmulantie 4 B 8
2h+kk+s
, Rivitalo
47 m2
Kerros 1/1
Kihmulantie 4 C 11
3h+k+s
, Rivitalo
75 m2
1/1
Kihmulantie 4 C 11
3h+k+s
, Rivitalo
75 m2
Kerros 1/1
Kihmulantie 4 C 12
3h+k+s
, Rivitalo
75 m2
1/1
Kihmulantie 4 C 12
3h+k+s
, Rivitalo
75 m2
Kerros 1/1
Kihmulantie 4 C 13
3h+k+s
, Rivitalo
75 m2
1/1
Kihmulantie 4 C 13
3h+k+s
, Rivitalo
75 m2
Kerros 1/1
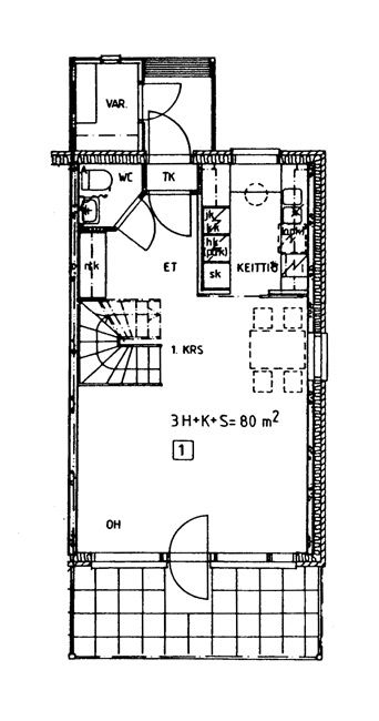
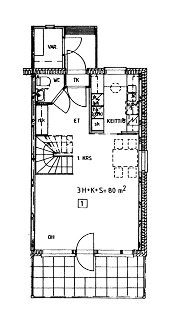
Kihmulantie 4 A 1
3h+k+s
, Rivitalo
80 m2
1-2/2
Kihmulantie 4 A 1
3h+k+s
, Rivitalo
80 m2
Kerros 1-2/2
Kihmulantie 4 A 3
4h+k+s
, Rivitalo
85 m2
1-2/2
Kihmulantie 4 A 3
4h+k+s
, Rivitalo
85 m2
Kerros 1-2/2
Kihmulantie 4 A 2
4h+k+s
, Rivitalo
85 m2
1-2/2
Kihmulantie 4 A 2
4h+k+s
, Rivitalo
85 m2
Kerros 1-2/2
Kihmulantie 4 A 5
4h+k+s
, Rivitalo
85 m2
1-2/2
Kihmulantie 4 A 5
4h+k+s
, Rivitalo
85 m2
Kerros 1-2/2
Kihmulantie 4 A 4
4h+k+s
, Rivitalo
85 m2
1-2/2
Kihmulantie 4 A 4
4h+k+s
, Rivitalo
85 m2
Kerros 1-2/2
