Siirry sisältöön

Ratalaaksonkuja 8 G 21, Espoo, TUOMARILA

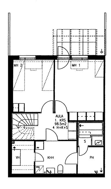
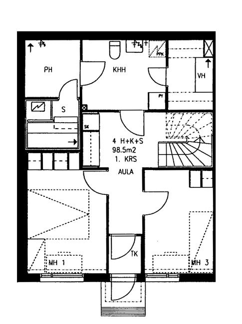
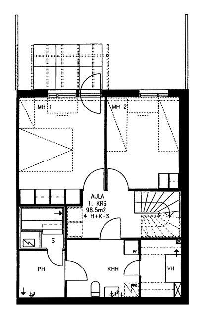
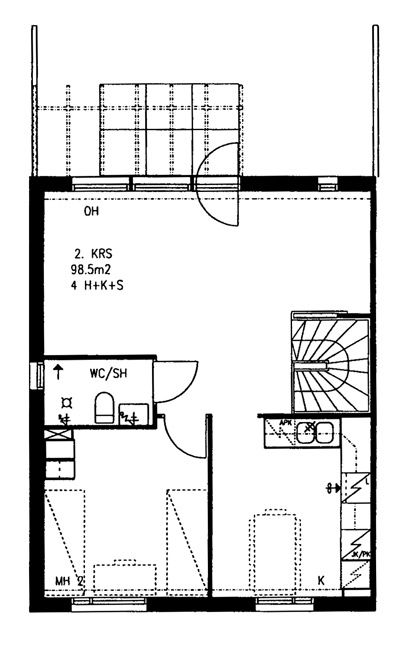
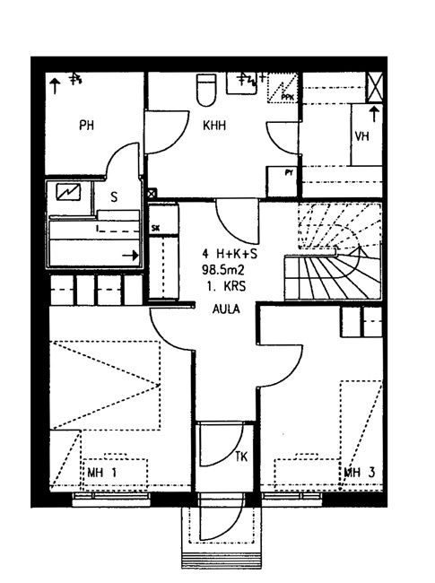
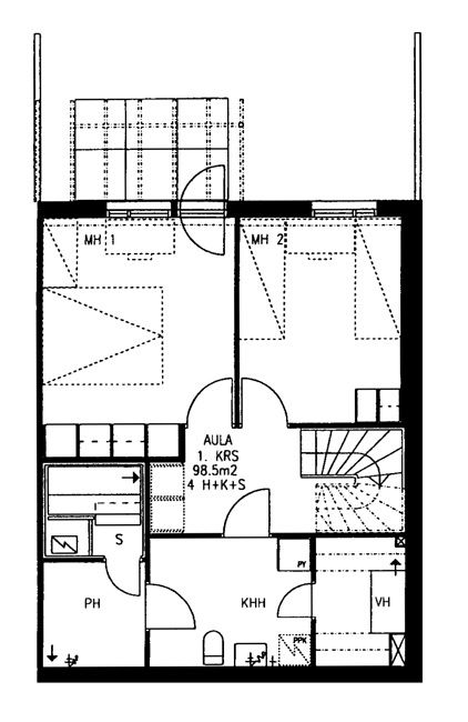
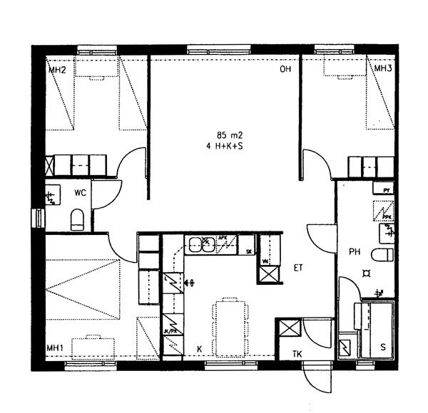
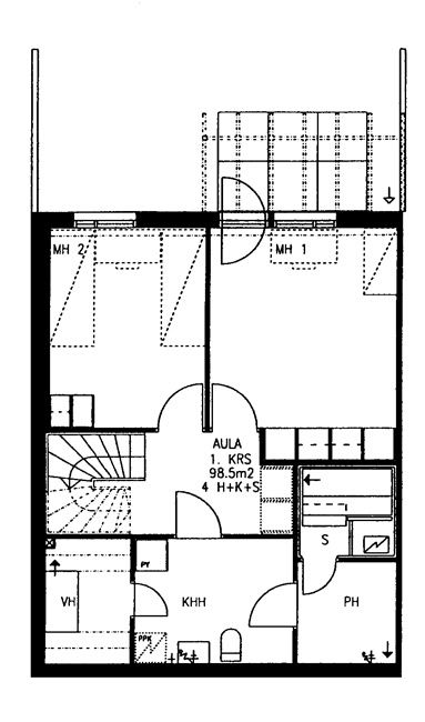
97,5 m2, 4H+K+S

Asuntomyyjä

Irma-Liisa Back-Heikkinen

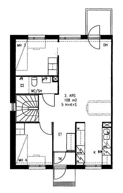
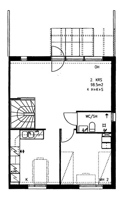
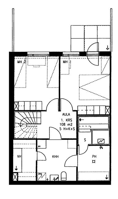
Tilava perheasunto palveluiden läheisyydestä. Tavanomaisesta poikkeava pohjaratkaisu, alakerrassa makuuhuoneet, pesutila sekä vaatehuone. Yläkerrassa tilava olohuone, makuhuone ja keittiö. Olohuoneesta käynti suoraan pihalle.Suihkutilat myös yläkerrassa.

Jos haluat saada lisätietoja tästä asunnosta, otathan yhteyttä myyjäämme.

Tervetuloa tulevaisuuden kotiisi!

Tilava perheasunto palveluiden läheisyydestä. Tavanomaisesta poikkeava pohjaratkaisu, alakerrassa makuuhuoneet, pesutila sekä vaatehuone. Yläkerrassa tilava olohuone, makuhuone ja keittiö. Olohuoneesta käynti suoraan pihalle.Suihkutilat myös yläkerrassa.

Jos haluat saada lisätietoja tästä asunnosta, otathan yhteyttä myyjäämme.

Asunnon tiedot

Asuinkustannukset

  • Luovutushinta 37887,01€
    • — Alkuperäinen asumisoikeusmaksu 21275,77€
    • — Indeksitarkistus 16611,24€
  • Käyttövastike 1315,5€
    • — Perusvastike 1112,14€
    • — Hoitovastike 203,36€
  • Vakuusmaksu 250€
  • Vesimaksu/henkilö/kk 25€
  • Autopaikkamaksut
    • — Autopaikkamaksu 1 15,00€

Perustiedot asunnosta

  • Talotyyppi Rivitalo
  • Energialuokka D
  • Huoneistotyyppi 4H+K+S
  • Pinta-ala 97.50 m²
  • Kerros 1-2
  • Oma sauna Kyllä
  • Erillinen wc Kyllä
  • Hissi Ei
  • Vapautuu Heti vapaa
  • Kunto Hyvä
  • Lemmikit Sallittu
  • Laajakaista DNA Welho

Lisätietoja

Tupakointi asunnoissamme

Kaikki uudet asuinkiinteistömme ovat olleet jo pitkään täysin savuttomia heti valmistumisestaan lähtien. Muutumme vähitellen savuttomiksi kaikkien asuntojemme osalta: uusien asukkaiden sopimukset ovat kieltäneet tupakoinnin huoneistoissa ja parvekkeilla 1.1.2021 alkaen. Kiinteistö ei ole välttämättä savuton muiden huoneistojen osalta, koska niissä voi olla vanhoja sopimuksia, joissa ei ole tupakointikieltoa.

Tehdyt muutostyöt

2025 Maalipaketti. Asunut yli 5 vuotta.

Kohteen esittely

Kohde koostuu paritalosta sekä kaksikerroksista rivitaloista. Asunnot soveltuvat hyvin perheasunnoiksi. Lämmitysmuotona kaukolämpö.

Ratalaaksonkuja sijaitsee loistavien liikenneyhteyksien varrella: 500 metrin päässä sijaitsee Tuomarilan juna-asema ja lähin bussipysäkki löytyy 250 metrin päästä. Junalla Helsingin rautatieasemalle pääsee 25 minuutissa. Tuomarilasta ja sen läheisyydestä löytyy monta päiväkotia ja koulua. Lähimpään kouluun on matkaa 550 metriä. Espoon keskuksesta löytyy mm. ruokakauppoja, kuntosaleja, kauppakeskus sekä kirjasto. Suurempi kauppakeskus, Sello, löytyy Leppävaarasta, jonne pääsee junalla 10 minuutissa.

Ratalaaksonkujan lähiympäristö tarjoaa upeat ulkoilu- ja liikuntamahdollisuudet, kuten suuren Espoon keskuspuiston lenkkeilypolkuineen, Kasavuoren kalliot, jalkapallohallin ja luistelukentän sekä kattavat hiihtoreitit. Keski-Espoon uimahalli sijaitsee noin 2 kilometrin päässä.

Miksi Asuntosäätiö?

Me uskomme, että onnellinen koti ja laadukas asuminen kuuluvat kaikille. Emme tavoittele voittoa, vaan käytämme kaikki vastikkeista ja vuokrista saadut tulot toimintamme kehittämiseen. Jo yli 33 000 suomalaista on valinnut Asuntosäätiön tarjoaman kodin. Tiesithän, että myös lemmikit ovat tervetulleita kaikkiin koteihimme!

Kohteen esittely

Kohde koostuu paritalosta sekä kaksikerroksista rivitaloista. Asunnot soveltuvat hyvin perheasunnoiksi. Lämmitysmuotona kaukolämpö. Ratalaaksonkuja sijaitsee loistavien liikenneyhteyksien varrella: 500 metrin päässä sijaitsee Tuomarilan juna-asema ja lähin bussipysäkki löytyy 250 metrin päästä. Junalla Helsingin rautatieasemalle pääsee 25 minuutissa. Tuomarilasta ja sen läheisyydestä löytyy monta päiväkotia ja koulua. Lähimpään kouluun on matkaa 550 metriä. Espoon keskuksesta löytyy mm. ruokakauppoja, kuntosaleja, kauppakeskus sekä kirjasto. Suurempi kauppakeskus, Sello, löytyy Leppävaarasta, jonne pääsee junalla 10 minuutissa. Ratalaaksonkujan lähiympäristö tarjoaa upeat ulkoilu- ja liikuntamahdollisuudet, kuten suuren Espoon keskuspuiston lenkkeilypolkuineen, Kasavuoren kalliot, jalkapallohallin ja luistelukentän sekä kattavat hiihtoreitit. Keski-Espoon uimahalli sijaitsee noin 2 kilometrin päässä.

Rakennuksen tiedot

  • Asumismuoto Asokoti
  • Keskimääräinen asumisoikeusmaksu / jm² 382,82€
  • Hissit Ei
  • Talosauna Ei
  • Asuntoja 25
  • Asuinrakennuksia 8

Huoneistot ja pohjakuvat: Ratalaaksonkuja 2-3 sekä 5 ja 8, Piharakennus, Rivitalo, Pienkerrostalo, Paritalo

Lisää hakemukselle kaikki haluamasi asuntotyypit. Mahdollisuutesi asunnon saamiseksi paranevat, kun voimme tarjota sinulle kaikkia valitsemasi asuntotyypin asuntoja, jotka mahdollisesti vapautuvat myöhemmin tästä kohteesta. Olet automaattisesti näiden asuntotyyppien hakuprosessissa.

Hae asuntotyyppiä

Ratalaaksonkuja 8 H 23

3h+k+s

, Rivitalo

79 m2

Kerros 1-2/2

Ratalaaksonkuja 8 H 25

3h+k+s

, Rivitalo

79 m2

Kerros 1-2/2

Ratalaaksonkuja 5 D 14

3h+k+s

, Rivitalo

79 m2

Kerros 1-2/2

Hae asuntotyyppiä

Ratalaaksonkuja 3 A 5

4h+k+s

, Pienkerrostalo

85 m2

Kerros 3/3

Ratalaaksonkuja 3 A 4

4h+k+s

, Pienkerrostalo

85 m2

Kerros 3/3

Ratalaaksonkuja 5 D 12

4h+k+s

, Rivitalo

96 m2

Kerros 1-2/2

Ratalaaksonkuja 8 F 18

4h+k+s

, Rivitalo

97.5 m2

Kerros 1-2/2

Ratalaaksonkuja 5 B 7

4h+k+s

, Rivitalo

97.5 m2

Kerros 1-2/2

Ratalaaksonkuja 5 C 10

4h+k+s

, Rivitalo

97.5 m2

Kerros 1-2/2

Ratalaaksonkuja 8 H 24

4h+k+s

, Rivitalo

97.5 m2

Kerros 1-2/2

Ratalaaksonkuja 8 G 21

4h+k+s

, Rivitalo

97.5 m2

Kerros 1-2/2

Ratalaaksonkuja 8 F 17

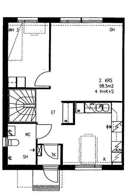
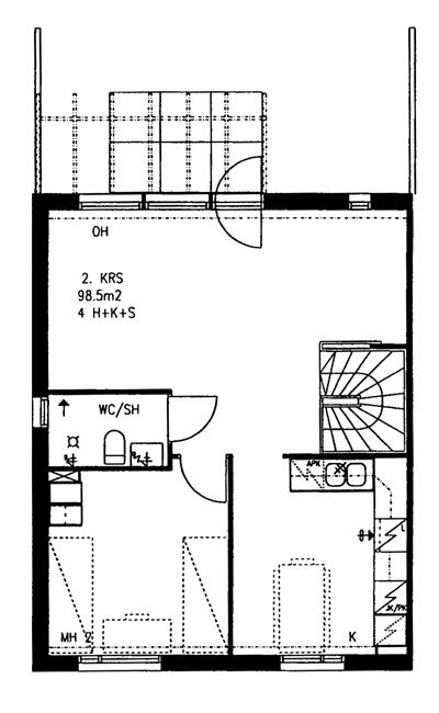
4h+k+s

, Rivitalo

98.5 m2

Kerros 1-2/2

Ratalaaksonkuja 8 F 19

4h+k+s

, Rivitalo

98.5 m2

Kerros 1-2/2

Ratalaaksonkuja 5 B 6

4h+k+s

, Rivitalo

98.5 m2

Kerros 1-2/2

Ratalaaksonkuja 5 B 8

4h+k+s

, Rivitalo

98.5 m2

Kerros 1-2/2

Ratalaaksonkuja 5 C 9

4h+k+s

, Rivitalo

98.5 m2

Kerros 1-2/2

Ratalaaksonkuja 5 C 11

4h+k+s

, Rivitalo

98.5 m2

Kerros 1-2/2

Ratalaaksonkuja 8 G 22

4h+k+s

, Rivitalo

98.5 m2

Kerros 1-2/2

Ratalaaksonkuja 8 G 20

4h+k+s

, Rivitalo

98.5 m2

Kerros 1-2/2

Hae asuntotyyppiä

Ratalaaksonkuja 3 A 1

5h+k+s

, Pienkerrostalo

108 m2

Kerros 1-2/3

Ratalaaksonkuja 3 A 2

5h+k+s

, Pienkerrostalo

108 m2

Kerros 1-2/3

Ratalaaksonkuja 3 A 3

5h+k+s

, Pienkerrostalo

108 m2

Kerros 1-2/3

Ratalaaksonkuja 5 D 13

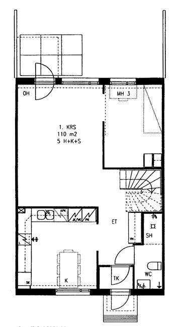
5h+k+s

, Rivitalo

110 m2

Kerros 1-2/2

Hae asuntotyyppiä

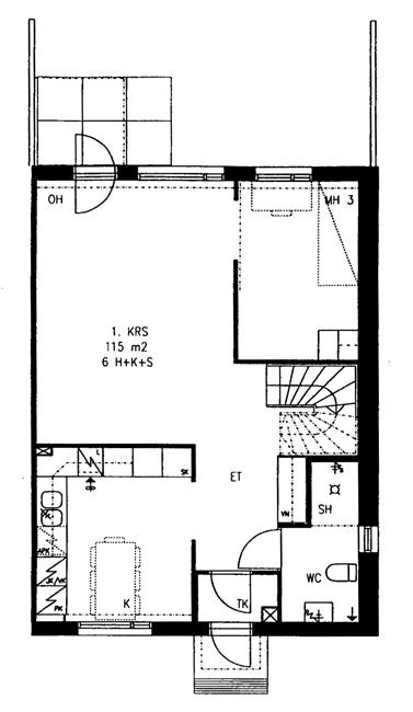
Ratalaaksonkuja 2 E 16

6h+k+s

, Paritalo

115 m2

Kerros 1-2/2

Vapautuu 06.04.2026

Ratalaaksonkuja 2 E 15

6h+k+s

, Paritalo

115 m2

Kerros 1-2/2