Kohteen esittely
Pienkerrostalokohde rauhallisessa kulmassa Joupinmäkeä. Autopaikat sisäpihan puolella. Isot parvekkeet ja osalla asunnoista on oma piha.
Lähellä on neuvola, useampi päiväkoti, koulu ja ruokakauppa. Kauppakeskus Entressen palvelut alle kilometrin päässä. Espoon keskuspuistoon tai Tuomarilan kuntoportaisiinkaan ei ole pitkä matka. Tuomarilan juna-asemalle muutama sata metriä.
Miksi Asuntosäätiö?
Me uskomme, että onnellinen koti ja laadukas asuminen kuuluvat kaikille. Emme tavoittele voittoa, vaan käytämme kaikki vastikkeista ja vuokrista saadut tulot toimintamme kehittämiseen. Jo yli 33 000 suomalaista on valinnut Asuntosäätiön tarjoaman kodin. Tiesithän, että myös lemmikit ovat tervetulleita kaikkiin koteihimme!
Rakennuksen tiedot
- Asumismuoto Asokoti
- Keskimääräinen asumisoikeusmaksu / jm² 402,03€
- Hissit Ei
- Talosauna Ei
- Pyykkitupa Kyllä
- Kuivaushuone Kyllä
- Asuntoja 38
- Asuinrakennuksia 3
- Käyttövastike / kk / jm² 12,71€
- Valmistumisvuosi 1999
- Porrashuoneet 5
- Energialuokka D, E
- Lämmitysmuoto Kauko
- Autopaikat 40
- Kerhohuone 1
- Laajakaista DNA Welho
- Antennijärjestelmä Kaapeli
- KaapeliTV DNA
- Kattomateriaali Tiili
- Runkomateriaali Betoni
- Lemmikit Sallittu
Huoneistot ja pohjakuvat: Joupintie 2, Kerrostalo, Piharakennus
Lisää hakemukselle kaikki haluamasi asuntotyypit. Mahdollisuutesi asunnon saamiseksi paranevat, kun voimme tarjota sinulle kaikkia valitsemasi asuntotyypin asuntoja, jotka mahdollisesti vapautuvat myöhemmin tästä kohteesta. Olet automaattisesti näiden asuntotyyppien hakuprosessissa.
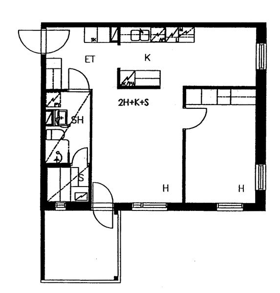
Joupintie 2 B 15
2h+k+s
, Kerrostalo
50.5 m2
1/3
Joupintie 2 B 15
2h+k+s
, Kerrostalo
50.5 m2
Kerros 1/3
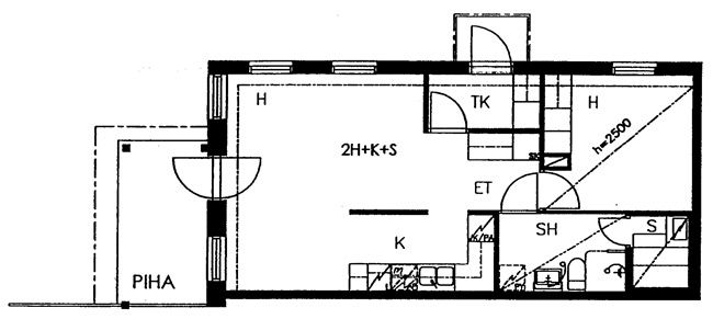
Joupintie 2 E 29
2h+k+s
, Kerrostalo
51.5 m2
1/3
Joupintie 2 E 29
2h+k+s
, Kerrostalo
51.5 m2
Kerros 1/3
Joupintie 2 E 37
2h+k+s
, Kerrostalo
51.5 m2
3/3
Joupintie 2 E 37
2h+k+s
, Kerrostalo
51.5 m2
Kerros 3/3
Joupintie 2 E 33
2h+k+s
, Kerrostalo
51.5 m2
2/3
Joupintie 2 E 33
2h+k+s
, Kerrostalo
51.5 m2
Kerros 2/3
Joupintie 2 B 10
2h+k+s
, Kerrostalo
51.5 m2
2/3
Joupintie 2 B 10
2h+k+s
, Kerrostalo
51.5 m2
Kerros 2/3
Joupintie 2 B 13
2h+k+s
, Kerrostalo
51.5 m2
3/3
Joupintie 2 B 13
2h+k+s
, Kerrostalo
51.5 m2
Kerros 3/3
Joupintie 2 B 7
2h+k+s
, Kerrostalo
51.5 m2
1/3
Joupintie 2 B 7
2h+k+s
, Kerrostalo
51.5 m2
Kerros 1/3
Joupintie 2 E 31
2h+k+s
, Kerrostalo
54.5 m2
2/3
Joupintie 2 E 31
2h+k+s
, Kerrostalo
54.5 m2
Kerros 2/3
Joupintie 2 E 35
2h+k+s
, Kerrostalo
54.5 m2
3/3
Joupintie 2 E 35
2h+k+s
, Kerrostalo
54.5 m2
Kerros 3/3
Joupintie 2 E 30
2h+k+s
, Kerrostalo
55.5 m2
1/3
Joupintie 2 E 30
2h+k+s
, Kerrostalo
55.5 m2
Kerros 1/3
Joupintie 2 E 32
2h+k+s
, Kerrostalo
55.5 m2
2/3
Joupintie 2 E 32
2h+k+s
, Kerrostalo
55.5 m2
Kerros 2/3
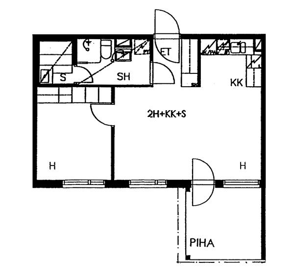
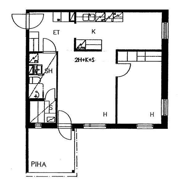
Joupintie 2 B 16
2h+kk+s
, Kerrostalo
34 m2
1/3
Joupintie 2 B 16
2h+kk+s
, Kerrostalo
34 m2
Kerros 1/3
Joupintie 2 A 2
2h+kk+s
, Kerrostalo
44.5 m2
2/3
Joupintie 2 A 2
2h+kk+s
, Kerrostalo
44.5 m2
Kerros 2/3
Joupintie 2 A 5
2h+kk+s
, Kerrostalo
44.5 m2
3/3
Joupintie 2 A 5
2h+kk+s
, Kerrostalo
44.5 m2
Kerros 3/3
Joupintie 2 C 21
2h+kk+s
, Kerrostalo
44.5 m2
2/2
Joupintie 2 C 21
2h+kk+s
, Kerrostalo
44.5 m2
Kerros 2/2
Joupintie 2 C 18
2h+kk+s
, Kerrostalo
44.5 m2
1/2
Joupintie 2 C 18
2h+kk+s
, Kerrostalo
44.5 m2
Kerros 1/2
Joupintie 2 D 24
2h+kk+s
, Kerrostalo
44.5 m2
1/2
Joupintie 2 D 24
2h+kk+s
, Kerrostalo
44.5 m2
Kerros 1/2
Joupintie 2 D 27
2h+kk+s
, Kerrostalo
44.5 m2
2/2
Joupintie 2 D 27
2h+kk+s
, Kerrostalo
44.5 m2
Kerros 2/2
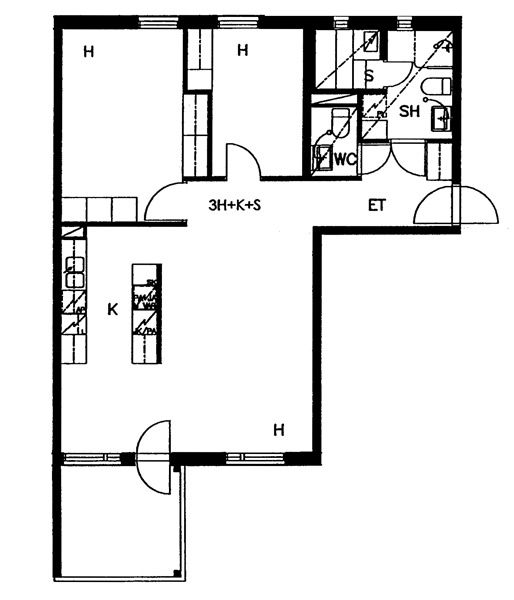
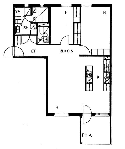
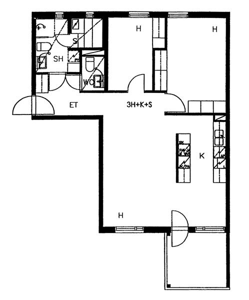
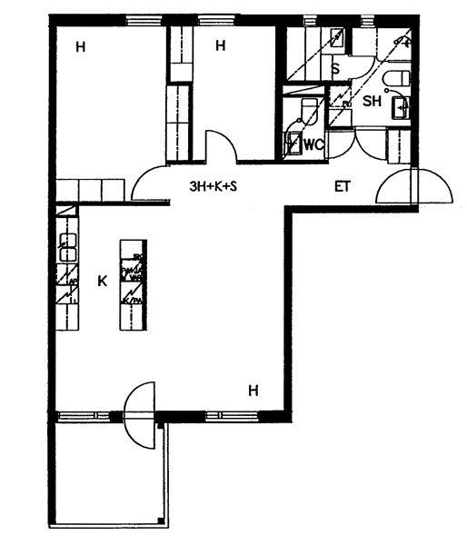
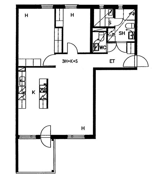
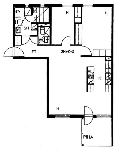
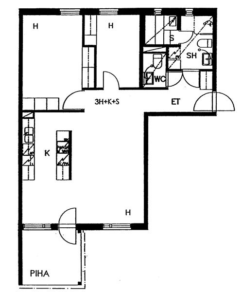
Joupintie 2 B 8
3h+k+s
, Kerrostalo
76 m2
1/3
Joupintie 2 B 8
3h+k+s
, Kerrostalo
76 m2
Kerros 1/3
Joupintie 2 B 12
3h+k+s
, Kerrostalo
76 m2
3/3
Joupintie 2 B 12
3h+k+s
, Kerrostalo
76 m2
Kerros 3/3
Joupintie 2 A 4
3h+k+s
, Kerrostalo
76 m2
3/3
Joupintie 2 A 4
3h+k+s
, Kerrostalo
76 m2
Kerros 3/3
Joupintie 2 A 1
3h+k+s
, Kerrostalo
76 m2
2/3
Joupintie 2 A 1
3h+k+s
, Kerrostalo
76 m2
Kerros 2/3
Joupintie 2 B 9
3h+k+s
, Kerrostalo
76 m2
2/3
Joupintie 2 B 9
3h+k+s
, Kerrostalo
76 m2
Kerros 2/3
Joupintie 2 D 25
3h+k+s
, Kerrostalo
76 m2
1/2
Joupintie 2 D 25
3h+k+s
, Kerrostalo
76 m2
Kerros 1/2
Joupintie 2 C 20
3h+k+s
, Kerrostalo
76 m2
2/2
Joupintie 2 C 20
3h+k+s
, Kerrostalo
76 m2
Kerros 2/2
Joupintie 2 D 26
3h+k+s
, Kerrostalo
76 m2
2/2
Joupintie 2 D 26
3h+k+s
, Kerrostalo
76 m2
Kerros 2/2
Joupintie 2 C 19
3h+k+s
, Kerrostalo
76 m2
1/2
Joupintie 2 C 19
3h+k+s
, Kerrostalo
76 m2
Kerros 1/2
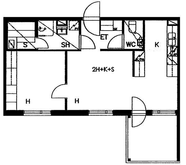
Joupintie 2 A 3
4h+k+s
, Kerrostalo
84 m2
2/3
Joupintie 2 A 3
4h+k+s
, Kerrostalo
84 m2
Kerros 2/3
Joupintie 2 A 6
4h+k+s
, Kerrostalo
84 m2
3/3
Joupintie 2 A 6
4h+k+s
, Kerrostalo
84 m2
Kerros 3/3
Joupintie 2 C 22
4h+k+s
, Kerrostalo
84 m2
2/2
Joupintie 2 C 22
4h+k+s
, Kerrostalo
84 m2
Kerros 2/2
Joupintie 2 D 23
4h+k+s
, Kerrostalo
84 m2
1/2
Joupintie 2 D 23
4h+k+s
, Kerrostalo
84 m2
Kerros 1/2
Joupintie 2 D 28
4h+k+s
, Kerrostalo
84 m2
2/2
Joupintie 2 D 28
4h+k+s
, Kerrostalo
84 m2
Kerros 2/2
Joupintie 2 C 17
4h+k+s
, Kerrostalo
84 m2
1/2
Joupintie 2 C 17
4h+k+s
, Kerrostalo
84 m2
Kerros 1/2
Joupintie 2 B 14
4h+k+s
, Kerrostalo
84.5 m2
3/3
Joupintie 2 B 14
4h+k+s
, Kerrostalo
84.5 m2
Kerros 3/3
Joupintie 2 B 11
4h+k+s
, Kerrostalo
84.5 m2
2/3
Joupintie 2 B 11
4h+k+s
, Kerrostalo
84.5 m2
Kerros 2/3
Joupintie 2 E 38
5h+k+s
, Kerrostalo
97 m2
3/3
Joupintie 2 E 38
5h+k+s
, Kerrostalo
97 m2
Kerros 3/3
Joupintie 2 E 34
5h+k+s
, Kerrostalo
97 m2
2/3
Joupintie 2 E 34
5h+k+s
, Kerrostalo
97 m2
Kerros 2/3
