Kohteen esittely
Hissillinen kerrostalokohde keskeisellä sijainnilla. Kaikissa asunnoissa on oma sauna ja parveke. Vehreä sisäpiha, jossa viihtyisä lasten leikkipaikka.
Trillapuisto leikkipaikkoineen on lähes kadun toisella puolella. Lähellä myös ruokakauppa, päiväkoti, koulu ja terveysasema. Erinomaiset liikenneyhteydet: Kilon juna-asemalle parinsadan metrin kävelymatka, bussipysäkki lähes talon edessä. Lisäksi pysäköintitalossa on Asuntosäätiölle varatut kiintiöpaikat.
Miksi Asuntosäätiö?
Me uskomme, että onnellinen koti ja laadukas asuminen kuuluvat kaikille. Emme tavoittele voittoa, vaan käytämme kaikki vastikkeista ja vuokrista saadut tulot toimintamme kehittämiseen. Jo yli 33 000 suomalaista on valinnut Asuntosäätiön tarjoaman kodin. Tiesithän, että myös lemmikit ovat tervetulleita kaikkiin koteihimme!
Rakennuksen tiedot
- Asumismuoto Asokoti
- Keskimääräinen asumisoikeusmaksu / jm² 487,79€
- Hissit 3
- Talosauna Ei
- Kuivaushuone Kyllä
- Asuntoja 62
- Asuinrakennuksia 1
- Käyttövastike / kk / jm² 13,5€
- Valmistumisvuosi 2002
- Porrashuoneet 3
- Energialuokka F2018
- Lämmitysmuoto Kauko + aurinkosähkö
- Autopaikat 56
- Laajakaista DNA Welho
- Antennijärjestelmä Kaapeli
- KaapeliTV DNA
- Kattomateriaali Pelti
- Runkomateriaali Betoni
- Lemmikit Sallittu
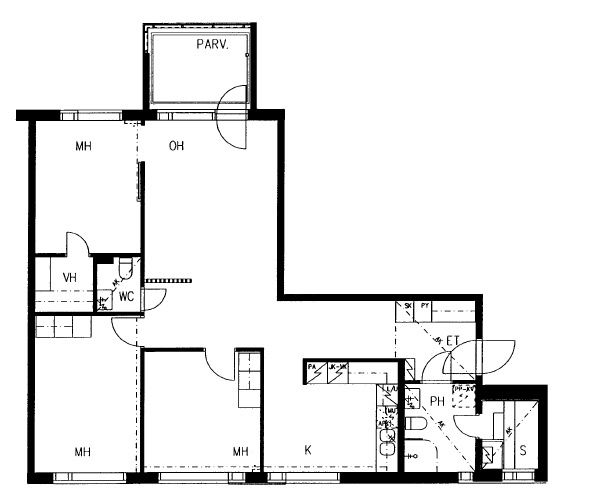
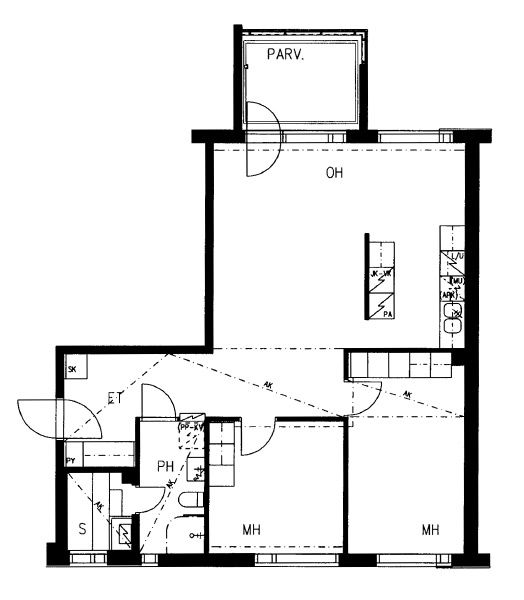
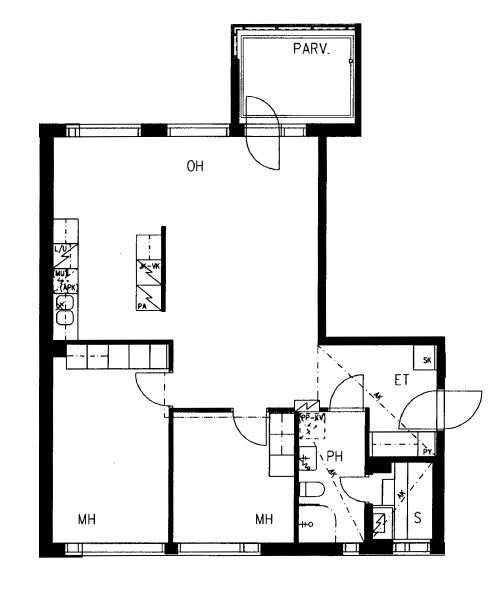
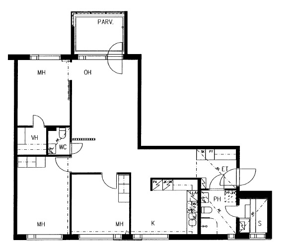
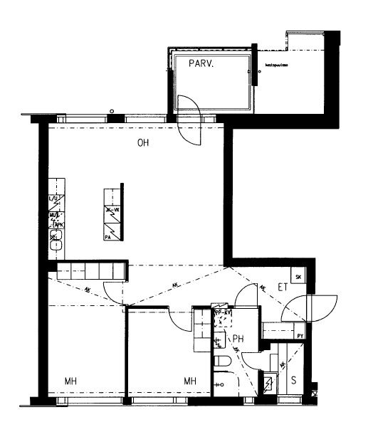
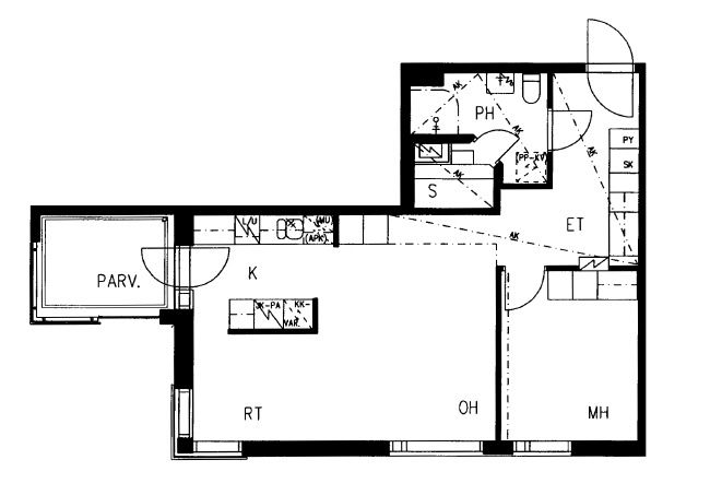
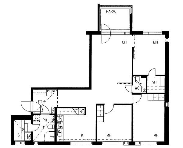
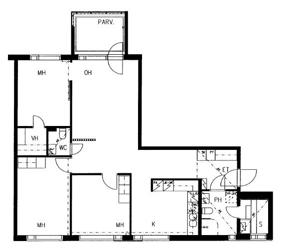
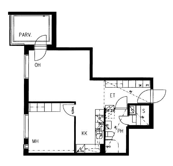
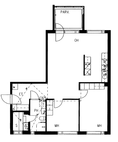
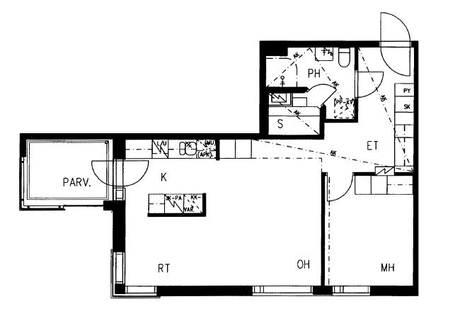
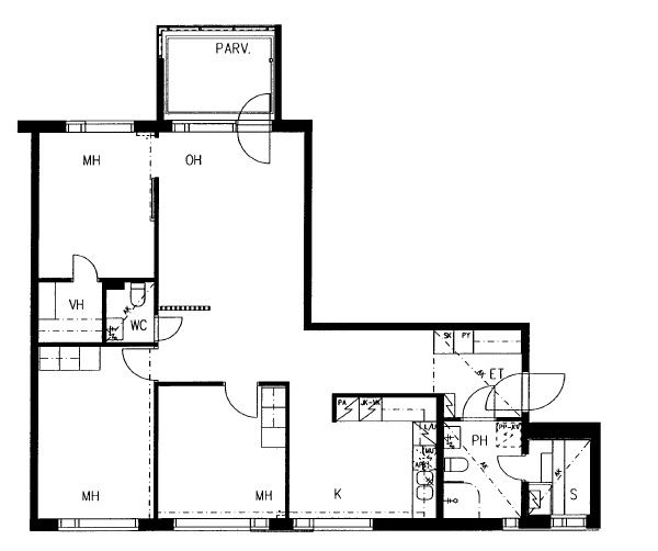
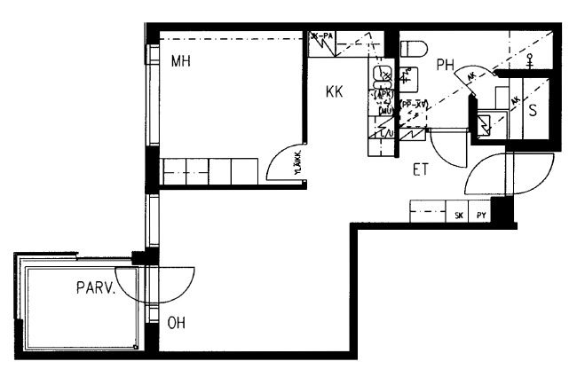
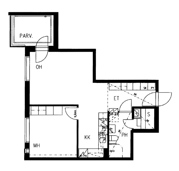
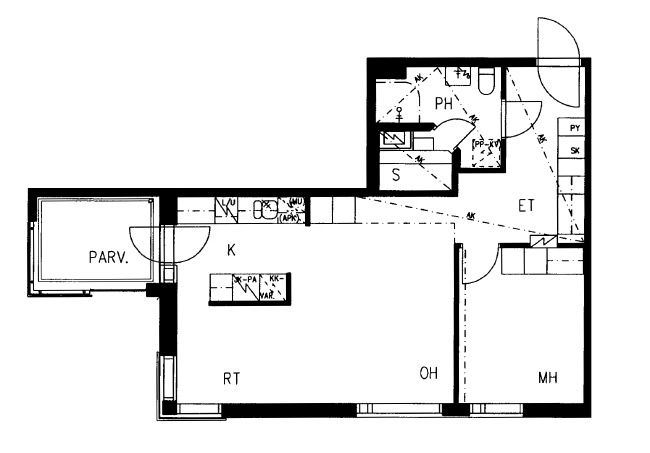
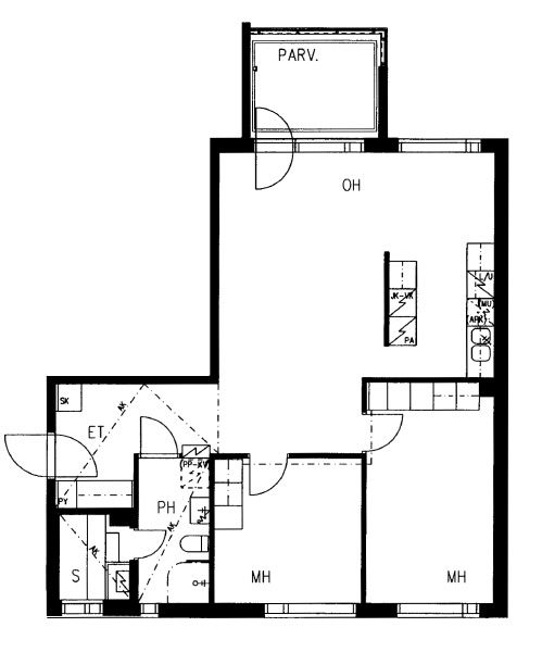
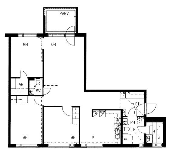
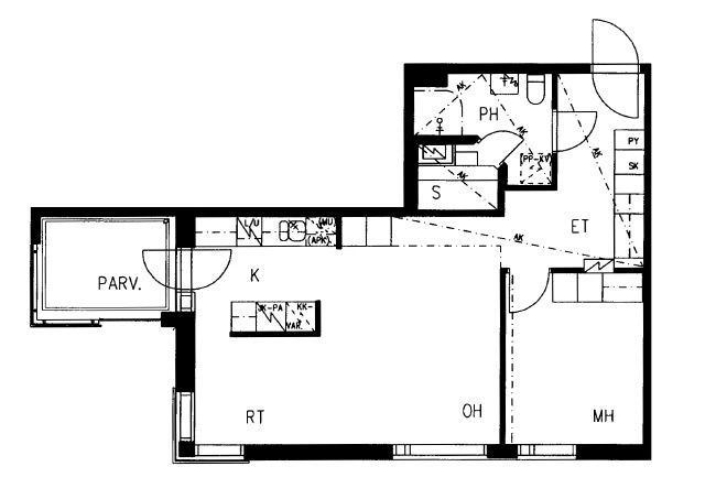
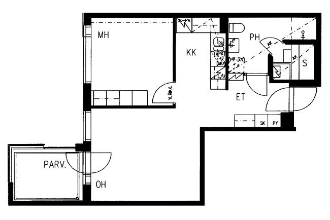
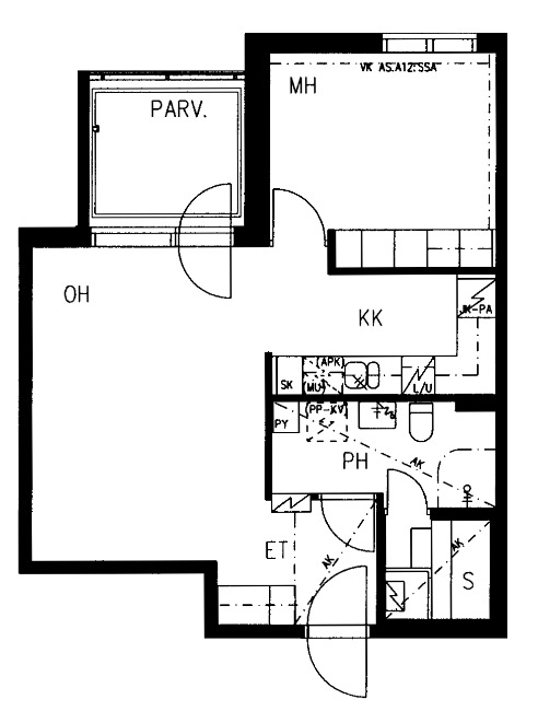
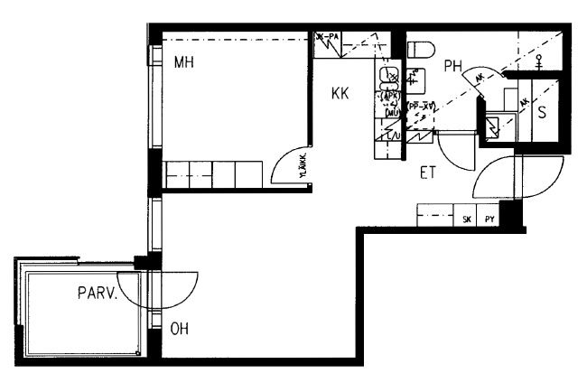
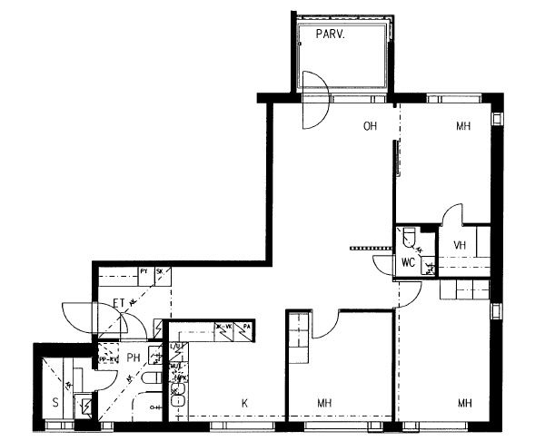
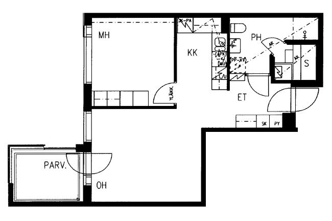
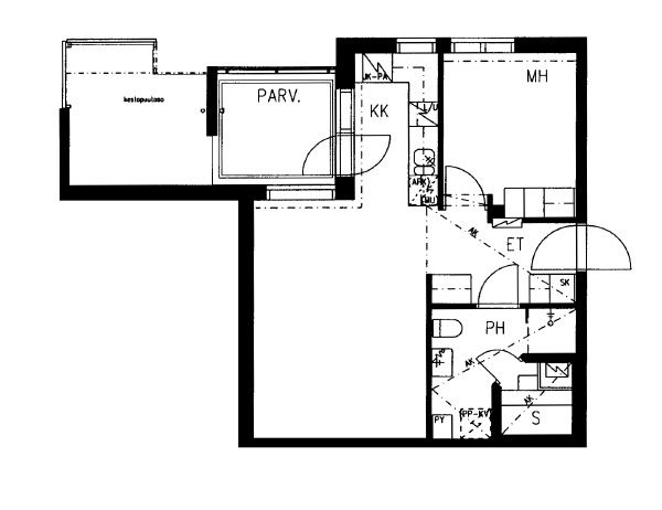
Huoneistot ja pohjakuvat: Trillakatu 3, Kerrostalo
Lisää hakemukselle kaikki haluamasi asuntotyypit. Mahdollisuutesi asunnon saamiseksi paranevat, kun voimme tarjota sinulle kaikkia valitsemasi asuntotyypin asuntoja, jotka mahdollisesti vapautuvat myöhemmin tästä kohteesta. Olet automaattisesti näiden asuntotyyppien hakuprosessissa.
Trillakatu 3 C 53
2h+k+s
, Kerrostalo
55 m2
4/5
Trillakatu 3 C 53
2h+k+s
, Kerrostalo
55 m2
Kerros 4/5
Trillakatu 3 C 41
2h+k+s
, Kerrostalo
55 m2
2/5
Trillakatu 3 C 41
2h+k+s
, Kerrostalo
55 m2
Kerros 2/5
Trillakatu 3 C 59
2h+k+s
, Kerrostalo
55 m2
5/5
Trillakatu 3 C 59
2h+k+s
, Kerrostalo
55 m2
Kerros 5/5
Trillakatu 3 C 47
2h+k+s
, Kerrostalo
55 m2
3/5
Trillakatu 3 C 47
2h+k+s
, Kerrostalo
55 m2
Kerros 3/5
Trillakatu 3 B 20
2h+k+s
, Kerrostalo
58 m2
1/5
Trillakatu 3 B 20
2h+k+s
, Kerrostalo
58 m2
Kerros 1/5
Trillakatu 3 B 35
2h+k+s
, Kerrostalo
60 m2
5/5
Trillakatu 3 B 35
2h+k+s
, Kerrostalo
60 m2
Kerros 5/5
Trillakatu 3 B 31
2h+k+s
, Kerrostalo
60 m2
4/5
Trillakatu 3 B 31
2h+k+s
, Kerrostalo
60 m2
Kerros 4/5
Trillakatu 3 A 5
2h+k+s
, Kerrostalo
60 m2
2/5
Trillakatu 3 A 5
2h+k+s
, Kerrostalo
60 m2
Kerros 2/5
Trillakatu 3 A 9
2h+k+s
, Kerrostalo
60 m2
3/5
Trillakatu 3 A 9
2h+k+s
, Kerrostalo
60 m2
Kerros 3/5
Trillakatu 3 B 23
2h+k+s
, Kerrostalo
60 m2
2/5
Trillakatu 3 B 23
2h+k+s
, Kerrostalo
60 m2
Kerros 2/5
Trillakatu 3 A 13
2h+k+s
, Kerrostalo
60 m2
4/5
Trillakatu 3 A 13
2h+k+s
, Kerrostalo
60 m2
Kerros 4/5
Trillakatu 3 A 17
2h+k+s
, Kerrostalo
60 m2
5/5
Trillakatu 3 A 17
2h+k+s
, Kerrostalo
60 m2
Kerros 5/5
Trillakatu 3 B 27
2h+k+s
, Kerrostalo
60 m2
3/5
Trillakatu 3 B 27
2h+k+s
, Kerrostalo
60 m2
Kerros 3/5
Trillakatu 3 B 32
2h+k+s
, Kerrostalo
61 m2
4/5
Trillakatu 3 B 32
2h+k+s
, Kerrostalo
61 m2
Kerros 4/5
Trillakatu 3 B 36
2h+k+s
, Kerrostalo
61 m2
5/5
Trillakatu 3 B 36
2h+k+s
, Kerrostalo
61 m2
Kerros 5/5
Trillakatu 3 B 28
2h+k+s
, Kerrostalo
61 m2
3/5
Trillakatu 3 B 28
2h+k+s
, Kerrostalo
61 m2
Kerros 3/5
Trillakatu 3 B 24
2h+k+s
, Kerrostalo
61 m2
2/5
Trillakatu 3 B 24
2h+k+s
, Kerrostalo
61 m2
Kerros 2/5
Trillakatu 3 C 58
2h+kk+s
, Kerrostalo
45 m2
5/5
Trillakatu 3 C 58
2h+kk+s
, Kerrostalo
45 m2
Kerros 5/5
Trillakatu 3 C 46
2h+kk+s
, Kerrostalo
45 m2
3/5
Trillakatu 3 C 46
2h+kk+s
, Kerrostalo
45 m2
Kerros 3/5
Trillakatu 3 C 52
2h+kk+s
, Kerrostalo
45 m2
4/5
Trillakatu 3 C 52
2h+kk+s
, Kerrostalo
45 m2
Kerros 4/5
Trillakatu 3 C 40
2h+kk+s
, Kerrostalo
45 m2
2/5
Trillakatu 3 C 40
2h+kk+s
, Kerrostalo
45 m2
Kerros 2/5
Trillakatu 3 B 19
2h+kk+s
, Kerrostalo
45 m2
1/5
Trillakatu 3 B 19
2h+kk+s
, Kerrostalo
45 m2
Kerros 1/5
Trillakatu 3 C 54
2h+kk+s
, Kerrostalo
48 m2
4/5
Trillakatu 3 C 54
2h+kk+s
, Kerrostalo
48 m2
Kerros 4/5
Trillakatu 3 C 42
2h+kk+s
, Kerrostalo
48 m2
2/5
Trillakatu 3 C 42
2h+kk+s
, Kerrostalo
48 m2
Kerros 2/5
Trillakatu 3 C 48
2h+kk+s
, Kerrostalo
48 m2
3/5
Trillakatu 3 C 48
2h+kk+s
, Kerrostalo
48 m2
Kerros 3/5
Trillakatu 3 C 60
2h+kk+s
, Kerrostalo
48 m2
5/5
Trillakatu 3 C 60
2h+kk+s
, Kerrostalo
48 m2
Kerros 5/5
Trillakatu 3 C 61
2h+kk+s
, Kerrostalo
48.5 m2
5/5
Trillakatu 3 C 61
2h+kk+s
, Kerrostalo
48.5 m2
Kerros 5/5
Trillakatu 3 C 49
2h+kk+s
, Kerrostalo
48.5 m2
3/5
Trillakatu 3 C 49
2h+kk+s
, Kerrostalo
48.5 m2
Kerros 3/5
Trillakatu 3 C 55
2h+kk+s
, Kerrostalo
48.5 m2
4/5
Trillakatu 3 C 55
2h+kk+s
, Kerrostalo
48.5 m2
Kerros 4/5
Trillakatu 3 C 43
2h+kk+s
, Kerrostalo
48.5 m2
2/5
Trillakatu 3 C 43
2h+kk+s
, Kerrostalo
48.5 m2
Kerros 2/5
Trillakatu 3 A 16
2h+kk+s
, Kerrostalo
49 m2
5/5
Trillakatu 3 A 16
2h+kk+s
, Kerrostalo
49 m2
Kerros 5/5
Trillakatu 3 A 4
2h+kk+s
, Kerrostalo
49 m2
2/5
Trillakatu 3 A 4
2h+kk+s
, Kerrostalo
49 m2
Kerros 2/5
Trillakatu 3 A 12
2h+kk+s
, Kerrostalo
49 m2
4/5
Trillakatu 3 A 12
2h+kk+s
, Kerrostalo
49 m2
Kerros 4/5
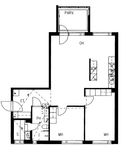
Trillakatu 3 C 62
3h+k+s
, Kerrostalo
63.5 m2
5/5
Trillakatu 3 C 62
3h+k+s
, Kerrostalo
63.5 m2
Kerros 5/5
Trillakatu 3 C 56
3h+k+s
, Kerrostalo
63.5 m2
4/5
Trillakatu 3 C 56
3h+k+s
, Kerrostalo
63.5 m2
Kerros 4/5
Trillakatu 3 C 44
3h+k+s
, Kerrostalo
63.5 m2
2/5
Trillakatu 3 C 44
3h+k+s
, Kerrostalo
63.5 m2
Kerros 2/5
Trillakatu 3 C 50
3h+k+s
, Kerrostalo
63.5 m2
3/5
Trillakatu 3 C 50
3h+k+s
, Kerrostalo
63.5 m2
Kerros 3/5
Trillakatu 3 A 2
3h+k+s
, Kerrostalo
74.5 m2
1/5
Trillakatu 3 A 2
3h+k+s
, Kerrostalo
74.5 m2
Kerros 1/5
Trillakatu 3 B 34
3h+k+s
, Kerrostalo
75 m2
5/5
Trillakatu 3 B 34
3h+k+s
, Kerrostalo
75 m2
Kerros 5/5
Trillakatu 3 B 30
3h+k+s
, Kerrostalo
75 m2
4/5
Trillakatu 3 B 30
3h+k+s
, Kerrostalo
75 m2
Kerros 4/5
Trillakatu 3 B 22
3h+k+s
, Kerrostalo
75 m2
2/5
Trillakatu 3 B 22
3h+k+s
, Kerrostalo
75 m2
Kerros 2/5
Trillakatu 3 B 21
3h+k+s
, Kerrostalo
75 m2
1/5
Trillakatu 3 B 21
3h+k+s
, Kerrostalo
75 m2
Kerros 1/5
Trillakatu 3 B 26
3h+k+s
, Kerrostalo
75 m2
3/5
Trillakatu 3 B 26
3h+k+s
, Kerrostalo
75 m2
Kerros 3/5
Trillakatu 3 A 11
3h+k+s
, Kerrostalo
75.5 m2
4/5
Trillakatu 3 A 11
3h+k+s
, Kerrostalo
75.5 m2
Kerros 4/5
Trillakatu 3 A 7
3h+k+s
, Kerrostalo
75.5 m2
3/5
Trillakatu 3 A 7
3h+k+s
, Kerrostalo
75.5 m2
Kerros 3/5
Trillakatu 3 A 15
3h+k+s
, Kerrostalo
75.5 m2
5/5
Trillakatu 3 A 15
3h+k+s
, Kerrostalo
75.5 m2
Kerros 5/5
Trillakatu 3 A 3
3h+k+s
, Kerrostalo
75.5 m2
2/5
Trillakatu 3 A 3
3h+k+s
, Kerrostalo
75.5 m2
Kerros 2/5
Trillakatu 3 C 38
3h+k+s
, Kerrostalo
76 m2
1/5
Trillakatu 3 C 38
3h+k+s
, Kerrostalo
76 m2
Kerros 1/5
Trillakatu 3 C 57
3h+kk+s
, Kerrostalo
66 m2
5/5
Trillakatu 3 C 57
3h+kk+s
, Kerrostalo
66 m2
Kerros 5/5
Trillakatu 3 C 51
3h+kk+s
, Kerrostalo
66 m2
4/5
Trillakatu 3 C 51
3h+kk+s
, Kerrostalo
66 m2
Kerros 4/5
Trillakatu 3 C 39
3h+kk+s
, Kerrostalo
66 m2
2/5
Trillakatu 3 C 39
3h+kk+s
, Kerrostalo
66 m2
Kerros 2/5
Trillakatu 3 C 45
3h+kk+s
, Kerrostalo
66 m2
3/5
Trillakatu 3 C 45
3h+kk+s
, Kerrostalo
66 m2
Kerros 3/5
Trillakatu 3 A 1
4h+k+s
, Kerrostalo
90 m2
1/5
Trillakatu 3 A 1
4h+k+s
, Kerrostalo
90 m2
Kerros 1/5
Trillakatu 3 A 6
4h+k+s
, Kerrostalo
93 m2
2/5
Trillakatu 3 A 6
4h+k+s
, Kerrostalo
93 m2
Kerros 2/5
Trillakatu 3 A 14
4h+k+s
, Kerrostalo
93 m2
Kerros 4/5
Trillakatu 3 A 18
4h+k+s
, Kerrostalo
93 m2
5/5
Trillakatu 3 A 18
4h+k+s
, Kerrostalo
93 m2
Kerros 5/5
Trillakatu 3 B 37
4h+k+s
, Kerrostalo
94 m2
5/5
Trillakatu 3 B 37
4h+k+s
, Kerrostalo
94 m2
Kerros 5/5
Trillakatu 3 B 25
4h+k+s
, Kerrostalo
94 m2
2/5
Trillakatu 3 B 25
4h+k+s
, Kerrostalo
94 m2
Kerros 2/5
Trillakatu 3 B 29
4h+k+s
, Kerrostalo
94 m2
3/5
Trillakatu 3 B 29
4h+k+s
, Kerrostalo
94 m2
Kerros 3/5
Trillakatu 3 B 33
4h+k+s
, Kerrostalo
94 m2
4/5
Trillakatu 3 B 33
4h+k+s
, Kerrostalo
94 m2
Kerros 4/5

