Kohteen esittely
Viihtyisä rivitalokohde Espoon Kivenlahdessa. Kohde koostuu kuudesta talosta. Iso, luonnonmukainen talojen suojaan jäävä sisäpiha.
Lähellä on koulut, ruokakaupat ja kaksi metroasemaa. Hyvät kulkuyhteydet myös omalla autolla Länsiväylää pitkin. Kesällä merenlahden rantaraitit ja uimarannat kutsuvat viettämään aikaa ulkona.
Miksi Asuntosäätiö?
Me uskomme, että onnellinen koti ja laadukas asuminen kuuluvat kaikille. Emme tavoittele voittoa, vaan käytämme kaikki vastikkeista ja vuokrista saadut tulot toimintamme kehittämiseen. Jo yli 33 000 suomalaista on valinnut Asuntosäätiön tarjoaman kodin. Tiesithän, että myös lemmikit ovat tervetulleita kaikkiin koteihimme!
Rakennuksen tiedot
- Asumismuoto Asokoti
- Keskimääräinen asumisoikeusmaksu / jm² 379,96€
- Hissit Ei
- Talosauna Ei
- Asuntoja 25
- Asuinrakennuksia 6
- Käyttövastike / kk / jm² 12,65€
- Valmistumisvuosi 1997
- Energialuokka D, C
- Lämmitysmuoto Kauko
- Autopaikat 15
- Laajakaista DNA Welho
- Antennijärjestelmä Kaapeli
- KaapeliTV DNA
- Kattomateriaali Huopa
- Runkomateriaali Betoni
- Lemmikit Sallittu
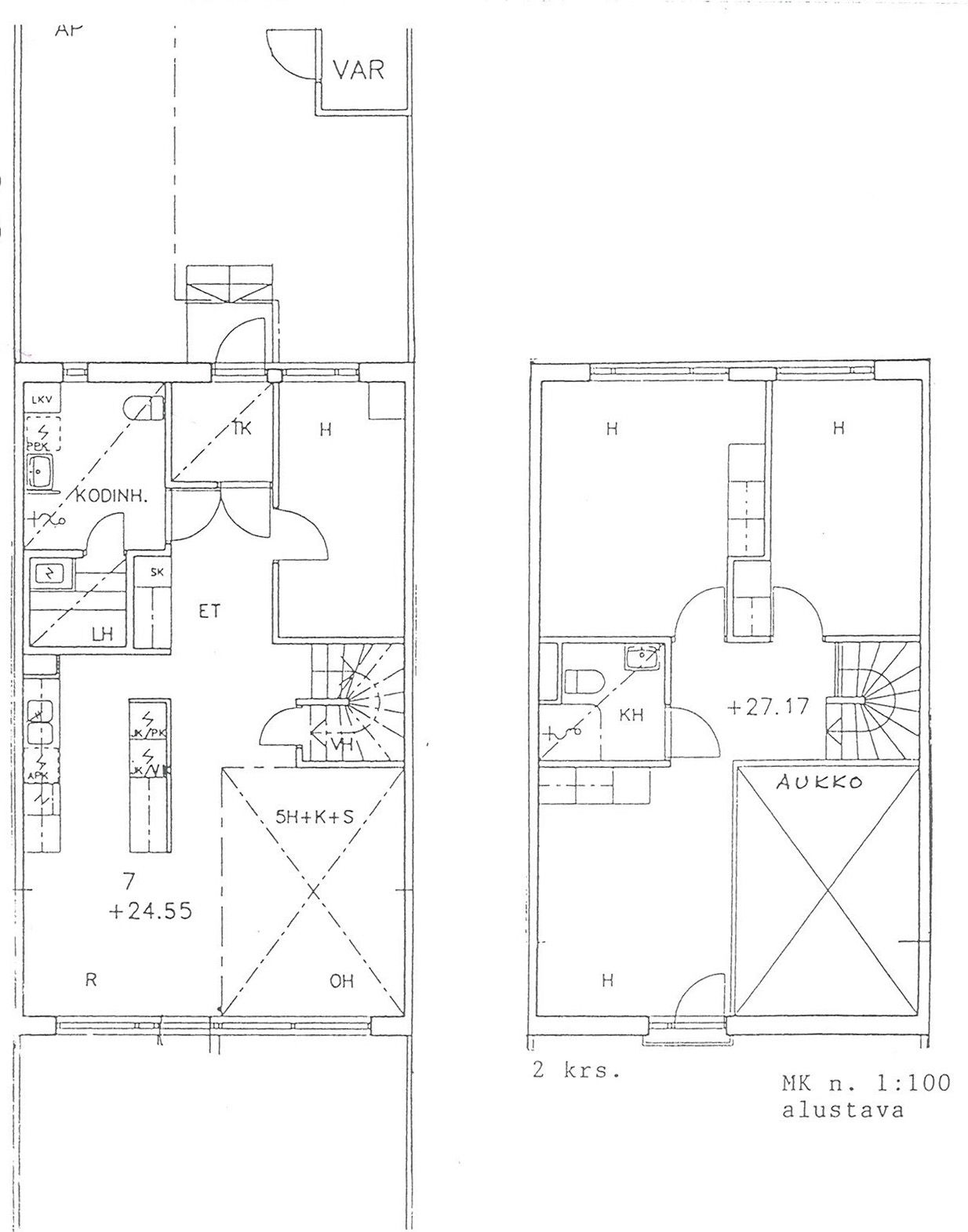
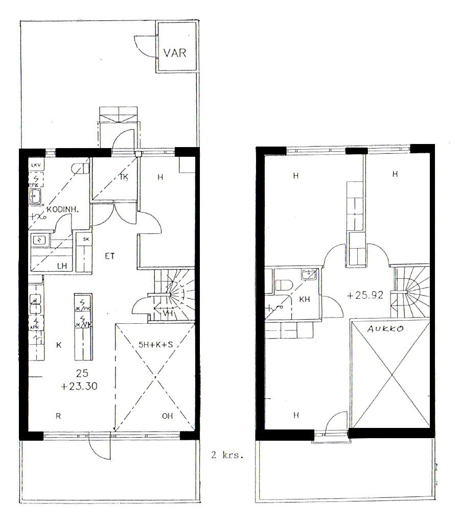
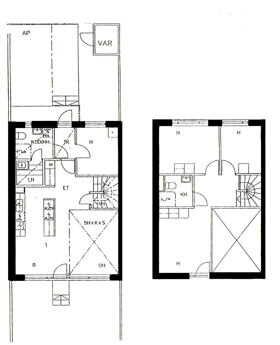
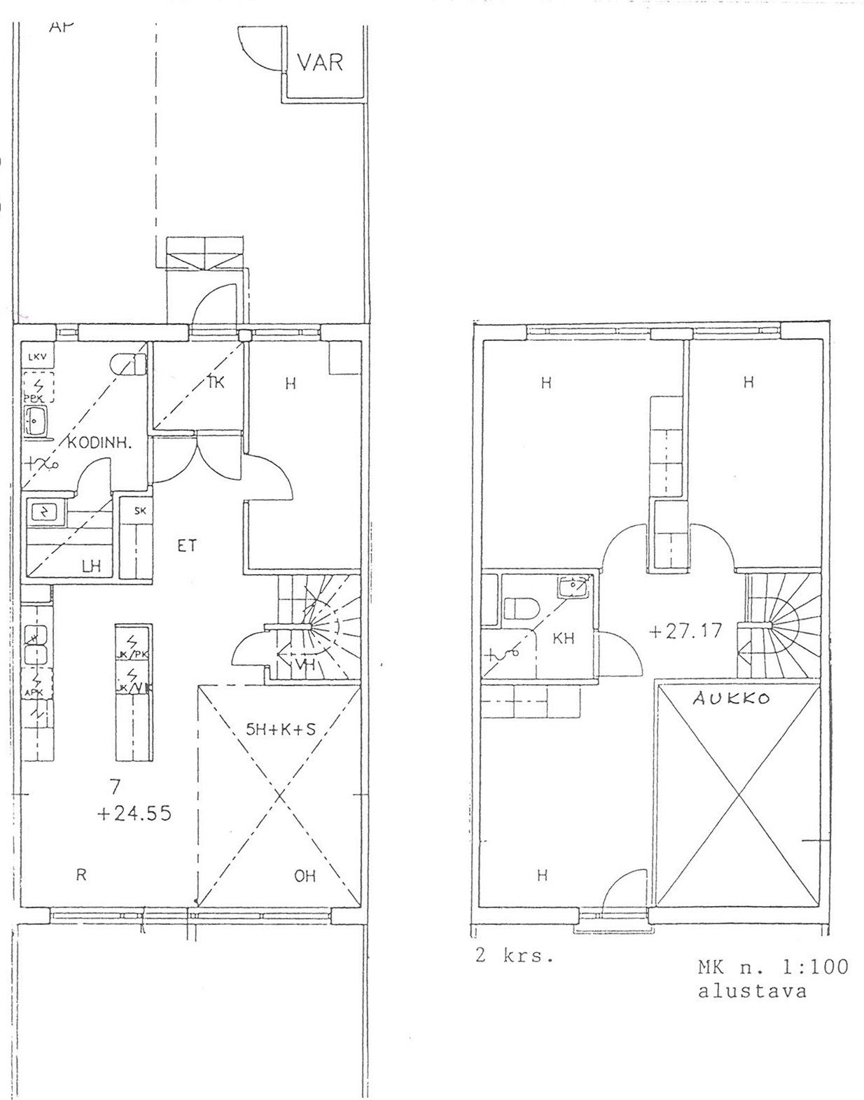
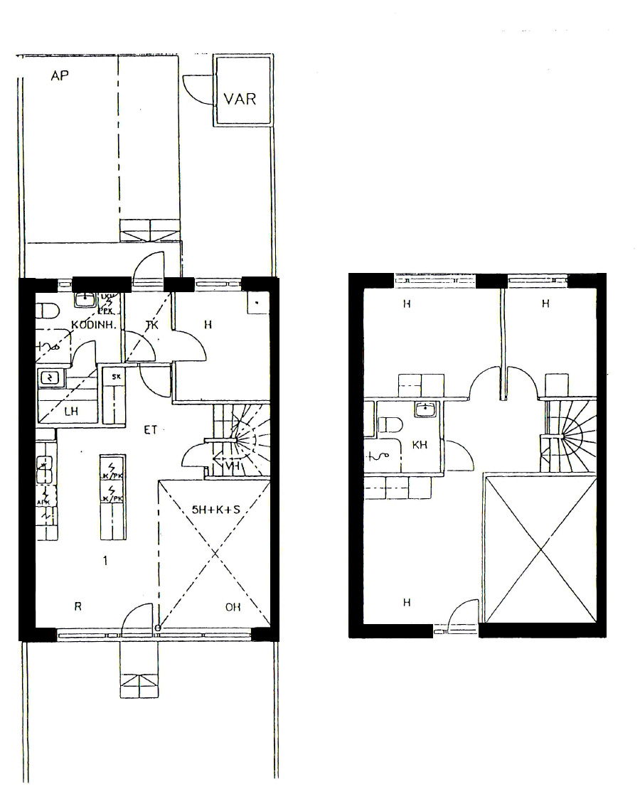
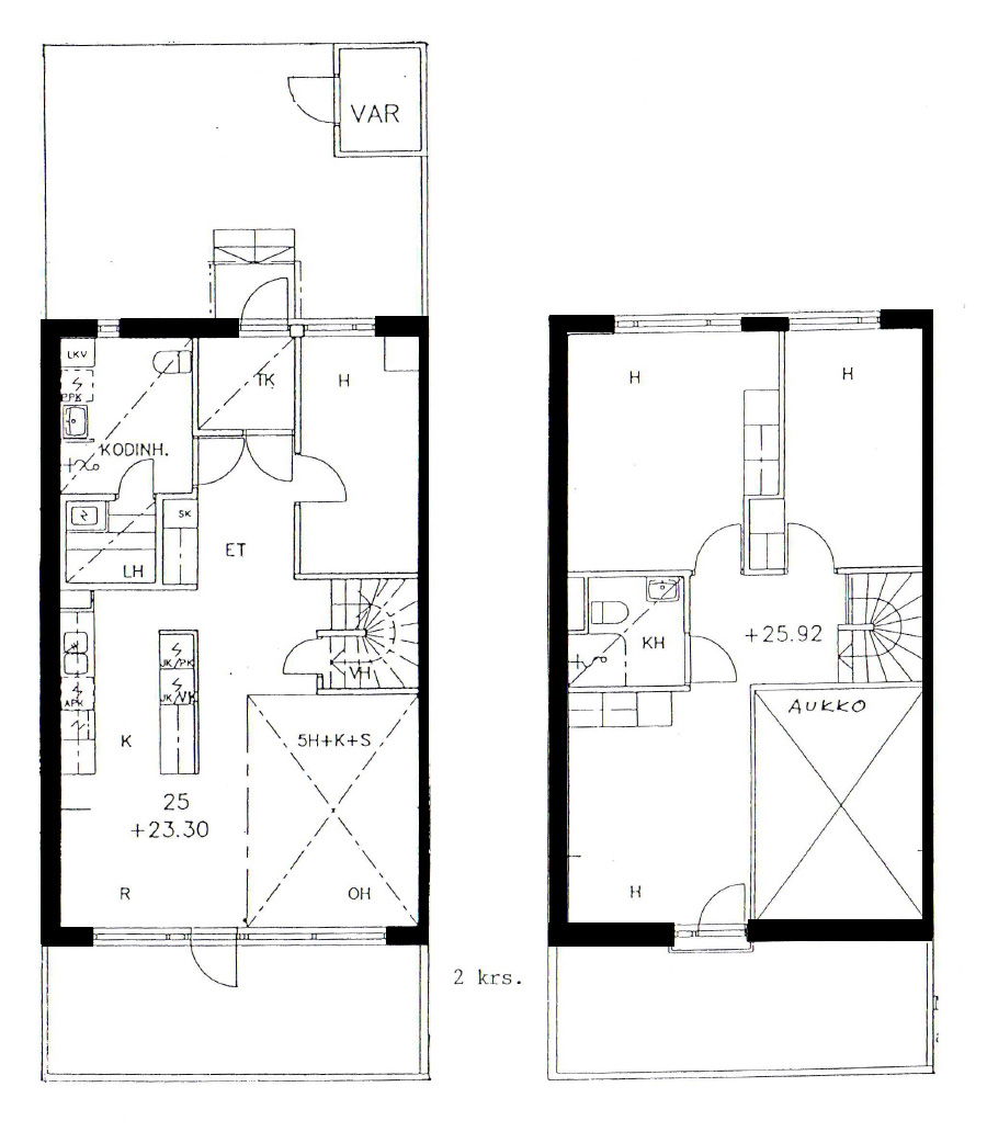
Huoneistot ja pohjakuvat: Tyrskykuja 2, Rivitalo, Piharakennus
Lisää hakemukselle kaikki haluamasi asuntotyypit. Mahdollisuutesi asunnon saamiseksi paranevat, kun voimme tarjota sinulle kaikkia valitsemasi asuntotyypin asuntoja, jotka mahdollisesti vapautuvat myöhemmin tästä kohteesta. Olet automaattisesti näiden asuntotyyppien hakuprosessissa.
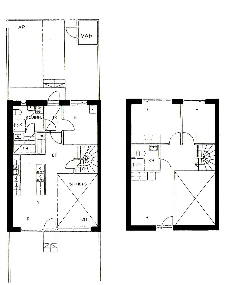
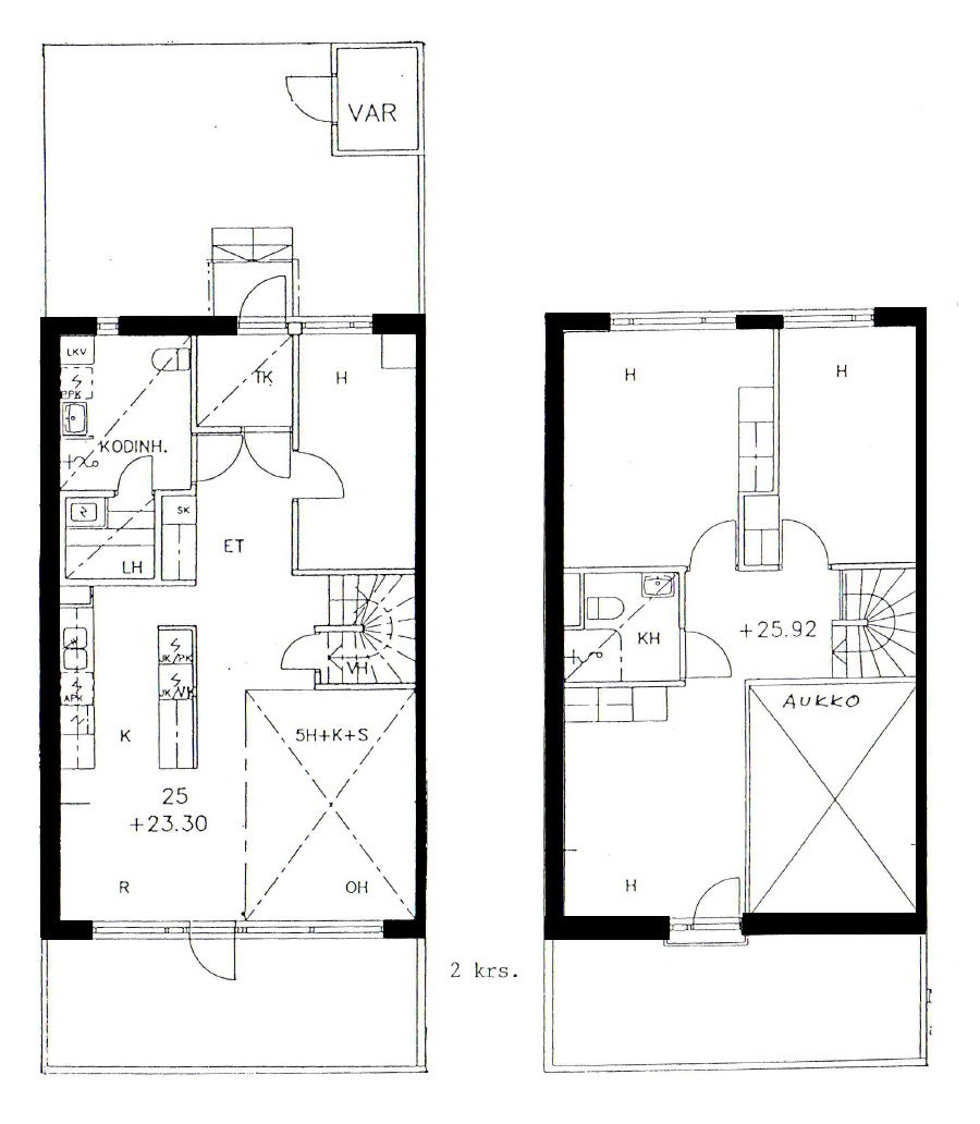
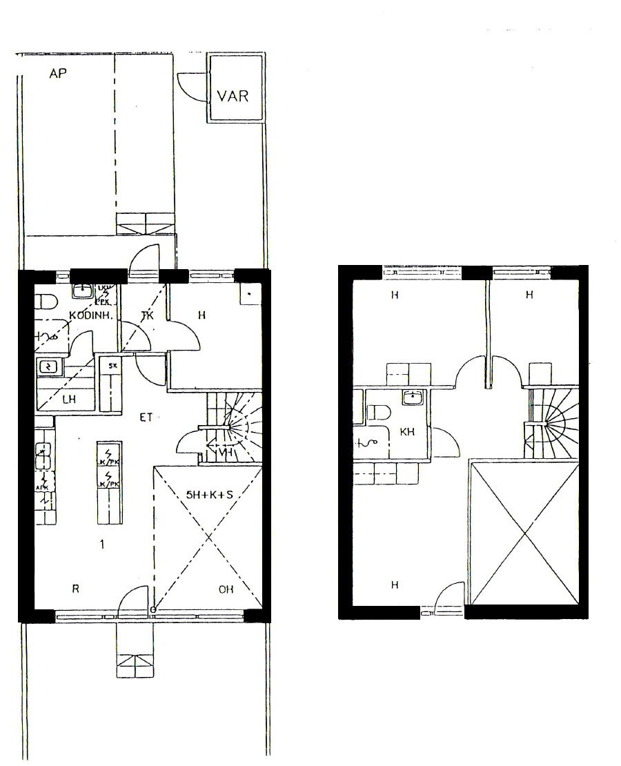
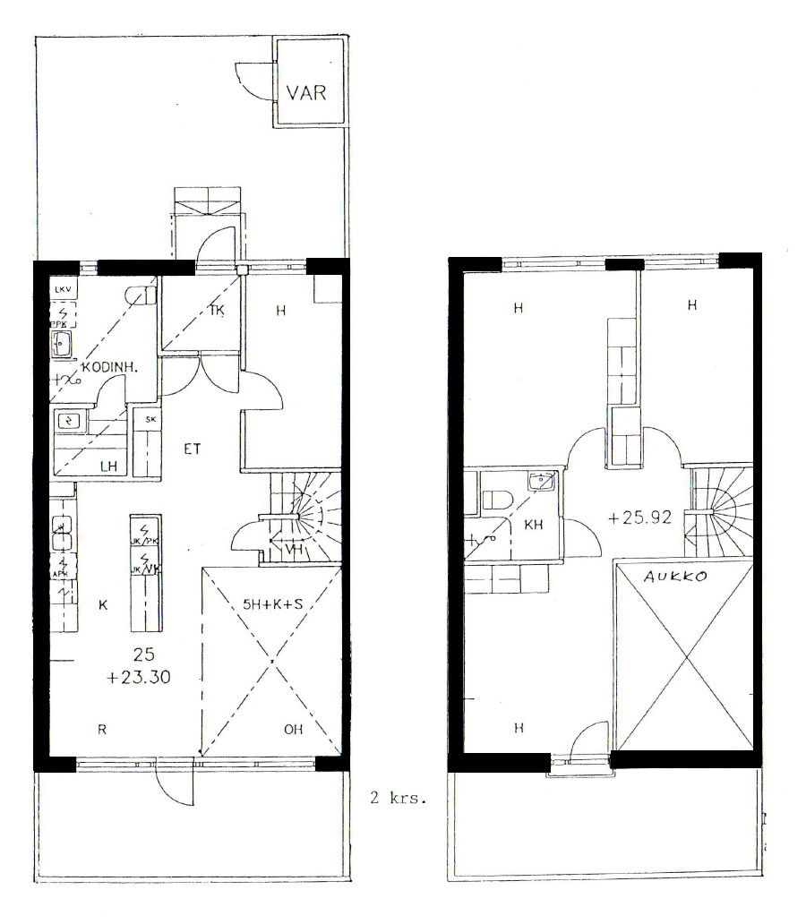
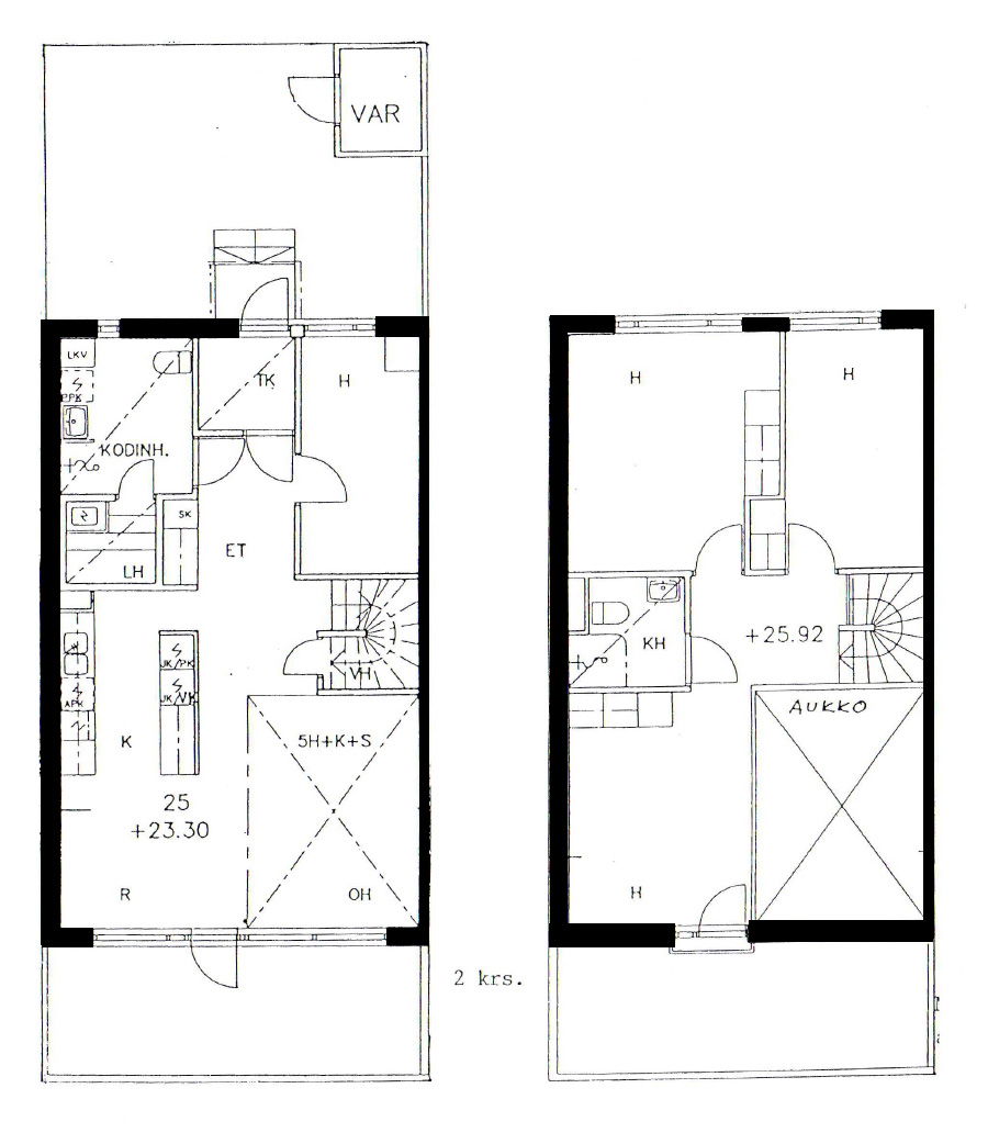
Tyrskykuja 2 C 9
5h+k+s
, Rivitalo
96.5 m2
1/2
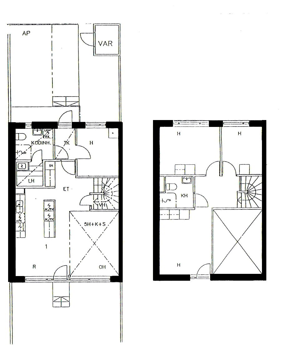
Tyrskykuja 2 C 9
5h+k+s
, Rivitalo
96.5 m2
Kerros 1/2
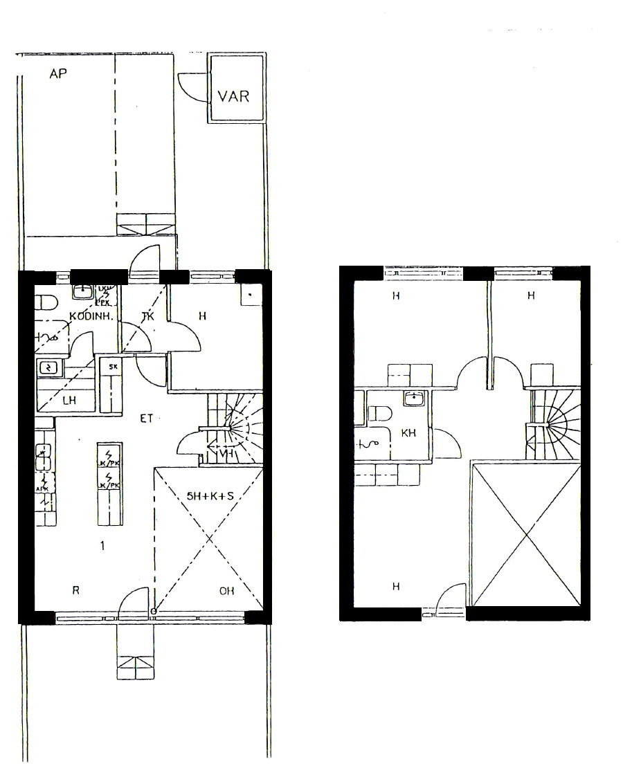
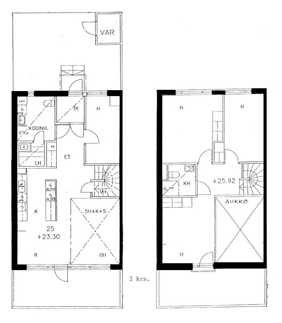
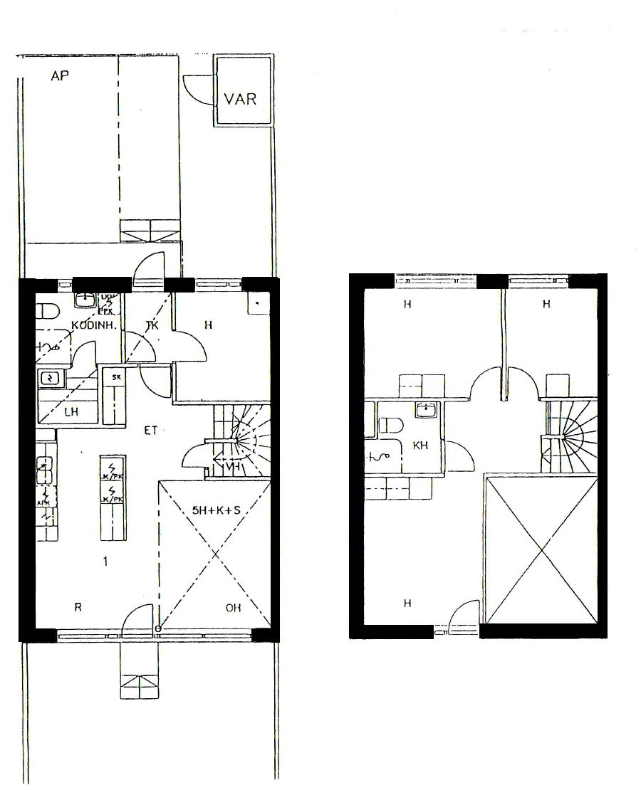
Tyrskykuja 2 C 10
5h+k+s
, Rivitalo
96.5 m2
1/2
Tyrskykuja 2 C 10
5h+k+s
, Rivitalo
96.5 m2
Kerros 1/2
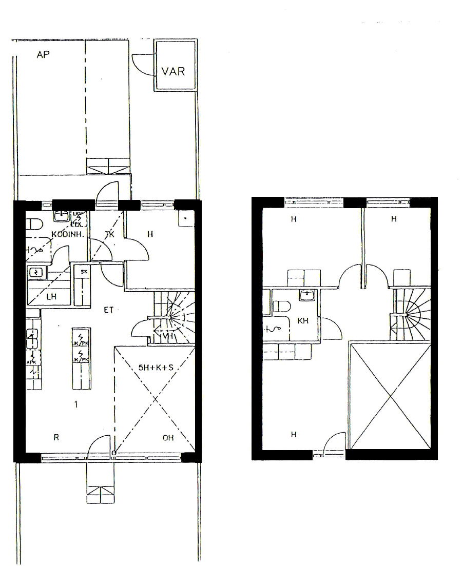
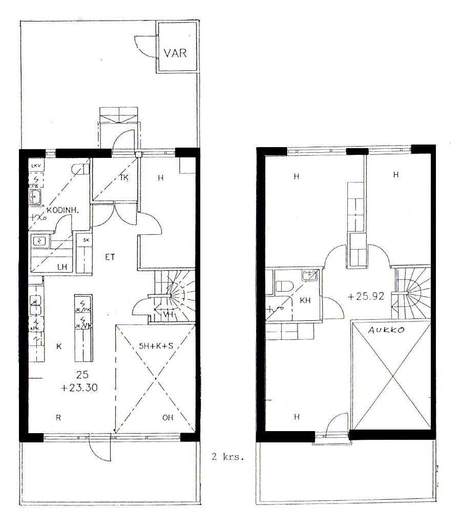
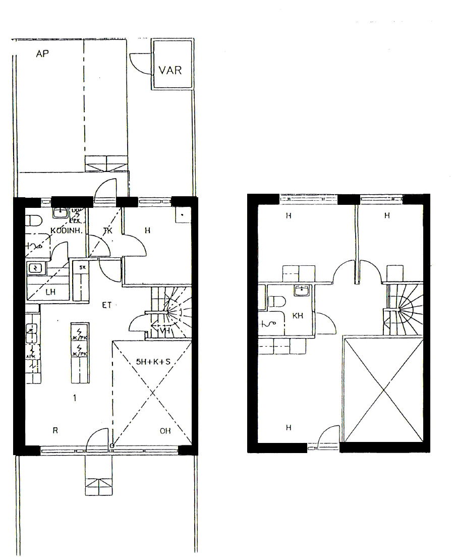
Tyrskykuja 2 C 12
5h+k+s
, Rivitalo
96.5 m2
1/2
Tyrskykuja 2 C 12
5h+k+s
, Rivitalo
96.5 m2
Kerros 1/2
Tyrskykuja 2 C 11
5h+k+s
, Rivitalo
96.5 m2
1/2
Tyrskykuja 2 C 11
5h+k+s
, Rivitalo
96.5 m2
Kerros 1/2
Tyrskykuja 2 E 18
5h+k+s
, Rivitalo
96.5 m2
1/2
Tyrskykuja 2 E 18
5h+k+s
, Rivitalo
96.5 m2
Kerros 1/2
Tyrskykuja 2 E 20
5h+k+s
, Rivitalo
96.5 m2
1/2
Tyrskykuja 2 E 20
5h+k+s
, Rivitalo
96.5 m2
Kerros 1/2
Tyrskykuja 2 E 19
5h+k+s
, Rivitalo
96.5 m2
1/2
Tyrskykuja 2 E 19
5h+k+s
, Rivitalo
96.5 m2
Kerros 1/2
Tyrskykuja 2 E 17
5h+k+s
, Rivitalo
96.5 m2
1/2
Tyrskykuja 2 E 17
5h+k+s
, Rivitalo
96.5 m2
Kerros 1/2
Tyrskykuja 2 A 4
5h+k+s
, Rivitalo
96.5 m2
1/2
Tyrskykuja 2 A 4
5h+k+s
, Rivitalo
96.5 m2
Kerros 1/2
Tyrskykuja 2 A 2
5h+k+s
, Rivitalo
96.5 m2
1/2
Tyrskykuja 2 A 2
5h+k+s
, Rivitalo
96.5 m2
Kerros 1/2
Tyrskykuja 2 A 1
5h+k+s
, Rivitalo
96.5 m2
1/2
Tyrskykuja 2 A 1
5h+k+s
, Rivitalo
96.5 m2
Kerros 1/2
Tyrskykuja 2 A 3
5h+k+s
, Rivitalo
96.5 m2
1/2
Tyrskykuja 2 A 3
5h+k+s
, Rivitalo
96.5 m2
Kerros 1/2
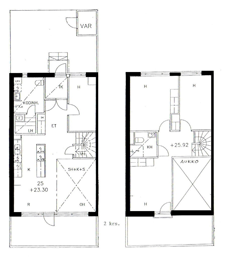
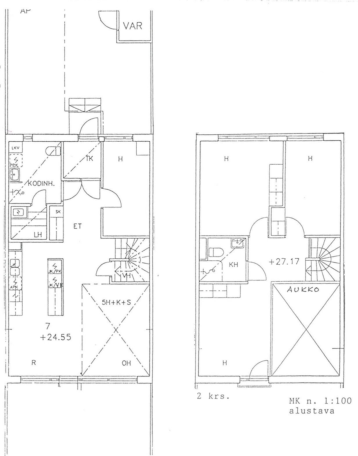
Tyrskykuja 2 B 7
5h+k+s
, Rivitalo
111.5 m2
1/2
Tyrskykuja 2 B 7
5h+k+s
, Rivitalo
111.5 m2
Kerros 1/2
Tyrskykuja 2 B 6
5h+k+s
, Rivitalo
111.5 m2
1/2
Tyrskykuja 2 B 6
5h+k+s
, Rivitalo
111.5 m2
Kerros 1/2
Tyrskykuja 2 B 5
5h+k+s
, Rivitalo
111.5 m2
1/2
Tyrskykuja 2 B 5
5h+k+s
, Rivitalo
111.5 m2
Kerros 1/2
Tyrskykuja 2 B 8
5h+k+s
, Rivitalo
111.5 m2
1/2
Tyrskykuja 2 B 8
5h+k+s
, Rivitalo
111.5 m2
Kerros 1/2
Tyrskykuja 2 F 23
5h+k+s
, Rivitalo
111.5 m2
1/2
Tyrskykuja 2 F 23
5h+k+s
, Rivitalo
111.5 m2
Kerros 1/2
Tyrskykuja 2 F 25
5h+k+s
, Rivitalo
111.5 m2
1/2
Tyrskykuja 2 F 25
5h+k+s
, Rivitalo
111.5 m2
Kerros 1/2
Tyrskykuja 2 F 21
5h+k+s
, Rivitalo
111.5 m2
Kerros 1/2
Tyrskykuja 2 F 22
5h+k+s
, Rivitalo
111.5 m2
1/2
Tyrskykuja 2 F 22
5h+k+s
, Rivitalo
111.5 m2
Kerros 1/2
Tyrskykuja 2 F 24
5h+k+s
, Rivitalo
111.5 m2
1/2
Tyrskykuja 2 F 24
5h+k+s
, Rivitalo
111.5 m2
Kerros 1/2
Tyrskykuja 2 D 13
5h+k+s
, Rivitalo
111.5 m2
1/2
Tyrskykuja 2 D 13
5h+k+s
, Rivitalo
111.5 m2
Kerros 1/2
Tyrskykuja 2 D 14
5h+k+s
, Rivitalo
111.5 m2
1/2
Tyrskykuja 2 D 14
5h+k+s
, Rivitalo
111.5 m2
Kerros 1/2
Tyrskykuja 2 D 15
5h+k+s
, Rivitalo
111.5 m2
1/2
Tyrskykuja 2 D 15
5h+k+s
, Rivitalo
111.5 m2
Kerros 1/2
Tyrskykuja 2 D 16
5h+k+s
, Rivitalo
111.5 m2
1/2
Tyrskykuja 2 D 16
5h+k+s
, Rivitalo
111.5 m2
Kerros 1/2