Kohteen esittely
Puiston vieressä sijaitseva viihtyisä kerrostalokohde Leppävaarassa. Kaikissa asunnoissa on oma sauna ja osassa asuntoja myös parveke. Kerhohuone, jossa voi järjestää esimerkiksi lasten syntymäpäiväjuhlia. Rauhallinen sisäpiha. Aivan talon edessä on myös lasten leikkipaikka.
Lähellä on neuvola, useampi päiväkoti, koulu ja kaikki kauppakeskus Sellon palvelut. Ulkoilemaan kutsuu lähellä olevat Albergan kartanon puistoalueet leikkipaikkoineen, Säterinmetsä ja Säterinniityn urheilupaikat. Kesällä uimaan pääsee Leppävaaran maauimalaan. Erinomaiset liikenneyhteydet: Bussipysäkki ja pikarautiovaunun pysäkki ovat lähellä, ja Leppävaaran asemalta kulkee junia lyhyillä vuoroväleillä. Nopeat kulkuyhteydet myös omalla autolla.
Miksi Asuntosäätiö?
Me uskomme, että onnellinen koti ja laadukas asuminen kuuluvat kaikille. Emme tavoittele voittoa, vaan käytämme kaikki vastikkeista ja vuokrista saadut tulot toimintamme kehittämiseen. Jo yli 33 000 suomalaista on valinnut Asuntosäätiön tarjoaman kodin. Tiesithän, että myös lemmikit ovat tervetulleita kaikkiin koteihimme!
Rakennuksen tiedot
- Asumismuoto Asokoti
- Keskimääräinen asumisoikeusmaksu / jm² 427,57€
- Hissit 2
- Talosauna Ei
- Pyykkitupa Kyllä
- Kuivaushuone Kyllä
- Asuntoja 54
- Asuinrakennuksia 1
- Käyttövastike / kk / jm² 16,29€
- Valmistumisvuosi 1996
- Porrashuoneet 2
- Energialuokka E
- Lämmitysmuoto Kauko
- Autopaikat 36
- Kerhohuone 1
- Laajakaista DNA Welho
- Antennijärjestelmä Kaapeli
- KaapeliTV DNA
- Kattomateriaali Huopa
- Runkomateriaali Betoni
- Lemmikit Sallittu
Huoneistot ja pohjakuvat: Albergan Esplanadi 4, Piharakennus, Kerrostalo
Lisää hakemukselle kaikki haluamasi asuntotyypit. Mahdollisuutesi asunnon saamiseksi paranevat, kun voimme tarjota sinulle kaikkia valitsemasi asuntotyypin asuntoja, jotka mahdollisesti vapautuvat myöhemmin tästä kohteesta. Olet automaattisesti näiden asuntotyyppien hakuprosessissa.
Albergan Esplanadi 4 A 1
1h+kk+s
, Kerrostalo
28 m2
2/7
Albergan Esplanadi 4 A 1
1h+kk+s
, Kerrostalo
28 m2
Kerros 2/7
Albergan Esplanadi 4 A 16
1h+kk+s
, Kerrostalo
28 m2
5/7
Albergan Esplanadi 4 A 16
1h+kk+s
, Kerrostalo
28 m2
Kerros 5/7
Albergan Esplanadi 4 A 6
1h+kk+s
, Kerrostalo
28 m2
3/7
Albergan Esplanadi 4 A 6
1h+kk+s
, Kerrostalo
28 m2
Kerros 3/7
Albergan Esplanadi 4 A 11
1h+kk+s
, Kerrostalo
28 m2
4/7
Albergan Esplanadi 4 A 11
1h+kk+s
, Kerrostalo
28 m2
Kerros 4/7
Albergan Esplanadi 4 A 21
1h+kk+s
, Kerrostalo
28 m2
6/7
Albergan Esplanadi 4 A 21
1h+kk+s
, Kerrostalo
28 m2
Kerros 6/7
Albergan Esplanadi 4 A 26
1h+kk+s
, Kerrostalo
28 m2
7/7
Albergan Esplanadi 4 A 26
1h+kk+s
, Kerrostalo
28 m2
Kerros 7/7
Albergan Esplanadi 4 A 15
2h+k+s
, Kerrostalo
60 m2
4/7
Albergan Esplanadi 4 A 15
2h+k+s
, Kerrostalo
60 m2
Kerros 4/7
Albergan Esplanadi 4 A 25
2h+k+s
, Kerrostalo
60 m2
6/7
Albergan Esplanadi 4 A 25
2h+k+s
, Kerrostalo
60 m2
Kerros 6/7
Albergan Esplanadi 4 A 20
2h+k+s
, Kerrostalo
60 m2
5/7
Albergan Esplanadi 4 A 20
2h+k+s
, Kerrostalo
60 m2
Kerros 5/7
Albergan Esplanadi 4 A 30
2h+k+s
, Kerrostalo
60 m2
7/7
Albergan Esplanadi 4 A 30
2h+k+s
, Kerrostalo
60 m2
Kerros 7/7
Albergan Esplanadi 4 A 10
2h+k+s
, Kerrostalo
60 m2
3/7
Albergan Esplanadi 4 A 10
2h+k+s
, Kerrostalo
60 m2
Kerros 3/7
Albergan Esplanadi 4 A 24
2h+kk
, Kerrostalo
45 m2
6/7
Albergan Esplanadi 4 A 24
2h+kk
, Kerrostalo
45 m2
Kerros 6/7
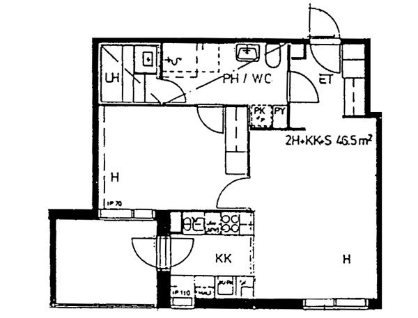
Albergan Esplanadi 4 A 23
2h+kk
, Kerrostalo
46.5 m2
6/7
Albergan Esplanadi 4 A 23
2h+kk
, Kerrostalo
46.5 m2
Kerros 6/7
Albergan Esplanadi 4 A 17
2h+kk
, Kerrostalo
50.5 m2
5/7
Albergan Esplanadi 4 A 17
2h+kk
, Kerrostalo
50.5 m2
Kerros 5/7
Albergan Esplanadi 4 B 40
2h+kk+s
, Kerrostalo
43.5 m2
4/7
Albergan Esplanadi 4 B 40
2h+kk+s
, Kerrostalo
43.5 m2
Kerros 4/7
Albergan Esplanadi 4 B 44
2h+kk+s
, Kerrostalo
43.5 m2
5/7
Albergan Esplanadi 4 B 44
2h+kk+s
, Kerrostalo
43.5 m2
Kerros 5/7
Albergan Esplanadi 4 B 48
2h+kk+s
, Kerrostalo
43.5 m2
6/7
Albergan Esplanadi 4 B 48
2h+kk+s
, Kerrostalo
43.5 m2
Kerros 6/7
Albergan Esplanadi 4 B 36
2h+kk+s
, Kerrostalo
43.5 m2
3/7
Albergan Esplanadi 4 B 36
2h+kk+s
, Kerrostalo
43.5 m2
Kerros 3/7
Albergan Esplanadi 4 B 52
2h+kk+s
, Kerrostalo
43.5 m2
7/7
Albergan Esplanadi 4 B 52
2h+kk+s
, Kerrostalo
43.5 m2
Kerros 7/7
Albergan Esplanadi 4 B 32
2h+kk+s
, Kerrostalo
43.5 m2
2/7
Albergan Esplanadi 4 B 32
2h+kk+s
, Kerrostalo
43.5 m2
Kerros 2/7
Albergan Esplanadi 4 A 14
2h+kk+s
, Kerrostalo
45 m2
4/7
Albergan Esplanadi 4 A 14
2h+kk+s
, Kerrostalo
45 m2
Kerros 4/7
Albergan Esplanadi 4 A 29
2h+kk+s
, Kerrostalo
45 m2
7/7
Albergan Esplanadi 4 A 29
2h+kk+s
, Kerrostalo
45 m2
Kerros 7/7
Albergan Esplanadi 4 A 9
2h+kk+s
, Kerrostalo
45 m2
3/7
Albergan Esplanadi 4 A 9
2h+kk+s
, Kerrostalo
45 m2
Kerros 3/7
Albergan Esplanadi 4 A 19
2h+kk+s
, Kerrostalo
45 m2
5/7
Albergan Esplanadi 4 A 19
2h+kk+s
, Kerrostalo
45 m2
Kerros 5/7
Albergan Esplanadi 4 A 4
2h+kk+s
, Kerrostalo
45 m2
2/7
Albergan Esplanadi 4 A 4
2h+kk+s
, Kerrostalo
45 m2
Kerros 2/7
Albergan Esplanadi 4 A 3
2h+kk+s
, Kerrostalo
46.5 m2
2/7
Albergan Esplanadi 4 A 3
2h+kk+s
, Kerrostalo
46.5 m2
Kerros 2/7
Albergan Esplanadi 4 A 8
2h+kk+s
, Kerrostalo
46.5 m2
3/7
Albergan Esplanadi 4 A 8
2h+kk+s
, Kerrostalo
46.5 m2
Kerros 3/7
Albergan Esplanadi 4 A 28
2h+kk+s
, Kerrostalo
46.5 m2
7/7
Albergan Esplanadi 4 A 28
2h+kk+s
, Kerrostalo
46.5 m2
Kerros 7/7
Albergan Esplanadi 4 A 18
2h+kk+s
, Kerrostalo
46.5 m2
5/7
Albergan Esplanadi 4 A 18
2h+kk+s
, Kerrostalo
46.5 m2
Kerros 5/7
Albergan Esplanadi 4 A 13
2h+kk+s
, Kerrostalo
46.5 m2
4/7
Albergan Esplanadi 4 A 13
2h+kk+s
, Kerrostalo
46.5 m2
Kerros 4/7
Albergan Esplanadi 4 B 41
2h+kk+s
, Kerrostalo
48 m2
4/7
Albergan Esplanadi 4 B 41
2h+kk+s
, Kerrostalo
48 m2
Kerros 4/7
Albergan Esplanadi 4 B 45
2h+kk+s
, Kerrostalo
48 m2
5/7
Albergan Esplanadi 4 B 45
2h+kk+s
, Kerrostalo
48 m2
Kerros 5/7
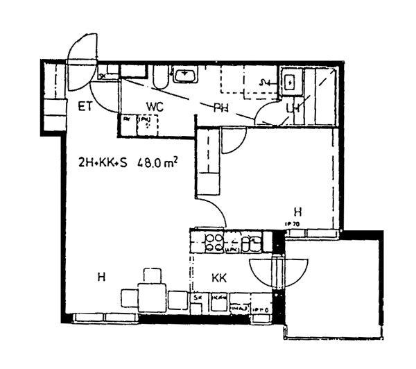
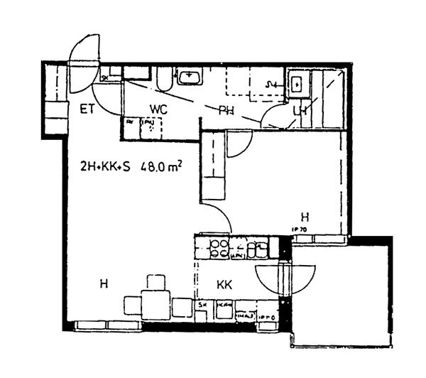
Albergan Esplanadi 4 B 49
2h+kk+s
, Kerrostalo
48 m2
6/7
Albergan Esplanadi 4 B 49
2h+kk+s
, Kerrostalo
48 m2
Kerros 6/7
Albergan Esplanadi 4 B 53
2h+kk+s
, Kerrostalo
48 m2
7/7
Albergan Esplanadi 4 B 53
2h+kk+s
, Kerrostalo
48 m2
Kerros 7/7
Albergan Esplanadi 4 B 37
2h+kk+s
, Kerrostalo
48 m2
3/7
Albergan Esplanadi 4 B 37
2h+kk+s
, Kerrostalo
48 m2
Kerros 3/7
Albergan Esplanadi 4 A 22
2h+kk+s
, Kerrostalo
50.5 m2
6/7
Albergan Esplanadi 4 A 22
2h+kk+s
, Kerrostalo
50.5 m2
Kerros 6/7
Albergan Esplanadi 4 A 7
2h+kk+s
, Kerrostalo
50.5 m2
3/7
Albergan Esplanadi 4 A 7
2h+kk+s
, Kerrostalo
50.5 m2
Kerros 3/7
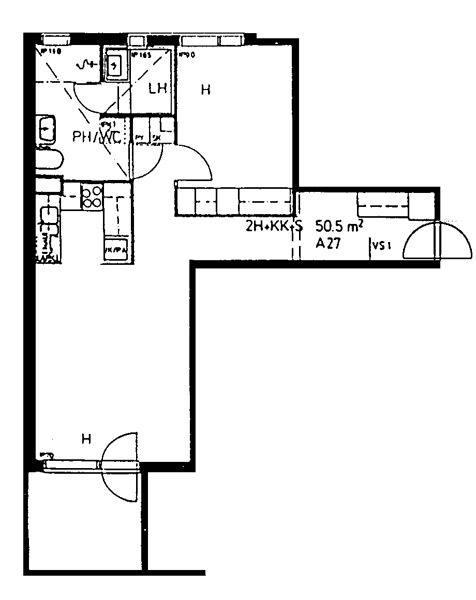
Albergan Esplanadi 4 A 27
2h+kk+s
, Kerrostalo
50.5 m2
7/7
Albergan Esplanadi 4 A 27
2h+kk+s
, Kerrostalo
50.5 m2
Kerros 7/7
Albergan Esplanadi 4 A 2
2h+kk+s
, Kerrostalo
50.5 m2
2/7
Albergan Esplanadi 4 A 2
2h+kk+s
, Kerrostalo
50.5 m2
Kerros 2/7
Albergan Esplanadi 4 A 12
2h+kk+s
, Kerrostalo
50.5 m2
4/7
Albergan Esplanadi 4 A 12
2h+kk+s
, Kerrostalo
50.5 m2
Kerros 4/7
Albergan Esplanadi 4 B 42
3h+k+s
, Kerrostalo
71 m2
4/7
Albergan Esplanadi 4 B 42
3h+k+s
, Kerrostalo
71 m2
Kerros 4/7
Albergan Esplanadi 4 B 50
3h+k+s
, Kerrostalo
71 m2
6/7
Albergan Esplanadi 4 B 50
3h+k+s
, Kerrostalo
71 m2
Kerros 6/7
Albergan Esplanadi 4 B 34
3h+k+s
, Kerrostalo
71 m2
2/7
Albergan Esplanadi 4 B 34
3h+k+s
, Kerrostalo
71 m2
Kerros 2/7
Albergan Esplanadi 4 B 38
3h+k+s
, Kerrostalo
71 m2
3/7
Albergan Esplanadi 4 B 38
3h+k+s
, Kerrostalo
71 m2
Kerros 3/7
Albergan Esplanadi 4 B 54
3h+k+s
, Kerrostalo
71 m2
7/7
Albergan Esplanadi 4 B 54
3h+k+s
, Kerrostalo
71 m2
Kerros 7/7
Albergan Esplanadi 4 B 46
3h+k+s
, Kerrostalo
71 m2
5/7
Albergan Esplanadi 4 B 46
3h+k+s
, Kerrostalo
71 m2
Kerros 5/7
Albergan Esplanadi 4 B 33
4h+k+s
, Kerrostalo
89 m2
1-2/7
Albergan Esplanadi 4 B 33
4h+k+s
, Kerrostalo
89 m2
Kerros 1-2/7
Albergan Esplanadi 4 B 47
4h+k+s
, Kerrostalo
90.5 m2
6/7
Albergan Esplanadi 4 B 47
4h+k+s
, Kerrostalo
90.5 m2
Kerros 6/7
Albergan Esplanadi 4 B 43
4h+k+s
, Kerrostalo
90.5 m2
5/7
Albergan Esplanadi 4 B 43
4h+k+s
, Kerrostalo
90.5 m2
Kerros 5/7
Albergan Esplanadi 4 B 35
4h+k+s
, Kerrostalo
90.5 m2
3/7
Albergan Esplanadi 4 B 35
4h+k+s
, Kerrostalo
90.5 m2
Kerros 3/7
Albergan Esplanadi 4 B 39
4h+k+s
, Kerrostalo
90.5 m2
4/7
Albergan Esplanadi 4 B 39
4h+k+s
, Kerrostalo
90.5 m2
Kerros 4/7
Albergan Esplanadi 4 B 31
4h+k+s
, Kerrostalo
90.5 m2
2/7
Albergan Esplanadi 4 B 31
4h+k+s
, Kerrostalo
90.5 m2
Kerros 2/7
Albergan Esplanadi 4 B 51
4h+k+s
, Kerrostalo
90.5 m2
7/7
Albergan Esplanadi 4 B 51
4h+k+s
, Kerrostalo
90.5 m2
Kerros 7/7
Albergan Esplanadi 4 A 5
5h+k+s
, Kerrostalo
100.5 m2
1-2/7
Albergan Esplanadi 4 A 5
5h+k+s
, Kerrostalo
100.5 m2
Kerros 1-2/7

