Kohteen esittely
Puiston vieressä, Leppävaarassa Perkkaan puolella sijaitseva kerrostalo. Kaikissa asunnoissa on oma sauna ja osassa myös parveke. Suojaisa sisäpiha, jossa lasten leikkipaikka ja kota.
Lähellä on leikkipuisto, päiväkoti, koulu, puutarhapalstat eikä Vermon laajoille puistoalueillekaan tai merenrantaan ole pitkä matka.
Miksi Asuntosäätiö?
Me uskomme, että onnellinen koti ja laadukas asuminen kuuluvat kaikille. Emme tavoittele voittoa, vaan käytämme kaikki vastikkeista ja vuokrista saadut tulot toimintamme kehittämiseen. Jo yli 33 000 suomalaista on valinnut Asuntosäätiön tarjoaman kodin. Tiesithän, että myös lemmikit ovat tervetulleita kaikkiin koteihimme!
Rakennuksen tiedot
- Asumismuoto Asokoti
- Keskimääräinen asumisoikeusmaksu / jm² 442,94€
- Hissit 2
- Talosauna Ei
- Kuivaushuone Kyllä
- Asuntoja 40
- Asuinrakennuksia 1
- Käyttövastike / kk / jm² 16,33€
- Valmistumisvuosi 1999
- Porrashuoneet 2
- Energialuokka D
- Lämmitysmuoto Kauko
- Autopaikat 40
- Laajakaista DNA Welho
- Antennijärjestelmä Kaapeli
- KaapeliTV DNA
- Kattomateriaali Huopa
- Runkomateriaali Betoni
- Lemmikit Sallittu
Huoneistot ja pohjakuvat: Itsehallintotie 2, Kerrostalo
Lisää hakemukselle kaikki haluamasi asuntotyypit. Mahdollisuutesi asunnon saamiseksi paranevat, kun voimme tarjota sinulle kaikkia valitsemasi asuntotyypin asuntoja, jotka mahdollisesti vapautuvat myöhemmin tästä kohteesta. Olet automaattisesti näiden asuntotyyppien hakuprosessissa.
Itsehallintotie 2 B 27
2h+kk+s
, Kerrostalo
41.5 m2
1/5
Itsehallintotie 2 B 27
2h+kk+s
, Kerrostalo
41.5 m2
Kerros 1/5
Itsehallintotie 2 A 2
2h+kk+s
, Kerrostalo
41.5 m2
p/5
Itsehallintotie 2 A 2
2h+kk+s
, Kerrostalo
41.5 m2
Kerros p/5
Itsehallintotie 2 A 12
2h+kk+s
, Kerrostalo
41.5 m2
2/5
Itsehallintotie 2 A 12
2h+kk+s
, Kerrostalo
41.5 m2
Kerros 2/5
Itsehallintotie 2 B 35
2h+kk+s
, Kerrostalo
41.5 m2
3/5
Itsehallintotie 2 B 35
2h+kk+s
, Kerrostalo
41.5 m2
Kerros 3/5
Itsehallintotie 2 A 22
2h+kk+s
, Kerrostalo
41.5 m2
4/5
Itsehallintotie 2 A 22
2h+kk+s
, Kerrostalo
41.5 m2
Kerros 4/5
Itsehallintotie 2 A 17
2h+kk+s
, Kerrostalo
41.5 m2
3/5
Itsehallintotie 2 A 17
2h+kk+s
, Kerrostalo
41.5 m2
Kerros 3/5
Itsehallintotie 2 B 39
2h+kk+s
, Kerrostalo
41.5 m2
4/5
Itsehallintotie 2 B 39
2h+kk+s
, Kerrostalo
41.5 m2
Kerros 4/5
Itsehallintotie 2 A 7
2h+kk+s
, Kerrostalo
41.5 m2
1/5
Itsehallintotie 2 A 7
2h+kk+s
, Kerrostalo
41.5 m2
Kerros 1/5
Itsehallintotie 2 B 31
2h+kk+s
, Kerrostalo
41.5 m2
2/5
Itsehallintotie 2 B 31
2h+kk+s
, Kerrostalo
41.5 m2
Kerros 2/5
Itsehallintotie 2 A 1
2h+kk+s
, Kerrostalo
51.5 m2
p/5
Itsehallintotie 2 A 1
2h+kk+s
, Kerrostalo
51.5 m2
Kerros p/5
Itsehallintotie 2 B 26
2h+kk+s
, Kerrostalo
51.5 m2
1/5
Itsehallintotie 2 B 26
2h+kk+s
, Kerrostalo
51.5 m2
Kerros 1/5
Itsehallintotie 2 B 34
2h+kk+s
, Kerrostalo
51.5 m2
3/5
Itsehallintotie 2 B 34
2h+kk+s
, Kerrostalo
51.5 m2
Kerros 3/5
Itsehallintotie 2 B 38
2h+kk+s
, Kerrostalo
51.5 m2
Kerros 4/5
Itsehallintotie 2 A 11
2h+kk+s
, Kerrostalo
51.5 m2
2/5
Itsehallintotie 2 A 11
2h+kk+s
, Kerrostalo
51.5 m2
Kerros 2/5
Itsehallintotie 2 A 21
2h+kk+s
, Kerrostalo
51.5 m2
4/5
Itsehallintotie 2 A 21
2h+kk+s
, Kerrostalo
51.5 m2
Kerros 4/5
Itsehallintotie 2 A 16
2h+kk+s
, Kerrostalo
51.5 m2
3/5
Itsehallintotie 2 A 16
2h+kk+s
, Kerrostalo
51.5 m2
Kerros 3/5
Itsehallintotie 2 A 6
2h+kk+s
, Kerrostalo
51.5 m2
1/5
Itsehallintotie 2 A 6
2h+kk+s
, Kerrostalo
51.5 m2
Kerros 1/5
Itsehallintotie 2 B 30
2h+kk+s
, Kerrostalo
51.5 m2
2/5
Itsehallintotie 2 B 30
2h+kk+s
, Kerrostalo
51.5 m2
Kerros 2/5
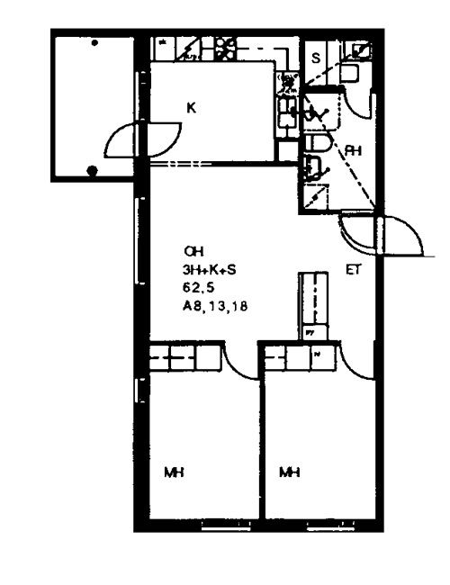
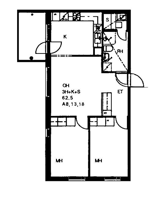
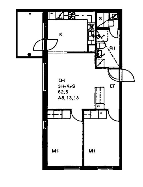
Itsehallintotie 2 A 18
3h+k+s
, Kerrostalo
62.5 m2
3/5
Itsehallintotie 2 A 18
3h+k+s
, Kerrostalo
62.5 m2
Kerros 3/5
Itsehallintotie 2 A 13
3h+k+s
, Kerrostalo
62.5 m2
2/5
Itsehallintotie 2 A 13
3h+k+s
, Kerrostalo
62.5 m2
Kerros 2/5
Itsehallintotie 2 A 8
3h+k+s
, Kerrostalo
62.5 m2
1/5
Itsehallintotie 2 A 8
3h+k+s
, Kerrostalo
62.5 m2
Kerros 1/5
Itsehallintotie 2 A 23
3h+k+s
, Kerrostalo
62.5 m2
Kerros 4/5
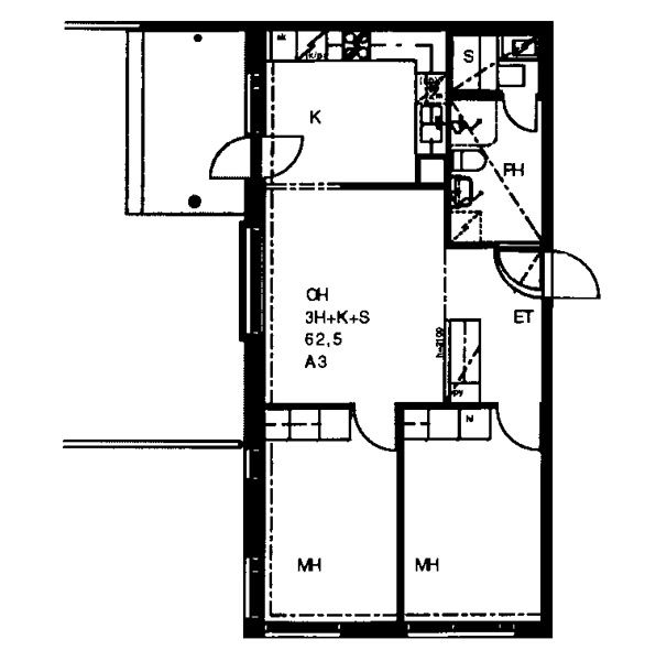
Itsehallintotie 2 A 3
3h+k+s
, Kerrostalo
62.5 m2
p/5
Itsehallintotie 2 A 3
3h+k+s
, Kerrostalo
62.5 m2
Kerros p/5
Itsehallintotie 2 B 40
3h+k+s
, Kerrostalo
72 m2
4/5
Itsehallintotie 2 B 40
3h+k+s
, Kerrostalo
72 m2
Kerros 4/5
Itsehallintotie 2 B 36
3h+k+s
, Kerrostalo
72 m2
3/5
Itsehallintotie 2 B 36
3h+k+s
, Kerrostalo
72 m2
Kerros 3/5
Itsehallintotie 2 B 28
3h+k+s
, Kerrostalo
72 m2
1/5
Itsehallintotie 2 B 28
3h+k+s
, Kerrostalo
72 m2
Kerros 1/5
Itsehallintotie 2 B 32
3h+k+s
, Kerrostalo
72 m2
2/5
Itsehallintotie 2 B 32
3h+k+s
, Kerrostalo
72 m2
Kerros 2/5
Itsehallintotie 2 A 15
4h+k+s
, Kerrostalo
81.5 m2
3/5
Itsehallintotie 2 A 15
4h+k+s
, Kerrostalo
81.5 m2
Kerros 3/5
Itsehallintotie 2 A 20
4h+k+s
, Kerrostalo
81.5 m2
4/5
Itsehallintotie 2 A 20
4h+k+s
, Kerrostalo
81.5 m2
Kerros 4/5
Itsehallintotie 2 A 10
4h+k+s
, Kerrostalo
81.5 m2
2/5
Itsehallintotie 2 A 10
4h+k+s
, Kerrostalo
81.5 m2
Kerros 2/5
Itsehallintotie 2 A 5
4h+k+s
, Kerrostalo
81.5 m2
1/5
Itsehallintotie 2 A 5
4h+k+s
, Kerrostalo
81.5 m2
Kerros 1/5
Itsehallintotie 2 A 19
4h+k+s
, Kerrostalo
86 m2
3/5
Itsehallintotie 2 A 19
4h+k+s
, Kerrostalo
86 m2
Kerros 3/5
Itsehallintotie 2 A 9
4h+k+s
, Kerrostalo
86 m2
1/5
Itsehallintotie 2 A 9
4h+k+s
, Kerrostalo
86 m2
Kerros 1/5
Itsehallintotie 2 A 4
4h+k+s
, Kerrostalo
86 m2
p/5
Itsehallintotie 2 A 4
4h+k+s
, Kerrostalo
86 m2
Kerros p/5
Itsehallintotie 2 A 24
4h+k+s
, Kerrostalo
86 m2
4/5
Itsehallintotie 2 A 24
4h+k+s
, Kerrostalo
86 m2
Kerros 4/5
Itsehallintotie 2 A 14
4h+k+s
, Kerrostalo
86 m2
2/5
Itsehallintotie 2 A 14
4h+k+s
, Kerrostalo
86 m2
Kerros 2/5
Itsehallintotie 2 B 33
5h+k+s
, Kerrostalo
91 m2
3/5
Itsehallintotie 2 B 33
5h+k+s
, Kerrostalo
91 m2
Kerros 3/5
Itsehallintotie 2 B 25
5h+k+s
, Kerrostalo
91 m2
1/5
Itsehallintotie 2 B 25
5h+k+s
, Kerrostalo
91 m2
Kerros 1/5
Itsehallintotie 2 B 37
5h+k+s
, Kerrostalo
91 m2
4/5
Itsehallintotie 2 B 37
5h+k+s
, Kerrostalo
91 m2
Kerros 4/5
Itsehallintotie 2 B 29
5h+k+s
, Kerrostalo
91 m2
2/5
Itsehallintotie 2 B 29
5h+k+s
, Kerrostalo
91 m2
Kerros 2/5

