Kohteen esittely
Puiston vieressä sijaitseva, kodikas kerrostalokohde Leppävaarassa. Osassa asuntoja on parveke, yksiöitä isommissa myös sauna.
Lähellä on neuvola, useampi päiväkoti, koulu ja kaikki kauppakeskus Sellon palvelut. Ulkoilemaan kutsuu läheiset puistot, Säterinmetsä ja Säterinniityn urheilupaikat. Kesällä uimaan pääsee Leppävaaran maauimalaan. Erinomaiset liikenneyhteydet: Sellon toiselta puolelta olevalta Leppävaaran asemalta kulkee junia lyhyillä vuoroväleillä. Nopeat kulkuyhteydet myös omalla autolla.
Miksi Asuntosäätiö?
Me uskomme, että onnellinen koti ja laadukas asuminen kuuluvat kaikille. Emme tavoittele voittoa, vaan käytämme kaikki vastikkeista ja vuokrista saadut tulot toimintamme kehittämiseen. Jo yli 33 000 suomalaista on valinnut Asuntosäätiön tarjoaman kodin. Tiesithän, että myös lemmikit ovat tervetulleita kaikkiin koteihimme!
Rakennuksen tiedot
- Asumismuoto Asokoti
- Keskimääräinen asumisoikeusmaksu / jm² 490,48€
- Hissit 1
- Talosauna 1
- Kuivaushuone Kyllä
- Asuntoja 64
- Asuinrakennuksia 2
- Käyttövastike / kk / jm² 15,85€
- Valmistumisvuosi 2001
- Porrashuoneet 1
- Energialuokka D, E
- Lämmitysmuoto Kauko
- Autopaikat 31
- Askarteluhuone 1
- Laajakaista DNA Welho
- Antennijärjestelmä Kaapeli
- KaapeliTV DNA
- Kattomateriaali Tiili
- Runkomateriaali Betoni
- Lemmikit Sallittu
Huoneistot ja pohjakuvat: Rummunlyöjänkatu 2, Leppävaarankatu 15, Kerrostalo, Rivitalo, Piharakennus
Lisää hakemukselle kaikki haluamasi asuntotyypit. Mahdollisuutesi asunnon saamiseksi paranevat, kun voimme tarjota sinulle kaikkia valitsemasi asuntotyypin asuntoja, jotka mahdollisesti vapautuvat myöhemmin tästä kohteesta. Olet automaattisesti näiden asuntotyyppien hakuprosessissa.
Rummunlyöjänkatu 2 A 56
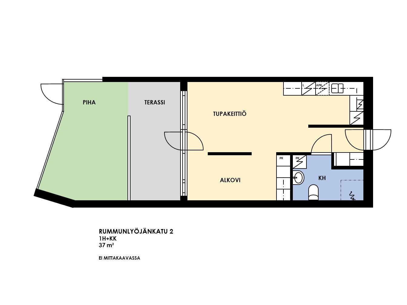
1h+kk
, Kerrostalo
37 m2
5/5
Rummunlyöjänkatu 2 A 56
1h+kk
, Kerrostalo
37 m2
Kerros 5/5
Rummunlyöjänkatu 2 A 4
1h+kk
, Kerrostalo
37 m2
1/5
Rummunlyöjänkatu 2 A 4
1h+kk
, Kerrostalo
37 m2
Kerros 1/5
Rummunlyöjänkatu 2 A 19
1h+kk
, Kerrostalo
37 m2
2/5
Rummunlyöjänkatu 2 A 19
1h+kk
, Kerrostalo
37 m2
Kerros 2/5
Rummunlyöjänkatu 2 A 49
1h+kk
, Kerrostalo
37 m2
4/5
Rummunlyöjänkatu 2 A 49
1h+kk
, Kerrostalo
37 m2
Kerros 4/5
Rummunlyöjänkatu 2 A 34
1h+kk
, Kerrostalo
37 m2
3/5
Rummunlyöjänkatu 2 A 34
1h+kk
, Kerrostalo
37 m2
Kerros 3/5
Rummunlyöjänkatu 2 A 3
1h+kk
, Kerrostalo
42 m2
1/5
Rummunlyöjänkatu 2 A 3
1h+kk
, Kerrostalo
42 m2
Kerros 1/5
Rummunlyöjänkatu 2 A 32
1h+kk
, Kerrostalo
42 m2
3/5
Rummunlyöjänkatu 2 A 32
1h+kk
, Kerrostalo
42 m2
Kerros 3/5
Rummunlyöjänkatu 2 A 47
1h+kk
, Kerrostalo
42 m2
4/5
Rummunlyöjänkatu 2 A 47
1h+kk
, Kerrostalo
42 m2
Kerros 4/5
Rummunlyöjänkatu 2 A 17
1h+kk
, Kerrostalo
42 m2
2/5
Rummunlyöjänkatu 2 A 17
1h+kk
, Kerrostalo
42 m2
Kerros 2/5
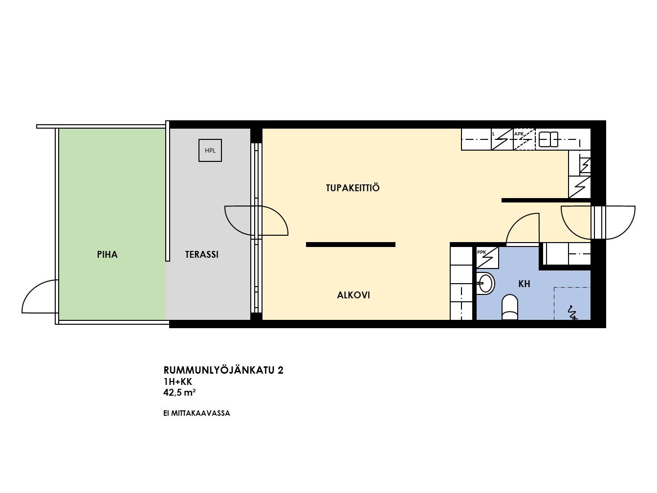
Rummunlyöjänkatu 2 A 23
1h+kk
, Kerrostalo
42.5 m2
2/5
Rummunlyöjänkatu 2 A 23
1h+kk
, Kerrostalo
42.5 m2
Kerros 2/5
Rummunlyöjänkatu 2 A 38
1h+kk
, Kerrostalo
42.5 m2
3/5
Rummunlyöjänkatu 2 A 38
1h+kk
, Kerrostalo
42.5 m2
Kerros 3/5
Rummunlyöjänkatu 2 A 20
1h+kk
, Kerrostalo
42.5 m2
2/5
Rummunlyöjänkatu 2 A 20
1h+kk
, Kerrostalo
42.5 m2
Kerros 2/5
Rummunlyöjänkatu 2 A 5
1h+kk
, Kerrostalo
42.5 m2
1/5
Rummunlyöjänkatu 2 A 5
1h+kk
, Kerrostalo
42.5 m2
Kerros 1/5
Rummunlyöjänkatu 2 A 57
1h+kk
, Kerrostalo
42.5 m2
5/5
Rummunlyöjänkatu 2 A 57
1h+kk
, Kerrostalo
42.5 m2
Kerros 5/5
Rummunlyöjänkatu 2 A 35
1h+kk
, Kerrostalo
42.5 m2
3/5
Rummunlyöjänkatu 2 A 35
1h+kk
, Kerrostalo
42.5 m2
Kerros 3/5
Rummunlyöjänkatu 2 A 8
1h+kk
, Kerrostalo
42.5 m2
1/5
Rummunlyöjänkatu 2 A 8
1h+kk
, Kerrostalo
42.5 m2
Kerros 1/5
Rummunlyöjänkatu 2 A 50
1h+kk
, Kerrostalo
42.5 m2
4/5
Rummunlyöjänkatu 2 A 50
1h+kk
, Kerrostalo
42.5 m2
Kerros 4/5
Rummunlyöjänkatu 2 A 60
1h+kk
, Kerrostalo
42.5 m2
5/5
Rummunlyöjänkatu 2 A 60
1h+kk
, Kerrostalo
42.5 m2
Kerros 5/5
Rummunlyöjänkatu 2 A 53
1h+kk
, Kerrostalo
42.5 m2
4/5
Rummunlyöjänkatu 2 A 53
1h+kk
, Kerrostalo
42.5 m2
Kerros 4/5
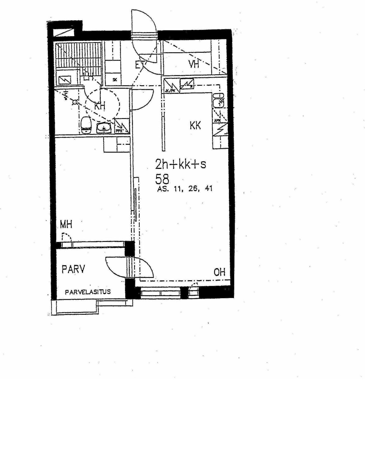
Rummunlyöjänkatu 2 A 10
2h+kk
, Kerrostalo
58 m2
2/5
Rummunlyöjänkatu 2 A 10
2h+kk
, Kerrostalo
58 m2
Kerros 2/5
Rummunlyöjänkatu 2 A 25
2h+kk
, Kerrostalo
58 m2
3/5
Rummunlyöjänkatu 2 A 25
2h+kk
, Kerrostalo
58 m2
Kerros 3/5
Rummunlyöjänkatu 2 A 40
2h+kk
, Kerrostalo
58 m2
4/5
Rummunlyöjänkatu 2 A 40
2h+kk
, Kerrostalo
58 m2
Kerros 4/5
Rummunlyöjänkatu 2 A 31
2h+kk+s
, Kerrostalo
57 m2
3/5
Rummunlyöjänkatu 2 A 31
2h+kk+s
, Kerrostalo
57 m2
Kerros 3/5
Rummunlyöjänkatu 2 A 2
2h+kk+s
, Kerrostalo
57 m2
1/5
Rummunlyöjänkatu 2 A 2
2h+kk+s
, Kerrostalo
57 m2
Kerros 1/5
Rummunlyöjänkatu 2 A 16
2h+kk+s
, Kerrostalo
57 m2
2/5
Rummunlyöjänkatu 2 A 16
2h+kk+s
, Kerrostalo
57 m2
Kerros 2/5
Rummunlyöjänkatu 2 A 46
2h+kk+s
, Kerrostalo
57 m2
4/5
Rummunlyöjänkatu 2 A 46
2h+kk+s
, Kerrostalo
57 m2
Kerros 4/5
Rummunlyöjänkatu 2 A 42
2h+kk+s
, Kerrostalo
58 m2
4/5
Rummunlyöjänkatu 2 A 42
2h+kk+s
, Kerrostalo
58 m2
Kerros 4/5
Rummunlyöjänkatu 2 A 44
2h+kk+s
, Kerrostalo
58 m2
Kerros 4/5
Rummunlyöjänkatu 2 A 29
2h+kk+s
, Kerrostalo
58 m2
3/5
Rummunlyöjänkatu 2 A 29
2h+kk+s
, Kerrostalo
58 m2
Kerros 3/5
Rummunlyöjänkatu 2 A 26
2h+kk+s
, Kerrostalo
58 m2
Kerros 3/5
Rummunlyöjänkatu 2 A 12
2h+kk+s
, Kerrostalo
58 m2
Kerros 2/5
Rummunlyöjänkatu 2 A 43
2h+kk+s
, Kerrostalo
58 m2
4/5
Rummunlyöjänkatu 2 A 43
2h+kk+s
, Kerrostalo
58 m2
Kerros 4/5
Rummunlyöjänkatu 2 A 11
2h+kk+s
, Kerrostalo
58 m2
2/5
Rummunlyöjänkatu 2 A 11
2h+kk+s
, Kerrostalo
58 m2
Kerros 2/5
Rummunlyöjänkatu 2 A 41
2h+kk+s
, Kerrostalo
58 m2
4/5
Rummunlyöjänkatu 2 A 41
2h+kk+s
, Kerrostalo
58 m2
Kerros 4/5
Rummunlyöjänkatu 2 A 14
2h+kk+s
, Kerrostalo
58 m2
2/5
Rummunlyöjänkatu 2 A 14
2h+kk+s
, Kerrostalo
58 m2
Kerros 2/5
Rummunlyöjänkatu 2 A 28
2h+kk+s
, Kerrostalo
58 m2
3/5
Rummunlyöjänkatu 2 A 28
2h+kk+s
, Kerrostalo
58 m2
Kerros 3/5
Rummunlyöjänkatu 2 A 27
2h+kk+s
, Kerrostalo
58 m2
3/5
Rummunlyöjänkatu 2 A 27
2h+kk+s
, Kerrostalo
58 m2
Kerros 3/5
Rummunlyöjänkatu 2 A 13
2h+kk+s
, Kerrostalo
58 m2
2/5
Rummunlyöjänkatu 2 A 13
2h+kk+s
, Kerrostalo
58 m2
Kerros 2/5
Rummunlyöjänkatu 2 A 1
2h+kt+s
, Kerrostalo
74.5 m2
Kerros 1/5
Rummunlyöjänkatu 2 A 45
3h+kt+s
, Kerrostalo
74.5 m2
4/5
Rummunlyöjänkatu 2 A 45
3h+kt+s
, Kerrostalo
74.5 m2
Kerros 4/5
Rummunlyöjänkatu 2 A 30
3h+kt+s
, Kerrostalo
74.5 m2
3/5
Rummunlyöjänkatu 2 A 30
3h+kt+s
, Kerrostalo
74.5 m2
Kerros 3/5
Rummunlyöjänkatu 2 A 15
3h+kt+s
, Kerrostalo
74.5 m2
2/5
Rummunlyöjänkatu 2 A 15
3h+kt+s
, Kerrostalo
74.5 m2
Kerros 2/5
Rummunlyöjänkatu 2 A 48
3h+kt+s
, Kerrostalo
75 m2
4/5
Rummunlyöjänkatu 2 A 48
3h+kt+s
, Kerrostalo
75 m2
Kerros 4/5
Rummunlyöjänkatu 2 A 55
3h+kt+s
, Kerrostalo
75 m2
5/5
Rummunlyöjänkatu 2 A 55
3h+kt+s
, Kerrostalo
75 m2
Kerros 5/5
Rummunlyöjänkatu 2 A 18
3h+kt+s
, Kerrostalo
75 m2
2/5
Rummunlyöjänkatu 2 A 18
3h+kt+s
, Kerrostalo
75 m2
Kerros 2/5
Rummunlyöjänkatu 2 A 33
3h+kt+s
, Kerrostalo
75 m2
3/5
Rummunlyöjänkatu 2 A 33
3h+kt+s
, Kerrostalo
75 m2
Kerros 3/5
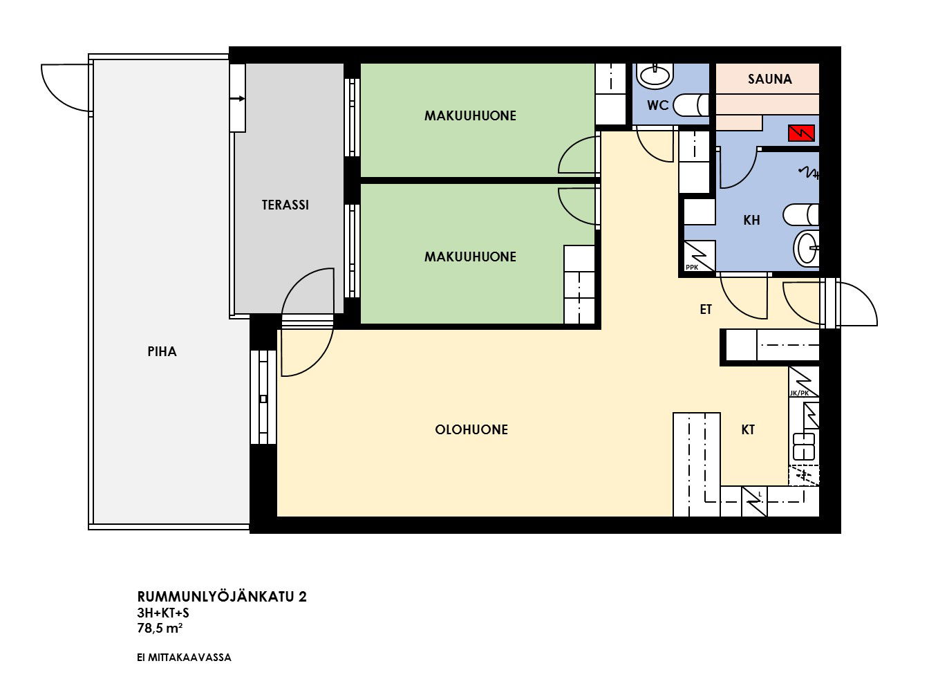
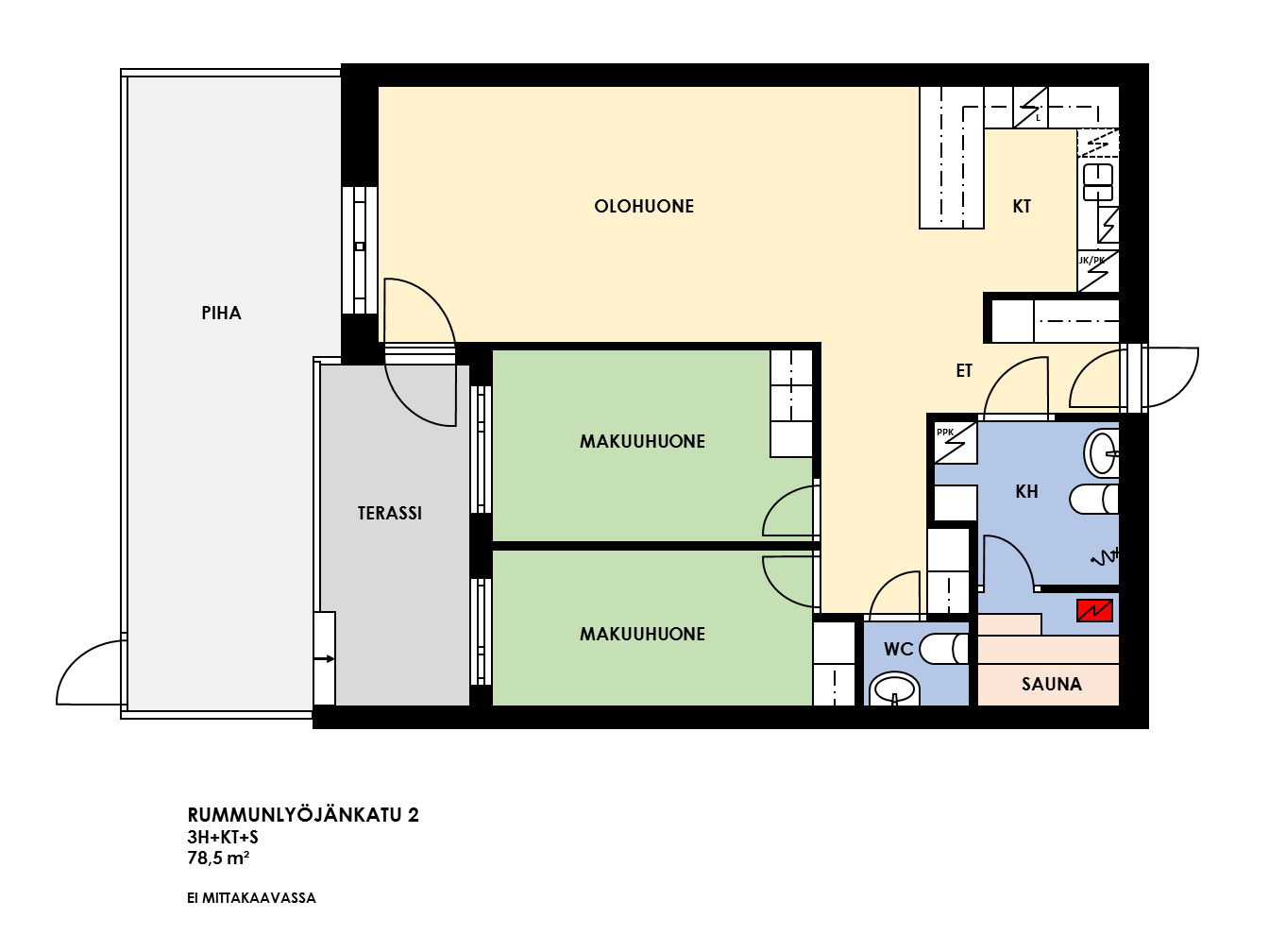
Rummunlyöjänkatu 2 A 58
3h+kt+s
, Kerrostalo
78.5 m2
5/5
Rummunlyöjänkatu 2 A 58
3h+kt+s
, Kerrostalo
78.5 m2
Kerros 5/5
Rummunlyöjänkatu 2 A 21
3h+kt+s
, Kerrostalo
78.5 m2
2/5
Rummunlyöjänkatu 2 A 21
3h+kt+s
, Kerrostalo
78.5 m2
Kerros 2/5
Rummunlyöjänkatu 2 A 37
3h+kt+s
, Kerrostalo
78.5 m2
3/5
Rummunlyöjänkatu 2 A 37
3h+kt+s
, Kerrostalo
78.5 m2
Kerros 3/5
Rummunlyöjänkatu 2 A 59
3h+kt+s
, Kerrostalo
78.5 m2
5/5
Rummunlyöjänkatu 2 A 59
3h+kt+s
, Kerrostalo
78.5 m2
Kerros 5/5
Rummunlyöjänkatu 2 A 52
3h+kt+s
, Kerrostalo
78.5 m2
4/5
Rummunlyöjänkatu 2 A 52
3h+kt+s
, Kerrostalo
78.5 m2
Kerros 4/5
Rummunlyöjänkatu 2 A 36
3h+kt+s
, Kerrostalo
78.5 m2
3/5
Rummunlyöjänkatu 2 A 36
3h+kt+s
, Kerrostalo
78.5 m2
Kerros 3/5
Rummunlyöjänkatu 2 A 7
3h+kt+s
, Kerrostalo
78.5 m2
1/5
Rummunlyöjänkatu 2 A 7
3h+kt+s
, Kerrostalo
78.5 m2
Kerros 1/5
Rummunlyöjänkatu 2 A 6
3h+kt+s
, Kerrostalo
78.5 m2
1/5
Rummunlyöjänkatu 2 A 6
3h+kt+s
, Kerrostalo
78.5 m2
Kerros 1/5
Rummunlyöjänkatu 2 A 51
3h+kt+s
, Kerrostalo
78.5 m2
4/5
Rummunlyöjänkatu 2 A 51
3h+kt+s
, Kerrostalo
78.5 m2
Kerros 4/5
Rummunlyöjänkatu 2 A 22
3h+kt+s
, Kerrostalo
78.5 m2
2/5
Rummunlyöjänkatu 2 A 22
3h+kt+s
, Kerrostalo
78.5 m2
Kerros 2/5
Leppävaarankatu 15 B 2
4h+kt+s
, Rivitalo
89 m2
1/2
Leppävaarankatu 15 B 2
4h+kt+s
, Rivitalo
89 m2
Kerros 1/2
Leppävaarankatu 15 B 1
4h+kt+s
, Rivitalo
90.5 m2
1/2
Leppävaarankatu 15 B 1
4h+kt+s
, Rivitalo
90.5 m2
Kerros 1/2
Leppävaarankatu 15 B 3
4h+kt+s
, Rivitalo
90.5 m2
1/2
Leppävaarankatu 15 B 3
4h+kt+s
, Rivitalo
90.5 m2
Kerros 1/2
Rummunlyöjänkatu 2 A 61
4h+kt+s
, Kerrostalo
94.5 m2
5/5
Rummunlyöjänkatu 2 A 61
4h+kt+s
, Kerrostalo
94.5 m2
Kerros 5/5
Rummunlyöjänkatu 2 A 39
4h+kt+s
, Kerrostalo
94.5 m2
3/5
Rummunlyöjänkatu 2 A 39
4h+kt+s
, Kerrostalo
94.5 m2
Kerros 3/5
Rummunlyöjänkatu 2 A 54
4h+kt+s
, Kerrostalo
94.5 m2
4/5
Rummunlyöjänkatu 2 A 54
4h+kt+s
, Kerrostalo
94.5 m2
Kerros 4/5
Rummunlyöjänkatu 2 A 24
4h+kt+s
, Kerrostalo
94.5 m2
2/5
Rummunlyöjänkatu 2 A 24
4h+kt+s
, Kerrostalo
94.5 m2
Kerros 2/5
Rummunlyöjänkatu 2 A 9
4h+kt+s
, Kerrostalo
94.5 m2
1/5
Rummunlyöjänkatu 2 A 9
4h+kt+s
, Kerrostalo
94.5 m2
Kerros 1/5


