Kohteen esittely
Viihtyisä kerrostalokohde Puustellinmäessä rauhallisella alueella. Valoisat asunnot. Suojaisa sisäpiha, jossa kivasti istutuksia.
Lähellä on päiväkoti, koulu ja Mäkkylänmetsä ulkoilureitteineen. Lisää palveluita Kauppakeskus Sellossa noin puolen kilometrin päässä. Hyvät liikenneyhteydet: Lähellä Leppävaaran ja Mäkkylän juna-asemat, ja bussipysäkki lähes talon edessä. Kehä ykkönen parin sadan metrin päässä.
Miksi Asuntosäätiö?
Me uskomme, että onnellinen koti ja laadukas asuminen kuuluvat kaikille. Emme tavoittele voittoa, vaan käytämme kaikki vastikkeista ja vuokrista saadut tulot toimintamme kehittämiseen. Jo yli 33 000 suomalaista on valinnut Asuntosäätiön tarjoaman kodin. Tiesithän, että myös lemmikit ovat tervetulleita kaikkiin koteihimme!
Rakennuksen tiedot
- Asumismuoto Asokoti
- Keskimääräinen asumisoikeusmaksu / jm² 414,59€
- Hissit 2
- Talosauna Ei
- Pyykkitupa Kyllä
- Kuivaushuone Kyllä
- Asuntoja 36
- Asuinrakennuksia 2
- Käyttövastike / kk / jm² 14,61€
- Valmistumisvuosi 1995
- Peruskorjattu 2025
- Porrashuoneet 3
- Energialuokka E, D
- Lämmitysmuoto Kauko
- Autopaikat 43
- Kerhohuone 1
- Laajakaista DNA Welho
- Antennijärjestelmä Kaapeli
- KaapeliTV DNA
- Kattomateriaali Huopa
- Runkomateriaali Betoni
- Lemmikit Sallittu
Huoneistot ja pohjakuvat: Ruutikuja 1, Kerrostalo
Lisää hakemukselle kaikki haluamasi asuntotyypit. Mahdollisuutesi asunnon saamiseksi paranevat, kun voimme tarjota sinulle kaikkia valitsemasi asuntotyypin asuntoja, jotka mahdollisesti vapautuvat myöhemmin tästä kohteesta. Olet automaattisesti näiden asuntotyyppien hakuprosessissa.
Ruutikuja 1 C 26
1h+tk+s
, Kerrostalo
36.5 m2
1/3
Ruutikuja 1 C 26
1h+tk+s
, Kerrostalo
36.5 m2
Kerros 1/3
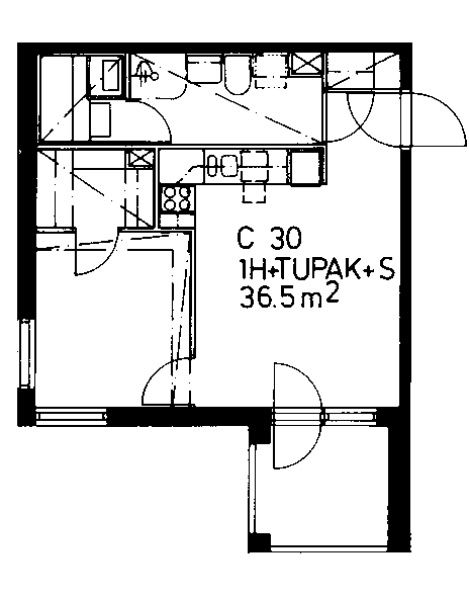
Ruutikuja 1 C 30
1h+tk+s
, Kerrostalo
36.5 m2
2/3
Ruutikuja 1 C 30
1h+tk+s
, Kerrostalo
36.5 m2
Kerros 2/3
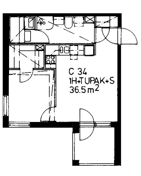
Ruutikuja 1 C 34
1h+tk+s
, Kerrostalo
36.5 m2
3/3
Ruutikuja 1 C 34
1h+tk+s
, Kerrostalo
36.5 m2
Kerros 3/3
Ruutikuja 1 A 2
1h+tk+s
, Kerrostalo
39 m2
1/4
Ruutikuja 1 A 2
1h+tk+s
, Kerrostalo
39 m2
Kerros 1/4
Ruutikuja 1 B 14
1h+tk+s
, Kerrostalo
39 m2
1/4
Ruutikuja 1 B 14
1h+tk+s
, Kerrostalo
39 m2
Kerros 1/4
Ruutikuja 1 C 28
2h+k+s
, Kerrostalo
50 m2
1/3
Ruutikuja 1 C 28
2h+k+s
, Kerrostalo
50 m2
Kerros 1/3
Ruutikuja 1 C 25
2h+k+s
, Kerrostalo
51.5 m2
1/3
Ruutikuja 1 C 25
2h+k+s
, Kerrostalo
51.5 m2
Kerros 1/3
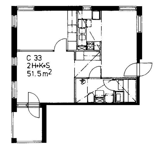
Ruutikuja 1 C 33
2h+k+s
, Kerrostalo
51.5 m2
3/3
Ruutikuja 1 C 33
2h+k+s
, Kerrostalo
51.5 m2
Kerros 3/3
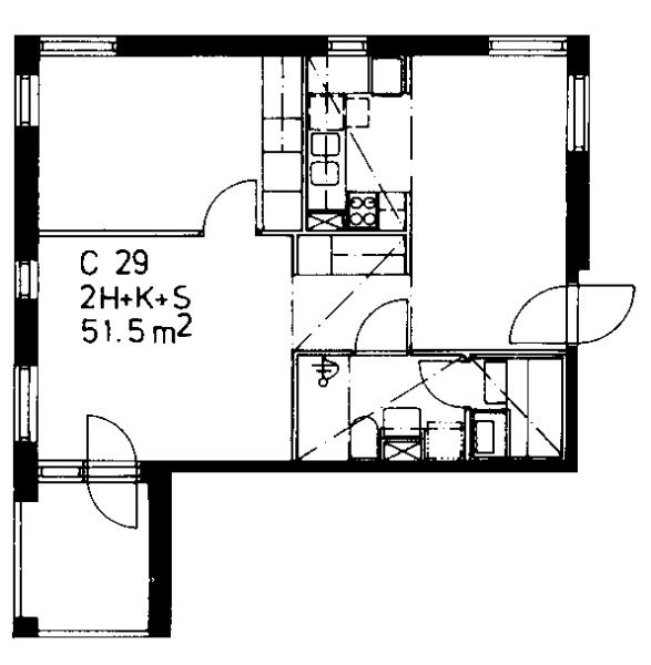
Ruutikuja 1 C 29
2h+k+s
, Kerrostalo
51.5 m2
2/3
Ruutikuja 1 C 29
2h+k+s
, Kerrostalo
51.5 m2
Kerros 2/3
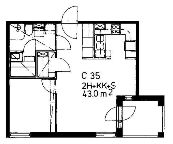
Ruutikuja 1 C 35
2h+kk+s
, Kerrostalo
43 m2
3/3
Ruutikuja 1 C 35
2h+kk+s
, Kerrostalo
43 m2
Kerros 3/3
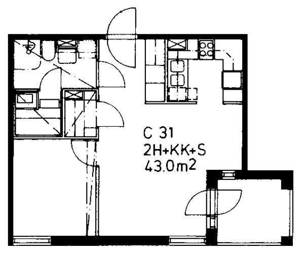
Ruutikuja 1 C 31
2h+kk+s
, Kerrostalo
43 m2
2/3
Ruutikuja 1 C 31
2h+kk+s
, Kerrostalo
43 m2
Kerros 2/3
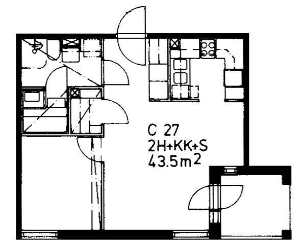
Ruutikuja 1 C 27
2h+kk+s
, Kerrostalo
43.5 m2
1/3
Ruutikuja 1 C 27
2h+kk+s
, Kerrostalo
43.5 m2
Kerros 1/3
Ruutikuja 1 A 11
2h+kk+s
, Kerrostalo
45 m2
4/4
Ruutikuja 1 A 11
2h+kk+s
, Kerrostalo
45 m2
Kerros 4/4
Ruutikuja 1 A 8
2h+kk+s
, Kerrostalo
45 m2
3/4
Ruutikuja 1 A 8
2h+kk+s
, Kerrostalo
45 m2
Kerros 3/4
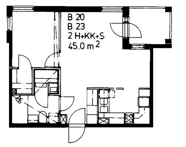
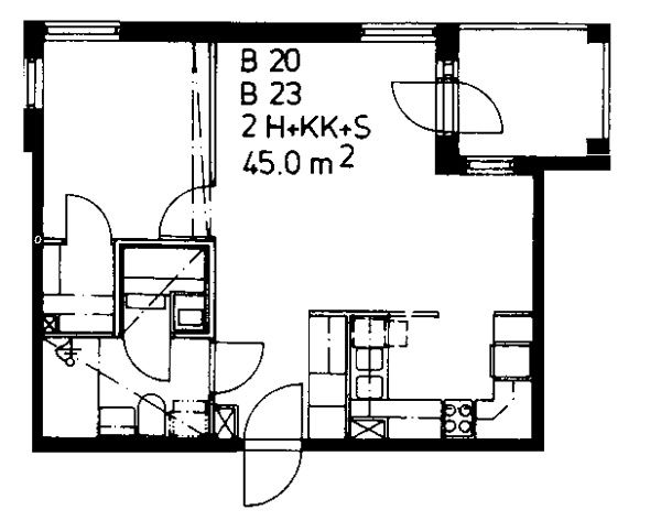
Ruutikuja 1 B 23
2h+kk+s
, Kerrostalo
45 m2
4/4
Ruutikuja 1 B 23
2h+kk+s
, Kerrostalo
45 m2
Kerros 4/4
Ruutikuja 1 B 17
2h+kk+s
, Kerrostalo
45 m2
2/4
Ruutikuja 1 B 17
2h+kk+s
, Kerrostalo
45 m2
Kerros 2/4
Ruutikuja 1 B 20
2h+kk+s
, Kerrostalo
45 m2
3/4
Ruutikuja 1 B 20
2h+kk+s
, Kerrostalo
45 m2
Kerros 3/4
Ruutikuja 1 A 5
2h+kk+s
, Kerrostalo
45 m2
2/4
Ruutikuja 1 A 5
2h+kk+s
, Kerrostalo
45 m2
Kerros 2/4
Ruutikuja 1 C 32
3h+k+s
, Kerrostalo
65 m2
2/3
Ruutikuja 1 C 32
3h+k+s
, Kerrostalo
65 m2
Kerros 2/3
Ruutikuja 1 C 36
3h+k+s
, Kerrostalo
65.5 m2
3/3
Ruutikuja 1 C 36
3h+k+s
, Kerrostalo
65.5 m2
Kerros 3/3
Ruutikuja 1 A 9
3h+k+s
, Kerrostalo
73.5 m2
3/4
Ruutikuja 1 A 9
3h+k+s
, Kerrostalo
73.5 m2
Kerros 3/4
Ruutikuja 1 B 18
3h+k+s
, Kerrostalo
73.5 m2
2/4
Ruutikuja 1 B 18
3h+k+s
, Kerrostalo
73.5 m2
Kerros 2/4
Ruutikuja 1 A 12
3h+k+s
, Kerrostalo
73.5 m2
4/4
Ruutikuja 1 A 12
3h+k+s
, Kerrostalo
73.5 m2
Kerros 4/4
Ruutikuja 1 B 21
3h+k+s
, Kerrostalo
73.5 m2
3/4
Ruutikuja 1 B 21
3h+k+s
, Kerrostalo
73.5 m2
Kerros 3/4
Ruutikuja 1 B 15
3h+k+s
, Kerrostalo
73.5 m2
1/4
Ruutikuja 1 B 15
3h+k+s
, Kerrostalo
73.5 m2
Kerros 1/4
Ruutikuja 1 A 6
3h+k+s
, Kerrostalo
73.5 m2
2/4
Ruutikuja 1 A 6
3h+k+s
, Kerrostalo
73.5 m2
Kerros 2/4
Ruutikuja 1 A 3
3h+k+s
, Kerrostalo
73.5 m2
1/4
Ruutikuja 1 A 3
3h+k+s
, Kerrostalo
73.5 m2
Kerros 1/4
Ruutikuja 1 A 4
3h+k+s
, Kerrostalo
75 m2
2/4
Ruutikuja 1 A 4
3h+k+s
, Kerrostalo
75 m2
Kerros 2/4
Ruutikuja 1 A 1
3h+k+s
, Kerrostalo
75 m2
1/4
Ruutikuja 1 A 1
3h+k+s
, Kerrostalo
75 m2
Kerros 1/4
Ruutikuja 1 A 10
3h+k+s
, Kerrostalo
75 m2
4/4
Ruutikuja 1 A 10
3h+k+s
, Kerrostalo
75 m2
Kerros 4/4
Ruutikuja 1 A 7
3h+k+s
, Kerrostalo
75 m2
3/4
Ruutikuja 1 A 7
3h+k+s
, Kerrostalo
75 m2
Kerros 3/4
Ruutikuja 1 B 19
4h+k+s
, Kerrostalo
79.5 m2
3/4
Ruutikuja 1 B 19
4h+k+s
, Kerrostalo
79.5 m2
Kerros 3/4
Ruutikuja 1 B 13
4h+k+s
, Kerrostalo
79.5 m2
1/4
Ruutikuja 1 B 13
4h+k+s
, Kerrostalo
79.5 m2
Kerros 1/4
Ruutikuja 1 B 22
4h+k+s
, Kerrostalo
79.5 m2
4/4
Ruutikuja 1 B 22
4h+k+s
, Kerrostalo
79.5 m2
Kerros 4/4
Ruutikuja 1 B 16
4h+k+s
, Kerrostalo
79.5 m2
2/4
Ruutikuja 1 B 16
4h+k+s
, Kerrostalo
79.5 m2
Kerros 2/4
