Kohteen esittely
Kolmen värikkään kerrostalon kokonaisuus Suurpellossa, Espoon keskuspuiston kupeessa. Asunnot ovat 2-4 huoneen ja keittiön huoneistoja, joissa on oma sauna.
Alueella on suomenkielinen peruskoulu ja arvostettu Opinmäen kansainvälinen koulu. Arjen tärkeimmät palvelut löytyvät kauppakeskus Suuriksesta. Lapset pääsevät leikkimään Angry Birds-leikkipuistoon ja asukkaat voivat istuttaa hedelmäpuita Rakkauden puutarhaan. Alueella aktiivisesti toimiva Suurpelto-seura pyrkii yhdistämään ihmisiä ja kannustaa asukkaita yhteisöllisyyteen.
Suurpellosta kulkee kätevästi niin Helsingin keskustaan kuin eri puolille Espoota esimerkiksi kaupunkipyörillä, joilla on alueella kaksi kaupunkipyöräasemaa.
Miksi Asuntosäätiö?
Me uskomme, että onnellinen koti ja laadukas asuminen kuuluvat kaikille. Emme tavoittele voittoa, vaan käytämme kaikki vastikkeista ja vuokrista saadut tulot toimintamme kehittämiseen. Jo yli 33 000 suomalaista on valinnut Asuntosäätiön tarjoaman kodin. Tiesithän, että myös lemmikit ovat tervetulleita kaikkiin koteihimme!
Rakennuksen tiedot
- Asumismuoto Asokoti
- Keskimääräinen asumisoikeusmaksu / jm² 696,72€
- Hissit 3
- Talosauna Ei
- Kuivaushuone Kyllä
- Asuntoja 58
- Asuinrakennuksia 3
- Käyttövastike / kk / jm² 15,41€
- Valmistumisvuosi 2012
- Porrashuoneet 3
- Energialuokka C
- Lämmitysmuoto Kauko
- Autopaikat 57
- Laajakaista DNA Welho
- Antennijärjestelmä Kaapeli
- KaapeliTV DNA
- Kattomateriaali Huopa
- Runkomateriaali Betoni
- Lemmikit Sallittu
Huoneistot ja pohjakuvat: Klariksentie 3, Kerrostalo
Lisää hakemukselle kaikki haluamasi asuntotyypit. Mahdollisuutesi asunnon saamiseksi paranevat, kun voimme tarjota sinulle kaikkia valitsemasi asuntotyypin asuntoja, jotka mahdollisesti vapautuvat myöhemmin tästä kohteesta. Olet automaattisesti näiden asuntotyyppien hakuprosessissa.
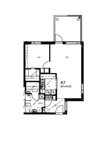
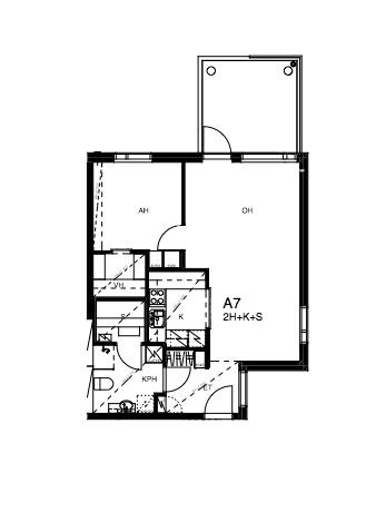
Klariksentie 3 A 7
2h+k+s
, Kerrostalo
56 m2
2/5
Klariksentie 3 A 7
2h+k+s
, Kerrostalo
56 m2
Kerros 2/5
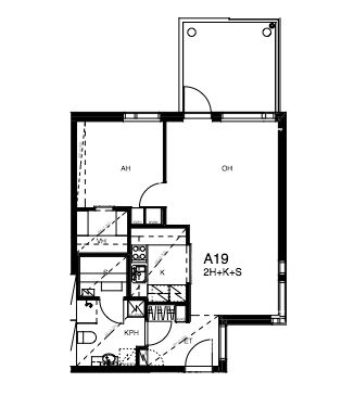
Klariksentie 3 A 19
2h+k+s
, Kerrostalo
56 m2
5/5
Klariksentie 3 A 19
2h+k+s
, Kerrostalo
56 m2
Kerros 5/5
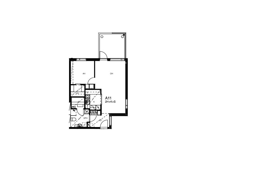
Klariksentie 3 A 11
2h+k+s
, Kerrostalo
56 m2
3/5
Klariksentie 3 A 11
2h+k+s
, Kerrostalo
56 m2
Kerros 3/5
Klariksentie 3 A 15
2h+k+s
, Kerrostalo
56 m2
4/5
Klariksentie 3 A 15
2h+k+s
, Kerrostalo
56 m2
Kerros 4/5
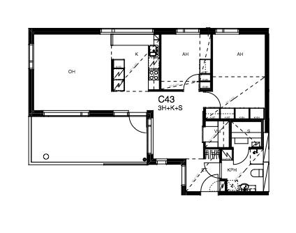
Klariksentie 3 C 54
2h+k+s
, Kerrostalo
56 m2
4/5
Klariksentie 3 C 54
2h+k+s
, Kerrostalo
56 m2
Kerros 4/5
Klariksentie 3 C 50
2h+k+s
, Kerrostalo
56 m2
3/5
Klariksentie 3 C 50
2h+k+s
, Kerrostalo
56 m2
Kerros 3/5
Klariksentie 3 C 46
2h+k+s
, Kerrostalo
56 m2
2/5
Klariksentie 3 C 46
2h+k+s
, Kerrostalo
56 m2
Kerros 2/5
Klariksentie 3 C 58
2h+k+s
, Kerrostalo
56 m2
5/5
Klariksentie 3 C 58
2h+k+s
, Kerrostalo
56 m2
Kerros 5/5
Klariksentie 3 B 31
2h+k+s
, Kerrostalo
56 m2
3/5
Klariksentie 3 B 31
2h+k+s
, Kerrostalo
56 m2
Kerros 3/5
Klariksentie 3 B 23
2h+k+s
, Kerrostalo
56 m2
1/5
Klariksentie 3 B 23
2h+k+s
, Kerrostalo
56 m2
Kerros 1/5
Klariksentie 3 B 39
2h+k+s
, Kerrostalo
56 m2
5/5
Klariksentie 3 B 39
2h+k+s
, Kerrostalo
56 m2
Kerros 5/5
Klariksentie 3 B 27
2h+k+s
, Kerrostalo
56 m2
2/5
Klariksentie 3 B 27
2h+k+s
, Kerrostalo
56 m2
Kerros 2/5
Klariksentie 3 B 35
2h+k+s
, Kerrostalo
56 m2
4/5
Klariksentie 3 B 35
2h+k+s
, Kerrostalo
56 m2
Kerros 4/5
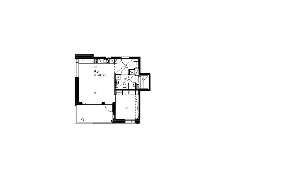
Klariksentie 3 A 9
2h+kt+s
, Kerrostalo
48 m2
3/5
Klariksentie 3 A 9
2h+kt+s
, Kerrostalo
48 m2
Kerros 3/5
Klariksentie 3 A 5
2h+kt+s
, Kerrostalo
48 m2
2/5
Klariksentie 3 A 5
2h+kt+s
, Kerrostalo
48 m2
Kerros 2/5
Klariksentie 3 A 2
2h+kt+s
, Kerrostalo
48 m2
1/5
Klariksentie 3 A 2
2h+kt+s
, Kerrostalo
48 m2
Kerros 1/5
Klariksentie 3 A 13
2h+kt+s
, Kerrostalo
48 m2
4/5
Klariksentie 3 A 13
2h+kt+s
, Kerrostalo
48 m2
Kerros 4/5
Klariksentie 3 A 17
2h+kt+s
, Kerrostalo
48 m2
5/5
Klariksentie 3 A 17
2h+kt+s
, Kerrostalo
48 m2
Kerros 5/5
Klariksentie 3 C 52
2h+kt+s
, Kerrostalo
48 m2
4/5
Klariksentie 3 C 52
2h+kt+s
, Kerrostalo
48 m2
Kerros 4/5
Klariksentie 3 C 44
2h+kt+s
, Kerrostalo
48 m2
2/5
Klariksentie 3 C 44
2h+kt+s
, Kerrostalo
48 m2
Kerros 2/5
Klariksentie 3 C 41
2h+kt+s
, Kerrostalo
48 m2
1/5
Klariksentie 3 C 41
2h+kt+s
, Kerrostalo
48 m2
Kerros 1/5
Klariksentie 3 B 29
2h+kt+s
, Kerrostalo
48 m2
3/5
Klariksentie 3 B 29
2h+kt+s
, Kerrostalo
48 m2
Kerros 3/5
Klariksentie 3 B 37
2h+kt+s
, Kerrostalo
48 m2
5/5
Klariksentie 3 B 37
2h+kt+s
, Kerrostalo
48 m2
Kerros 5/5
Klariksentie 3 B 25
2h+kt+s
, Kerrostalo
48 m2
2/5
Klariksentie 3 B 25
2h+kt+s
, Kerrostalo
48 m2
Kerros 2/5
Klariksentie 3 B 21
2h+kt+s
, Kerrostalo
48 m2
1/5
Klariksentie 3 B 21
2h+kt+s
, Kerrostalo
48 m2
Kerros 1/5
Klariksentie 3 B 33
2h+kt+s
, Kerrostalo
48 m2
4/5
Klariksentie 3 B 33
2h+kt+s
, Kerrostalo
48 m2
Kerros 4/5
Klariksentie 3 A 18
3-4h+k+s
, Kerrostalo
84.5 m2
5/5
Klariksentie 3 A 18
3-4h+k+s
, Kerrostalo
84.5 m2
Kerros 5/5
Klariksentie 3 C 57
3-4h+k+s
, Kerrostalo
84.5 m2
5/5
Klariksentie 3 C 57
3-4h+k+s
, Kerrostalo
84.5 m2
Kerros 5/5
Klariksentie 3 B 38
3-4h+k+s
, Kerrostalo
84.5 m2
5/5
Klariksentie 3 B 38
3-4h+k+s
, Kerrostalo
84.5 m2
Kerros 5/5
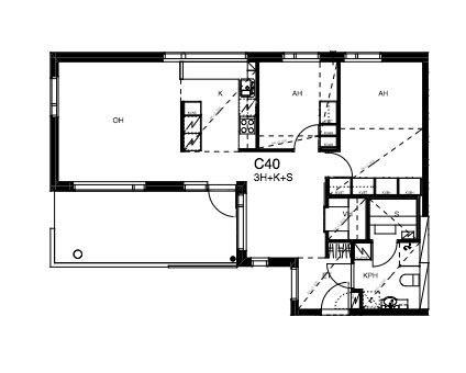
Klariksentie 3 A 12
3h+k+s
, Kerrostalo
74.5 m2
4/5
Klariksentie 3 A 12
3h+k+s
, Kerrostalo
74.5 m2
Kerros 4/5
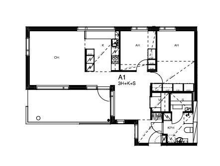
Klariksentie 3 A 1
3h+k+s
, Kerrostalo
74.5 m2
1/5
Klariksentie 3 A 1
3h+k+s
, Kerrostalo
74.5 m2
Kerros 1/5
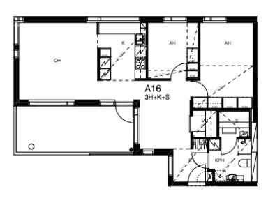
Klariksentie 3 A 4
3h+k+s
, Kerrostalo
74.5 m2
2/5
Klariksentie 3 A 4
3h+k+s
, Kerrostalo
74.5 m2
Kerros 2/5
Klariksentie 3 A 16
3h+k+s
, Kerrostalo
74.5 m2
5/5
Klariksentie 3 A 16
3h+k+s
, Kerrostalo
74.5 m2
Kerros 5/5
Klariksentie 3 A 8
3h+k+s
, Kerrostalo
74.5 m2
3/5
Klariksentie 3 A 8
3h+k+s
, Kerrostalo
74.5 m2
Kerros 3/5
Klariksentie 3 C 47
3h+k+s
, Kerrostalo
74.5 m2
3/5
Klariksentie 3 C 47
3h+k+s
, Kerrostalo
74.5 m2
Kerros 3/5
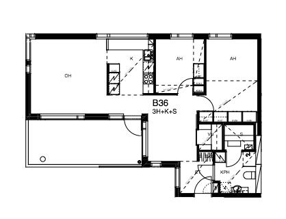
Klariksentie 3 C 40
3h+k+s
, Kerrostalo
74.5 m2
1/5
Klariksentie 3 C 40
3h+k+s
, Kerrostalo
74.5 m2
Kerros 1/5
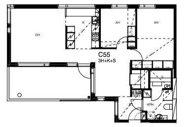
Klariksentie 3 C 55
3h+k+s
, Kerrostalo
74.5 m2
5/5
Klariksentie 3 C 55
3h+k+s
, Kerrostalo
74.5 m2
Kerros 5/5
Klariksentie 3 C 43
3h+k+s
, Kerrostalo
74.5 m2
2/5
Klariksentie 3 C 43
3h+k+s
, Kerrostalo
74.5 m2
Kerros 2/5
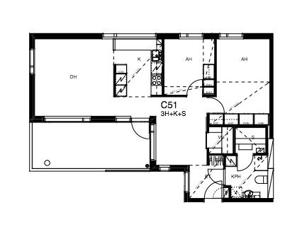
Klariksentie 3 C 51
3h+k+s
, Kerrostalo
74.5 m2
4/5
Klariksentie 3 C 51
3h+k+s
, Kerrostalo
74.5 m2
Kerros 4/5
Klariksentie 3 B 36
3h+k+s
, Kerrostalo
74.5 m2
5/5
Klariksentie 3 B 36
3h+k+s
, Kerrostalo
74.5 m2
Kerros 5/5
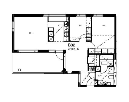
Klariksentie 3 B 32
3h+k+s
, Kerrostalo
74.5 m2
4/5
Klariksentie 3 B 32
3h+k+s
, Kerrostalo
74.5 m2
Kerros 4/5
Klariksentie 3 B 28
3h+k+s
, Kerrostalo
74.5 m2
3/5
Klariksentie 3 B 28
3h+k+s
, Kerrostalo
74.5 m2
Kerros 3/5
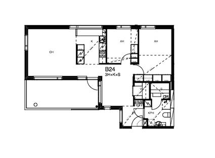
Klariksentie 3 B 24
3h+k+s
, Kerrostalo
74.5 m2
2/5
Klariksentie 3 B 24
3h+k+s
, Kerrostalo
74.5 m2
Kerros 2/5
Klariksentie 3 B 20
3h+k+s
, Kerrostalo
74.5 m2
1/5
Klariksentie 3 B 20
3h+k+s
, Kerrostalo
74.5 m2
Kerros 1/5
Klariksentie 3 A 3
4h+k+s
, Kerrostalo
84.5 m2
1/5
Klariksentie 3 A 3
4h+k+s
, Kerrostalo
84.5 m2
Kerros 1/5
Klariksentie 3 A 10
4h+k+s
, Kerrostalo
84.5 m2
3/5
Klariksentie 3 A 10
4h+k+s
, Kerrostalo
84.5 m2
Kerros 3/5
Klariksentie 3 A 14
4h+k+s
, Kerrostalo
84.5 m2
4/5
Klariksentie 3 A 14
4h+k+s
, Kerrostalo
84.5 m2
Kerros 4/5
Klariksentie 3 A 6
4h+k+s
, Kerrostalo
84.5 m2
2/5
Klariksentie 3 A 6
4h+k+s
, Kerrostalo
84.5 m2
Kerros 2/5
Klariksentie 3 C 49
4h+k+s
, Kerrostalo
84.5 m2
3/5
Klariksentie 3 C 49
4h+k+s
, Kerrostalo
84.5 m2
Kerros 3/5
Klariksentie 3 C 42
4h+k+s
, Kerrostalo
84.5 m2
1/5
Klariksentie 3 C 42
4h+k+s
, Kerrostalo
84.5 m2
Kerros 1/5
Klariksentie 3 C 45
4h+k+s
, Kerrostalo
84.5 m2
2/5
Klariksentie 3 C 45
4h+k+s
, Kerrostalo
84.5 m2
Kerros 2/5
Klariksentie 3 C 53
4h+k+s
, Kerrostalo
84.5 m2
4/5
Klariksentie 3 C 53
4h+k+s
, Kerrostalo
84.5 m2
Kerros 4/5
Klariksentie 3 B 30
4h+k+s
, Kerrostalo
84.5 m2
3/5
Klariksentie 3 B 30
4h+k+s
, Kerrostalo
84.5 m2
Kerros 3/5
Klariksentie 3 B 22
4h+k+s
, Kerrostalo
84.5 m2
1/5
Klariksentie 3 B 22
4h+k+s
, Kerrostalo
84.5 m2
Kerros 1/5
Klariksentie 3 B 26
4h+k+s
, Kerrostalo
84.5 m2
2/5
Klariksentie 3 B 26
4h+k+s
, Kerrostalo
84.5 m2
Kerros 2/5
Klariksentie 3 B 34
4h+k+s
, Kerrostalo
84.5 m2
4/5
Klariksentie 3 B 34
4h+k+s
, Kerrostalo
84.5 m2
Kerros 4/5

