Kohteen esittely
Valoisa kerrostalokohde rauhallisella sijainnilla puiston vieressä pienemmän kadun varressa Suurpellossa. Kohteessa on kaukolämmön lisäksi aurinkopaneelit.
Lähellä toimii sekä kansainvälinen että suomalainen koulu. Arjen tärkeimmät palvelut löytyvät kauppakeskus Suuriksesta. Keskuspuiston ulkoilumahdollisuuksien lisäksi alueelta löytyvät muun muassa Angry Birds -leikkipuisto sekä Rakkauden puutarha, jossa mm. kirsikkapuut kukkivat keväisin. Suurpellossa on oma kaupunkipyöräasema ja sieltä kulkee säännöllisesti busseja metrolle.
Miksi Asuntosäätiö?
Me uskomme, että onnellinen koti ja laadukas asuminen kuuluvat kaikille. Emme tavoittele voittoa, vaan käytämme kaikki vastikkeista ja vuokrista saadut tulot toimintamme kehittämiseen. Jo yli 33 000 suomalaista on valinnut Asuntosäätiön tarjoaman kodin. Tiesithän, että myös lemmikit ovat tervetulleita kaikkiin koteihimme!
Rakennuksen tiedot
- Asumismuoto Asokoti
- Keskimääräinen asumisoikeusmaksu / jm² 749,14€
- Hissit 3
- Talosauna 1
- Kuivaushuone Kyllä
- Asuntoja 55
- Asuinrakennuksia 3
- Käyttövastike / kk / jm² 14,74€
- Valmistumisvuosi 2013
- Porrashuoneet 3
- Energialuokka E
- Lämmitysmuoto Kauko + aurinkosähkö
- Autopaikat 47
- Laajakaista DNA Welho
- Antennijärjestelmä Kaapeli
- KaapeliTV DNA
- Kattomateriaali Huopa
- Runkomateriaali Betoni
- Lemmikit Sallittu
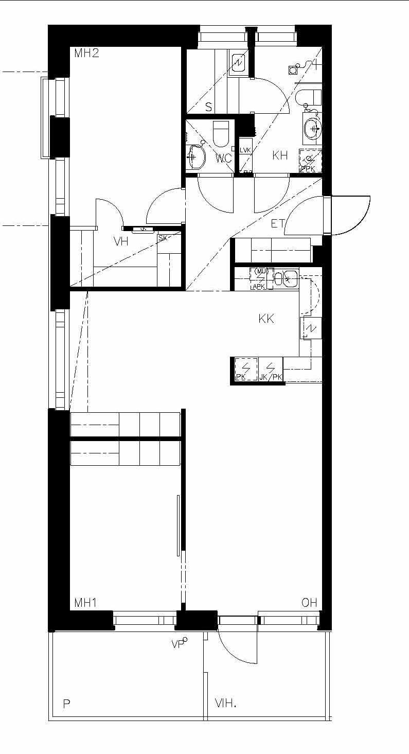
Huoneistot ja pohjakuvat: Piilipuuntie 3 C-E, Kerrostalo
Lisää hakemukselle kaikki haluamasi asuntotyypit. Mahdollisuutesi asunnon saamiseksi paranevat, kun voimme tarjota sinulle kaikkia valitsemasi asuntotyypin asuntoja, jotka mahdollisesti vapautuvat myöhemmin tästä kohteesta. Olet automaattisesti näiden asuntotyyppien hakuprosessissa.
Piilipuuntie 3 D 57
1h+kk
, Kerrostalo
34.5 m2
2/5
Piilipuuntie 3 D 57
1h+kk
, Kerrostalo
34.5 m2
Kerros 2/5
Piilipuuntie 3 D 67
1h+kk
, Kerrostalo
34.5 m2
4/5
Piilipuuntie 3 D 67
1h+kk
, Kerrostalo
34.5 m2
Kerros 4/5
Piilipuuntie 3 D 72
1h+kk
, Kerrostalo
34.5 m2
5/5
Piilipuuntie 3 D 72
1h+kk
, Kerrostalo
34.5 m2
Kerros 5/5
Piilipuuntie 3 D 62
1h+kk
, Kerrostalo
34.5 m2
3/5
Piilipuuntie 3 D 62
1h+kk
, Kerrostalo
34.5 m2
Kerros 3/5
Piilipuuntie 3 D 52
1h+kk
, Kerrostalo
34.5 m2
1/5
Piilipuuntie 3 D 52
1h+kk
, Kerrostalo
34.5 m2
Kerros 1/5
Piilipuuntie 3 E 79
2h+k
, Kerrostalo
51 m2
3/5
Piilipuuntie 3 E 79
2h+k
, Kerrostalo
51 m2
Kerros 3/5
Piilipuuntie 3 E 83
2h+k
, Kerrostalo
51 m2
4/5
Piilipuuntie 3 E 83
2h+k
, Kerrostalo
51 m2
Kerros 4/5
Piilipuuntie 3 E 75
2h+k
, Kerrostalo
51 m2
2/5
Piilipuuntie 3 E 75
2h+k
, Kerrostalo
51 m2
Kerros 2/5
Piilipuuntie 3 C 35
2h+k
, Kerrostalo
51 m2
1/5
Piilipuuntie 3 C 35
2h+k
, Kerrostalo
51 m2
Kerros 1/5
Piilipuuntie 3 C 41
2h+k
, Kerrostalo
51 m2
3/5
Piilipuuntie 3 C 41
2h+k
, Kerrostalo
51 m2
Kerros 3/5
Piilipuuntie 3 C 45
2h+k
, Kerrostalo
51 m2
4/5
Piilipuuntie 3 C 45
2h+k
, Kerrostalo
51 m2
Kerros 4/5
Piilipuuntie 3 C 37
2h+k
, Kerrostalo
51 m2
2/5
Piilipuuntie 3 C 37
2h+k
, Kerrostalo
51 m2
Kerros 2/5
Piilipuuntie 3 D 69
2h+k
, Kerrostalo
51 m2
5/5
Piilipuuntie 3 D 69
2h+k
, Kerrostalo
51 m2
Kerros 5/5
Piilipuuntie 3 D 64
2h+k
, Kerrostalo
51 m2
4/5
Piilipuuntie 3 D 64
2h+k
, Kerrostalo
51 m2
Kerros 4/5
Piilipuuntie 3 D 66
2h+k
, Kerrostalo
51 m2
4/5
Piilipuuntie 3 D 66
2h+k
, Kerrostalo
51 m2
Kerros 4/5
Piilipuuntie 3 D 51
2h+k
, Kerrostalo
51 m2
1/5
Piilipuuntie 3 D 51
2h+k
, Kerrostalo
51 m2
Kerros 1/5
Piilipuuntie 3 D 71
2h+k
, Kerrostalo
51 m2
5/5
Piilipuuntie 3 D 71
2h+k
, Kerrostalo
51 m2
Kerros 5/5
Piilipuuntie 3 D 56
2h+k
, Kerrostalo
51 m2
2/5
Piilipuuntie 3 D 56
2h+k
, Kerrostalo
51 m2
Kerros 2/5
Piilipuuntie 3 D 59
2h+k
, Kerrostalo
51 m2
3/5
Piilipuuntie 3 D 59
2h+k
, Kerrostalo
51 m2
Kerros 3/5
Piilipuuntie 3 D 61
2h+k
, Kerrostalo
51 m2
3/5
Piilipuuntie 3 D 61
2h+k
, Kerrostalo
51 m2
Kerros 3/5
Piilipuuntie 3 C 50
2h+k+s
, Kerrostalo
59.5 m2
5/5
Piilipuuntie 3 C 50
2h+k+s
, Kerrostalo
59.5 m2
Kerros 5/5
Piilipuuntie 3 D 55
2h+kk
, Kerrostalo
44.5 m2
2/5
Piilipuuntie 3 D 55
2h+kk
, Kerrostalo
44.5 m2
Kerros 2/5
Piilipuuntie 3 D 60
2h+kk
, Kerrostalo
44.5 m2
3/5
Piilipuuntie 3 D 60
2h+kk
, Kerrostalo
44.5 m2
Kerros 3/5
Piilipuuntie 3 D 70
2h+kk
, Kerrostalo
44.5 m2
5/5
Piilipuuntie 3 D 70
2h+kk
, Kerrostalo
44.5 m2
Kerros 5/5
Piilipuuntie 3 D 65
2h+kk
, Kerrostalo
44.5 m2
4/5
Piilipuuntie 3 D 65
2h+kk
, Kerrostalo
44.5 m2
Kerros 4/5
Piilipuuntie 3 E 84
2h+kk
, Kerrostalo
48 m2
4/5
Piilipuuntie 3 E 84
2h+kk
, Kerrostalo
48 m2
Kerros 4/5
Piilipuuntie 3 E 80
2h+kk
, Kerrostalo
48 m2
3/5
Piilipuuntie 3 E 80
2h+kk
, Kerrostalo
48 m2
Kerros 3/5
Piilipuuntie 3 C 42
2h+kk
, Kerrostalo
48 m2
3/5
Piilipuuntie 3 C 42
2h+kk
, Kerrostalo
48 m2
Kerros 3/5
Piilipuuntie 3 C 38
2h+kk
, Kerrostalo
48 m2
2/5
Piilipuuntie 3 C 38
2h+kk
, Kerrostalo
48 m2
Kerros 2/5
Piilipuuntie 3 C 46
2h+kk
, Kerrostalo
48 m2
4/5
Piilipuuntie 3 C 46
2h+kk
, Kerrostalo
48 m2
Kerros 4/5
Piilipuuntie 3 E 86
3h+k
, Kerrostalo
65.5 m2
5/5
Piilipuuntie 3 E 86
3h+k
, Kerrostalo
65.5 m2
Kerros 5/5
Piilipuuntie 3 E 82
3h+k
, Kerrostalo
65.5 m2
4/5
Piilipuuntie 3 E 82
3h+k
, Kerrostalo
65.5 m2
Kerros 4/5
Piilipuuntie 3 E 78
3h+k
, Kerrostalo
65.5 m2
3/5
Piilipuuntie 3 E 78
3h+k
, Kerrostalo
65.5 m2
Kerros 3/5
Piilipuuntie 3 E 74
3h+k
, Kerrostalo
65.5 m2
2/5
Piilipuuntie 3 E 74
3h+k
, Kerrostalo
65.5 m2
Kerros 2/5
Piilipuuntie 3 C 36
3h+k
, Kerrostalo
65.5 m2
2/5
Piilipuuntie 3 C 36
3h+k
, Kerrostalo
65.5 m2
Kerros 2/5
Piilipuuntie 3 C 40
3h+k
, Kerrostalo
65.5 m2
3/5
Piilipuuntie 3 C 40
3h+k
, Kerrostalo
65.5 m2
Kerros 3/5
Piilipuuntie 3 C 48
3h+k
, Kerrostalo
65.5 m2
5/5
Piilipuuntie 3 C 48
3h+k
, Kerrostalo
65.5 m2
Kerros 5/5
Piilipuuntie 3 C 44
3h+k
, Kerrostalo
65.5 m2
4/5
Piilipuuntie 3 C 44
3h+k
, Kerrostalo
65.5 m2
Kerros 4/5
Piilipuuntie 3 D 63
3h+k
, Kerrostalo
65.5 m2
4/5
Piilipuuntie 3 D 63
3h+k
, Kerrostalo
65.5 m2
Kerros 4/5
Piilipuuntie 3 D 58
3h+k
, Kerrostalo
65.5 m2
3/5
Piilipuuntie 3 D 58
3h+k
, Kerrostalo
65.5 m2
Kerros 3/5
Piilipuuntie 3 D 68
3h+k
, Kerrostalo
65.5 m2
5/5
Piilipuuntie 3 D 68
3h+k
, Kerrostalo
65.5 m2
Kerros 5/5
Piilipuuntie 3 D 53
3h+k
, Kerrostalo
65.5 m2
2/5
Piilipuuntie 3 D 53
3h+k
, Kerrostalo
65.5 m2
Kerros 2/5
Piilipuuntie 3 C 34
3h+k+s
, Kerrostalo
74.5 m2
1/5
Piilipuuntie 3 C 34
3h+k+s
, Kerrostalo
74.5 m2
Kerros 1/5
Piilipuuntie 3 E 73
3h+k+s
, Kerrostalo
87 m2
1/5
Piilipuuntie 3 E 73
3h+k+s
, Kerrostalo
87 m2
Kerros 1/5
Piilipuuntie 3 E 88
3h+k+s
, Kerrostalo
87 m2
5/5
Piilipuuntie 3 E 88
3h+k+s
, Kerrostalo
87 m2
Kerros 5/5
Piilipuuntie 3 E 77
3h+k+s
, Kerrostalo
87 m2
2/5
Piilipuuntie 3 E 77
3h+k+s
, Kerrostalo
87 m2
Kerros 2/5
Piilipuuntie 3 E 85
3h+k+s
, Kerrostalo
87 m2
4/5
Piilipuuntie 3 E 85
3h+k+s
, Kerrostalo
87 m2
Kerros 4/5
Piilipuuntie 3 C 39
3h+k+s
, Kerrostalo
87 m2
2/5
Piilipuuntie 3 C 39
3h+k+s
, Kerrostalo
87 m2
Kerros 2/5
Piilipuuntie 3 C 43
3h+k+s
, Kerrostalo
87 m2
3/5
Piilipuuntie 3 C 43
3h+k+s
, Kerrostalo
87 m2
Kerros 3/5
Piilipuuntie 3 C 47
3h+k+s
, Kerrostalo
87 m2
4/5
Piilipuuntie 3 C 47
3h+k+s
, Kerrostalo
87 m2
Kerros 4/5
Piilipuuntie 3 E 87
5h+k+s
, Kerrostalo
100.5 m2
5/5
Piilipuuntie 3 E 87
5h+k+s
, Kerrostalo
100.5 m2
Kerros 5/5
Piilipuuntie 3 C 49
5h+k+s
, Kerrostalo
100.5 m2
5/5
Piilipuuntie 3 C 49
5h+k+s
, Kerrostalo
100.5 m2
Kerros 5/5


