Kohteen esittely
Valoisa kerrostalokohde hyvällä sijainnilla Suurpellossa. Kaikissa asunnoissa on lasitettu parveke. Asukkaiden käytössä on saunaosasto ylimmässä kerroksessa. Talossa on myös kaksi kuivaushuonetta ja autohalli.
Lähellä toimii sekä kansainvälinen että suomalainen koulu. Arjen tärkeimmät palvelut löytyvät kauppakeskus Suuriksesta. Keskuspuiston ulkoilumahdollisuuksien lisäksi alueelta löytyvät muun muassa Angry Birds -leikkipuisto sekä Rakkauden puutarha, jossa mm. kirsikkapuut kukkivat keväisin. Suurpellossa on oma kaupunkipyöräasema ja sieltä kulkee säännöllisesti busseja metrolle. Lyhyt matka Ison Omenan kauppakeskukseen.
Miksi Asuntosäätiö?
Me uskomme, että onnellinen koti ja laadukas asuminen kuuluvat kaikille. Emme tavoittele voittoa, vaan käytämme kaikki vastikkeista ja vuokrista saadut tulot toimintamme kehittämiseen. Jo yli 33 000 suomalaista on valinnut Asuntosäätiön tarjoaman kodin. Tiesithän, että myös lemmikit ovat tervetulleita kaikkiin koteihimme!
Rakennuksen tiedot
- Asumismuoto Asokoti
- Keskimääräinen asumisoikeusmaksu / jm² 756,26€
- Hissit 3
- Talosauna 1
- Kuivaushuone Kyllä
- Asuntoja 56
- Asuinrakennuksia 1
- Käyttövastike / kk / jm² 15,44€
- Valmistumisvuosi 2016
- Porrashuoneet 3
- Energialuokka C
- Lämmitysmuoto Kauko
- Autopaikat 54
- Laajakaista DNA Welho
- Antennijärjestelmä Kaapeli
- KaapeliTV DNA
- Kattomateriaali Huopa
- Runkomateriaali Betoni
- Lemmikit Sallittu
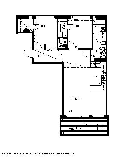
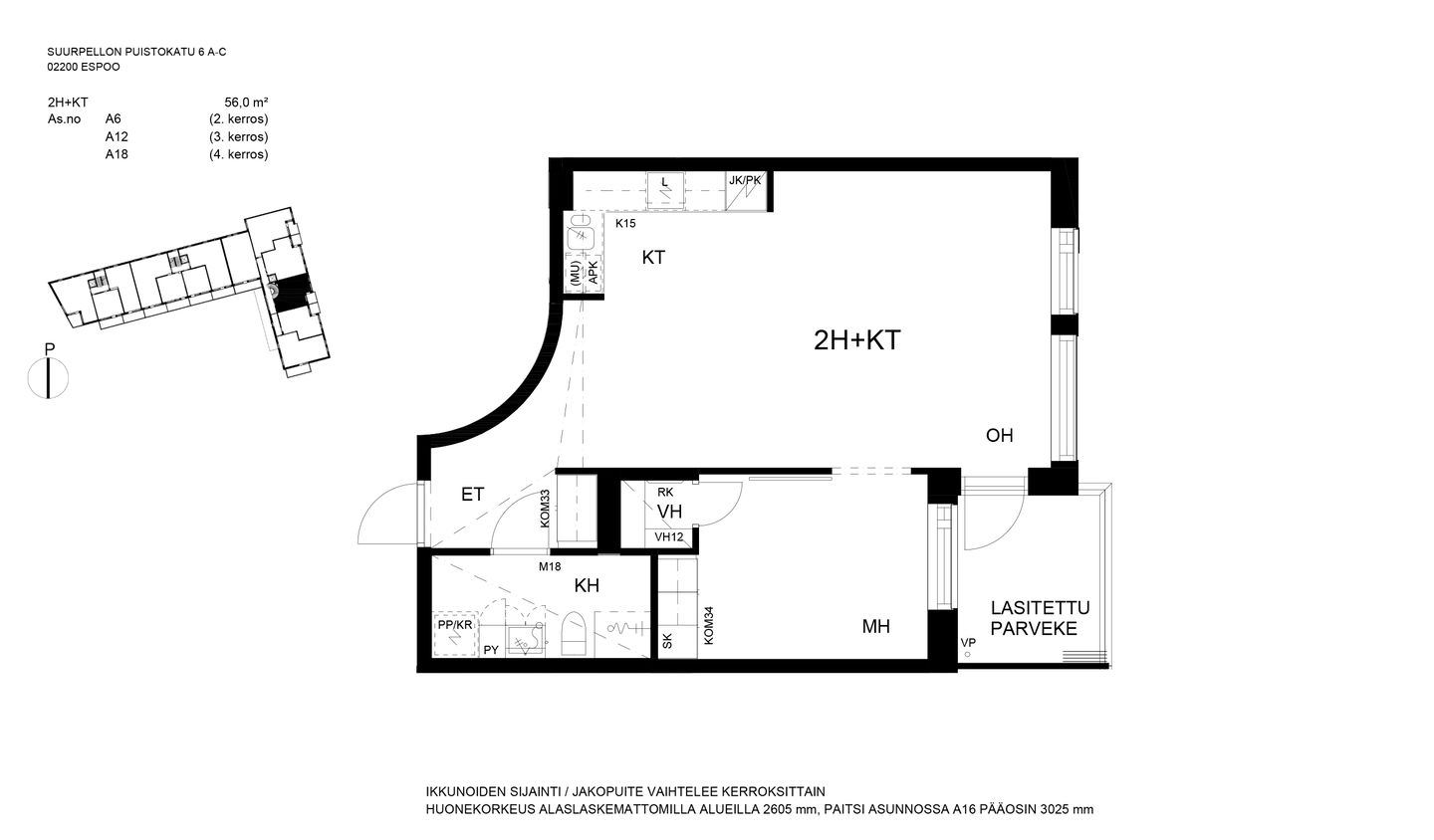
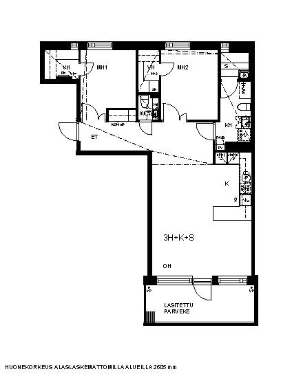
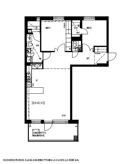
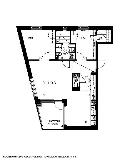
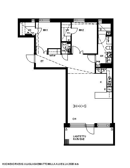
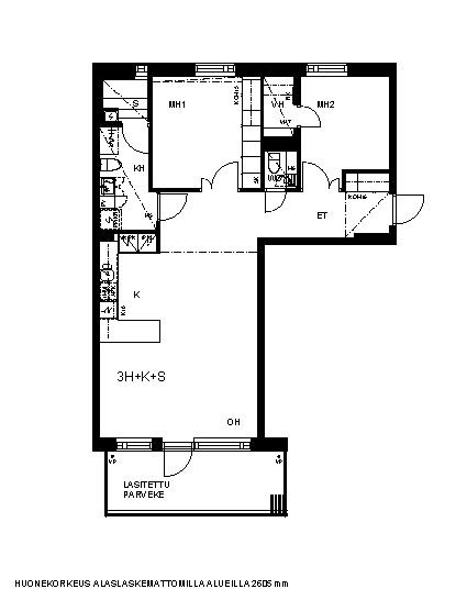
Huoneistot ja pohjakuvat: Suurpellon Puistokatu 6 A-C, Kerrostalo
Lisää hakemukselle kaikki haluamasi asuntotyypit. Mahdollisuutesi asunnon saamiseksi paranevat, kun voimme tarjota sinulle kaikkia valitsemasi asuntotyypin asuntoja, jotka mahdollisesti vapautuvat myöhemmin tästä kohteesta. Olet automaattisesti näiden asuntotyyppien hakuprosessissa.
Suurpellon puistokatu 6 B 31
1h+k
, Kerrostalo
36 m2
2/5
Suurpellon puistokatu 6 B 31
1h+k
, Kerrostalo
36 m2
Kerros 2/5
Suurpellon puistokatu 6 B 43
1h+k
, Kerrostalo
36 m2
5/5
Suurpellon puistokatu 6 B 43
1h+k
, Kerrostalo
36 m2
Kerros 5/5
Suurpellon puistokatu 6 B 28
1h+k
, Kerrostalo
36 m2
1/5
Suurpellon puistokatu 6 B 28
1h+k
, Kerrostalo
36 m2
Kerros 1/5
Suurpellon puistokatu 6 B 35
1h+k
, Kerrostalo
36 m2
3/5
Suurpellon puistokatu 6 B 35
1h+k
, Kerrostalo
36 m2
Kerros 3/5
Suurpellon puistokatu 6 B 39
1h+k
, Kerrostalo
36 m2
4/5
Suurpellon puistokatu 6 B 39
1h+k
, Kerrostalo
36 m2
Kerros 4/5
Suurpellon puistokatu 6 B 32
1h+k
, Kerrostalo
39 m2
2/5
Suurpellon puistokatu 6 B 32
1h+k
, Kerrostalo
39 m2
Kerros 2/5
Suurpellon puistokatu 6 B 36
1h+k
, Kerrostalo
39 m2
3/5
Suurpellon puistokatu 6 B 36
1h+k
, Kerrostalo
39 m2
Kerros 3/5
Suurpellon puistokatu 6 B 40
1h+k
, Kerrostalo
39 m2
4/5
Suurpellon puistokatu 6 B 40
1h+k
, Kerrostalo
39 m2
Kerros 4/5
Suurpellon puistokatu 6 A 25
1h+k+s
, Kerrostalo
49 m2
5/5
Suurpellon puistokatu 6 A 25
1h+k+s
, Kerrostalo
49 m2
Kerros 5/5
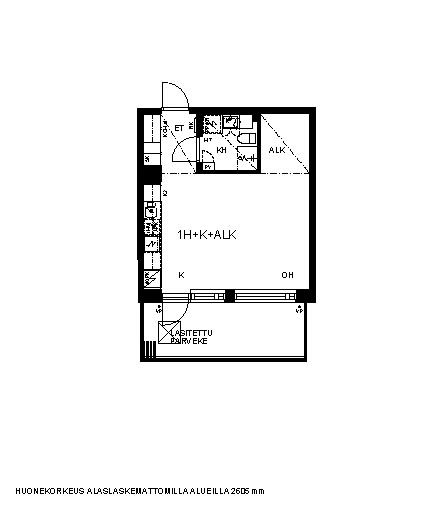
Suurpellon puistokatu 6 C 46
1h+kt
, Kerrostalo
27.5 m2
1/5
Suurpellon puistokatu 6 C 46
1h+kt
, Kerrostalo
27.5 m2
Kerros 1/5
Suurpellon puistokatu 6 A 1
2h+kt
, Kerrostalo
39.5 m2
1/5
Suurpellon puistokatu 6 A 1
2h+kt
, Kerrostalo
39.5 m2
Kerros 1/5
Suurpellon puistokatu 6 C 55
2h+kt
, Kerrostalo
40.5 m2
4/5
Suurpellon puistokatu 6 C 55
2h+kt
, Kerrostalo
40.5 m2
Kerros 4/5
Suurpellon puistokatu 6 C 52
2h+kt
, Kerrostalo
40.5 m2
3/5
Suurpellon puistokatu 6 C 52
2h+kt
, Kerrostalo
40.5 m2
Kerros 3/5
Suurpellon puistokatu 6 C 49
2h+kt
, Kerrostalo
40.5 m2
2/5
Suurpellon puistokatu 6 C 49
2h+kt
, Kerrostalo
40.5 m2
Kerros 2/5
Suurpellon puistokatu 6 A 24
2h+kt
, Kerrostalo
47.5 m2
5/5
Suurpellon puistokatu 6 A 24
2h+kt
, Kerrostalo
47.5 m2
Kerros 5/5
Suurpellon puistokatu 6 C 45
2h+kt
, Kerrostalo
48 m2
1/5
Suurpellon puistokatu 6 C 45
2h+kt
, Kerrostalo
48 m2
Kerros 1/5
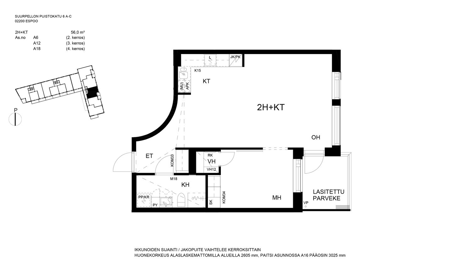
Suurpellon puistokatu 6 A 12
2h+kt
, Kerrostalo
56 m2
3/5
Suurpellon puistokatu 6 A 12
2h+kt
, Kerrostalo
56 m2
Kerros 3/5
Suurpellon puistokatu 6 A 18
2h+kt
, Kerrostalo
56 m2
4/5
Suurpellon puistokatu 6 A 18
2h+kt
, Kerrostalo
56 m2
Kerros 4/5
Suurpellon puistokatu 6 A 6
2h+kt
, Kerrostalo
56 m2
2/5
Suurpellon puistokatu 6 A 6
2h+kt
, Kerrostalo
56 m2
Kerros 2/5
Suurpellon puistokatu 6 A 7
2h+kt+s
, Kerrostalo
58 m2
2/5
Suurpellon puistokatu 6 A 7
2h+kt+s
, Kerrostalo
58 m2
Kerros 2/5
Suurpellon puistokatu 6 A 19
2h+kt+s
, Kerrostalo
58 m2
4/5
Suurpellon puistokatu 6 A 19
2h+kt+s
, Kerrostalo
58 m2
Kerros 4/5
Suurpellon puistokatu 6 A 13
2h+kt+s
, Kerrostalo
58 m2
3/5
Suurpellon puistokatu 6 A 13
2h+kt+s
, Kerrostalo
58 m2
Kerros 3/5
Suurpellon puistokatu 6 C 48
2h+kt+s
, Kerrostalo
58.5 m2
2/5
Suurpellon puistokatu 6 C 48
2h+kt+s
, Kerrostalo
58.5 m2
Kerros 2/5
Suurpellon puistokatu 6 C 54
2h+kt+s
, Kerrostalo
58.5 m2
4/5
Suurpellon puistokatu 6 C 54
2h+kt+s
, Kerrostalo
58.5 m2
Kerros 4/5
Suurpellon puistokatu 6 C 51
2h+kt+s
, Kerrostalo
58.5 m2
3/5
Suurpellon puistokatu 6 C 51
2h+kt+s
, Kerrostalo
58.5 m2
Kerros 3/5
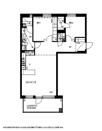
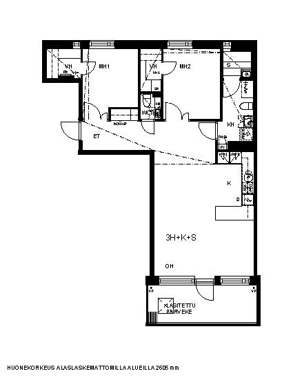
Suurpellon puistokatu 6 A 23
3h+k
, Kerrostalo
60.5 m2
5/5
Suurpellon puistokatu 6 A 23
3h+k
, Kerrostalo
60.5 m2
Kerros 5/5
Suurpellon puistokatu 6 A 26
3h+k
, Kerrostalo
62.5 m2
5/5
Suurpellon puistokatu 6 A 26
3h+k
, Kerrostalo
62.5 m2
Kerros 5/5
Suurpellon puistokatu 6 A 22
3h+k
, Kerrostalo
72.5 m2
5/5
Suurpellon puistokatu 6 A 22
3h+k
, Kerrostalo
72.5 m2
Kerros 5/5
Suurpellon puistokatu 6 A 11
3h+k
, Kerrostalo
73 m2
3/5
Suurpellon puistokatu 6 A 11
3h+k
, Kerrostalo
73 m2
Kerros 3/5
Suurpellon puistokatu 6 A 17
3h+k
, Kerrostalo
73 m2
4/5
Suurpellon puistokatu 6 A 17
3h+k
, Kerrostalo
73 m2
Kerros 4/5
Suurpellon puistokatu 6 A 5
3h+k
, Kerrostalo
73 m2
2/5
Suurpellon puistokatu 6 A 5
3h+k
, Kerrostalo
73 m2
Kerros 2/5
Suurpellon puistokatu 6 A 8
3h+k
, Kerrostalo
73 m2
2/5
Suurpellon puistokatu 6 A 8
3h+k
, Kerrostalo
73 m2
Kerros 2/5
Suurpellon puistokatu 6 A 20
3h+k
, Kerrostalo
73 m2
4/5
Suurpellon puistokatu 6 A 20
3h+k
, Kerrostalo
73 m2
Kerros 4/5
Suurpellon puistokatu 6 A 14
3h+k
, Kerrostalo
73 m2
3/5
Suurpellon puistokatu 6 A 14
3h+k
, Kerrostalo
73 m2
Kerros 3/5
Suurpellon puistokatu 6 B 44
3h+k+s
, Kerrostalo
71.5 m2
5/5
Suurpellon puistokatu 6 B 44
3h+k+s
, Kerrostalo
71.5 m2
Kerros 5/5
Suurpellon puistokatu 6 A 9
3h+k+s
, Kerrostalo
78.5 m2
3/5
Suurpellon puistokatu 6 A 9
3h+k+s
, Kerrostalo
78.5 m2
Kerros 3/5
Suurpellon puistokatu 6 A 21
3h+k+s
, Kerrostalo
78.5 m2
5/5
Suurpellon puistokatu 6 A 21
3h+k+s
, Kerrostalo
78.5 m2
Kerros 5/5
Suurpellon puistokatu 6 A 15
3h+k+s
, Kerrostalo
78.5 m2
4/5
Suurpellon puistokatu 6 A 15
3h+k+s
, Kerrostalo
78.5 m2
Kerros 4/5
Suurpellon puistokatu 6 A 3
3h+k+s
, Kerrostalo
79 m2
2/5
Suurpellon puistokatu 6 A 3
3h+k+s
, Kerrostalo
79 m2
Kerros 2/5
Suurpellon puistokatu 6 C 53
3h+k+s
, Kerrostalo
80 m2
3/5
Suurpellon puistokatu 6 C 53
3h+k+s
, Kerrostalo
80 m2
Kerros 3/5
Suurpellon puistokatu 6 C 50
3h+k+s
, Kerrostalo
80 m2
2/5
Suurpellon puistokatu 6 C 50
3h+k+s
, Kerrostalo
80 m2
Kerros 2/5
Suurpellon puistokatu 6 C 56
3h+k+s
, Kerrostalo
80 m2
4/5
Suurpellon puistokatu 6 C 56
3h+k+s
, Kerrostalo
80 m2
Kerros 4/5
Suurpellon puistokatu 6 B 41
3h+k+s
, Kerrostalo
80.5 m2
4/5
Suurpellon puistokatu 6 B 41
3h+k+s
, Kerrostalo
80.5 m2
Kerros 4/5
Suurpellon puistokatu 6 B 38
3h+k+s
, Kerrostalo
80.5 m2
4/5
Suurpellon puistokatu 6 B 38
3h+k+s
, Kerrostalo
80.5 m2
Kerros 4/5
Suurpellon puistokatu 6 B 42
3h+k+s
, Kerrostalo
80.5 m2
5/5
Suurpellon puistokatu 6 B 42
3h+k+s
, Kerrostalo
80.5 m2
Kerros 5/5
Suurpellon puistokatu 6 B 33
3h+k+s
, Kerrostalo
80.5 m2
2/5
Suurpellon puistokatu 6 B 33
3h+k+s
, Kerrostalo
80.5 m2
Kerros 2/5
Suurpellon puistokatu 6 B 34
3h+k+s
, Kerrostalo
80.5 m2
3/5
Suurpellon puistokatu 6 B 34
3h+k+s
, Kerrostalo
80.5 m2
Kerros 3/5
Suurpellon puistokatu 6 B 30
3h+k+s
, Kerrostalo
80.5 m2
2/5
Suurpellon puistokatu 6 B 30
3h+k+s
, Kerrostalo
80.5 m2
Kerros 2/5
Suurpellon puistokatu 6 B 37
3h+k+s
, Kerrostalo
80.5 m2
3/5
Suurpellon puistokatu 6 B 37
3h+k+s
, Kerrostalo
80.5 m2
Kerros 3/5
Suurpellon puistokatu 6 C 47
3h+k+s
, Kerrostalo
80.5 m2
1/5
Suurpellon puistokatu 6 C 47
3h+k+s
, Kerrostalo
80.5 m2
Kerros 1/5
Suurpellon puistokatu 6 B 27
3h+k+s
, Kerrostalo
81 m2
1/5
Suurpellon puistokatu 6 B 27
3h+k+s
, Kerrostalo
81 m2
Kerros 1/5
Suurpellon puistokatu 6 A 16
3h+kt+s
, Kerrostalo
77.5 m2
4/5
Suurpellon puistokatu 6 A 16
3h+kt+s
, Kerrostalo
77.5 m2
Kerros 4/5
Suurpellon puistokatu 6 A 10
3h+kt+s
, Kerrostalo
78 m2
3/5
Suurpellon puistokatu 6 A 10
3h+kt+s
, Kerrostalo
78 m2
Kerros 3/5
Suurpellon puistokatu 6 A 4
3h+kt+s
, Kerrostalo
78 m2
2/5
Suurpellon puistokatu 6 A 4
3h+kt+s
, Kerrostalo
78 m2
Kerros 2/5
Suurpellon puistokatu 6 A 2
3h+kt+s
, Kerrostalo
101.5 m2
1/5
Suurpellon puistokatu 6 A 2
3h+kt+s
, Kerrostalo
101.5 m2
Kerros 1/5
Suurpellon puistokatu 6 B 29
4h+k+s
, Kerrostalo
93.5 m2
1/5
Suurpellon puistokatu 6 B 29
4h+k+s
, Kerrostalo
93.5 m2
Kerros 1/5


