Kohteen esittely
Joupinkuja sijaitsee loistavien liikenneyhteyksien varrella: juna-asema sijaitsee 700 metrin ja lähin bussipysäkki 400 metrin päässä. Junalla Helsingin rautatieasemalle pääsee 25 minuutissa.
Suvelasta ja sen lähialueelta Tuomarilasta löytyy monta päiväkotia ja koulua. Lähellä sijaitsevasta Espoon keskuksesta löytyy mm. ruokakauppoja, kuntosaleja, kauppakeskus sekä kirjasto. Suurempi kauppakeskus, Sello, löytyy Leppävaarasta, jonne pääsee junalla 10 minuutissa.
Joupinkujan lähiympäristö tarjoaa upeat ulkoilu- ja liikuntamahdollisuudet, kuten suuren Espoon keskuspuiston lenkkeilypolkuineen, Kasavuoren kalliot, jalkapallohallin ja luistelukentän sekä kattavat hiihtoreitit. Keski-Espoon uimahalli sijaitsee noin kahden kilometrin päässä.
Miksi Asuntosäätiö?
Me uskomme, että onnellinen koti ja laadukas asuminen kuuluvat kaikille. Emme tavoittele voittoa, vaan käytämme kaikki vastikkeista ja vuokrista saadut tulot toimintamme kehittämiseen. Jo yli 33 000 suomalaista on valinnut Asuntosäätiön tarjoaman kodin. Tiesithän, että myös lemmikit ovat tervetulleita kaikkiin koteihimme!
Rakennuksen tiedot
- Asumismuoto Asokoti
- Keskimääräinen asumisoikeusmaksu / jm² 395,95€
- Hissit Ei
- Talosauna Ei
- Kuivaushuone Kyllä
- Asuntoja 28
- Asuinrakennuksia 2
- Käyttövastike / kk / jm² 12,84€
- Valmistumisvuosi 1999
- Porrashuoneet 2
- Energialuokka E, D
- Lämmitysmuoto Kauko
- Autopaikat Ei
- Laajakaista DNA Welho
- Antennijärjestelmä Kaapeli
- KaapeliTV DNA
- Kattomateriaali Huopa
- Runkomateriaali Betoni
- Lemmikit Sallittu
Huoneistot ja pohjakuvat: Joupinkuja 2, , Kerrostalo
Lisää hakemukselle kaikki haluamasi asuntotyypit. Mahdollisuutesi asunnon saamiseksi paranevat, kun voimme tarjota sinulle kaikkia valitsemasi asuntotyypin asuntoja, jotka mahdollisesti vapautuvat myöhemmin tästä kohteesta. Olet automaattisesti näiden asuntotyyppien hakuprosessissa.
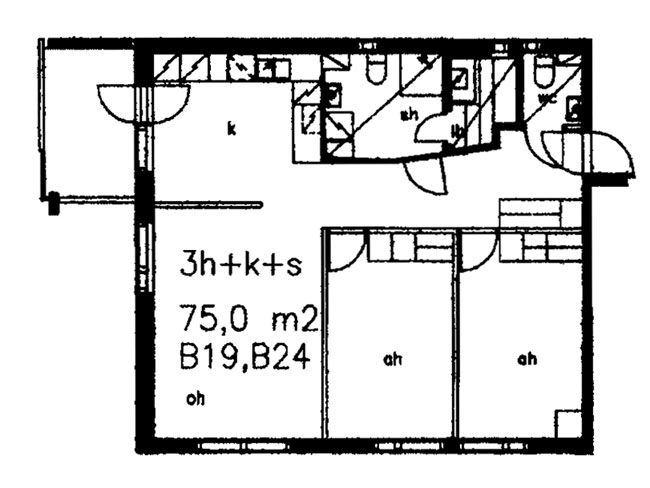
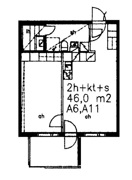
Joupinkuja 2 A 11
2h+k+s
, Kerrostalo
46 m2
3/3
Joupinkuja 2 A 11
2h+k+s
, Kerrostalo
46 m2
Kerros 3/3
Joupinkuja 2 A 6
2h+k+s
, Kerrostalo
46 m2
2/3
Joupinkuja 2 A 6
2h+k+s
, Kerrostalo
46 m2
Kerros 2/3
Joupinkuja 2 A 2
2h+k+s
, Kerrostalo
46 m2
1/3
Joupinkuja 2 A 2
2h+k+s
, Kerrostalo
46 m2
Kerros 1/3
Joupinkuja 2 B 2
2h+k+s
, Kerrostalo
46 m2
1/3
Joupinkuja 2 B 2
2h+k+s
, Kerrostalo
46 m2
Kerros 1/3
Joupinkuja 2 B 11
2h+k+s
, Kerrostalo
46 m2
3/3
Joupinkuja 2 B 11
2h+k+s
, Kerrostalo
46 m2
Kerros 3/3
Joupinkuja 2 B 6
2h+k+s
, Kerrostalo
46 m2
2/3
Joupinkuja 2 B 6
2h+k+s
, Kerrostalo
46 m2
Kerros 2/3
Joupinkuja 2 B 3
2h+k+s
, Kerrostalo
52 m2
1/3
Joupinkuja 2 B 3
2h+k+s
, Kerrostalo
52 m2
Kerros 1/3
Joupinkuja 2 B 4
2h+k+s
, Kerrostalo
59.5 m2
1/3
Joupinkuja 2 B 4
2h+k+s
, Kerrostalo
59.5 m2
Kerros 1/3
Joupinkuja 2 A 4
2h+kk+s
, Kerrostalo
47.5 m2
1/3
Joupinkuja 2 A 4
2h+kk+s
, Kerrostalo
47.5 m2
Kerros 1/3
Joupinkuja 2 A 13
2h+kk+s
, Kerrostalo
47.5 m2
3/3
Joupinkuja 2 A 13
2h+kk+s
, Kerrostalo
47.5 m2
Kerros 3/3
Joupinkuja 2 B 13
2h+kk+s
, Kerrostalo
47.5 m2
3/3
Joupinkuja 2 B 13
2h+kk+s
, Kerrostalo
47.5 m2
Kerros 3/3
Joupinkuja 2 B 8
2h+kk+s
, Kerrostalo
47.5 m2
2/3
Joupinkuja 2 B 8
2h+kk+s
, Kerrostalo
47.5 m2
Kerros 2/3
Joupinkuja 2 A 3
3h+k+s
, Kerrostalo
69.5 m2
1/3
Joupinkuja 2 A 3
3h+k+s
, Kerrostalo
69.5 m2
Kerros 1/3
Joupinkuja 2 A 12
3h+k+s
, Kerrostalo
69.5 m2
3/3
Joupinkuja 2 A 12
3h+k+s
, Kerrostalo
69.5 m2
Kerros 3/3
Joupinkuja 2 B 12
3h+k+s
, Kerrostalo
69.5 m2
3/3
Joupinkuja 2 B 12
3h+k+s
, Kerrostalo
69.5 m2
Kerros 3/3
Joupinkuja 2 B 7
3h+k+s
, Kerrostalo
69.5 m2
2/3
Joupinkuja 2 B 7
3h+k+s
, Kerrostalo
69.5 m2
Kerros 2/3
Joupinkuja 2 A 1
3h+k+s
, Kerrostalo
75 m2
1/3
Joupinkuja 2 A 1
3h+k+s
, Kerrostalo
75 m2
Kerros 1/3
Joupinkuja 2 A 10
3h+k+s
, Kerrostalo
75 m2
3/3
Joupinkuja 2 A 10
3h+k+s
, Kerrostalo
75 m2
Kerros 3/3
Joupinkuja 2 A 5
3h+k+s
, Kerrostalo
75 m2
2/3
Joupinkuja 2 A 5
3h+k+s
, Kerrostalo
75 m2
Kerros 2/3
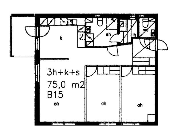
Joupinkuja 2 B 5
3h+k+s
, Kerrostalo
75 m2
2/3
Joupinkuja 2 B 5
3h+k+s
, Kerrostalo
75 m2
Kerros 2/3
Joupinkuja 2 B 1
3h+k+s
, Kerrostalo
75 m2
1/3
Joupinkuja 2 B 1
3h+k+s
, Kerrostalo
75 m2
Kerros 1/3
Joupinkuja 2 B 10
3h+k+s
, Kerrostalo
75 m2
3/3
Joupinkuja 2 B 10
3h+k+s
, Kerrostalo
75 m2
Kerros 3/3
Joupinkuja 2 A 14
4h+k+s
, Kerrostalo
87.5 m2
3/3
Joupinkuja 2 A 14
4h+k+s
, Kerrostalo
87.5 m2
Kerros 3/3
Joupinkuja 2 A 9
4h+k+s
, Kerrostalo
87.5 m2
2/3
Joupinkuja 2 A 9
4h+k+s
, Kerrostalo
87.5 m2
Kerros 2/3
Joupinkuja 2 B 14
4h+k+s
, Kerrostalo
87.5 m2
3/3
Joupinkuja 2 B 14
4h+k+s
, Kerrostalo
87.5 m2
Kerros 3/3
Joupinkuja 2 B 9
4h+k+s
, Kerrostalo
87.5 m2
2/3
Joupinkuja 2 B 9
4h+k+s
, Kerrostalo
87.5 m2
Kerros 2/3

