Kohteen esittely
Sokinsuontie 7 sijaitsee uudistuvassa Espoon Suvelassa loistavien kulkuyhteyksien varrella. Tässä perheystävällisessä talossa on 35 kotia ja hissi.
Juna-asemalle on matkaa 1,3 kilometriä ja lähimmälle bussipysäkille vain 400 metriä. Alle kilometrin päässä sijaitsevasta Espoon keskuksesta löytyy peruspalvelujen lisäksi mm. kauppakeskus. Viiden minuutin kävelymatkan päässä aukeaa Espoon keskuspuisto, jossa pääsee liikkumaan niin kesällä kuin talvellakin.
Miksi Asuntosäätiö?
Me uskomme, että onnellinen koti ja laadukas asuminen kuuluvat kaikille. Emme tavoittele voittoa, vaan käytämme kaikki vastikkeista ja vuokrista saadut tulot toimintamme kehittämiseen. Jo yli 33 000 suomalaista on valinnut Asuntosäätiön tarjoaman kodin. Tiesithän, että myös lemmikit ovat tervetulleita kaikkiin koteihimme!
Rakennuksen tiedot
- Asumismuoto Asokoti
- Keskimääräinen asumisoikeusmaksu / jm² 433,29€
- Hissit 1
- Talosauna Ei
- Kuivaushuone Kyllä
- Asuntoja 35
- Asuinrakennuksia 1
- Käyttövastike / kk / jm² 13,09€
- Valmistumisvuosi 2003
- Porrashuoneet 1
- Energialuokka E
- Lämmitysmuoto Kauko
- Autopaikat 35
- Askarteluhuone 1
- Laajakaista DNA Welho
- Antennijärjestelmä Kaapeli
- KaapeliTV DNA
- Kattomateriaali Huopa
- Runkomateriaali Betoni
- Lemmikit Sallittu
Huoneistot ja pohjakuvat: Sokinsuontie 7, Piharakennus, Kerrostalo
Lisää hakemukselle kaikki haluamasi asuntotyypit. Mahdollisuutesi asunnon saamiseksi paranevat, kun voimme tarjota sinulle kaikkia valitsemasi asuntotyypin asuntoja, jotka mahdollisesti vapautuvat myöhemmin tästä kohteesta. Olet automaattisesti näiden asuntotyyppien hakuprosessissa.
Sokinsuontie 7 A 14
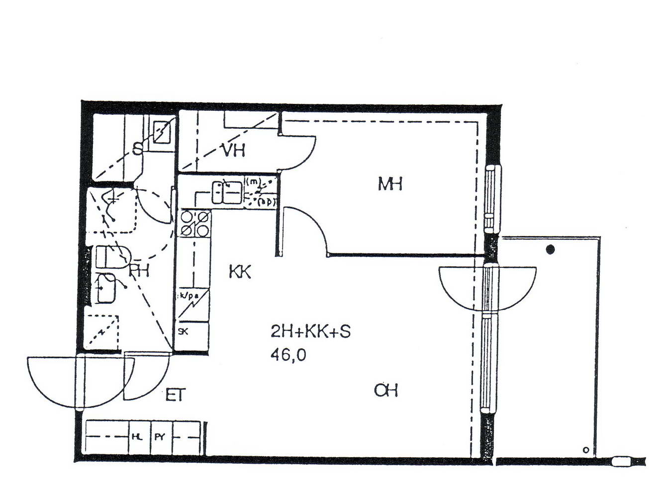
1h+kk+s
, Kerrostalo
37 m2
2/5
Sokinsuontie 7 A 14
1h+kk+s
, Kerrostalo
37 m2
Kerros 2/5
Sokinsuontie 7 A 35
1h+kk+s
, Kerrostalo
37 m2
5/5
Sokinsuontie 7 A 35
1h+kk+s
, Kerrostalo
37 m2
Kerros 5/5
Sokinsuontie 7 A 28
1h+kk+s
, Kerrostalo
37 m2
4/5
Sokinsuontie 7 A 28
1h+kk+s
, Kerrostalo
37 m2
Kerros 4/5
Sokinsuontie 7 A 7
1h+kk+s
, Kerrostalo
37 m2
1/5
Sokinsuontie 7 A 7
1h+kk+s
, Kerrostalo
37 m2
Kerros 1/5
Sokinsuontie 7 A 21
1h+kk+s
, Kerrostalo
37 m2
3/5
Sokinsuontie 7 A 21
1h+kk+s
, Kerrostalo
37 m2
Kerros 3/5
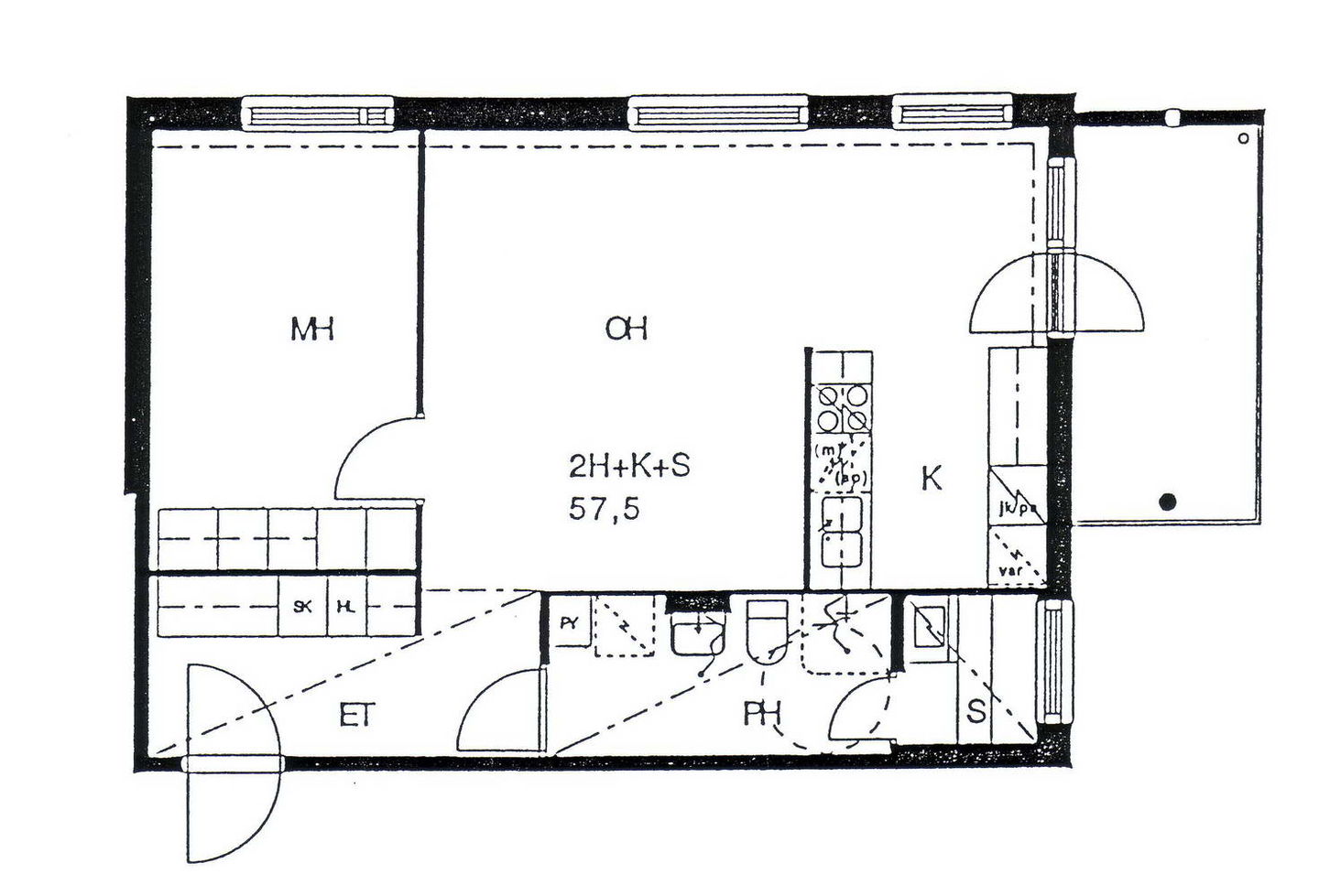
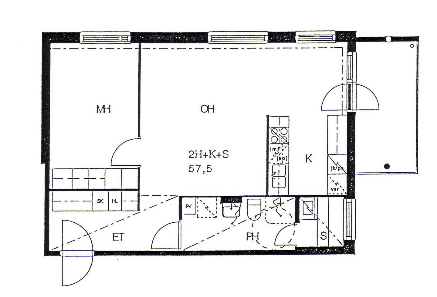
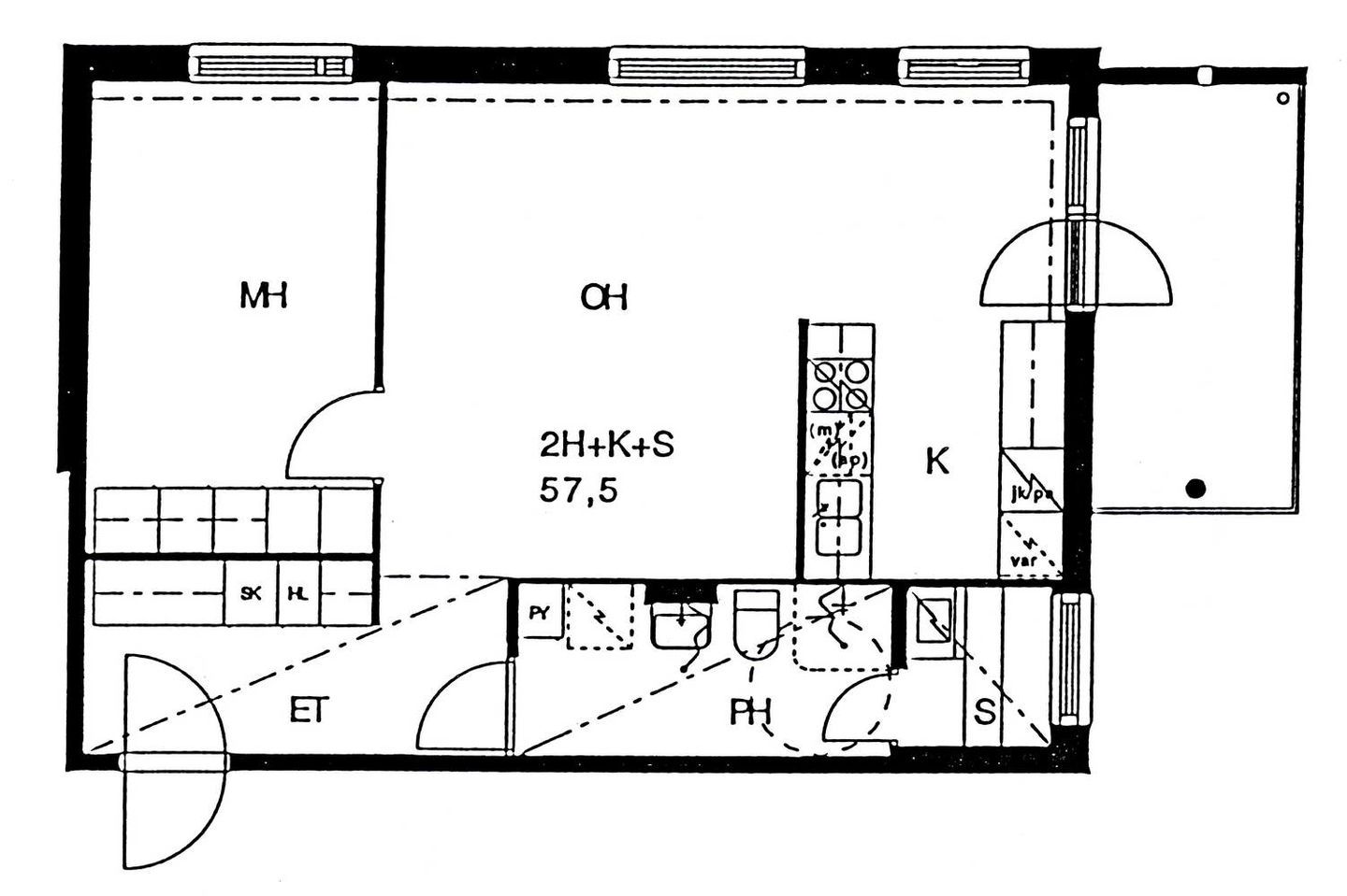
Sokinsuontie 7 A 29
2h+k+s
, Kerrostalo
57.5 m2
5/5
Sokinsuontie 7 A 29
2h+k+s
, Kerrostalo
57.5 m2
Kerros 5/5
Sokinsuontie 7 A 22
2h+k+s
, Kerrostalo
57.5 m2
4/5
Sokinsuontie 7 A 22
2h+k+s
, Kerrostalo
57.5 m2
Kerros 4/5
Sokinsuontie 7 A 15
2h+k+s
, Kerrostalo
57.5 m2
3/5
Sokinsuontie 7 A 15
2h+k+s
, Kerrostalo
57.5 m2
Kerros 3/5
Sokinsuontie 7 A 1
2h+k+s
, Kerrostalo
57.5 m2
1/5
Sokinsuontie 7 A 1
2h+k+s
, Kerrostalo
57.5 m2
Kerros 1/5
Sokinsuontie 7 A 8
2h+k+s
, Kerrostalo
57.5 m2
2/5
Sokinsuontie 7 A 8
2h+k+s
, Kerrostalo
57.5 m2
Kerros 2/5
Sokinsuontie 7 A 26
2h+kk+s
, Kerrostalo
45.5 m2
4/5
Sokinsuontie 7 A 26
2h+kk+s
, Kerrostalo
45.5 m2
Kerros 4/5
Sokinsuontie 7 A 12
2h+kk+s
, Kerrostalo
45.5 m2
2/5
Sokinsuontie 7 A 12
2h+kk+s
, Kerrostalo
45.5 m2
Kerros 2/5
Sokinsuontie 7 A 33
2h+kk+s
, Kerrostalo
45.5 m2
5/5
Sokinsuontie 7 A 33
2h+kk+s
, Kerrostalo
45.5 m2
Kerros 5/5
Sokinsuontie 7 A 5
2h+kk+s
, Kerrostalo
45.5 m2
1/5
Sokinsuontie 7 A 5
2h+kk+s
, Kerrostalo
45.5 m2
Kerros 1/5
Sokinsuontie 7 A 19
2h+kk+s
, Kerrostalo
45.5 m2
3/5
Sokinsuontie 7 A 19
2h+kk+s
, Kerrostalo
45.5 m2
Kerros 3/5
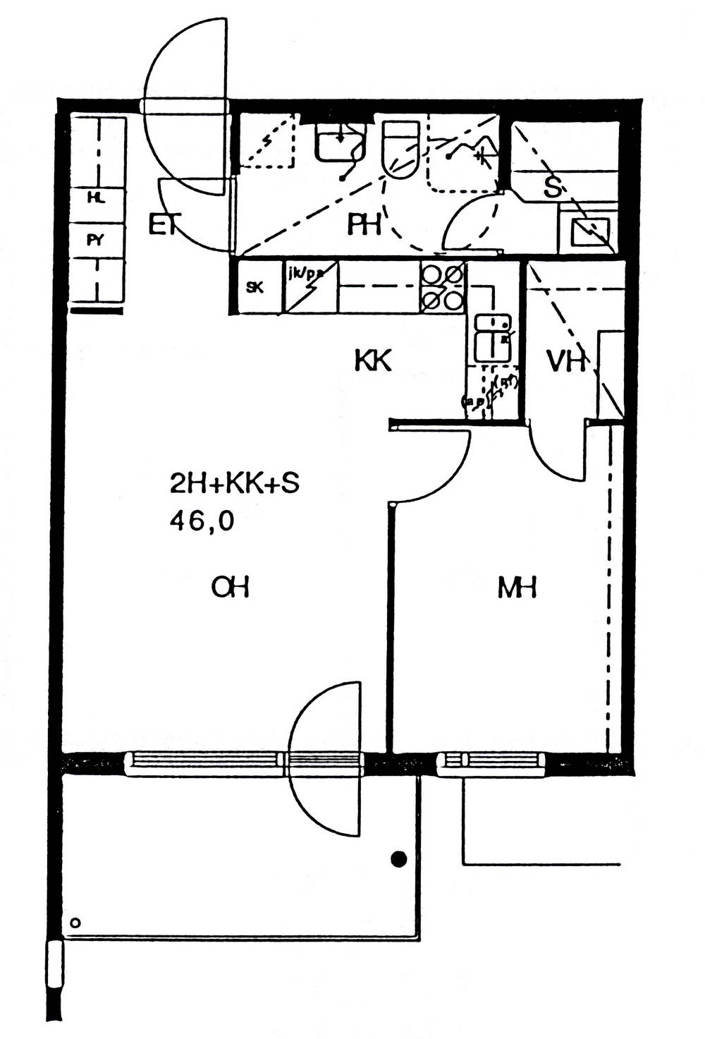
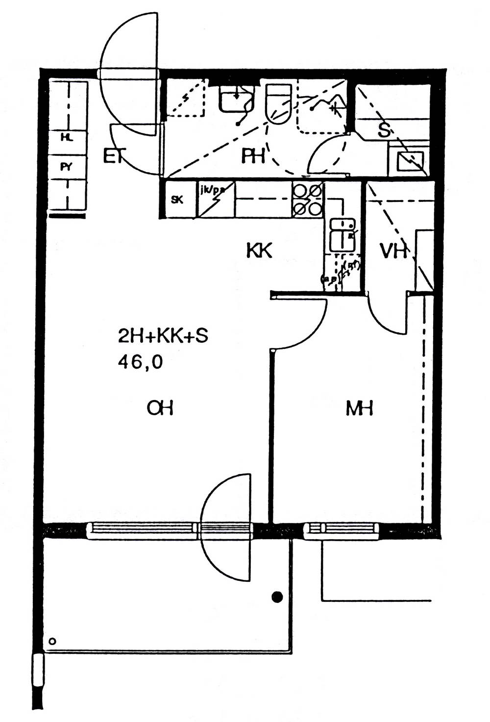
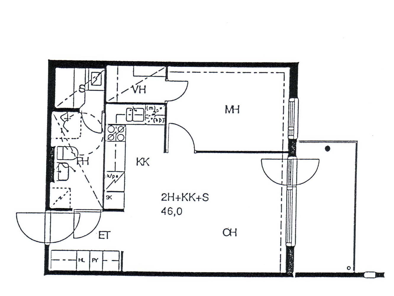
Sokinsuontie 7 A 30
2h+kk+s
, Kerrostalo
46 m2
5/5
Sokinsuontie 7 A 30
2h+kk+s
, Kerrostalo
46 m2
Kerros 5/5
Sokinsuontie 7 A 4
2h+kk+s
, Kerrostalo
46 m2
1/5
Sokinsuontie 7 A 4
2h+kk+s
, Kerrostalo
46 m2
Kerros 1/5
Sokinsuontie 7 A 23
2h+kk+s
, Kerrostalo
46 m2
4/5
Sokinsuontie 7 A 23
2h+kk+s
, Kerrostalo
46 m2
Kerros 4/5
Sokinsuontie 7 A 16
2h+kk+s
, Kerrostalo
46 m2
3/5
Sokinsuontie 7 A 16
2h+kk+s
, Kerrostalo
46 m2
Kerros 3/5
Sokinsuontie 7 A 18
2h+kk+s
, Kerrostalo
46 m2
3/5
Sokinsuontie 7 A 18
2h+kk+s
, Kerrostalo
46 m2
Kerros 3/5
Sokinsuontie 7 A 2
2h+kk+s
, Kerrostalo
46 m2
1/5
Sokinsuontie 7 A 2
2h+kk+s
, Kerrostalo
46 m2
Kerros 1/5
Sokinsuontie 7 A 32
2h+kk+s
, Kerrostalo
46 m2
5/5
Sokinsuontie 7 A 32
2h+kk+s
, Kerrostalo
46 m2
Kerros 5/5
Sokinsuontie 7 A 11
2h+kk+s
, Kerrostalo
46 m2
2/5
Sokinsuontie 7 A 11
2h+kk+s
, Kerrostalo
46 m2
Kerros 2/5
Sokinsuontie 7 A 25
2h+kk+s
, Kerrostalo
46 m2
4/5
Sokinsuontie 7 A 25
2h+kk+s
, Kerrostalo
46 m2
Kerros 4/5
Sokinsuontie 7 A 9
2h+kk+s
, Kerrostalo
46 m2
2/5
Sokinsuontie 7 A 9
2h+kk+s
, Kerrostalo
46 m2
Kerros 2/5
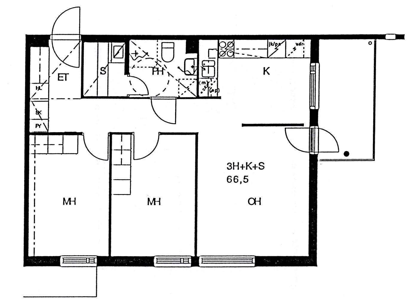
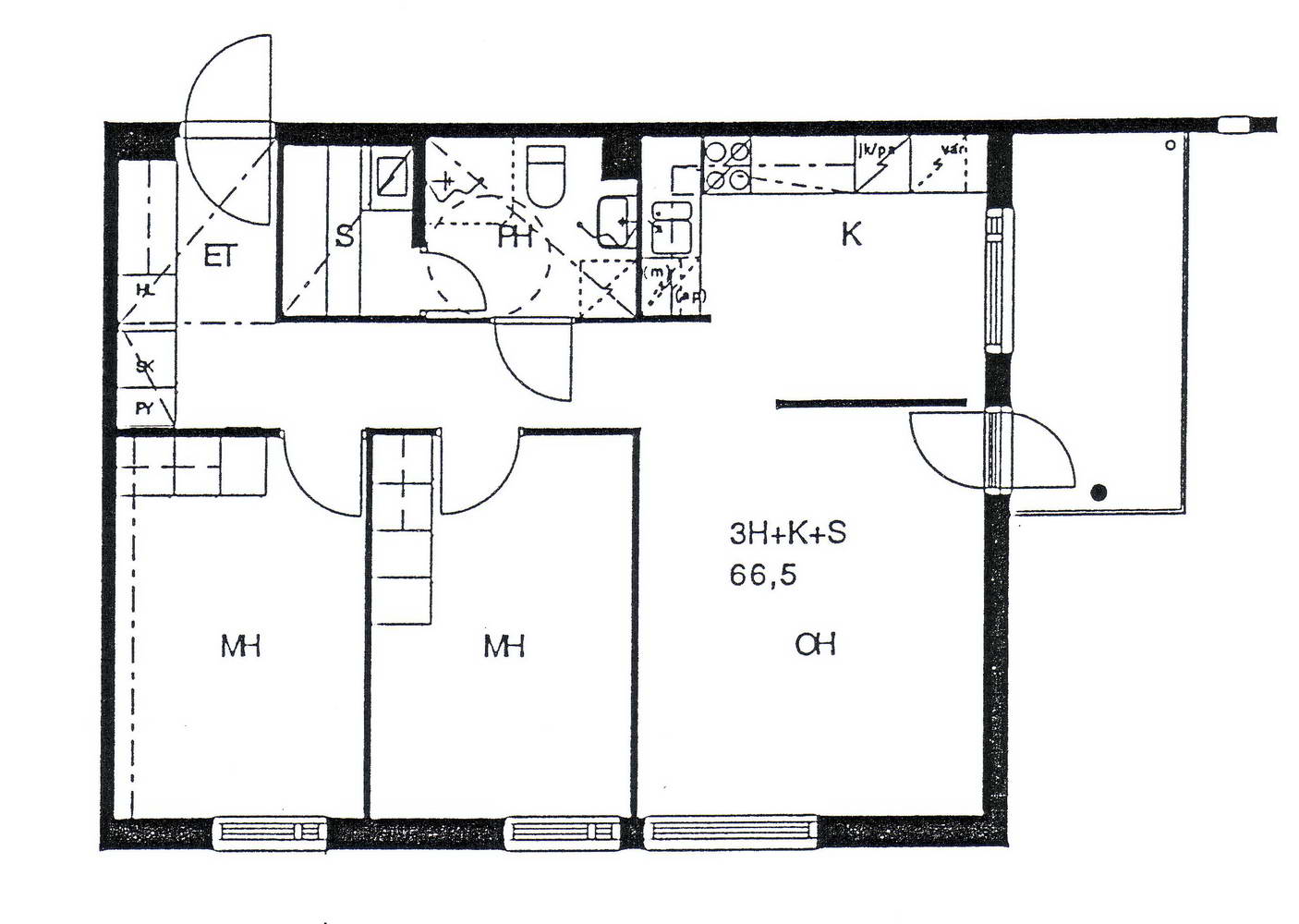
Sokinsuontie 7 A 10
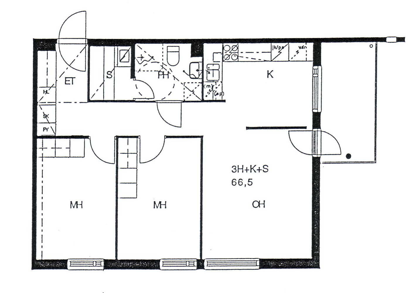
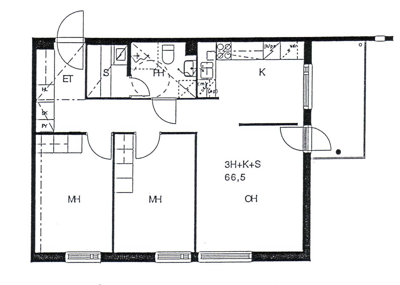
3h+k+s
, Kerrostalo
66.5 m2
2/5
Sokinsuontie 7 A 10
3h+k+s
, Kerrostalo
66.5 m2
Kerros 2/5
Sokinsuontie 7 A 31
3h+k+s
, Kerrostalo
66.5 m2
5/5
Sokinsuontie 7 A 31
3h+k+s
, Kerrostalo
66.5 m2
Kerros 5/5
Sokinsuontie 7 A 3
3h+k+s
, Kerrostalo
66.5 m2
1/5
Sokinsuontie 7 A 3
3h+k+s
, Kerrostalo
66.5 m2
Kerros 1/5
Sokinsuontie 7 A 17
3h+k+s
, Kerrostalo
66.5 m2
3/5
Sokinsuontie 7 A 17
3h+k+s
, Kerrostalo
66.5 m2
Kerros 3/5
Sokinsuontie 7 A 24
3h+k+s
, Kerrostalo
66.5 m2
4/5
Sokinsuontie 7 A 24
3h+k+s
, Kerrostalo
66.5 m2
Kerros 4/5
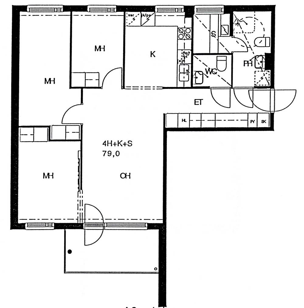
Sokinsuontie 7 A 20
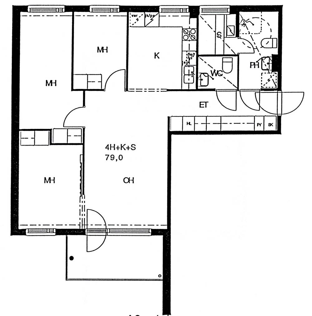
4h+k+s
, Kerrostalo
79 m2
3/5
Sokinsuontie 7 A 20
4h+k+s
, Kerrostalo
79 m2
Kerros 3/5
Sokinsuontie 7 A 27
4h+k+s
, Kerrostalo
79 m2
4/5
Sokinsuontie 7 A 27
4h+k+s
, Kerrostalo
79 m2
Kerros 4/5
Sokinsuontie 7 A 34
4h+k+s
, Kerrostalo
79 m2
5/5
Sokinsuontie 7 A 34
4h+k+s
, Kerrostalo
79 m2
Kerros 5/5
Sokinsuontie 7 A 13
4h+k+s
, Kerrostalo
79 m2
2/5
Sokinsuontie 7 A 13
4h+k+s
, Kerrostalo
79 m2
Kerros 2/5
Sokinsuontie 7 A 6
4h+k+s
, Kerrostalo
79 m2
1/5
Sokinsuontie 7 A 6
4h+k+s
, Kerrostalo
79 m2
Kerros 1/5