Kohteen esittely
Puistotie 2-4 on Espoon Tuomarilassa sijaitseva viihtyisä 18 asunnon pienkerrostalo. Puistotie sijaitsee loistavien liikenneyhteyksien varrella: 350 metrin päässä sijaitsee Tuomarilan juna-asema bussipysäkkeineen sekä 450 metrin päässä Turun moottoritie. Junalla Helsingin rautatieasemalle pääsee 25 minuutissa.
Tuomarilasta ja sen läheisyydestä löytyy monta päiväkotia ja koulua. Lähimpään kouluun on matkaa noin 250 metriä. Lähellä sijaitsevasta Espoon keskuksesta löytyy mm. ruokakauppoja, kuntosaleja, kauppakeskus sekä kirjasto. Suurempi kauppakeskus, Sello, löytyy Leppävaarasta, jonne pääsee junalla 10 minuutissa.
Puistotien lähiympäristö tarjoaa upeat ulkoilu- ja liikuntamahdollisuudet, kuten Espoon keskuspuiston lenkkeilypolkuineen, Kasavuoren kalliot, jalkapallohallin ja luistelukentän sekä kattavat hiihtoreitit. Keski-Espoon uimahalli sijaitsee noin kahden kilometrin päässä.
Miksi Asuntosäätiö?
Me uskomme, että onnellinen koti ja laadukas asuminen kuuluvat kaikille. Emme tavoittele voittoa, vaan käytämme kaikki vastikkeista ja vuokrista saadut tulot toimintamme kehittämiseen. Jo yli 33 000 suomalaista on valinnut Asuntosäätiön tarjoaman kodin. Tiesithän, että myös lemmikit ovat tervetulleita kaikkiin koteihimme!
Rakennuksen tiedot
- Asumismuoto Asokoti
- Keskimääräinen asumisoikeusmaksu / jm² 396,75€
- Hissit Ei
- Talosauna Ei
- Kuivaushuone Kyllä
- Asuntoja 18
- Asuinrakennuksia 1
- Käyttövastike / kk / jm² 12,51€
- Valmistumisvuosi 1999
- Porrashuoneet 2
- Energialuokka E
- Lämmitysmuoto Kauko
- Autopaikat 18
- Laajakaista DNA Welho
- Antennijärjestelmä Kaapeli
- KaapeliTV DNA
- Kattomateriaali Huopa
- Runkomateriaali Betoni
- Lemmikit Sallittu
Huoneistot ja pohjakuvat: Puistotie 2-4, Piharakennus, Kerrostalo
Lisää hakemukselle kaikki haluamasi asuntotyypit. Mahdollisuutesi asunnon saamiseksi paranevat, kun voimme tarjota sinulle kaikkia valitsemasi asuntotyypin asuntoja, jotka mahdollisesti vapautuvat myöhemmin tästä kohteesta. Olet automaattisesti näiden asuntotyyppien hakuprosessissa.
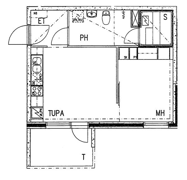
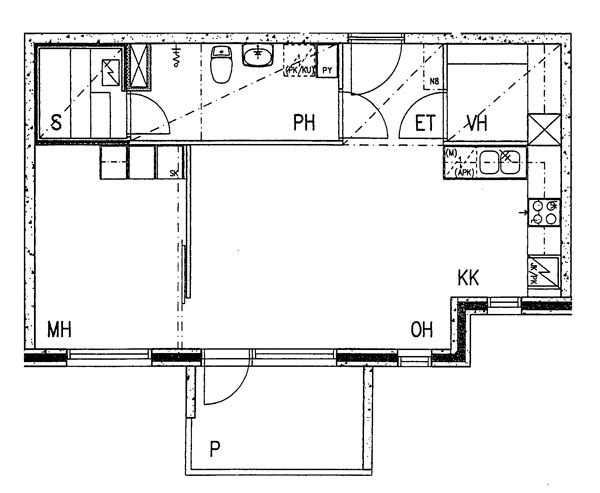
Puistotie 2-4 B 11
1h+tk+s
, Kerrostalo
37 m2
1/3
Puistotie 2-4 B 11
1h+tk+s
, Kerrostalo
37 m2
Kerros 1/3
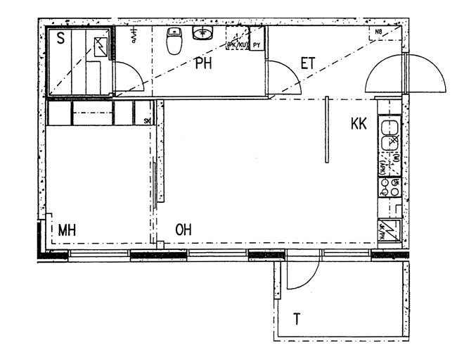
Puistotie 2-4 A 1
2h+kk+s
, Kerrostalo
44 m2
1/3
Puistotie 2-4 A 1
2h+kk+s
, Kerrostalo
44 m2
Kerros 1/3
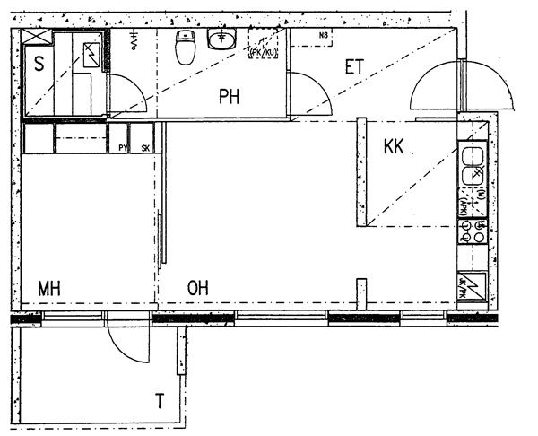
Puistotie 2-4 A 3
2h+kk+s
, Kerrostalo
45 m2
1/3
Puistotie 2-4 A 3
2h+kk+s
, Kerrostalo
45 m2
Kerros 1/3
Puistotie 2-4 B 10
2h+kk+s
, Kerrostalo
45.5 m2
1/3
Puistotie 2-4 B 10
2h+kk+s
, Kerrostalo
45.5 m2
Kerros 1/3
Puistotie 2-4 A 2
2h+kk+s
, Kerrostalo
46 m2
1/3
Puistotie 2-4 A 2
2h+kk+s
, Kerrostalo
46 m2
Kerros 1/3
Puistotie 2-4 B 12
2h+kk+s
, Kerrostalo
46.5 m2
1/3
Puistotie 2-4 B 12
2h+kk+s
, Kerrostalo
46.5 m2
Kerros 1/3
Puistotie 2-4 A 5
2h+kk+s
, Kerrostalo
48 m2
2/3
Puistotie 2-4 A 5
2h+kk+s
, Kerrostalo
48 m2
Kerros 2/3
Puistotie 2-4 A 8
2h+kk+s
, Kerrostalo
48 m2
3/3
Puistotie 2-4 A 8
2h+kk+s
, Kerrostalo
48 m2
Kerros 3/3
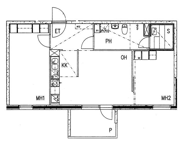
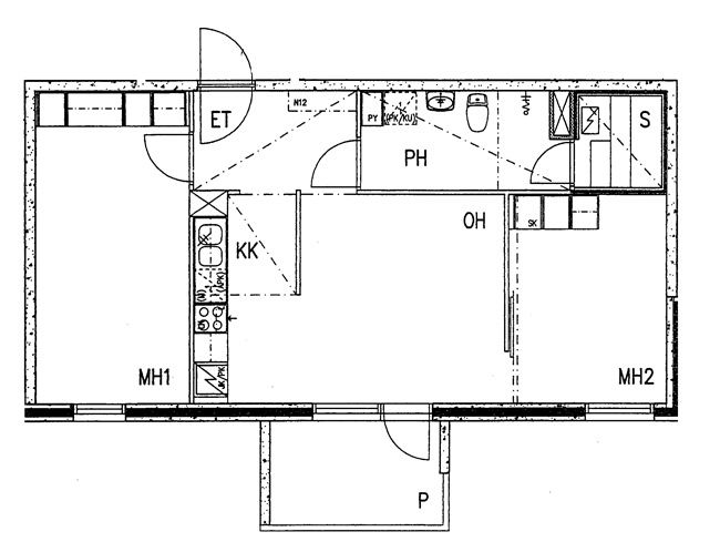
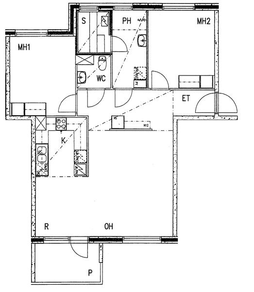
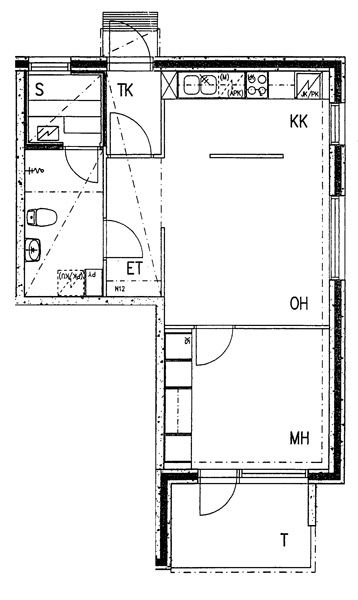
Puistotie 2-4 A 6
3h+k+s
, Kerrostalo
76.5 m2
Kerros 2/3
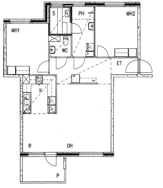
Puistotie 2-4 A 9
3h+k+s
, Kerrostalo
76.5 m2
3/3
Puistotie 2-4 A 9
3h+k+s
, Kerrostalo
76.5 m2
Kerros 3/3
Puistotie 2-4 B 18
3h+k+s
, Kerrostalo
78 m2
3/3
Puistotie 2-4 B 18
3h+k+s
, Kerrostalo
78 m2
Kerros 3/3
Puistotie 2-4 B 15
3h+k+s
, Kerrostalo
78 m2
2/3
Puistotie 2-4 B 15
3h+k+s
, Kerrostalo
78 m2
Kerros 2/3
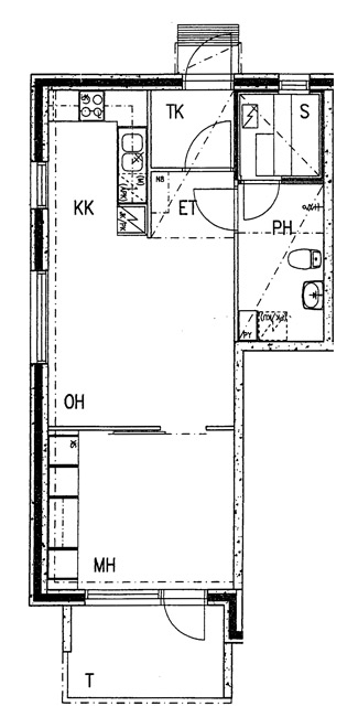
Puistotie 2-4 B 17
3h+kk+s
, Kerrostalo
59 m2
3/3
Puistotie 2-4 B 17
3h+kk+s
, Kerrostalo
59 m2
Kerros 3/3
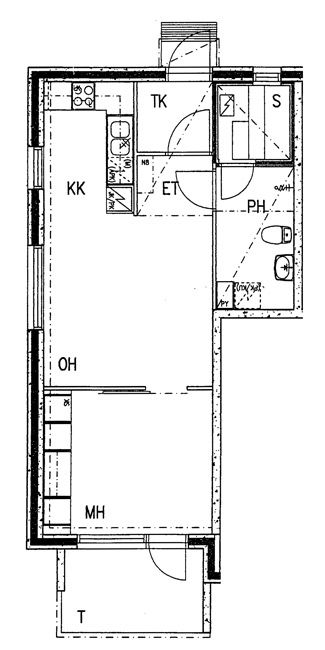
Puistotie 2-4 B 14
3h+kk+s
, Kerrostalo
59 m2
2/3
Puistotie 2-4 B 14
3h+kk+s
, Kerrostalo
59 m2
Kerros 2/3
Puistotie 2-4 B 13
3h+kk+s
, Kerrostalo
62.5 m2
2/3
Puistotie 2-4 B 13
3h+kk+s
, Kerrostalo
62.5 m2
Kerros 2/3
Puistotie 2-4 B 16
3h+kk+s
, Kerrostalo
62.5 m2
3/3
Puistotie 2-4 B 16
3h+kk+s
, Kerrostalo
62.5 m2
Kerros 3/3
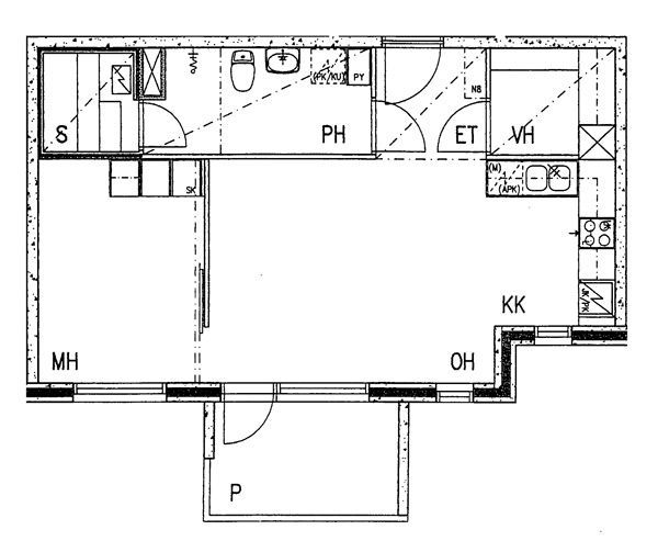
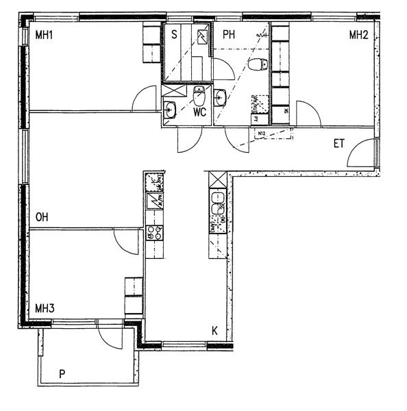
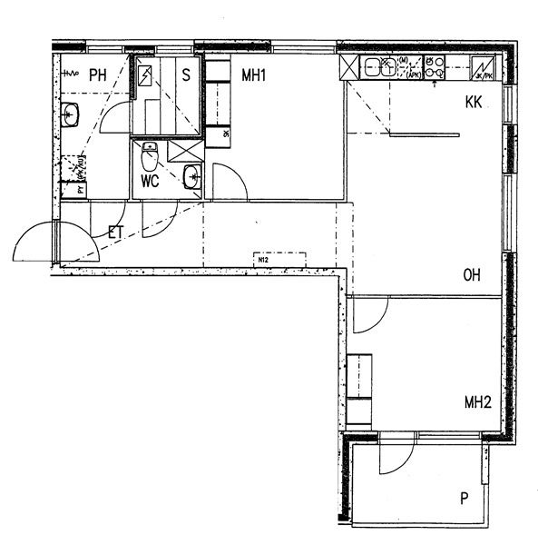
Puistotie 2-4 A 4
4h+k+s
, Kerrostalo
88.5 m2
2/3
Puistotie 2-4 A 4
4h+k+s
, Kerrostalo
88.5 m2
Kerros 2/3
Puistotie 2-4 A 7
4h+k+s
, Kerrostalo
88.5 m2
3/3
Puistotie 2-4 A 7
4h+k+s
, Kerrostalo
88.5 m2
Kerros 3/3