Kohteen esittely
Porarinkatu 6 on Espoon Vallikalliossa sijaitseva viisikerroksinen talo, jonka 45 huoneiston koot vaihtelevat yksiöstä kolmioon, 39 – 77,5 m2. Talossa on kaksi hissiä ja pesula sekä kuivaushuone. Asukkailla on käytössään myös kerhotila.
Vallikallion rauhallinen asuinalue sijaitsee lähellä Leppävaaran keskustan palveluita. Vallikalliosta on hyvät yhteydet myös muualle Espooseen sekä Helsinkiin, jonne pääsee autolla noin 20 minuutissa. Alueella on kauppa, useita päiväkoteja sekä ulkoiluun sopivia puistoja.
Miksi Asuntosäätiö?
Me uskomme, että onnellinen koti ja laadukas asuminen kuuluvat kaikille. Emme tavoittele voittoa, vaan käytämme kaikki vastikkeista ja vuokrista saadut tulot toimintamme kehittämiseen. Jo yli 33 000 suomalaista on valinnut Asuntosäätiön tarjoaman kodin. Tiesithän, että myös lemmikit ovat tervetulleita kaikkiin koteihimme!
Rakennuksen tiedot
- Asumismuoto Asokoti
- Keskimääräinen asumisoikeusmaksu / jm² 234,9€
- Hissit 2
- Talosauna Ei
- Pyykkitupa Kyllä
- Kuivaushuone Kyllä
- Asuntoja 45
- Asuinrakennuksia 1
- Käyttövastike / kk / jm² 16,23€
- Valmistumisvuosi 1994
- Peruskorjattu 2024
- Porrashuoneet 2
- Energialuokka E
- Lämmitysmuoto Kauko
- Autopaikat 45
- Askarteluhuone 1
- Laajakaista DNA Welho
- Antennijärjestelmä Kaapeli
- KaapeliTV DNA
- Kattomateriaali Huopa
- Runkomateriaali Betoni
- Lemmikit Sallittu
Huoneistot ja pohjakuvat: Porarinkatu 6, Kerrostalo, Piharakennus
Lisää hakemukselle kaikki haluamasi asuntotyypit. Mahdollisuutesi asunnon saamiseksi paranevat, kun voimme tarjota sinulle kaikkia valitsemasi asuntotyypin asuntoja, jotka mahdollisesti vapautuvat myöhemmin tästä kohteesta. Olet automaattisesti näiden asuntotyyppien hakuprosessissa.
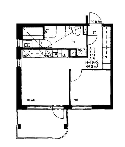
Porarinkatu 6 A 6
1h+tk+s
, Kerrostalo
39 m2
2/5
Porarinkatu 6 A 6
1h+tk+s
, Kerrostalo
39 m2
Kerros 2/5
Porarinkatu 6 A 16
1h+tk+s
, Kerrostalo
39 m2
4/5
Porarinkatu 6 A 16
1h+tk+s
, Kerrostalo
39 m2
Kerros 4/5
Porarinkatu 6 A 11
1h+tk+s
, Kerrostalo
39 m2
3/5
Porarinkatu 6 A 11
1h+tk+s
, Kerrostalo
39 m2
Kerros 3/5
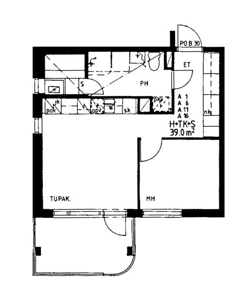
Porarinkatu 6 A 1
1h+tk+s
, Kerrostalo
39 m2
1/5
Porarinkatu 6 A 1
1h+tk+s
, Kerrostalo
39 m2
Kerros 1/5
Porarinkatu 6 A 7
2h+k+s
, Kerrostalo
56 m2
2/5
Porarinkatu 6 A 7
2h+k+s
, Kerrostalo
56 m2
Kerros 2/5
Porarinkatu 6 A 2
2h+k+s
, Kerrostalo
56 m2
1/5
Porarinkatu 6 A 2
2h+k+s
, Kerrostalo
56 m2
Kerros 1/5
Porarinkatu 6 A 17
2h+k+s
, Kerrostalo
56 m2
4/5
Porarinkatu 6 A 17
2h+k+s
, Kerrostalo
56 m2
Kerros 4/5
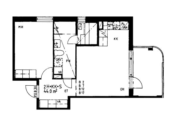
Porarinkatu 6 B 28
2h+kk+s
, Kerrostalo
42.5 m2
2/5
Porarinkatu 6 B 28
2h+kk+s
, Kerrostalo
42.5 m2
Kerros 2/5
Porarinkatu 6 B 43
2h+kk+s
, Kerrostalo
42.5 m2
5/5
Porarinkatu 6 B 43
2h+kk+s
, Kerrostalo
42.5 m2
Kerros 5/5
Porarinkatu 6 B 38
2h+kk+s
, Kerrostalo
42.5 m2
4/5
Porarinkatu 6 B 38
2h+kk+s
, Kerrostalo
42.5 m2
Kerros 4/5
Porarinkatu 6 B 23
2h+kk+s
, Kerrostalo
42.5 m2
1/5
Porarinkatu 6 B 23
2h+kk+s
, Kerrostalo
42.5 m2
Kerros 1/5
Porarinkatu 6 B 33
2h+kk+s
, Kerrostalo
42.5 m2
3/5
Porarinkatu 6 B 33
2h+kk+s
, Kerrostalo
42.5 m2
Kerros 3/5
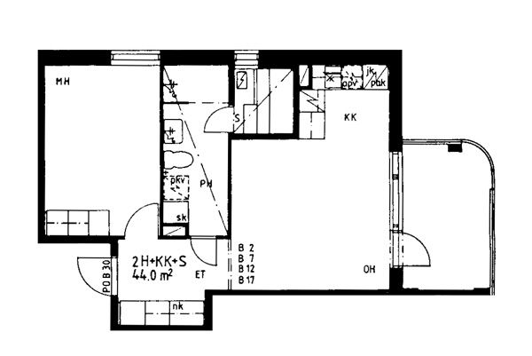
Porarinkatu 6 B 39
2h+kk+s
, Kerrostalo
43 m2
4/5
Porarinkatu 6 B 39
2h+kk+s
, Kerrostalo
43 m2
Kerros 4/5
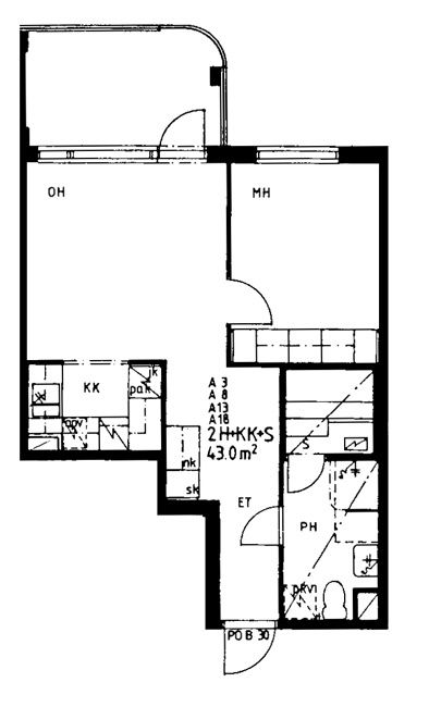
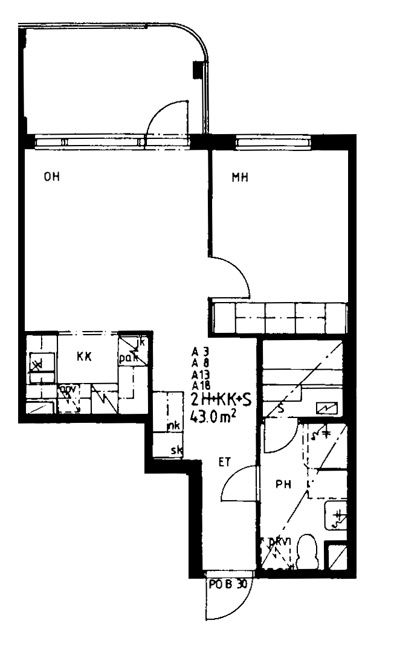
Porarinkatu 6 A 18
2h+kk+s
, Kerrostalo
43 m2
Kerros 4/5
Porarinkatu 6 A 13
2h+kk+s
, Kerrostalo
43 m2
3/5
Porarinkatu 6 A 13
2h+kk+s
, Kerrostalo
43 m2
Kerros 3/5
Porarinkatu 6 A 8
2h+kk+s
, Kerrostalo
43 m2
2/5
Porarinkatu 6 A 8
2h+kk+s
, Kerrostalo
43 m2
Kerros 2/5
Porarinkatu 6 B 44
2h+kk+s
, Kerrostalo
43 m2
5/5
Porarinkatu 6 B 44
2h+kk+s
, Kerrostalo
43 m2
Kerros 5/5
Porarinkatu 6 A 3
2h+kk+s
, Kerrostalo
43 m2
1/5
Porarinkatu 6 A 3
2h+kk+s
, Kerrostalo
43 m2
Kerros 1/5
Porarinkatu 6 B 29
2h+kk+s
, Kerrostalo
43 m2
2/5
Porarinkatu 6 B 29
2h+kk+s
, Kerrostalo
43 m2
Kerros 2/5
Porarinkatu 6 B 34
2h+kk+s
, Kerrostalo
43 m2
3/5
Porarinkatu 6 B 34
2h+kk+s
, Kerrostalo
43 m2
Kerros 3/5
Porarinkatu 6 B 24
2h+kk+s
, Kerrostalo
43 m2
1/5
Porarinkatu 6 B 24
2h+kk+s
, Kerrostalo
43 m2
Kerros 1/5
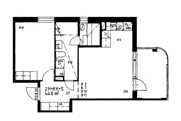
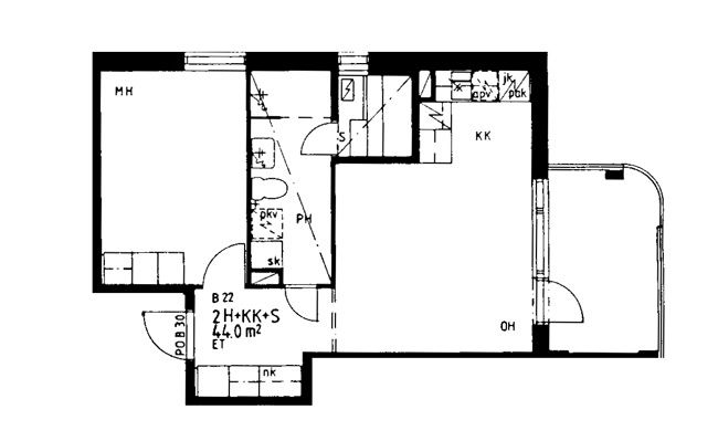
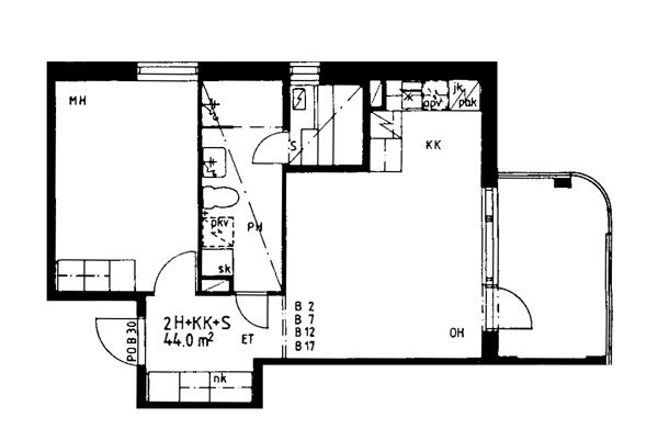
Porarinkatu 6 B 22
2h+kk+s
, Kerrostalo
44 m2
1/5
Porarinkatu 6 B 22
2h+kk+s
, Kerrostalo
44 m2
Kerros 1/5
Porarinkatu 6 B 37
2h+kk+s
, Kerrostalo
44 m2
4/5
Porarinkatu 6 B 37
2h+kk+s
, Kerrostalo
44 m2
Kerros 4/5
Porarinkatu 6 B 42
2h+kk+s
, Kerrostalo
44 m2
5/5
Porarinkatu 6 B 42
2h+kk+s
, Kerrostalo
44 m2
Kerros 5/5
Porarinkatu 6 B 32
2h+kk+s
, Kerrostalo
44 m2
3/5
Porarinkatu 6 B 32
2h+kk+s
, Kerrostalo
44 m2
Kerros 3/5
Porarinkatu 6 B 27
2h+kk+s
, Kerrostalo
44 m2
2/5
Porarinkatu 6 B 27
2h+kk+s
, Kerrostalo
44 m2
Kerros 2/5
Porarinkatu 6 A 14
2h+kk+s
, Kerrostalo
45.5 m2
3/5
Porarinkatu 6 A 14
2h+kk+s
, Kerrostalo
45.5 m2
Kerros 3/5
Porarinkatu 6 A 4
2h+kk+s
, Kerrostalo
45.5 m2
1/5
Porarinkatu 6 A 4
2h+kk+s
, Kerrostalo
45.5 m2
Kerros 1/5
Porarinkatu 6 A 9
2h+kk+s
, Kerrostalo
45.5 m2
2/5
Porarinkatu 6 A 9
2h+kk+s
, Kerrostalo
45.5 m2
Kerros 2/5
Porarinkatu 6 A 19
2h+kk+s
, Kerrostalo
45.5 m2
4/5
Porarinkatu 6 A 19
2h+kk+s
, Kerrostalo
45.5 m2
Kerros 4/5
Porarinkatu 6 A 12
2h+kk+s
, Kerrostalo
56 m2
3/5
Porarinkatu 6 A 12
2h+kk+s
, Kerrostalo
56 m2
Kerros 3/5
Porarinkatu 6 B 30
3h+k+s
, Kerrostalo
68.5 m2
2/5
Porarinkatu 6 B 30
3h+k+s
, Kerrostalo
68.5 m2
Kerros 2/5
Porarinkatu 6 B 25
3h+k+s
, Kerrostalo
68.5 m2
1/5
Porarinkatu 6 B 25
3h+k+s
, Kerrostalo
68.5 m2
Kerros 1/5
Porarinkatu 6 B 40
3h+k+s
, Kerrostalo
68.5 m2
4/5
Porarinkatu 6 B 40
3h+k+s
, Kerrostalo
68.5 m2
Kerros 4/5
Porarinkatu 6 B 35
3h+k+s
, Kerrostalo
68.5 m2
3/5
Porarinkatu 6 B 35
3h+k+s
, Kerrostalo
68.5 m2
Kerros 3/5
Porarinkatu 6 B 45
3h+k+s
, Kerrostalo
68.5 m2
5/5
Porarinkatu 6 B 45
3h+k+s
, Kerrostalo
68.5 m2
Kerros 5/5
Porarinkatu 6 B 21
3h+k+s
, Kerrostalo
70 m2
1/5
Porarinkatu 6 B 21
3h+k+s
, Kerrostalo
70 m2
Kerros 1/5
Porarinkatu 6 B 36
3h+k+s
, Kerrostalo
70 m2
4/5
Porarinkatu 6 B 36
3h+k+s
, Kerrostalo
70 m2
Kerros 4/5
Porarinkatu 6 B 41
3h+k+s
, Kerrostalo
70 m2
5/5
Porarinkatu 6 B 41
3h+k+s
, Kerrostalo
70 m2
Kerros 5/5
Porarinkatu 6 B 31
3h+k+s
, Kerrostalo
70 m2
3/5
Porarinkatu 6 B 31
3h+k+s
, Kerrostalo
70 m2
Kerros 3/5
Porarinkatu 6 B 26
3h+k+s
, Kerrostalo
70 m2
2/5
Porarinkatu 6 B 26
3h+k+s
, Kerrostalo
70 m2
Kerros 2/5
Porarinkatu 6 A 20
4h+k+s
, Kerrostalo
77.5 m2
4/5
Porarinkatu 6 A 20
4h+k+s
, Kerrostalo
77.5 m2
Kerros 4/5
Porarinkatu 6 A 15
4h+k+s
, Kerrostalo
77.5 m2
3/5
Porarinkatu 6 A 15
4h+k+s
, Kerrostalo
77.5 m2
Kerros 3/5
Porarinkatu 6 A 10
4h+k+s
, Kerrostalo
77.5 m2
2/5
Porarinkatu 6 A 10
4h+k+s
, Kerrostalo
77.5 m2
Kerros 2/5
Porarinkatu 6 A 5
4h+k+s
, Kerrostalo
77.5 m2
1/5
Porarinkatu 6 A 5
4h+k+s
, Kerrostalo
77.5 m2
Kerros 1/5