Kohteen esittely
Pellon laidalla omassa rauhassaan sijaitseva rivitalo. Asuntoja kaksioista ja kolmioista isoihin 4- 5 huoneen ja keittiön asuntoihin. Kaikissa asunnoissa on sauna. Muutamaa asuntoa lukuun ottamatta kaikki asunnot ovat kaksikerroksisia. Lämmitys sisältyy vastikkeeseen, talo on kaukolämmössä.
Alakoulu aivan vieressä! Kävelyetäisyydellä myös ruokakauppa, apteekki, terveysasema, päiväkoti ja viljelypalstat. Hyvät liikenneyhteydet moneen suuntaan.
Miksi Asuntosäätiö?
Me uskomme, että onnellinen koti ja laadukas asuminen kuuluvat kaikille. Emme tavoittele voittoa, vaan käytämme kaikki vastikkeista ja vuokrista saadut tulot toimintamme kehittämiseen. Jo yli 33 000 suomalaista on valinnut Asuntosäätiön tarjoaman kodin. Tiesithän, että myös lemmikit ovat tervetulleita kaikkiin koteihimme!
Rakennuksen tiedot
- Asumismuoto Asokoti
- Keskimääräinen asumisoikeusmaksu / jm² 321,33€
- Hissit Ei
- Talosauna Ei
- Asuntoja 18
- Asuinrakennuksia 5
- Käyttövastike / kk / jm² 10,94€
- Valmistumisvuosi 2000
- Energialuokka C, D
- Lämmitysmuoto Kauko
- Autopaikat Ei
- Laajakaista DNA 4G
- Antennijärjestelmä Kaapeli
- KaapeliTV Telia
- Kattomateriaali Tiili
- Lemmikit Sallittu
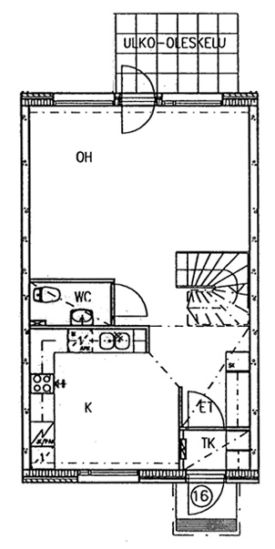
Huoneistot ja pohjakuvat: Liivuorentie 11, Piharakennus, Erillistalo, Rivitalo
Lisää hakemukselle kaikki haluamasi asuntotyypit. Mahdollisuutesi asunnon saamiseksi paranevat, kun voimme tarjota sinulle kaikkia valitsemasi asuntotyypin asuntoja, jotka mahdollisesti vapautuvat myöhemmin tästä kohteesta. Olet automaattisesti näiden asuntotyyppien hakuprosessissa.
Liivuorentie 11 A 2
2h+tk+s
, Erillistalo
64 m2
/1
Liivuorentie 11 A 2
2h+tk+s
, Erillistalo
64 m2
Kerros /1
Liivuorentie 11 A 1
2h+tk+s
, Erillistalo
64 m2
/1
Liivuorentie 11 A 1
2h+tk+s
, Erillistalo
64 m2
Kerros /1
Liivuorentie 11 D 11
3h+k+s
, Rivitalo
81.5 m2
/2
Liivuorentie 11 D 11
3h+k+s
, Rivitalo
81.5 m2
Kerros /2
Liivuorentie 11 D 14
3h+k+s
, Rivitalo
81.5 m2
/2
Liivuorentie 11 D 14
3h+k+s
, Rivitalo
81.5 m2
Kerros /2
Liivuorentie 11 B 6
3h+k+s
, Rivitalo
81.5 m2
Kerros /2
Liivuorentie 11 B 3
3h+k+s
, Rivitalo
81.5 m2
/2
Liivuorentie 11 B 3
3h+k+s
, Rivitalo
81.5 m2
Kerros /2
Liivuorentie 11 E 18
3h+k+s
, Rivitalo
81.5 m2
/2
Liivuorentie 11 E 18
3h+k+s
, Rivitalo
81.5 m2
Kerros /2
Liivuorentie 11 E 15
3h+k+s
, Rivitalo
81.5 m2
/2
Liivuorentie 11 E 15
3h+k+s
, Rivitalo
81.5 m2
Kerros /2
Liivuorentie 11 C 10
3h+k+s
, Rivitalo
81.5 m2
/2
Liivuorentie 11 C 10
3h+k+s
, Rivitalo
81.5 m2
Kerros /2
Liivuorentie 11 B 4
4h+k+s
, Rivitalo
95.5 m2
/2
Liivuorentie 11 B 4
4h+k+s
, Rivitalo
95.5 m2
Kerros /2
Liivuorentie 11 B 5
4h+k+s
, Rivitalo
95.5 m2
/2
Liivuorentie 11 B 5
4h+k+s
, Rivitalo
95.5 m2
Kerros /2
Liivuorentie 11 E 17
4h+k+s
, Rivitalo
95.5 m2
/2
Liivuorentie 11 E 17
4h+k+s
, Rivitalo
95.5 m2
Kerros /2
Liivuorentie 11 E 16
4h+k+s
, Rivitalo
95.5 m2
/2
Liivuorentie 11 E 16
4h+k+s
, Rivitalo
95.5 m2
Kerros /2
Liivuorentie 11 C 9
4h+k+s
, Rivitalo
95.5 m2
/2
Liivuorentie 11 C 9
4h+k+s
, Rivitalo
95.5 m2
Kerros /2
Liivuorentie 11 C 8
4h+k+s
, Rivitalo
95.5 m2
/2
Liivuorentie 11 C 8
4h+k+s
, Rivitalo
95.5 m2
Kerros /2
Liivuorentie 11 D 13
5h+k+s
, Rivitalo
110 m2
/2
Liivuorentie 11 D 13
5h+k+s
, Rivitalo
110 m2
Kerros /2
Liivuorentie 11 D 12
5h+k+s
, Rivitalo
110 m2
/2
Liivuorentie 11 D 12
5h+k+s
, Rivitalo
110 m2
Kerros /2
