Siirry sisältöön

Liivuorentie 11 C 7, Hämeenlinna, JUKOLA

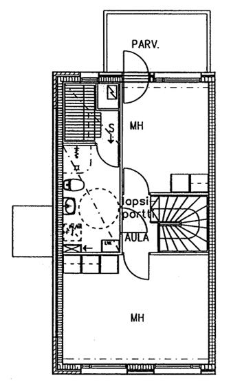
81,5 m2, 3H+K+S

Asuntomyyjä

Tarja Seeslahti

Tilava ja viihtyisä saunallinen kolmio rauhallisella Jukolan rivitaloalueella – päätyasunto omalla pihalla!

Vapautumassa kodikas ja hyväkuntoinen kolmio suositulta Jukolan rivitaloalueelta. Asunto sijaitsee rauhallisessa ympäristössä, ja päätyasunnon mukava pieni piha tarjoaa oman suojaisan tilan rentoutumiseen. Sauna tuo arkeen luksusta, ja toimiva pohjaratkaisu sopii erinomaisesti niin pariskunnalle, pienelle perheelle kuin ensiasunnoksi.

Jos haluat saada lisätietoja tästä asunnosta, otathan yhteyttä myyjäämme.

Tervetuloa tulevaisuuden kotiisi!

Tilava ja viihtyisä saunallinen kolmio rauhallisella Jukolan rivitaloalueella – päätyasunto omalla pihalla! Vapautumassa kodikas ja hyväkuntoinen kolmio suositulta Jukolan rivitaloalueelta. Asunto sijaitsee rauhallisessa ympäristössä, ja päätyasunnon mukava pieni piha tarjoaa oman suojaisan tilan rentoutumiseen. Sauna tuo arkeen luksusta, ja toimiva pohjaratkaisu sopii erinomaisesti niin pariskunnalle, pienelle perheelle kuin ensiasunnoksi. Kaikki arjen palvelut – kaupat, koulut, päiväkodit ja ulkoilumaastot – löytyvät kävelyetäisyydeltä. Alueella on myös hyvät liikenneyhteydet, joten kulkeminen sujuu vaivattomasti niin omalla autolla kuin julkisilla. Tervetuloa tutustumaan – tässä kodissa yhdistyvät rauhallinen sijainti, käytännöllisyys ja viihtyisyys!

Jos haluat saada lisätietoja tästä asunnosta, otathan yhteyttä myyjäämme.

Asunnon tiedot

Asuinkustannukset

  • Luovutushinta 26883,01€
    • — Alkuperäinen asumisoikeusmaksu 15515,34€
    • — Indeksitarkistus 11367,67€
  • Käyttövastike 935,3€
    • — Perusvastike 728,91€
    • — Hoitovastike 206,39€
  • Vakuusmaksu 250€
  • Vesimaksu/henkilö/kk 20€
  • Autopaikkamaksut
    • — Autopaikkamaksu 1 10,00€

Perustiedot asunnosta

  • Talotyyppi Rivitalo
  • Energialuokka C
  • Huoneistotyyppi 3H+K+S
  • Pinta-ala 81.50 m²
  • Parveke 1
  • Oma sauna Kyllä
  • Erillinen wc Kyllä
  • Hissi Ei
  • Vapautuu Heti vapaa
  • Kunto Hyvä
  • Lemmikit Sallittu
  • Laajakaista DNA 4G

Lisätietoja

Tupakointi asunnoissamme

Kaikki uudet asuinkiinteistömme ovat olleet jo pitkään täysin savuttomia heti valmistumisestaan lähtien. Muutumme vähitellen savuttomiksi kaikkien asuntojemme osalta: uusien asukkaiden sopimukset ovat kieltäneet tupakoinnin huoneistoissa ja parvekkeilla 1.1.2021 alkaen. Kiinteistö ei ole välttämättä savuton muiden huoneistojen osalta, koska niissä voi olla vanhoja sopimuksia, joissa ei ole tupakointikieltoa.

Tehdyt muutostyöt

2012 Astianpesukone, Bosch 2012 Vuotosuoja

Kohteen esittely

Pellon laidalla omassa rauhassaan sijaitseva rivitalo. Asuntoja kaksioista ja kolmioista isoihin 4- 5 huoneen ja keittiön asuntoihin. Kaikissa asunnoissa on sauna. Muutamaa asuntoa lukuun ottamatta kaikki asunnot ovat kaksikerroksisia. Lämmitys sisältyy vastikkeeseen, talo on kaukolämmössä.

Alakoulu aivan vieressä! Kävelyetäisyydellä myös ruokakauppa, apteekki, terveysasema, päiväkoti ja viljelypalstat. Hyvät liikenneyhteydet moneen suuntaan.

Miksi Asuntosäätiö?

Me uskomme, että onnellinen koti ja laadukas asuminen kuuluvat kaikille. Emme tavoittele voittoa, vaan käytämme kaikki vastikkeista ja vuokrista saadut tulot toimintamme kehittämiseen. Jo yli 33 000 suomalaista on valinnut Asuntosäätiön tarjoaman kodin. Tiesithän, että myös lemmikit ovat tervetulleita kaikkiin koteihimme!

Kohteen esittely

Pellon laidalla omassa rauhassaan sijaitseva rivitalo. Asuntoja kaksioista ja kolmioista isoihin 4- 5 huoneen ja keittiön asuntoihin. Kaikissa asunnoissa on sauna. Muutamaa asuntoa lukuun ottamatta kaikki asunnot ovat kaksikerroksisia. Lämmitys sisältyy vastikkeeseen, talo on kaukolämmössä. Alakoulu aivan vieressä! Kävelyetäisyydellä myös ruokakauppa, apteekki, terveysasema, päiväkoti ja viljelypalstat. Hyvät liikenneyhteydet moneen suuntaan.

Rakennuksen tiedot

  • Asumismuoto Asokoti
  • Keskimääräinen asumisoikeusmaksu / jm² 321,33€
  • Hissit Ei
  • Talosauna Ei
  • Asuntoja 18
  • Asuinrakennuksia 5

Huoneistot ja pohjakuvat: Liivuorentie 11, Piharakennus, Erillistalo, Rivitalo

Lisää hakemukselle kaikki haluamasi asuntotyypit. Mahdollisuutesi asunnon saamiseksi paranevat, kun voimme tarjota sinulle kaikkia valitsemasi asuntotyypin asuntoja, jotka mahdollisesti vapautuvat myöhemmin tästä kohteesta. Olet automaattisesti näiden asuntotyyppien hakuprosessissa.

Hae asuntotyyppiä

Liivuorentie 11 A 2

2h+tk+s

, Erillistalo

64 m2

Kerros /1

Liivuorentie 11 A 1

2h+tk+s

, Erillistalo

64 m2

Kerros /1

Hae asuntotyyppiä

Liivuorentie 11 D 11

3h+k+s

, Rivitalo

81.5 m2

Kerros /2

Liivuorentie 11 D 14

3h+k+s

, Rivitalo

81.5 m2

Kerros /2

Liivuorentie 11 B 6

3h+k+s

, Rivitalo

81.5 m2

Kerros /2

Liivuorentie 11 B 3

3h+k+s

, Rivitalo

81.5 m2

Kerros /2

Liivuorentie 11 E 18

3h+k+s

, Rivitalo

81.5 m2

Kerros /2

Liivuorentie 11 E 15

3h+k+s

, Rivitalo

81.5 m2

Kerros /2

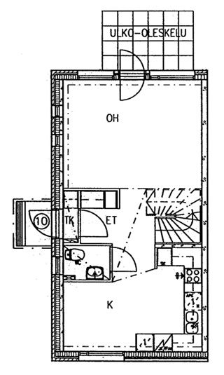
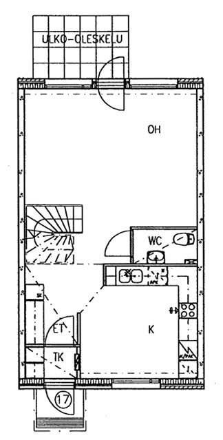
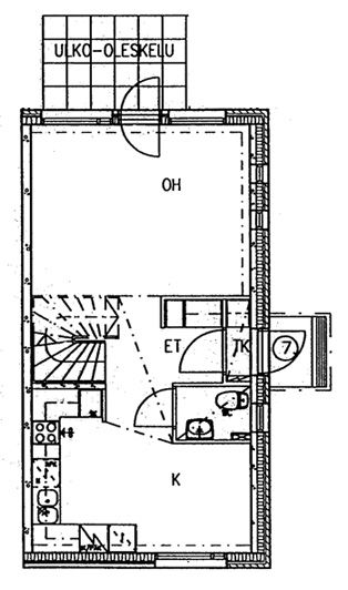
Liivuorentie 11 C 7

3h+k+s

, Rivitalo

81.5 m2

Kerros /2

Liivuorentie 11 C 10

3h+k+s

, Rivitalo

81.5 m2

Kerros /2

Hae asuntotyyppiä

Liivuorentie 11 B 4

4h+k+s

, Rivitalo

95.5 m2

Kerros /2

Liivuorentie 11 B 5

4h+k+s

, Rivitalo

95.5 m2

Kerros /2

Liivuorentie 11 E 17

4h+k+s

, Rivitalo

95.5 m2

Kerros /2

Liivuorentie 11 E 16

4h+k+s

, Rivitalo

95.5 m2

Kerros /2

Liivuorentie 11 C 9

4h+k+s

, Rivitalo

95.5 m2

Kerros /2

Liivuorentie 11 C 8

4h+k+s

, Rivitalo

95.5 m2

Kerros /2

Hae asuntotyyppiä

Liivuorentie 11 D 13

5h+k+s

, Rivitalo

110 m2

Kerros /2

Liivuorentie 11 D 12

5h+k+s

, Rivitalo

110 m2

Kerros /2