Kohteen esittely
Rauhallisella pientaloalueella sijaitseva pienkerrostalo. Kohde sijaitsee kauniilla metsäisellä ja kallioisella tontilla. Väljästi rakennetut talot luonnon siimeksessä.
Kävelymatka Siilitien metroasemalle. Lähellä ruokakauppa, paljon kodin sisustamiseen ja remontoimiseen liittyviä kauppoja ja urheilupaikkoja. Lisää palveluita löytyy Itiksestä ja kauppakeskus Hetrsistä.
Miksi Asuntosäätiö?
Me uskomme, että onnellinen koti ja laadukas asuminen kuuluvat kaikille. Emme tavoittele voittoa, vaan käytämme kaikki vastikkeista ja vuokrista saadut tulot toimintamme kehittämiseen. Jo yli 33 000 suomalaista on valinnut Asuntosäätiön tarjoaman kodin. Tiesithän, että myös lemmikit ovat tervetulleita kaikkiin koteihimme!
Rakennuksen tiedot
- Asumismuoto Asokoti
- Keskimääräinen asumisoikeusmaksu / jm² 168,42€
- Hissit Ei
- Talosauna Ei
- Asuntoja 32
- Asuinrakennuksia 8
- Käyttövastike / kk / jm² 17,52€
- Valmistumisvuosi 1994
- Energialuokka D
- Lämmitysmuoto Kauko
- Autopaikat 32
- Kerhohuone 1
- Laajakaista DNA Netti
- Antennijärjestelmä Kaapeli
- KaapeliTV DNA
- Kattomateriaali Pelti
- Lemmikit Sallittu
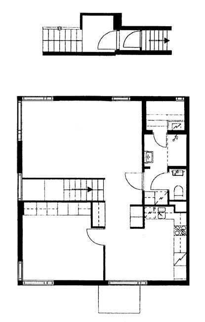
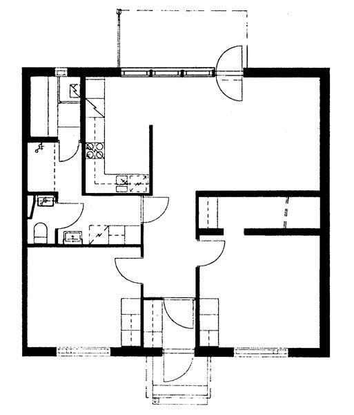
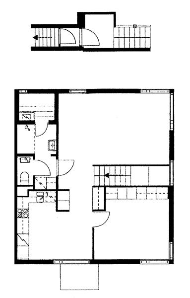
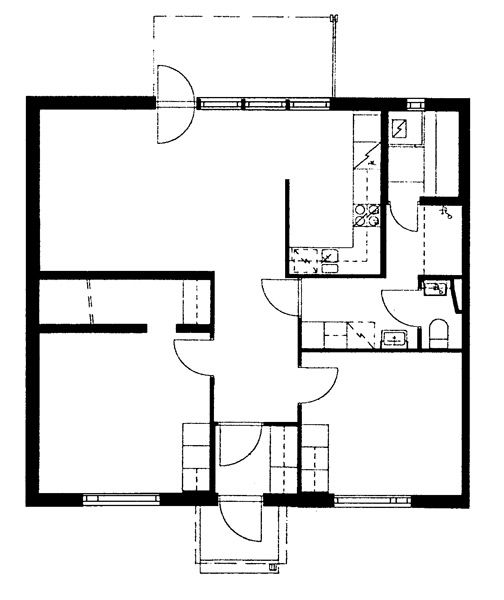
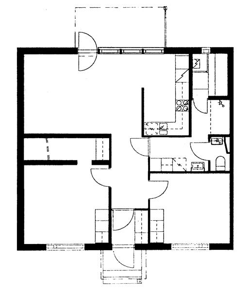
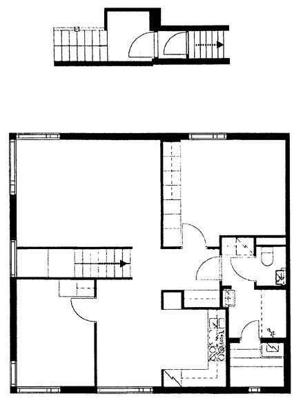
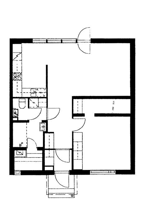
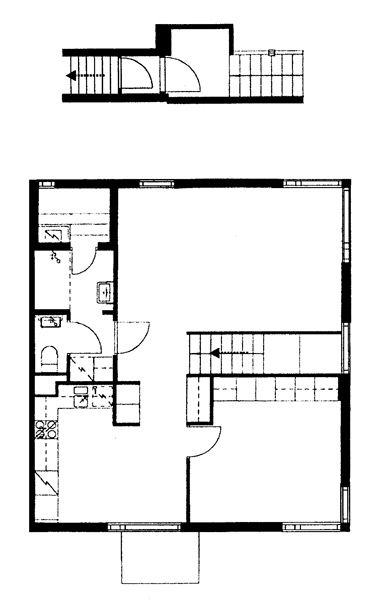
Huoneistot ja pohjakuvat: Sissosentie 15 ja 20 sekä Ajopolku 8, Pienkerrostalo, Piharakennus
Lisää hakemukselle kaikki haluamasi asuntotyypit. Mahdollisuutesi asunnon saamiseksi paranevat, kun voimme tarjota sinulle kaikkia valitsemasi asuntotyypin asuntoja, jotka mahdollisesti vapautuvat myöhemmin tästä kohteesta. Olet automaattisesti näiden asuntotyyppien hakuprosessissa.
Sissosentie 20 F 21
2h+k+s
, Pienkerrostalo
62 m2
1/2
Sissosentie 20 F 21
2h+k+s
, Pienkerrostalo
62 m2
Kerros 1/2
Sissosentie 20 E 17
2h+k+s
, Pienkerrostalo
62 m2
1/2
Sissosentie 20 E 17
2h+k+s
, Pienkerrostalo
62 m2
Kerros 1/2
Ajopolku 8 G 28
2h+k+s
, Pienkerrostalo
62 m2
1/2
Ajopolku 8 G 28
2h+k+s
, Pienkerrostalo
62 m2
Kerros 1/2
Sissosentie 20 D 13
2h+k+s
, Pienkerrostalo
62 m2
1/2
Sissosentie 20 D 13
2h+k+s
, Pienkerrostalo
62 m2
Kerros 1/2
Sissosentie 15 A 1
2h+k+s
, Pienkerrostalo
62 m2
1/2
Sissosentie 15 A 1
2h+k+s
, Pienkerrostalo
62 m2
Kerros 1/2
Sissosentie 15 C 10
2h+k+s
, Pienkerrostalo
62 m2
1/2
Sissosentie 15 C 10
2h+k+s
, Pienkerrostalo
62 m2
Kerros 1/2
Ajopolku 8 H 32
2h+k+s
, Pienkerrostalo
62 m2
1/2
Ajopolku 8 H 32
2h+k+s
, Pienkerrostalo
62 m2
Kerros 1/2
Sissosentie 20 F 22
2h+k+s
, Pienkerrostalo
66.5 m2
2/2
Sissosentie 20 F 22
2h+k+s
, Pienkerrostalo
66.5 m2
Kerros 2/2
Sissosentie 20 E 18
2h+k+s
, Pienkerrostalo
66.5 m2
2/2
Sissosentie 20 E 18
2h+k+s
, Pienkerrostalo
66.5 m2
Kerros 2/2
Ajopolku 8 G 27
2h+k+s
, Pienkerrostalo
66.5 m2
2/2
Ajopolku 8 G 27
2h+k+s
, Pienkerrostalo
66.5 m2
Kerros 2/2
Sissosentie 20 D 14
2h+k+s
, Pienkerrostalo
66.5 m2
2/2
Sissosentie 20 D 14
2h+k+s
, Pienkerrostalo
66.5 m2
Kerros 2/2
Sissosentie 15 A 2
2h+k+s
, Pienkerrostalo
66.5 m2
2/2
Sissosentie 15 A 2
2h+k+s
, Pienkerrostalo
66.5 m2
Kerros 2/2
Sissosentie 15 C 9
2h+k+s
, Pienkerrostalo
66.5 m2
2/2
Sissosentie 15 C 9
2h+k+s
, Pienkerrostalo
66.5 m2
Kerros 2/2
Ajopolku 8 H 31
2h+k+s
, Pienkerrostalo
66.5 m2
2/2
Ajopolku 8 H 31
2h+k+s
, Pienkerrostalo
66.5 m2
Kerros 2/2
Sissosentie 15 B 7
2h+kk+s
, Pienkerrostalo
46 m2
1/2
Sissosentie 15 B 7
2h+kk+s
, Pienkerrostalo
46 m2
Kerros 1/2
Sissosentie 15 B 8
2h+kk+s
, Pienkerrostalo
50.5 m2
2/2
Sissosentie 15 B 8
2h+kk+s
, Pienkerrostalo
50.5 m2
Kerros 2/2
Sissosentie 15 B 6
3h+k+s
, Pienkerrostalo
73.5 m2
1/2
Sissosentie 15 B 6
3h+k+s
, Pienkerrostalo
73.5 m2
Kerros 1/2
Sissosentie 15 A 3
3h+k+s
, Pienkerrostalo
73.5 m2
1/2
Sissosentie 15 A 3
3h+k+s
, Pienkerrostalo
73.5 m2
Kerros 1/2
Sissosentie 15 C 11
3h+k+s
, Pienkerrostalo
73.5 m2
1/2
Sissosentie 15 C 11
3h+k+s
, Pienkerrostalo
73.5 m2
Kerros 1/2
Sissosentie 20 F 24
3h+k+s
, Pienkerrostalo
75.5 m2
1/2
Sissosentie 20 F 24
3h+k+s
, Pienkerrostalo
75.5 m2
Kerros 1/2
Sissosentie 20 E 20
3h+k+s
, Pienkerrostalo
75.5 m2
1/2
Sissosentie 20 E 20
3h+k+s
, Pienkerrostalo
75.5 m2
Kerros 1/2
Sissosentie 20 D 16
3h+k+s
, Pienkerrostalo
75.5 m2
1/2
Sissosentie 20 D 16
3h+k+s
, Pienkerrostalo
75.5 m2
Kerros 1/2
Sissosentie 15 B 5
3h+k+s
, Pienkerrostalo
78 m2
2/2
Sissosentie 15 B 5
3h+k+s
, Pienkerrostalo
78 m2
Kerros 2/2
Sissosentie 15 A 4
3h+k+s
, Pienkerrostalo
78 m2
2/2
Sissosentie 15 A 4
3h+k+s
, Pienkerrostalo
78 m2
Kerros 2/2
Sissosentie 15 C 12
3h+k+s
, Pienkerrostalo
78 m2
2/2
Sissosentie 15 C 12
3h+k+s
, Pienkerrostalo
78 m2
Kerros 2/2
Sissosentie 20 F 23
3h+k+s
, Pienkerrostalo
80 m2
2/2
Sissosentie 20 F 23
3h+k+s
, Pienkerrostalo
80 m2
Kerros 2/2
Sissosentie 20 E 19
3h+k+s
, Pienkerrostalo
80 m2
2/2
Sissosentie 20 E 19
3h+k+s
, Pienkerrostalo
80 m2
Kerros 2/2
Sissosentie 20 D 15
3h+k+s
, Pienkerrostalo
80 m2
2/2
Sissosentie 20 D 15
3h+k+s
, Pienkerrostalo
80 m2
Kerros 2/2
Ajopolku 8 G 25
4h+k+s
, Pienkerrostalo
89 m2
1/2
Ajopolku 8 G 25
4h+k+s
, Pienkerrostalo
89 m2
Kerros 1/2
Ajopolku 8 H 29
4h+k+s
, Pienkerrostalo
89 m2
1/2
Ajopolku 8 H 29
4h+k+s
, Pienkerrostalo
89 m2
Kerros 1/2
Ajopolku 8 G 26
4h+k+s
, Pienkerrostalo
95 m2
2/2
Ajopolku 8 G 26
4h+k+s
, Pienkerrostalo
95 m2
Kerros 2/2
Ajopolku 8 H 30
4h+k+s
, Pienkerrostalo
95 m2
2/2
Ajopolku 8 H 30
4h+k+s
, Pienkerrostalo
95 m2
Kerros 2/2