Kohteen esittely
Verkkoneula 4 on viihtyisä asumisoikeustalo Kalasataman palveluiden äärellä. Yhdeksänkerroksisessa talossa on 38 modernia kaupunkikotia, joihin kuuluu lasitetut parvekkeet. Toimivat pohjaratkaisut, valoisat näkymät, helppohoitoiset materiaalit ja astianpesukoneella varustettu keittiö luovat viihtyisän kodin monenlaiseen asumiseen. Korttelin keskelle sijoittuva talo on mukavasti suojassa vilkkaalta Hermannin rantatieltä.
Kalasataman kaupunginosaan kuuluvassa Verkkosaaressa kaikki on lähellä; kauppakeskus Redi palveluineen, Tukkutori ravintoloineen, Suvilahden kulttuuritarjonta, terveys- ja hyvinvointikeskus, koulut, päiväkodit ja tietenkin upea meri rantabulevardeineen.
Verkkosaaren hyvät liikenneyhteydet paranevat entisestään uusien raitiotielinjojen valmistuessa. Jo nyt matka ydinkeskustaan taittuu metrolla Kalasatamasta muutamassa minuutissa.
Miksi Asuntosäätiö?
Me uskomme, että onnellinen koti ja laadukas asuminen kuuluvat kaikille. Emme tavoittele voittoa, vaan käytämme kaikki vastikkeista ja vuokrista saadut tulot toimintamme kehittämiseen. Jo yli 33 000 suomalaista on valinnut Asuntosäätiön tarjoaman kodin. Tiesithän, että myös lemmikit ovat tervetulleita kaikkiin koteihimme!
Rakennuksen tiedot
- Asumismuoto Asokoti
- Keskimääräinen asumisoikeusmaksu / jm² 789,67€
- Hissit 1
- Talosauna 2
- Pyykkitupa Kyllä
- Kuivaushuone Kyllä
- Asuntoja 38
- Asuinrakennuksia 1
- Käyttövastike / kk / jm² 19,5€
- Valmistumisvuosi 2025
- Porrashuoneet 1
- Energialuokka A2018
- Lämmitysmuoto Kauko
- Autopaikat 17
- Kerhohuone 1
- Laajakaista DNA Netti
- Antennijärjestelmä Kaapeli
- KaapeliTV DNA
- Runkomateriaali Betoni
- Lemmikit Sallittu
Huoneistot ja pohjakuvat: Verkkoneula 4, Kerrostalo
Lisää hakemukselle kaikki haluamasi asuntotyypit. Mahdollisuutesi asunnon saamiseksi paranevat, kun voimme tarjota sinulle kaikkia valitsemasi asuntotyypin asuntoja, jotka mahdollisesti vapautuvat myöhemmin tästä kohteesta. Olet automaattisesti näiden asuntotyyppien hakuprosessissa.
Verkkoneula 4 A 35
1h+kt
, Kerrostalo
28.5 m2
7/8
Verkkoneula 4 A 35
1h+kt
, Kerrostalo
28.5 m2
Kerros 7/8
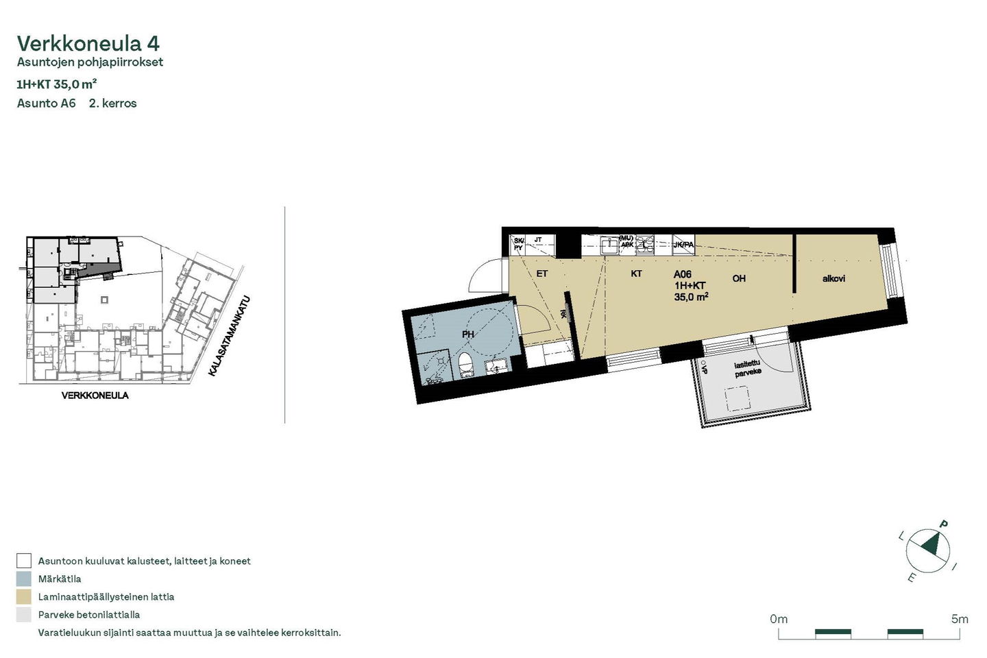
Verkkoneula 4 A 18
1h+kt
, Kerrostalo
35 m2
4/8
Verkkoneula 4 A 18
1h+kt
, Kerrostalo
35 m2
Kerros 4/8
Verkkoneula 4 A 12
1h+kt
, Kerrostalo
35 m2
3/8
Verkkoneula 4 A 12
1h+kt
, Kerrostalo
35 m2
Kerros 3/8
Verkkoneula 4 A 24
1h+kt
, Kerrostalo
35 m2
5/8
Verkkoneula 4 A 24
1h+kt
, Kerrostalo
35 m2
Kerros 5/8
Verkkoneula 4 A 6
1h+kt
, Kerrostalo
35 m2
2/8
Verkkoneula 4 A 6
1h+kt
, Kerrostalo
35 m2
Kerros 2/8
Verkkoneula 4 A 30
1h+kt
, Kerrostalo
35 m2
6/8
Verkkoneula 4 A 30
1h+kt
, Kerrostalo
35 m2
Kerros 6/8
Verkkoneula 4 A 22
2h+kt
, Kerrostalo
37 m2
5/8
Verkkoneula 4 A 22
2h+kt
, Kerrostalo
37 m2
Kerros 5/8
Verkkoneula 4 A 10
2h+kt
, Kerrostalo
37 m2
3/8
Verkkoneula 4 A 10
2h+kt
, Kerrostalo
37 m2
Kerros 3/8
Verkkoneula 4 A 28
2h+kt
, Kerrostalo
37 m2
6/8
Verkkoneula 4 A 28
2h+kt
, Kerrostalo
37 m2
Kerros 6/8
Verkkoneula 4 A 34
2h+kt
, Kerrostalo
37 m2
7/8
Verkkoneula 4 A 34
2h+kt
, Kerrostalo
37 m2
Kerros 7/8
Verkkoneula 4 A 16
2h+kt
, Kerrostalo
37 m2
4/8
Verkkoneula 4 A 16
2h+kt
, Kerrostalo
37 m2
Kerros 4/8
Verkkoneula 4 A 4
2h+kt
, Kerrostalo
37 m2
2/8
Verkkoneula 4 A 4
2h+kt
, Kerrostalo
37 m2
Kerros 2/8
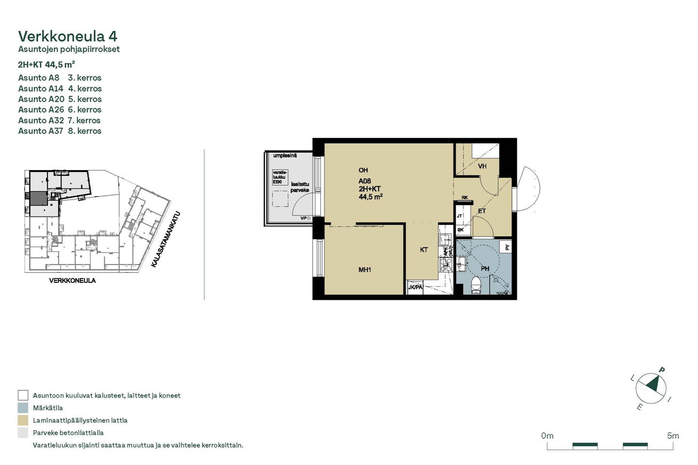
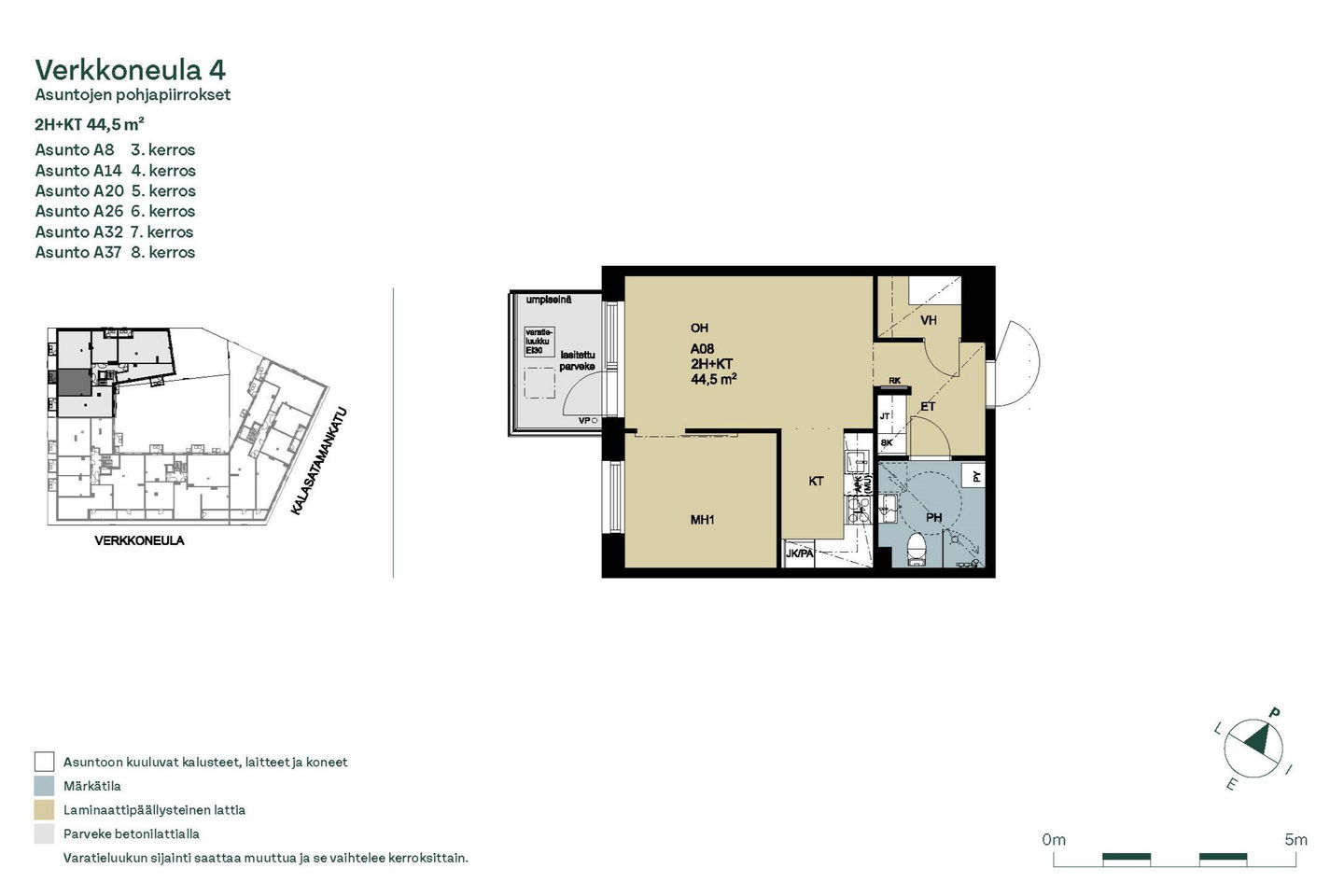
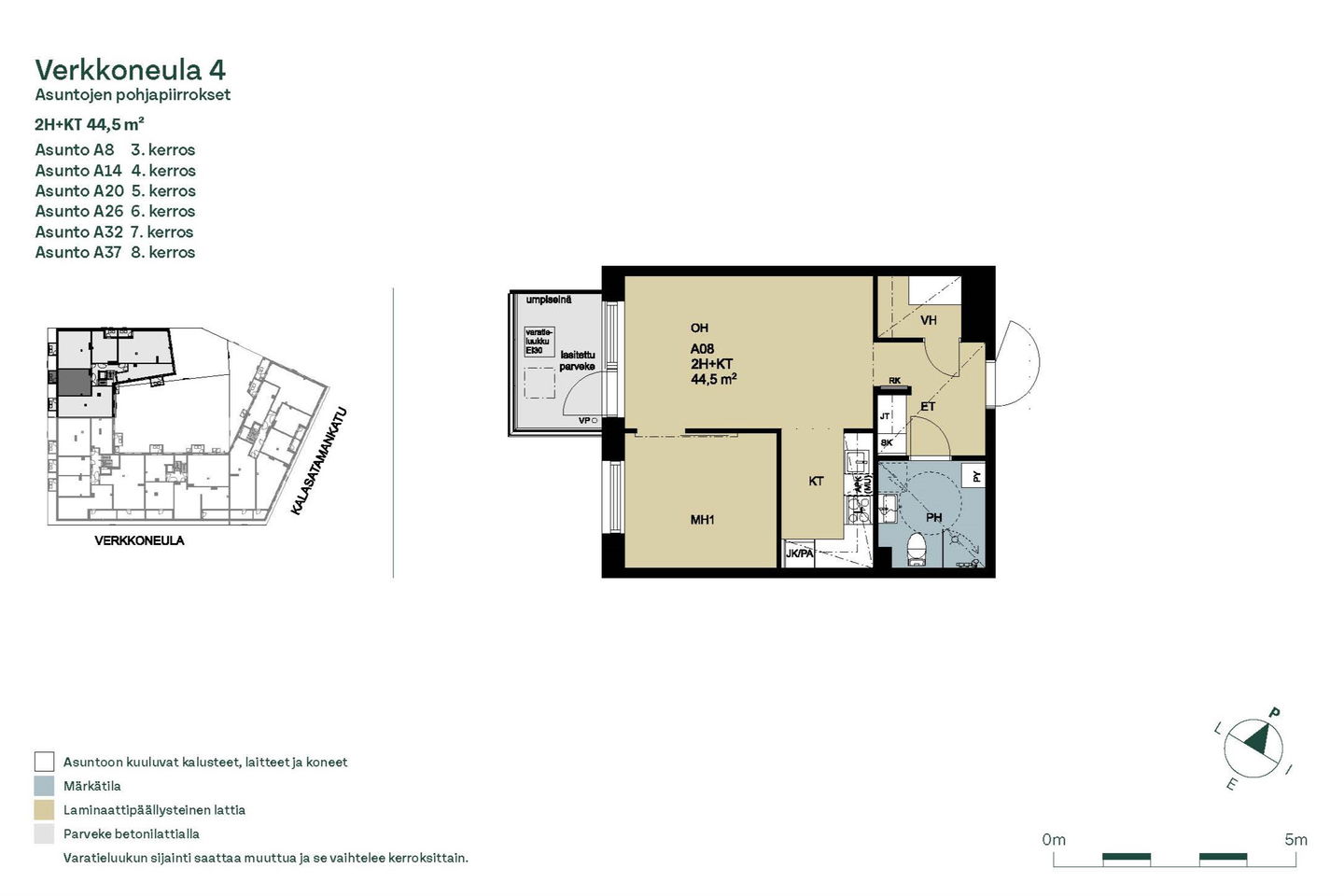
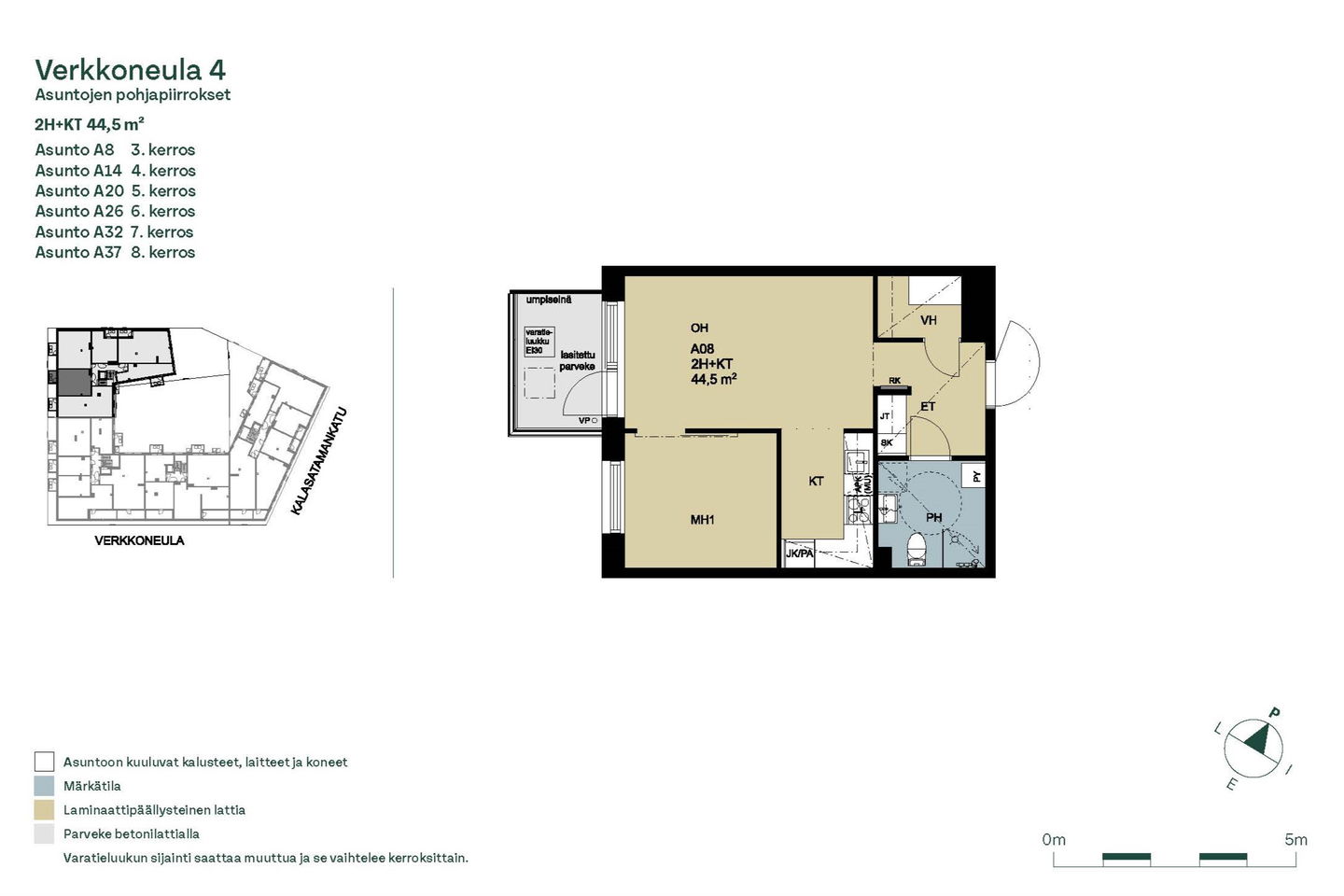
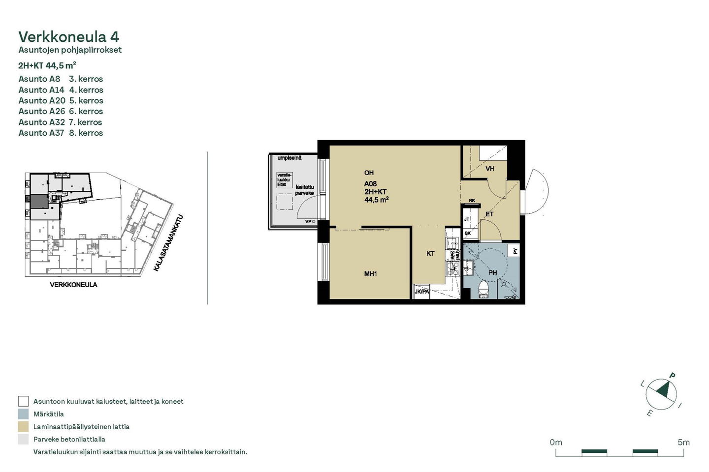
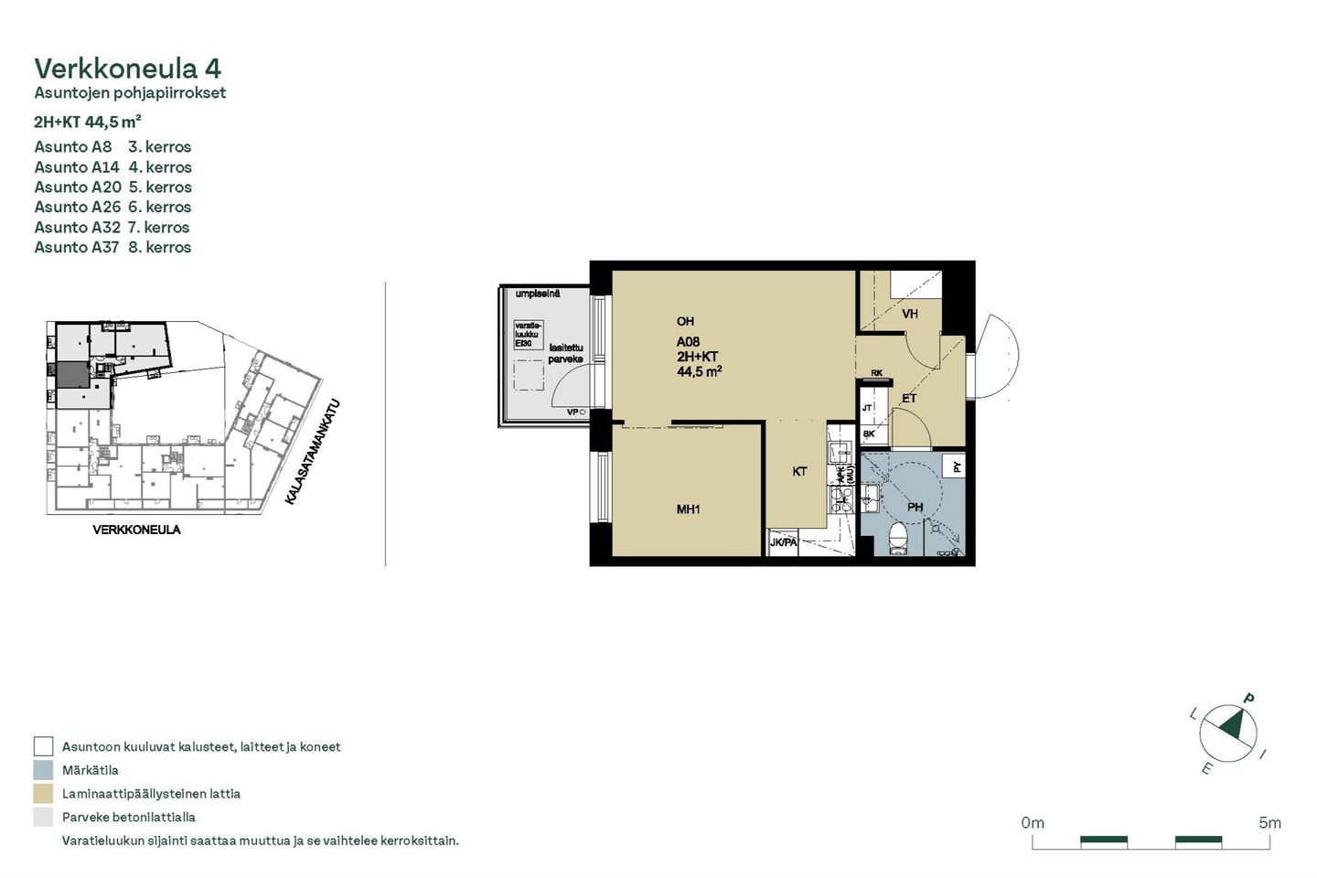
Verkkoneula 4 A 8
2h+kt
, Kerrostalo
44.5 m2
3/8
Verkkoneula 4 A 8
2h+kt
, Kerrostalo
44.5 m2
Kerros 3/8
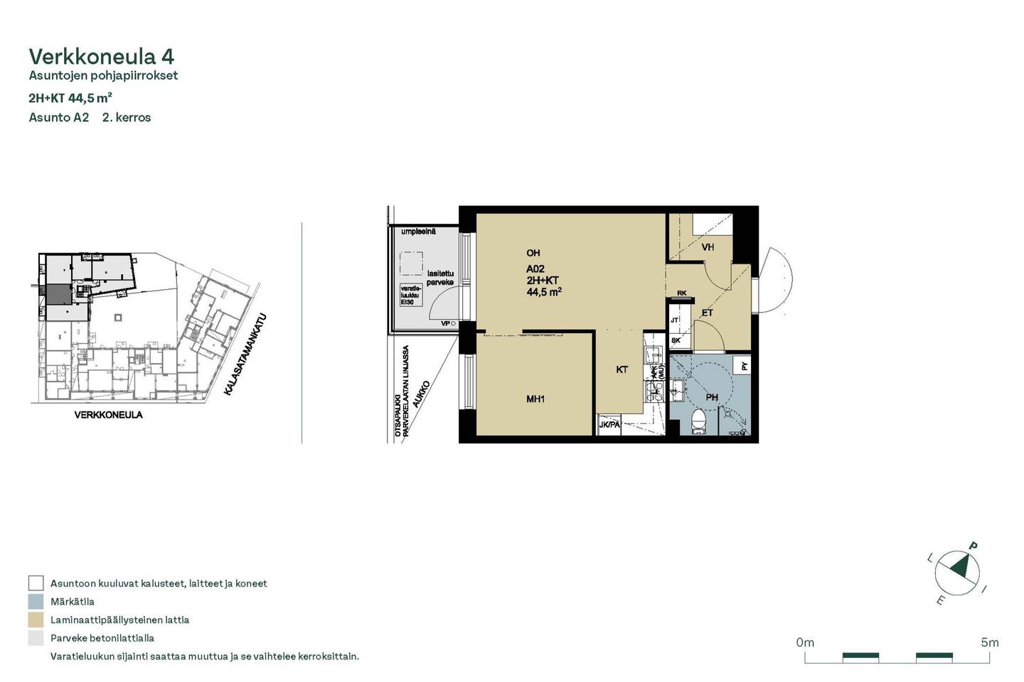
Verkkoneula 4 A 2
2h+kt
, Kerrostalo
44.5 m2
2/8
Verkkoneula 4 A 2
2h+kt
, Kerrostalo
44.5 m2
Kerros 2/8
Verkkoneula 4 A 14
2h+kt
, Kerrostalo
44.5 m2
4/8
Verkkoneula 4 A 14
2h+kt
, Kerrostalo
44.5 m2
Kerros 4/8
Verkkoneula 4 A 20
2h+kt
, Kerrostalo
44.5 m2
5/8
Verkkoneula 4 A 20
2h+kt
, Kerrostalo
44.5 m2
Kerros 5/8
Verkkoneula 4 A 37
2h+kt
, Kerrostalo
44.5 m2
8/8
Verkkoneula 4 A 37
2h+kt
, Kerrostalo
44.5 m2
Kerros 8/8
Verkkoneula 4 A 26
2h+kt
, Kerrostalo
44.5 m2
6/8
Verkkoneula 4 A 26
2h+kt
, Kerrostalo
44.5 m2
Kerros 6/8
Verkkoneula 4 A 32
2h+kt
, Kerrostalo
44.5 m2
7/8
Verkkoneula 4 A 32
2h+kt
, Kerrostalo
44.5 m2
Kerros 7/8
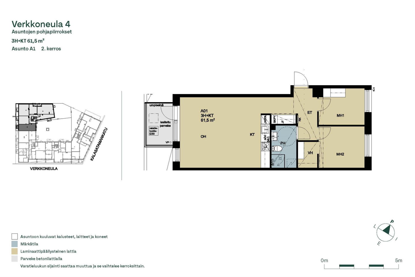
Verkkoneula 4 A 1
3h+kt
, Kerrostalo
61.5 m2
2/8
Verkkoneula 4 A 1
3h+kt
, Kerrostalo
61.5 m2
Kerros 2/8
Verkkoneula 4 A 3
3h+kt
, Kerrostalo
64 m2
2/8
Verkkoneula 4 A 3
3h+kt
, Kerrostalo
64 m2
Kerros 2/8
Verkkoneula 4 A 38
3h+kt
, Kerrostalo
64 m2
8/8
Verkkoneula 4 A 38
3h+kt
, Kerrostalo
64 m2
Kerros 8/8
Verkkoneula 4 A 27
3h+kt
, Kerrostalo
64 m2
6/8
Verkkoneula 4 A 27
3h+kt
, Kerrostalo
64 m2
Kerros 6/8
Verkkoneula 4 A 33
3h+kt
, Kerrostalo
64 m2
7/8
Verkkoneula 4 A 33
3h+kt
, Kerrostalo
64 m2
Kerros 7/8
Verkkoneula 4 A 9
3h+kt
, Kerrostalo
64 m2
3/8
Verkkoneula 4 A 9
3h+kt
, Kerrostalo
64 m2
Kerros 3/8
Verkkoneula 4 A 15
3h+kt
, Kerrostalo
64 m2
4/8
Verkkoneula 4 A 15
3h+kt
, Kerrostalo
64 m2
Kerros 4/8
Verkkoneula 4 A 21
3h+kt
, Kerrostalo
64 m2
5/8
Verkkoneula 4 A 21
3h+kt
, Kerrostalo
64 m2
Kerros 5/8
Verkkoneula 4 A 31
3h+kt
, Kerrostalo
69.5 m2
7/8
Verkkoneula 4 A 31
3h+kt
, Kerrostalo
69.5 m2
Kerros 7/8
Verkkoneula 4 A 19
3h+kt
, Kerrostalo
69.5 m2
5/8
Verkkoneula 4 A 19
3h+kt
, Kerrostalo
69.5 m2
Kerros 5/8
Verkkoneula 4 A 7
3h+kt
, Kerrostalo
69.5 m2
3/8
Verkkoneula 4 A 7
3h+kt
, Kerrostalo
69.5 m2
Kerros 3/8
Verkkoneula 4 A 36
3h+kt
, Kerrostalo
69.5 m2
8/8
Verkkoneula 4 A 36
3h+kt
, Kerrostalo
69.5 m2
Kerros 8/8
Verkkoneula 4 A 25
3h+kt
, Kerrostalo
69.5 m2
6/8
Verkkoneula 4 A 25
3h+kt
, Kerrostalo
69.5 m2
Kerros 6/8
Verkkoneula 4 A 13
3h+kt
, Kerrostalo
69.5 m2
4/8
Verkkoneula 4 A 13
3h+kt
, Kerrostalo
69.5 m2
Kerros 4/8
Verkkoneula 4 A 11
4h+kt
, Kerrostalo
81 m2
3/8
Verkkoneula 4 A 11
4h+kt
, Kerrostalo
81 m2
Kerros 3/8
Verkkoneula 4 A 5
4h+kt
, Kerrostalo
81 m2
2/8
Verkkoneula 4 A 5
4h+kt
, Kerrostalo
81 m2
Kerros 2/8
Verkkoneula 4 A 23
4h+kt
, Kerrostalo
81 m2
5/8
Verkkoneula 4 A 23
4h+kt
, Kerrostalo
81 m2
Kerros 5/8
Verkkoneula 4 A 29
4h+kt
, Kerrostalo
81 m2
6/8
Verkkoneula 4 A 29
4h+kt
, Kerrostalo
81 m2
Kerros 6/8
Verkkoneula 4 A 17
4h+kt
, Kerrostalo
81 m2
4/8
Verkkoneula 4 A 17
4h+kt
, Kerrostalo
81 m2
Kerros 4/8