Kohteen esittely
Viihtyisä kerrostalokohde Helsingin Kivikossa. Kaikissa asunnoissa on oma sauna. Osa parvekkeista on lasitettu. Kohteessa on kerhohuone ja kuivaushuoneita. Sisäpihalla on lasten leikkipiha. Rauhallinen sijainti puistoalueen ja Kivikon metsän lähellä. Autopaikat (avo- ja katospaikat) sijaitsevat Kivikon pysäköinnin tiloissa, varaus Kotikulman tai palvelukeskuksen kautta.
Alueella on päiväkodit ja koulut. Harrastamiseen on koirapuistoja ja Kivikon liikuntapuisto, jossa on mm. frisbeegolfrata, BMX-pyöräilyrata ja jalkapallokenttä sekä Kivikon hallilla kuntosali. Lyhyt kävelymatka metrolle ja ruokakauppoihin. Hyvät kulkuyhteydet myös omalla autolla.
Miksi Asuntosäätiö?
Me uskomme, että onnellinen koti ja laadukas asuminen kuuluvat kaikille. Emme tavoittele voittoa, vaan käytämme kaikki vastikkeista ja vuokrista saadut tulot toimintamme kehittämiseen. Jo yli 33 000 suomalaista on valinnut Asuntosäätiön tarjoaman kodin. Tiesithän, että myös lemmikit ovat tervetulleita kaikkiin koteihimme!
Rakennuksen tiedot
- Asumismuoto Asokoti
- Keskimääräinen asumisoikeusmaksu / jm² 362,6€
- Hissit 2
- Talosauna Ei
- Kuivaushuone Kyllä
- Asuntoja 48
- Asuinrakennuksia 2
- Käyttövastike / kk / jm² 13,86€
- Valmistumisvuosi 2000
- Porrashuoneet 4
- Energialuokka F
- Lämmitysmuoto Kauko
- Autopaikat 43
- Kerhohuone 1
- Laajakaista DNA Welho
- Antennijärjestelmä Kaapeli
- KaapeliTV DNA
- Kattomateriaali Pelti
- Runkomateriaali Betoni
- Lemmikit Sallittu
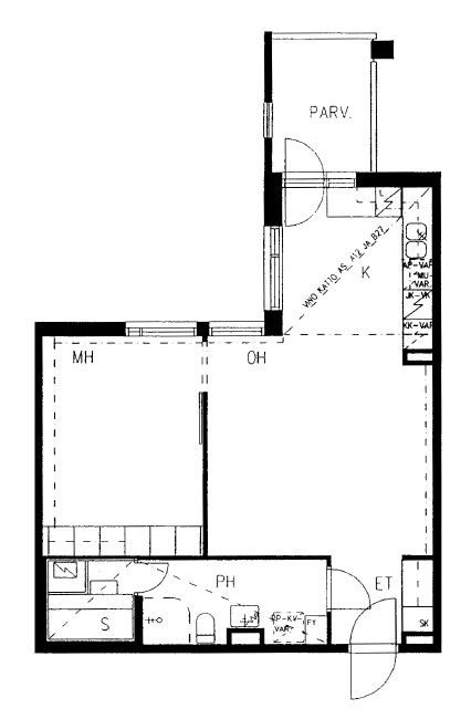
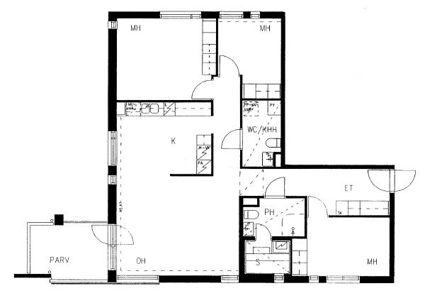
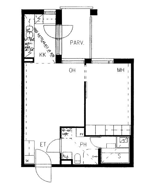
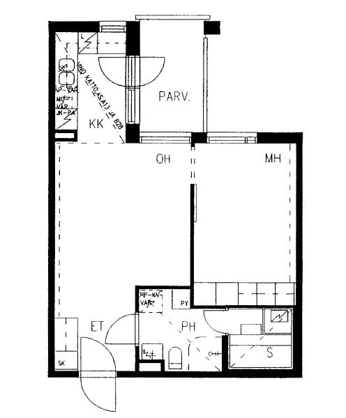
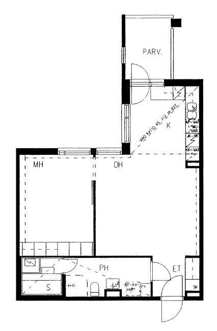
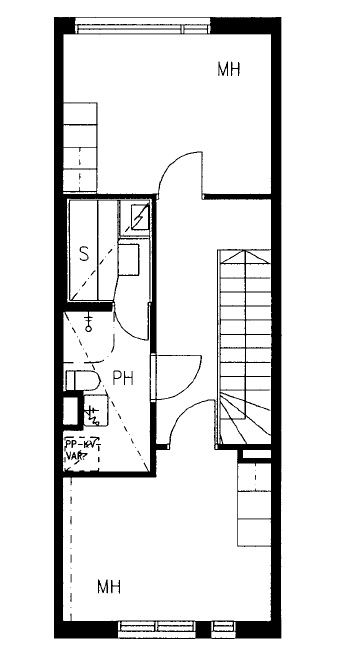
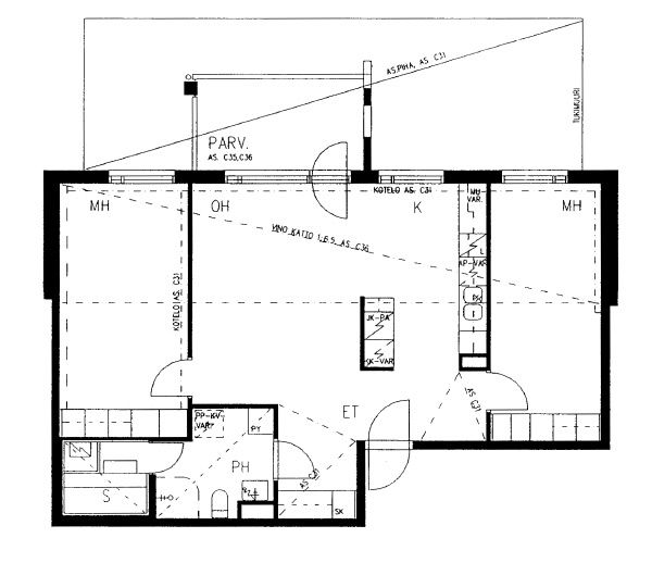
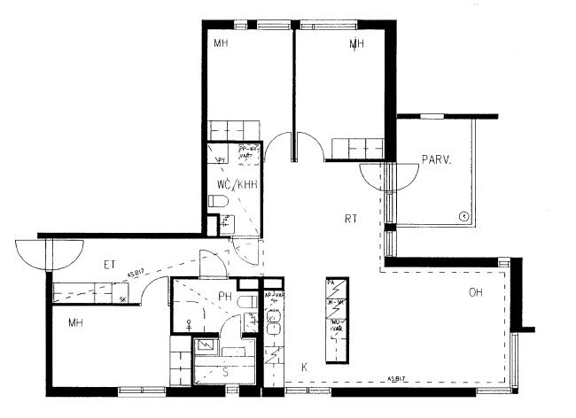
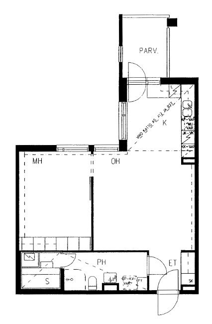
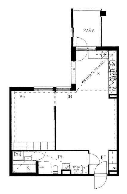
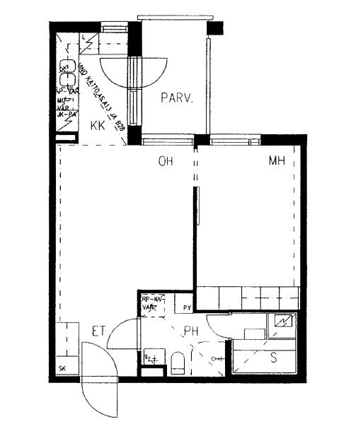
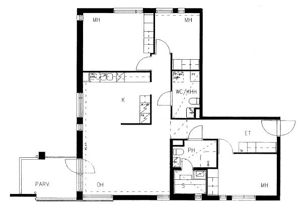
Huoneistot ja pohjakuvat: Kivikonkaari 20, Piharakennus, Kerrostalo
Lisää hakemukselle kaikki haluamasi asuntotyypit. Mahdollisuutesi asunnon saamiseksi paranevat, kun voimme tarjota sinulle kaikkia valitsemasi asuntotyypin asuntoja, jotka mahdollisesti vapautuvat myöhemmin tästä kohteesta. Olet automaattisesti näiden asuntotyyppien hakuprosessissa.
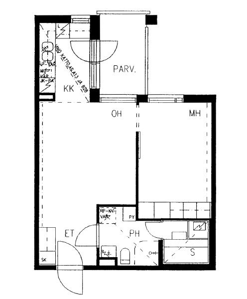
Kivikonkaari 20 D 42
1h+kk+s
, Kerrostalo
32 m2
1/3
Kivikonkaari 20 D 42
1h+kk+s
, Kerrostalo
32 m2
Kerros 1/3
Kivikonkaari 20 D 41
1h+tk+s
, Kerrostalo
43.5 m2
1/3
Kivikonkaari 20 D 41
1h+tk+s
, Kerrostalo
43.5 m2
Kerros 1/3
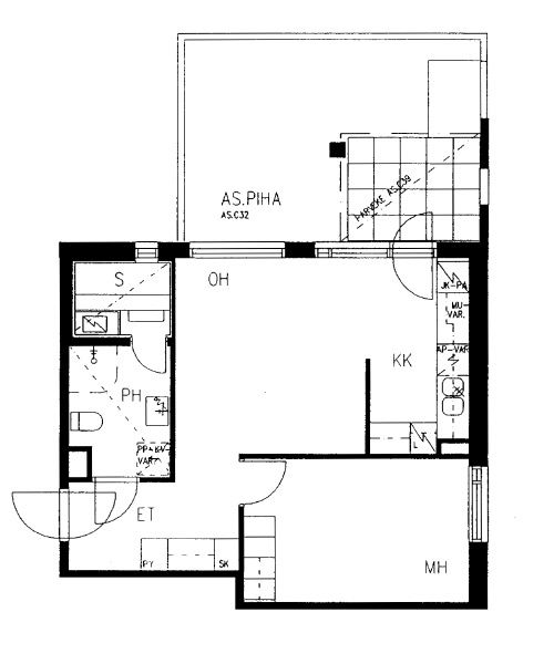
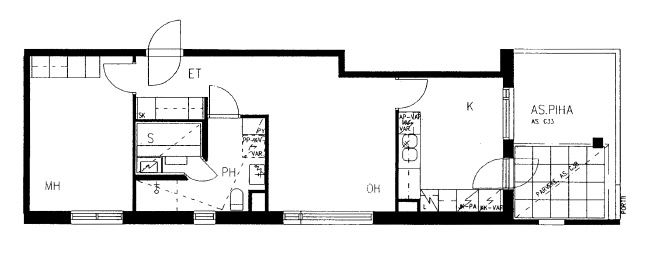
Kivikonkaari 20 C 33
2h+k+s
, Kerrostalo
54 m2
2/3
Kivikonkaari 20 C 33
2h+k+s
, Kerrostalo
54 m2
Kerros 2/3
Kivikonkaari 20 C 38
2h+k+s
, Kerrostalo
54 m2
3/3
Kivikonkaari 20 C 38
2h+k+s
, Kerrostalo
54 m2
Kerros 3/3
Kivikonkaari 20 A 8
2h+k+s
, Kerrostalo
56.5 m2
3/4
Kivikonkaari 20 A 8
2h+k+s
, Kerrostalo
56.5 m2
Kerros 3/4
Kivikonkaari 20 B 23
2h+k+s
, Kerrostalo
56.5 m2
3/4
Kivikonkaari 20 B 23
2h+k+s
, Kerrostalo
56.5 m2
Kerros 3/4
Kivikonkaari 20 B 27
2h+k+s
, Kerrostalo
56.5 m2
4/4
Kivikonkaari 20 B 27
2h+k+s
, Kerrostalo
56.5 m2
Kerros 4/4
Kivikonkaari 20 A 4
2h+k+s
, Kerrostalo
56.5 m2
2/4
Kivikonkaari 20 A 4
2h+k+s
, Kerrostalo
56.5 m2
Kerros 2/4
Kivikonkaari 20 B 19
2h+k+s
, Kerrostalo
56.5 m2
2/4
Kivikonkaari 20 B 19
2h+k+s
, Kerrostalo
56.5 m2
Kerros 2/4
Kivikonkaari 20 A 12
2h+k+s
, Kerrostalo
56.5 m2
4/4
Kivikonkaari 20 A 12
2h+k+s
, Kerrostalo
56.5 m2
Kerros 4/4
Kivikonkaari 20 B 28
2h+kk+s
, Kerrostalo
45 m2
4/4
Kivikonkaari 20 B 28
2h+kk+s
, Kerrostalo
45 m2
Kerros 4/4
Kivikonkaari 20 B 24
2h+kk+s
, Kerrostalo
45 m2
3/4
Kivikonkaari 20 B 24
2h+kk+s
, Kerrostalo
45 m2
Kerros 3/4
Kivikonkaari 20 A 5
2h+kk+s
, Kerrostalo
45 m2
2/4
Kivikonkaari 20 A 5
2h+kk+s
, Kerrostalo
45 m2
Kerros 2/4
Kivikonkaari 20 A 13
2h+kk+s
, Kerrostalo
45 m2
4/4
Kivikonkaari 20 A 13
2h+kk+s
, Kerrostalo
45 m2
Kerros 4/4
Kivikonkaari 20 A 9
2h+kk+s
, Kerrostalo
45 m2
3/4
Kivikonkaari 20 A 9
2h+kk+s
, Kerrostalo
45 m2
Kerros 3/4
Kivikonkaari 20 B 20
2h+kk+s
, Kerrostalo
45 m2
2/4
Kivikonkaari 20 B 20
2h+kk+s
, Kerrostalo
45 m2
Kerros 2/4
Kivikonkaari 20 D 40
2h+kk+s
, Kerrostalo
46.5 m2
1/3
Kivikonkaari 20 D 40
2h+kk+s
, Kerrostalo
46.5 m2
Kerros 1/3
Kivikonkaari 20 C 39
2h+kk+s
, Kerrostalo
47.5 m2
3/3
Kivikonkaari 20 C 39
2h+kk+s
, Kerrostalo
47.5 m2
Kerros 3/3
Kivikonkaari 20 C 32
2h+kk+s
, Kerrostalo
47.5 m2
2/3
Kivikonkaari 20 C 32
2h+kk+s
, Kerrostalo
47.5 m2
Kerros 2/3
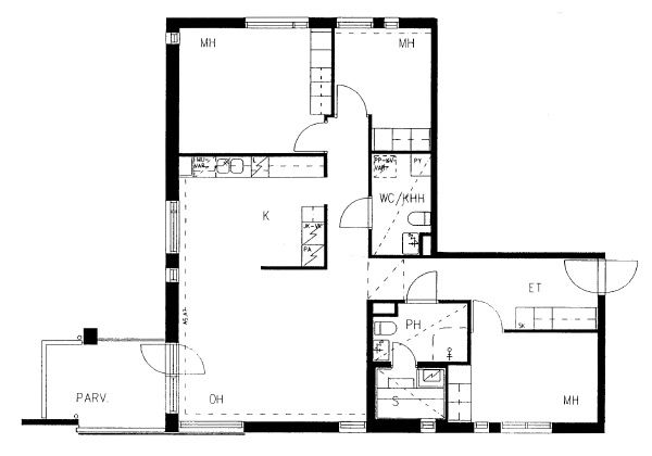
Kivikonkaari 20 A 14
3h+k+s
, Kerrostalo
73 m2
4/4
Kivikonkaari 20 A 14
3h+k+s
, Kerrostalo
73 m2
Kerros 4/4
Kivikonkaari 20 A 2
3h+k+s
, Kerrostalo
73 m2
1/4
Kivikonkaari 20 A 2
3h+k+s
, Kerrostalo
73 m2
Kerros 1/4
Kivikonkaari 20 A 10
3h+k+s
, Kerrostalo
73 m2
3/4
Kivikonkaari 20 A 10
3h+k+s
, Kerrostalo
73 m2
Kerros 3/4
Kivikonkaari 20 B 26
3h+k+s
, Kerrostalo
73 m2
4/4
Kivikonkaari 20 B 26
3h+k+s
, Kerrostalo
73 m2
Kerros 4/4
Kivikonkaari 20 B 22
3h+k+s
, Kerrostalo
73 m2
3/4
Kivikonkaari 20 B 22
3h+k+s
, Kerrostalo
73 m2
Kerros 3/4
Kivikonkaari 20 B 18
3h+k+s
, Kerrostalo
73 m2
2/4
Kivikonkaari 20 B 18
3h+k+s
, Kerrostalo
73 m2
Kerros 2/4
Kivikonkaari 20 B 15
3h+k+s
, Kerrostalo
73 m2
1/4
Kivikonkaari 20 B 15
3h+k+s
, Kerrostalo
73 m2
Kerros 1/4
Kivikonkaari 20 A 6
3h+k+s
, Kerrostalo
73 m2
2/4
Kivikonkaari 20 A 6
3h+k+s
, Kerrostalo
73 m2
Kerros 2/4
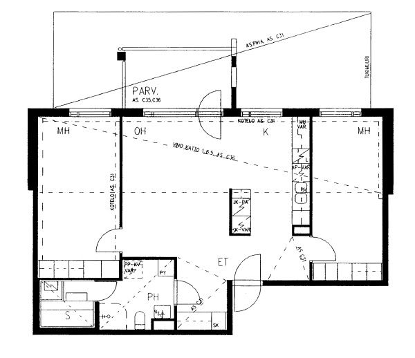
Kivikonkaari 20 C 35
3h+k+s
, Kerrostalo
75.5 m2
2/3
Kivikonkaari 20 C 35
3h+k+s
, Kerrostalo
75.5 m2
Kerros 2/3
Kivikonkaari 20 C 36
3h+k+s
, Kerrostalo
75.5 m2
3/3
Kivikonkaari 20 C 36
3h+k+s
, Kerrostalo
75.5 m2
Kerros 3/3
Kivikonkaari 20 C 31
3h+k+s
, Kerrostalo
75.5 m2
1/3
Kivikonkaari 20 C 31
3h+k+s
, Kerrostalo
75.5 m2
Kerros 1/3
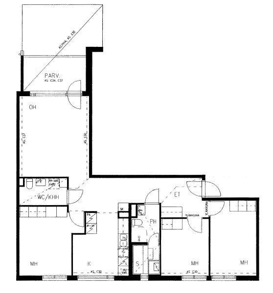
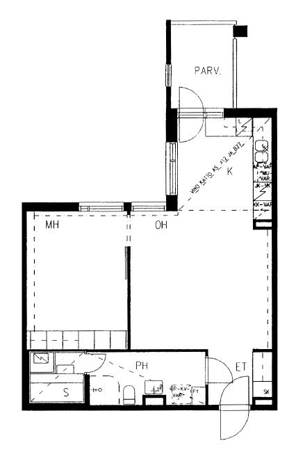
Kivikonkaari 20 D 48
3h+k+s
, Kerrostalo
81 m2
2-3/3
Kivikonkaari 20 D 48
3h+k+s
, Kerrostalo
81 m2
Kerros 2-3/3
Kivikonkaari 20 D 45
3h+kk
, Kerrostalo
75 m2
Kerros 2-3/3
Kivikonkaari 20 B 16
3h+kk+s
, Kerrostalo
61 m2
1/4
Kivikonkaari 20 B 16
3h+kk+s
, Kerrostalo
61 m2
Kerros 1/4
Kivikonkaari 20 A 1
3h+kk+s
, Kerrostalo
61 m2
1/4
Kivikonkaari 20 A 1
3h+kk+s
, Kerrostalo
61 m2
Kerros 1/4
Kivikonkaari 20 D 43
3h+kk+s
, Kerrostalo
64.5 m2
1/3
Kivikonkaari 20 D 43
3h+kk+s
, Kerrostalo
64.5 m2
Kerros 1/3
Kivikonkaari 20 D 46
3h+kk+s
, Kerrostalo
75 m2
2-3/3
Kivikonkaari 20 D 46
3h+kk+s
, Kerrostalo
75 m2
Kerros 2-3/3
Kivikonkaari 20 D 47
3h+kk+s
, Kerrostalo
75 m2
2-3/3
Kivikonkaari 20 D 47
3h+kk+s
, Kerrostalo
75 m2
Kerros 2-3/3
Kivikonkaari 20 B 21
4h+k+s
, Kerrostalo
91.5 m2
2/4
Kivikonkaari 20 B 21
4h+k+s
, Kerrostalo
91.5 m2
Kerros 2/4
Kivikonkaari 20 B 25
4h+k+s
, Kerrostalo
91.5 m2
3/4
Kivikonkaari 20 B 25
4h+k+s
, Kerrostalo
91.5 m2
Kerros 3/4
Kivikonkaari 20 B 17
4h+k+s
, Kerrostalo
91.5 m2
1/4
Kivikonkaari 20 B 17
4h+k+s
, Kerrostalo
91.5 m2
Kerros 1/4
Kivikonkaari 20 B 29
4h+k+s
, Kerrostalo
91.5 m2
4/4
Kivikonkaari 20 B 29
4h+k+s
, Kerrostalo
91.5 m2
Kerros 4/4
Kivikonkaari 20 C 30
4h+k+s
, Kerrostalo
93 m2
1/3
Kivikonkaari 20 C 30
4h+k+s
, Kerrostalo
93 m2
Kerros 1/3
Kivikonkaari 20 C 34
4h+k+s
, Kerrostalo
93 m2
2/3
Kivikonkaari 20 C 34
4h+k+s
, Kerrostalo
93 m2
Kerros 2/3
Kivikonkaari 20 C 37
4h+k+s
, Kerrostalo
93 m2
3/3
Kivikonkaari 20 C 37
4h+k+s
, Kerrostalo
93 m2
Kerros 3/3
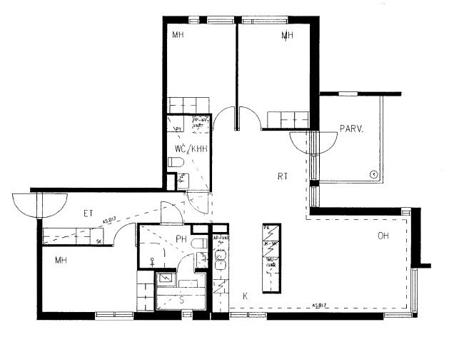
Kivikonkaari 20 A 7
4h+k+s
, Kerrostalo
93.5 m2
3/4
Kivikonkaari 20 A 7
4h+k+s
, Kerrostalo
93.5 m2
Kerros 3/4
Kivikonkaari 20 A 11
4h+k+s
, Kerrostalo
93.5 m2
4/4
Kivikonkaari 20 A 11
4h+k+s
, Kerrostalo
93.5 m2
Kerros 4/4
Kivikonkaari 20 A 3
4h+k+s
, Kerrostalo
93.5 m2
2/4
Kivikonkaari 20 A 3
4h+k+s
, Kerrostalo
93.5 m2
Kerros 2/4
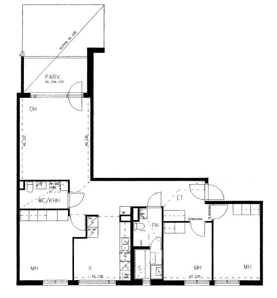
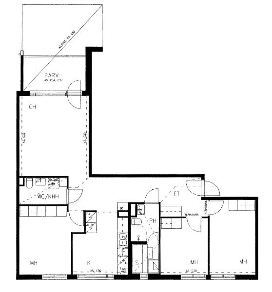
Kivikonkaari 20 D 44
5h+k+s
, Kerrostalo
109.5 m2
Kerros 2-3/3

