Kohteen esittely
Viihtyisä kerrostalokohde Helsingin Kivikossa. Kaikissa asunnoissa on oma sauna. Osa parvekkeista on lasitettu. Iso, talojen rajaama sisäpiha, jossa paljon korkeita puita ja vihreyttä sekä lasten leikkipaikka ja istuinryhmiä. Sisäpihan ikkunoista onkin todella metsäiset ja suojaiset näkymät! Autopaikat (hallipaikat) sijaitsevat Kivikon pysäköinnin tiloissa, varaus Kotikulman tai palvelukeskuksen kautta.
Alueella on päiväkodit ja koulut. Harrastamiseen on koirapuistoja ja Kivikon liikuntapuisto, jossa on mm. frisbeegolfrata, BMX-pyöräilyrata ja jalkapallokenttä sekä Kivikon hallilla kuntosali. Lyhyt kävelymatka metrolle ja ruokakauppoihin. Hyvät kulkuyhteydet myös omalla autolla.
Miksi Asuntosäätiö?
Me uskomme, että onnellinen koti ja laadukas asuminen kuuluvat kaikille. Emme tavoittele voittoa, vaan käytämme kaikki vastikkeista ja vuokrista saadut tulot toimintamme kehittämiseen. Jo yli 33 000 suomalaista on valinnut Asuntosäätiön tarjoaman kodin. Tiesithän, että myös lemmikit ovat tervetulleita kaikkiin koteihimme!
Rakennuksen tiedot
- Asumismuoto Asokoti
- Keskimääräinen asumisoikeusmaksu / jm² 295,34€
- Hissit 3
- Talosauna Ei
- Pyykkitupa Kyllä
- Kuivaushuone Kyllä
- Asuntoja 49
- Asuinrakennuksia 2
- Käyttövastike / kk / jm² 14€
- Valmistumisvuosi 1994
- Peruskorjattu 2024
- Porrashuoneet 5
- Energialuokka F
- Lämmitysmuoto Kauko
- Autopaikat 46
- Askarteluhuone 1
- Laajakaista DNA Welho
- Antennijärjestelmä Kaapeli
- KaapeliTV DNA
- Kattomateriaali Huopa
- Runkomateriaali Betoni
- Lemmikit Sallittu
Huoneistot ja pohjakuvat: Lohkarekuja 1, Kerrostalo
Lisää hakemukselle kaikki haluamasi asuntotyypit. Mahdollisuutesi asunnon saamiseksi paranevat, kun voimme tarjota sinulle kaikkia valitsemasi asuntotyypin asuntoja, jotka mahdollisesti vapautuvat myöhemmin tästä kohteesta. Olet automaattisesti näiden asuntotyyppien hakuprosessissa.
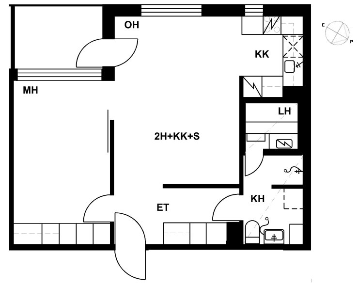
Lohkarekuja 1 A 4
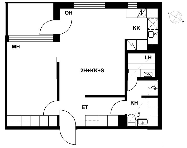
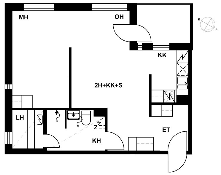
2h+k+s
, Kerrostalo
59 m2
2/4
Lohkarekuja 1 A 4
2h+k+s
, Kerrostalo
59 m2
Kerros 2/4
Lohkarekuja 1 A 7
2h+k+s
, Kerrostalo
59 m2
3/4
Lohkarekuja 1 A 7
2h+k+s
, Kerrostalo
59 m2
Kerros 3/4
Lohkarekuja 1 A 1
2h+k+s
, Kerrostalo
59 m2
1/4
Lohkarekuja 1 A 1
2h+k+s
, Kerrostalo
59 m2
Kerros 1/4
Lohkarekuja 1 E 42
2h+kk+s
, Kerrostalo
48 m2
2/3
Lohkarekuja 1 E 42
2h+kk+s
, Kerrostalo
48 m2
Kerros 2/3
Lohkarekuja 1 E 40
2h+kk+s
, Kerrostalo
48 m2
Kerros 1/3
Lohkarekuja 1 E 46
2h+kk+s
, Kerrostalo
48 m2
3/3
Lohkarekuja 1 E 46
2h+kk+s
, Kerrostalo
48 m2
Kerros 3/3
Lohkarekuja 1 C 28
2h+kk+s
, Kerrostalo
49 m2
3/4
Lohkarekuja 1 C 28
2h+kk+s
, Kerrostalo
49 m2
Kerros 3/4
Lohkarekuja 1 C 24
2h+kk+s
, Kerrostalo
49 m2
2/4
Lohkarekuja 1 C 24
2h+kk+s
, Kerrostalo
49 m2
Kerros 2/4
Lohkarekuja 1 C 31
2h+kk+s
, Kerrostalo
49 m2
4/4
Lohkarekuja 1 C 31
2h+kk+s
, Kerrostalo
49 m2
Kerros 4/4
Lohkarekuja 1 C 30
2h+kk+s
, Kerrostalo
49.5 m2
4/4
Lohkarekuja 1 C 30
2h+kk+s
, Kerrostalo
49.5 m2
Kerros 4/4
Lohkarekuja 1 C 27
2h+kk+s
, Kerrostalo
49.5 m2
3/4
Lohkarekuja 1 C 27
2h+kk+s
, Kerrostalo
49.5 m2
Kerros 3/4
Lohkarekuja 1 C 23
2h+kk+s
, Kerrostalo
49.5 m2
2/4
Lohkarekuja 1 C 23
2h+kk+s
, Kerrostalo
49.5 m2
Kerros 2/4
Lohkarekuja 1 C 26
2h+kk+s
, Kerrostalo
50 m2
3/4
Lohkarekuja 1 C 26
2h+kk+s
, Kerrostalo
50 m2
Kerros 3/4
Lohkarekuja 1 A 3
2h+kk+s
, Kerrostalo
50 m2
2/4
Lohkarekuja 1 A 3
2h+kk+s
, Kerrostalo
50 m2
Kerros 2/4
Lohkarekuja 1 A 6
2h+kk+s
, Kerrostalo
50 m2
3/4
Lohkarekuja 1 A 6
2h+kk+s
, Kerrostalo
50 m2
Kerros 3/4
Lohkarekuja 1 B 13
2h+kk+s
, Kerrostalo
50 m2
2/4
Lohkarekuja 1 B 13
2h+kk+s
, Kerrostalo
50 m2
Kerros 2/4
Lohkarekuja 1 C 22
2h+kk+s
, Kerrostalo
50 m2
2/4
Lohkarekuja 1 C 22
2h+kk+s
, Kerrostalo
50 m2
Kerros 2/4
Lohkarekuja 1 B 16
2h+kk+s
, Kerrostalo
50 m2
3/4
Lohkarekuja 1 B 16
2h+kk+s
, Kerrostalo
50 m2
Kerros 3/4
Lohkarekuja 1 E 43
2h+kk+s
, Kerrostalo
50.5 m2
2/3
Lohkarekuja 1 E 43
2h+kk+s
, Kerrostalo
50.5 m2
Kerros 2/3
Lohkarekuja 1 E 48
2h+kk+s
, Kerrostalo
50.5 m2
3/3
Lohkarekuja 1 E 48
2h+kk+s
, Kerrostalo
50.5 m2
Kerros 3/3
Lohkarekuja 1 E 44
2h+kk+s
, Kerrostalo
50.5 m2
2/3
Lohkarekuja 1 E 44
2h+kk+s
, Kerrostalo
50.5 m2
Kerros 2/3
Lohkarekuja 1 E 47
2h+kk+s
, Kerrostalo
50.5 m2
3/3
Lohkarekuja 1 E 47
2h+kk+s
, Kerrostalo
50.5 m2
Kerros 3/3
Lohkarekuja 1 D 38
2h+kk+s
, Kerrostalo
50.5 m2
3/3
Lohkarekuja 1 D 38
2h+kk+s
, Kerrostalo
50.5 m2
Kerros 3/3
Lohkarekuja 1 D 35
2h+kk+s
, Kerrostalo
50.5 m2
2/3
Lohkarekuja 1 D 35
2h+kk+s
, Kerrostalo
50.5 m2
Kerros 2/3
Lohkarekuja 1 B 15
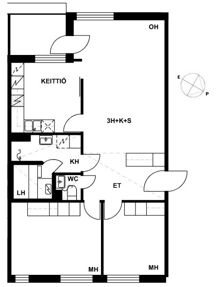
3h+k+s
, Kerrostalo
73 m2
3/4
Lohkarekuja 1 B 15
3h+k+s
, Kerrostalo
73 m2
Kerros 3/4
Lohkarekuja 1 C 25
3h+k+s
, Kerrostalo
73 m2
3/4
Lohkarekuja 1 C 25
3h+k+s
, Kerrostalo
73 m2
Kerros 3/4
Lohkarekuja 1 B 10
3h+k+s
, Kerrostalo
73 m2
1/4
Lohkarekuja 1 B 10
3h+k+s
, Kerrostalo
73 m2
Kerros 1/4
Lohkarekuja 1 C 20
3h+k+s
, Kerrostalo
73 m2
1/4
Lohkarekuja 1 C 20
3h+k+s
, Kerrostalo
73 m2
Kerros 1/4
Lohkarekuja 1 B 12
3h+k+s
, Kerrostalo
73 m2
2/4
Lohkarekuja 1 B 12
3h+k+s
, Kerrostalo
73 m2
Kerros 2/4
Lohkarekuja 1 C 21
3h+k+s
, Kerrostalo
73 m2
2/4
Lohkarekuja 1 C 21
3h+k+s
, Kerrostalo
73 m2
Kerros 2/4
Lohkarekuja 1 D 34
3h+k+s
, Kerrostalo
75.5 m2
2/3
Lohkarekuja 1 D 34
3h+k+s
, Kerrostalo
75.5 m2
Kerros 2/3
Lohkarekuja 1 D 37
3h+k+s
, Kerrostalo
75.5 m2
3/3
Lohkarekuja 1 D 37
3h+k+s
, Kerrostalo
75.5 m2
Kerros 3/3
Lohkarekuja 1 D 32
3h+k+s
, Kerrostalo
75.5 m2
1/3
Lohkarekuja 1 D 32
3h+k+s
, Kerrostalo
75.5 m2
Kerros 1/3
Lohkarekuja 1 E 45
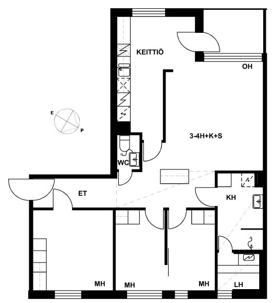
4h+k+s
, Kerrostalo
82 m2
2/3
Lohkarekuja 1 E 45
4h+k+s
, Kerrostalo
82 m2
Kerros 2/3
Lohkarekuja 1 E 41
4h+k+s
, Kerrostalo
82 m2
1/3
Lohkarekuja 1 E 41
4h+k+s
, Kerrostalo
82 m2
Kerros 1/3
Lohkarekuja 1 A 8
4h+k+s
, Kerrostalo
84.5 m2
4/4
Lohkarekuja 1 A 8
4h+k+s
, Kerrostalo
84.5 m2
Kerros 4/4
Lohkarekuja 1 B 19
4h+k+s
, Kerrostalo
86 m2
4/4
Lohkarekuja 1 B 19
4h+k+s
, Kerrostalo
86 m2
Kerros 4/4
Lohkarekuja 1 B 11
4h+k+s
, Kerrostalo
86 m2
1/4
Lohkarekuja 1 B 11
4h+k+s
, Kerrostalo
86 m2
Kerros 1/4
Lohkarekuja 1 B 14
4h+k+s
, Kerrostalo
86 m2
2/4
Lohkarekuja 1 B 14
4h+k+s
, Kerrostalo
86 m2
Kerros 2/4
Lohkarekuja 1 B 17
4h+k+s
, Kerrostalo
86 m2
3/4
Lohkarekuja 1 B 17
4h+k+s
, Kerrostalo
86 m2
Kerros 3/4
Lohkarekuja 1 A 2
4h+k+s
, Kerrostalo
90.5 m2
2/4
Lohkarekuja 1 A 2
4h+k+s
, Kerrostalo
90.5 m2
Kerros 2/4
Lohkarekuja 1 A 9
4h+k+s
, Kerrostalo
90.5 m2
4/4
Lohkarekuja 1 A 9
4h+k+s
, Kerrostalo
90.5 m2
Kerros 4/4
Lohkarekuja 1 D 33
4h+k+s
, Kerrostalo
93.5 m2
1/3
Lohkarekuja 1 D 33
4h+k+s
, Kerrostalo
93.5 m2
Kerros 1/3
Lohkarekuja 1 D 39
4h+k+s
, Kerrostalo
93.5 m2
3/3
Lohkarekuja 1 D 39
4h+k+s
, Kerrostalo
93.5 m2
Kerros 3/3
Lohkarekuja 1 D 36
4h+k+s
, Kerrostalo
93.5 m2
2/3
Lohkarekuja 1 D 36
4h+k+s
, Kerrostalo
93.5 m2
Kerros 2/3
Lohkarekuja 1 B 18
5h+k+s
, Kerrostalo
104.5 m2
4/4
Lohkarekuja 1 B 18
5h+k+s
, Kerrostalo
104.5 m2
Kerros 4/4
Lohkarekuja 1 C 29
5h+k+s
, Kerrostalo
104.5 m2
4/4
Lohkarekuja 1 C 29
5h+k+s
, Kerrostalo
104.5 m2
Kerros 4/4

