Kohteen esittely
Rivitalokohde pientaloalueella Nallenmäessä. Omat, suojaisat pihat vihreässä ympäristössä. Kaukolämpö.
Lähellä Longinojan varren ulkoilualueet, jossa mm. koirapuisto. Lyhyen kävelymatkan päässä Malmin juna-asemalta, josta pääsee nopeasti niin Helsingin keskustaan kuin Vantaan suuntaankin. Ruokaostokset pääsee hoitamaan aseman yhteydessä olevissa isoissa marketeissa. Alueella on päiväkoti ja koulut ammattikorkeakouluun saakka.
Miksi Asuntosäätiö?
Me uskomme, että onnellinen koti ja laadukas asuminen kuuluvat kaikille. Emme tavoittele voittoa, vaan käytämme kaikki vastikkeista ja vuokrista saadut tulot toimintamme kehittämiseen. Jo yli 33 000 suomalaista on valinnut Asuntosäätiön tarjoaman kodin. Tiesithän, että myös lemmikit ovat tervetulleita kaikkiin koteihimme!
Rakennuksen tiedot
- Asumismuoto Asokoti
- Keskimääräinen asumisoikeusmaksu / jm² 417,83€
- Hissit Ei
- Talosauna Ei
- Asuntoja 5
- Asuinrakennuksia 3
- Käyttövastike / kk / jm² 17,87€
- Valmistumisvuosi 1997
- Energialuokka D
- Lämmitysmuoto Kauko
- Autopaikat 8
- Laajakaista DNA 4G
- Antennijärjestelmä Harava
- Kattomateriaali Tiili
- Runkomateriaali Puu
- Lemmikit Sallittu
Huoneistot ja pohjakuvat: Nallenmäentie 5 ja Nallenmäenrinne 4, Paritalo, Piharakennus, Omakotitalo
Lisää hakemukselle kaikki haluamasi asuntotyypit. Mahdollisuutesi asunnon saamiseksi paranevat, kun voimme tarjota sinulle kaikkia valitsemasi asuntotyypin asuntoja, jotka mahdollisesti vapautuvat myöhemmin tästä kohteesta. Olet automaattisesti näiden asuntotyyppien hakuprosessissa.
Nallenmäenrinne 4 A 1
3h+k+s
, Paritalo
83.5 m2
1-2/2
Nallenmäenrinne 4 A 1
3h+k+s
, Paritalo
83.5 m2
Kerros 1-2/2
Nallenmäenrinne 4 A 2
3h+k+s
, Paritalo
83.5 m2
1-2/2
Nallenmäenrinne 4 A 2
3h+k+s
, Paritalo
83.5 m2
Kerros 1-2/2
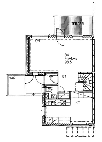
Nallenmäentie 5 B B 4
4h+k+s
, Paritalo
98.5 m2
Kerros 1-2/2
Nallenmäentie 5 B B 3
4h+k+s
, Paritalo
98.5 m2
1-2/2
Nallenmäentie 5 B B 3
4h+k+s
, Paritalo
98.5 m2
Kerros 1-2/2
Nallenmäentie 5 B C 5
4h+k+s
, Omakotitalo
99 m2
1-2/2
Nallenmäentie 5 B C 5
4h+k+s
, Omakotitalo
99 m2
Kerros 1-2/2
