Kohteen esittely
Hissillinen nelikerroksinen kerrostalo Malmilla. Asunnoissa on laminaattilattiat, laatoitetut kylpyhuoneet ja lasitetut parvekkeet. Asuntokohtaiset huoneenomaiset varastot, jotka ovat joko asunnon yhteydessä tai rappukäytävän yhteydessä. Asukkaat ylläpitävät omaa kuntosalia kerhohuoneessa.
Lähellä Longinojan varren ulkoilualueet, jossa mm. koirapuisto. Lyhyen kävelymatkan päässä Malmin juna-asemalta, josta pääsee nopeasti niin Helsingin keskustaan kuin Vantaan suuntaankin. Ruokaostokset pääsee hoitamaan aseman yhteydessä olevissa isoissa marketeissa. Alueella on päiväkoti ja koulut ammattikorkeakouluun saakka.
Miksi Asuntosäätiö?
Me uskomme, että onnellinen koti ja laadukas asuminen kuuluvat kaikille. Emme tavoittele voittoa, vaan käytämme kaikki vastikkeista ja vuokrista saadut tulot toimintamme kehittämiseen. Jo yli 33 000 suomalaista on valinnut Asuntosäätiön tarjoaman kodin. Tiesithän, että myös lemmikit ovat tervetulleita kaikkiin koteihimme!
Rakennuksen tiedot
- Asumismuoto Asokoti
- Keskimääräinen asumisoikeusmaksu / jm² 591,79€
- Hissit 1
- Talosauna Ei
- Kuivaushuone Kyllä
- Asuntoja 23
- Asuinrakennuksia 1
- Käyttövastike / kk / jm² 16,06€
- Valmistumisvuosi 2012
- Porrashuoneet 1
- Energialuokka D
- Lämmitysmuoto Kauko
- Autopaikat 20
- Kerhohuone 2
- Laajakaista DNA Welho
- Antennijärjestelmä Kaapeli
- KaapeliTV DNA
- Kattomateriaali Pelti
- Runkomateriaali Betoni
- Lemmikit Sallittu
Huoneistot ja pohjakuvat: Teerisuontie 5, Piharakennus, Kerrostalo
Lisää hakemukselle kaikki haluamasi asuntotyypit. Mahdollisuutesi asunnon saamiseksi paranevat, kun voimme tarjota sinulle kaikkia valitsemasi asuntotyypin asuntoja, jotka mahdollisesti vapautuvat myöhemmin tästä kohteesta. Olet automaattisesti näiden asuntotyyppien hakuprosessissa.
Teerisuontie 5 A 8
1h+kt
, Kerrostalo
23 m2
3/3
Teerisuontie 5 A 8
1h+kt
, Kerrostalo
23 m2
Kerros 3/3
Teerisuontie 5 A 16
1h+kt
, Kerrostalo
23 m2
4/3
Teerisuontie 5 A 16
1h+kt
, Kerrostalo
23 m2
Kerros 4/3
Teerisuontie 5 A 5
2h+kk+s
, Kerrostalo
57 m2
2/3
Teerisuontie 5 A 5
2h+kk+s
, Kerrostalo
57 m2
Kerros 2/3
Teerisuontie 5 A 11
2h+kk+s
, Kerrostalo
57 m2
3/3
Teerisuontie 5 A 11
2h+kk+s
, Kerrostalo
57 m2
Kerros 3/3
Teerisuontie 5 A 12
2h+kk+s
, Kerrostalo
57 m2
3/3
Teerisuontie 5 A 12
2h+kk+s
, Kerrostalo
57 m2
Kerros 3/3
Teerisuontie 5 A 20
2h+kk+s
, Kerrostalo
57 m2
4/3
Teerisuontie 5 A 20
2h+kk+s
, Kerrostalo
57 m2
Kerros 4/3
Teerisuontie 5 A 4
2h+kk+s
, Kerrostalo
57 m2
2/3
Teerisuontie 5 A 4
2h+kk+s
, Kerrostalo
57 m2
Kerros 2/3
Teerisuontie 5 A 13
2h+kk+s
, Kerrostalo
57 m2
3/3
Teerisuontie 5 A 13
2h+kk+s
, Kerrostalo
57 m2
Kerros 3/3
Teerisuontie 5 A 19
2h+kk+s
, Kerrostalo
57 m2
4/3
Teerisuontie 5 A 19
2h+kk+s
, Kerrostalo
57 m2
Kerros 4/3
Teerisuontie 5 A 21
2h+kk+s
, Kerrostalo
57 m2
4/3
Teerisuontie 5 A 21
2h+kk+s
, Kerrostalo
57 m2
Kerros 4/3
Teerisuontie 5 A 3
2h+kk+s
, Kerrostalo
57 m2
2/3
Teerisuontie 5 A 3
2h+kk+s
, Kerrostalo
57 m2
Kerros 2/3
Teerisuontie 5 A 7
3h+k+s
, Kerrostalo
80 m2
2/3
Teerisuontie 5 A 7
3h+k+s
, Kerrostalo
80 m2
Kerros 2/3
Teerisuontie 5 A 15
3h+k+s
, Kerrostalo
80 m2
3/3
Teerisuontie 5 A 15
3h+k+s
, Kerrostalo
80 m2
Kerros 3/3
Teerisuontie 5 A 23
3h+k+s
, Kerrostalo
80 m2
4/3
Teerisuontie 5 A 23
3h+k+s
, Kerrostalo
80 m2
Kerros 4/3
Teerisuontie 5 A 22
3h+k+s
, Kerrostalo
90.5 m2
4/3
Teerisuontie 5 A 22
3h+k+s
, Kerrostalo
90.5 m2
Kerros 4/3
Teerisuontie 5 A 6
3h+k+s
, Kerrostalo
90.5 m2
2/3
Teerisuontie 5 A 6
3h+k+s
, Kerrostalo
90.5 m2
Kerros 2/3
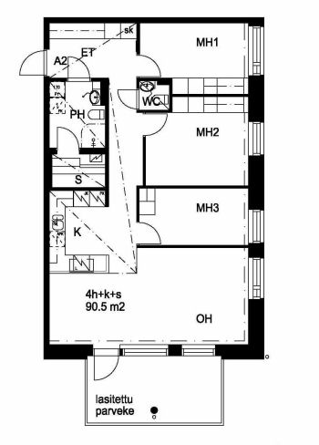
Teerisuontie 5 A 2
4h+k+s
, Kerrostalo
90.5 m2
2/3
Teerisuontie 5 A 2
4h+k+s
, Kerrostalo
90.5 m2
Kerros 2/3
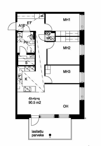
Teerisuontie 5 A 18
4h+k+s
, Kerrostalo
90.5 m2
4/3
Teerisuontie 5 A 18
4h+k+s
, Kerrostalo
90.5 m2
Kerros 4/3
Teerisuontie 5 A 10
4h+k+s
, Kerrostalo
90.5 m2
3/3
Teerisuontie 5 A 10
4h+k+s
, Kerrostalo
90.5 m2
Kerros 3/3


