Kohteen esittely
Viihtyisä kerrostalokohde Pikku-Huopalahdessa. Kohteeseen kuuluu kaksi kerrostaloa, joista toinen on Paciuksenkaaren puolella ja toinen Kuusipolun puolella. Osasta asuntoja puistonäkymät. Kohteessa on pyykkitupa ja kuivaushuone.
Puistomainen alue, jossa pääsee ulkoilemaan pitkiäkin reittejä rantaa pitkin. Myös Meilahden puistot ja Seurasaari ulkomuseoineen kävelymatkan päässä. Hyvät liikenneyhteydet keskustaan esimerkiksi rautiovaunulla.
Miksi Asuntosäätiö?
Me uskomme, että onnellinen koti ja laadukas asuminen kuuluvat kaikille. Emme tavoittele voittoa, vaan käytämme kaikki vastikkeista ja vuokrista saadut tulot toimintamme kehittämiseen. Jo yli 33 000 suomalaista on valinnut Asuntosäätiön tarjoaman kodin. Tiesithän, että myös lemmikit ovat tervetulleita kaikkiin koteihimme!
Rakennuksen tiedot
- Asumismuoto Asokoti
- Keskimääräinen asumisoikeusmaksu / jm² 350,78€
- Hissit 3
- Talosauna Ei
- Pyykkitupa Kyllä
- Kuivaushuone Kyllä
- Asuntoja 44
- Asuinrakennuksia 2
- Käyttövastike / kk / jm² 18,78€
- Valmistumisvuosi 1997
- Porrashuoneet 3
- Energialuokka E
- Lämmitysmuoto Kauko
- Autopaikat 24
- Kerhohuone 1
- Laajakaista DNA Welho
- Antennijärjestelmä Kaapeli
- KaapeliTV DNA
- Kattomateriaali Pelti
- Runkomateriaali Betoni
- Lemmikit Sallittu
Huoneistot ja pohjakuvat: Paciuksenkaari 6, Kerrostalo
Lisää hakemukselle kaikki haluamasi asuntotyypit. Mahdollisuutesi asunnon saamiseksi paranevat, kun voimme tarjota sinulle kaikkia valitsemasi asuntotyypin asuntoja, jotka mahdollisesti vapautuvat myöhemmin tästä kohteesta. Olet automaattisesti näiden asuntotyyppien hakuprosessissa.
Paciuksenkaari 6 C 37
2h+k
, Kerrostalo
53 m2
4/7
Paciuksenkaari 6 C 37
2h+k
, Kerrostalo
53 m2
Kerros 4/7
Paciuksenkaari 6 B 18
2h+k+s
, Kerrostalo
53 m2
3/7
Paciuksenkaari 6 B 18
2h+k+s
, Kerrostalo
53 m2
Kerros 3/7
Paciuksenkaari 6 C 40
2h+k+s
, Kerrostalo
53 m2
5/7
Paciuksenkaari 6 C 40
2h+k+s
, Kerrostalo
53 m2
Kerros 5/7
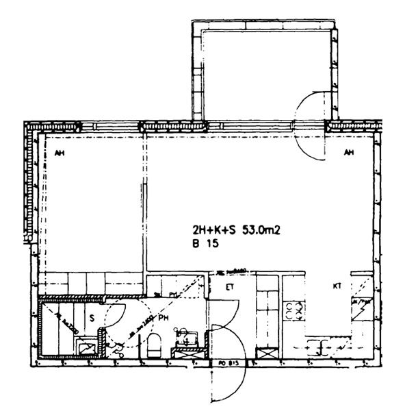
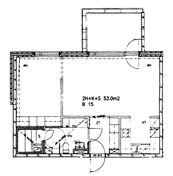
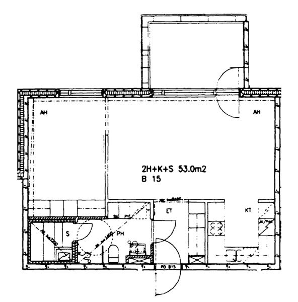
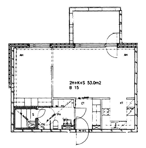
Paciuksenkaari 6 B 15
2h+k+s
, Kerrostalo
53 m2
2/7
Paciuksenkaari 6 B 15
2h+k+s
, Kerrostalo
53 m2
Kerros 2/7
Paciuksenkaari 6 C 31
2h+k+s
, Kerrostalo
53 m2
2/7
Paciuksenkaari 6 C 31
2h+k+s
, Kerrostalo
53 m2
Kerros 2/7
Paciuksenkaari 6 C 43
2h+k+s
, Kerrostalo
53 m2
6/7
Paciuksenkaari 6 C 43
2h+k+s
, Kerrostalo
53 m2
Kerros 6/7
Paciuksenkaari 6 B 24
2h+k+s
, Kerrostalo
53 m2
5/7
Paciuksenkaari 6 B 24
2h+k+s
, Kerrostalo
53 m2
Kerros 5/7
Paciuksenkaari 6 B 27
2h+k+s
, Kerrostalo
53 m2
6/7
Paciuksenkaari 6 B 27
2h+k+s
, Kerrostalo
53 m2
Kerros 6/7
Paciuksenkaari 6 B 21
2h+k+s
, Kerrostalo
53 m2
4/7
Paciuksenkaari 6 B 21
2h+k+s
, Kerrostalo
53 m2
Kerros 4/7
Paciuksenkaari 6 C 34
2h+k+s
, Kerrostalo
53 m2
3/7
Paciuksenkaari 6 C 34
2h+k+s
, Kerrostalo
53 m2
Kerros 3/7
Paciuksenkaari 6 C 44
2h+k+s
, Kerrostalo
55.5 m2
6/7
Paciuksenkaari 6 C 44
2h+k+s
, Kerrostalo
55.5 m2
Kerros 6/7
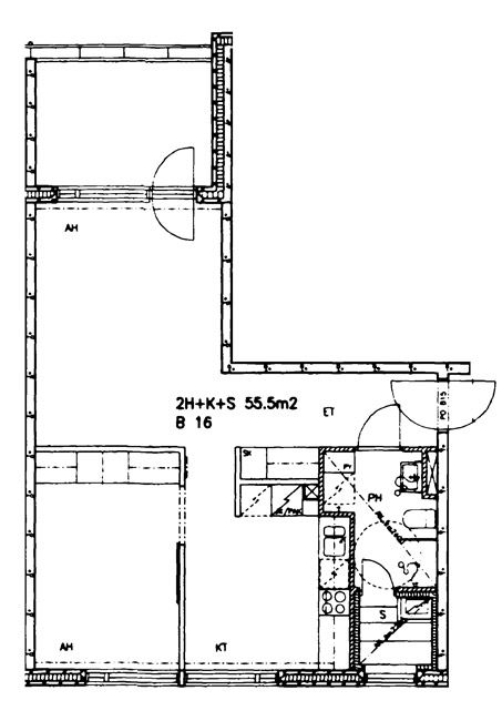
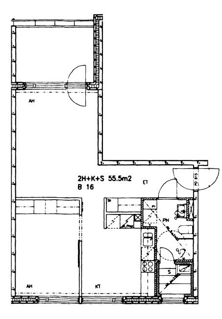
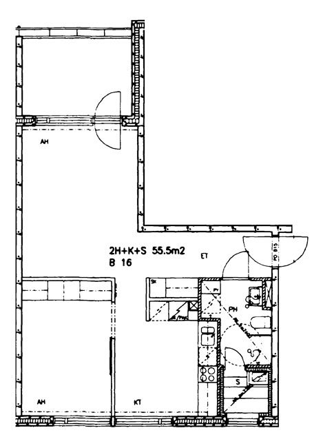
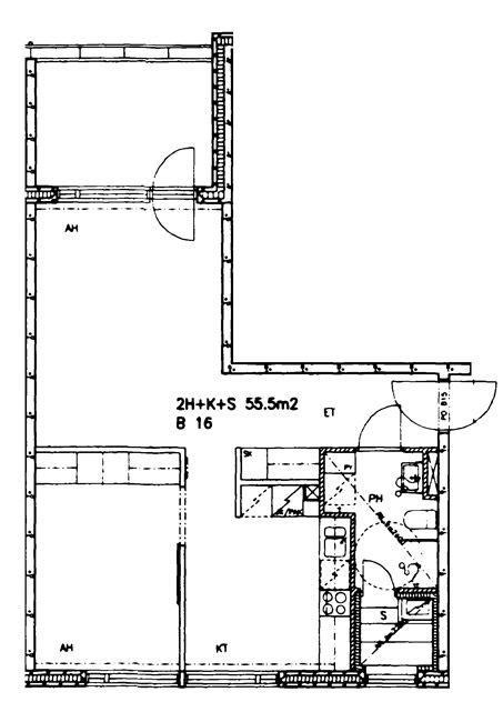
Paciuksenkaari 6 B 16
2h+k+s
, Kerrostalo
55.5 m2
2/7
Paciuksenkaari 6 B 16
2h+k+s
, Kerrostalo
55.5 m2
Kerros 2/7
Paciuksenkaari 6 B 28
2h+k+s
, Kerrostalo
55.5 m2
6/7
Paciuksenkaari 6 B 28
2h+k+s
, Kerrostalo
55.5 m2
Kerros 6/7
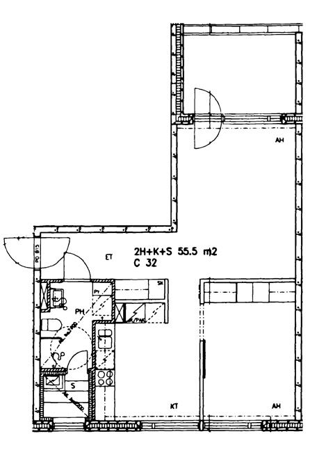
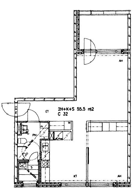
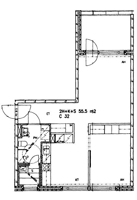
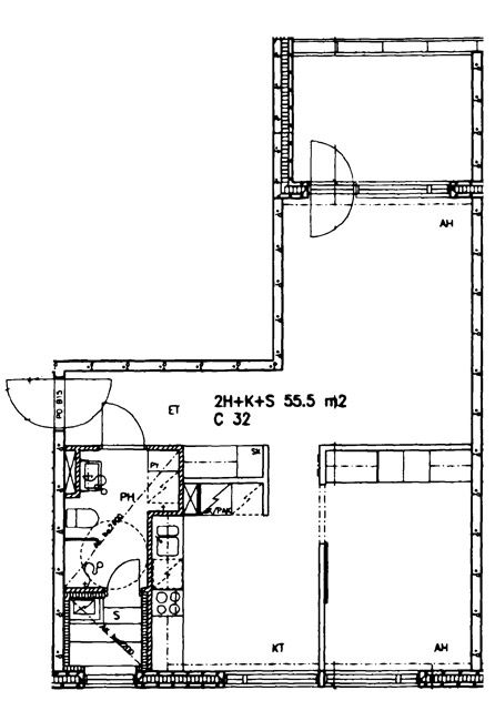
Paciuksenkaari 6 C 32
2h+k+s
, Kerrostalo
55.5 m2
2/7
Paciuksenkaari 6 C 32
2h+k+s
, Kerrostalo
55.5 m2
Kerros 2/7
Paciuksenkaari 6 C 38
2h+k+s
, Kerrostalo
55.5 m2
4/7
Paciuksenkaari 6 C 38
2h+k+s
, Kerrostalo
55.5 m2
Kerros 4/7
Paciuksenkaari 6 B 22
2h+k+s
, Kerrostalo
55.5 m2
4/7
Paciuksenkaari 6 B 22
2h+k+s
, Kerrostalo
55.5 m2
Kerros 4/7
Paciuksenkaari 6 B 19
2h+k+s
, Kerrostalo
55.5 m2
3/7
Paciuksenkaari 6 B 19
2h+k+s
, Kerrostalo
55.5 m2
Kerros 3/7
Paciuksenkaari 6 B 25
2h+k+s
, Kerrostalo
55.5 m2
5/7
Paciuksenkaari 6 B 25
2h+k+s
, Kerrostalo
55.5 m2
Kerros 5/7
Paciuksenkaari 6 C 41
2h+k+s
, Kerrostalo
55.5 m2
5/7
Paciuksenkaari 6 C 41
2h+k+s
, Kerrostalo
55.5 m2
Kerros 5/7
Paciuksenkaari 6 C 35
2h+k+s
, Kerrostalo
55.5 m2
3/7
Paciuksenkaari 6 C 35
2h+k+s
, Kerrostalo
55.5 m2
Kerros 3/7
Paciuksenkaari 6 A 7
2h+kk+s
, Kerrostalo
46 m2
3/4
Paciuksenkaari 6 A 7
2h+kk+s
, Kerrostalo
46 m2
Kerros 3/4
Paciuksenkaari 6 A 4
2h+kk+s
, Kerrostalo
46 m2
2/4
Paciuksenkaari 6 A 4
2h+kk+s
, Kerrostalo
46 m2
Kerros 2/4
Paciuksenkaari 6 A 12
2h+kk+s
, Kerrostalo
46 m2
4/4
Paciuksenkaari 6 A 12
2h+kk+s
, Kerrostalo
46 m2
Kerros 4/4
Paciuksenkaari 6 A 8
2h+kk+s
, Kerrostalo
46 m2
3/4
Paciuksenkaari 6 A 8
2h+kk+s
, Kerrostalo
46 m2
Kerros 3/4
Paciuksenkaari 6 A 11
2h+kk+s
, Kerrostalo
46 m2
4/4
Paciuksenkaari 6 A 11
2h+kk+s
, Kerrostalo
46 m2
Kerros 4/4
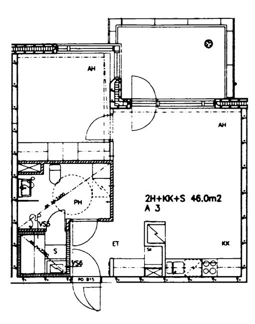
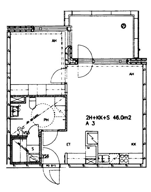
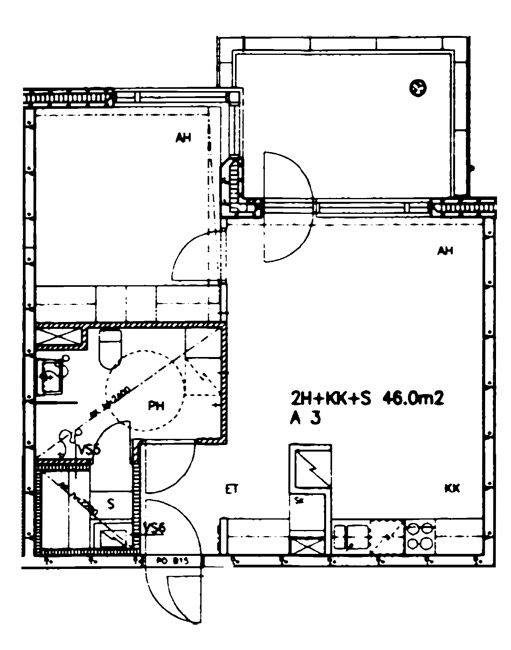
Paciuksenkaari 6 A 3
2h+kk+s
, Kerrostalo
46 m2
2/4
Paciuksenkaari 6 A 3
2h+kk+s
, Kerrostalo
46 m2
Kerros 2/4
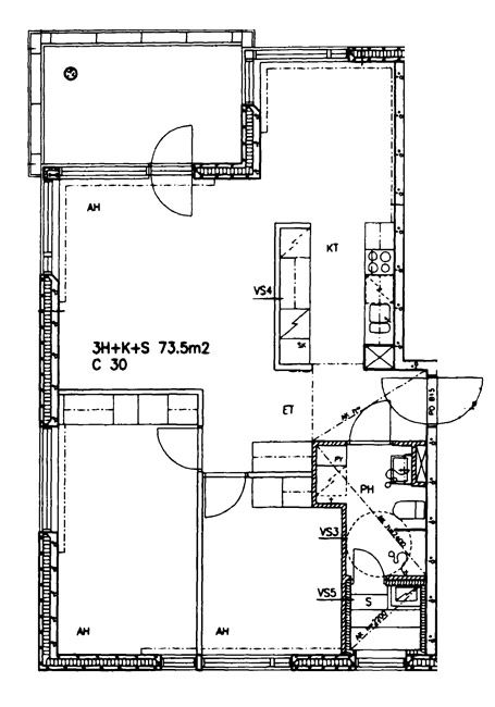
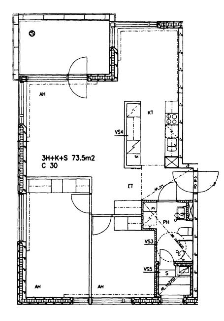
Paciuksenkaari 6 C 36
3h+k+s
, Kerrostalo
73.5 m2
4/7
Paciuksenkaari 6 C 36
3h+k+s
, Kerrostalo
73.5 m2
Kerros 4/7
Paciuksenkaari 6 C 39
3h+k+s
, Kerrostalo
73.5 m2
5/7
Paciuksenkaari 6 C 39
3h+k+s
, Kerrostalo
73.5 m2
Kerros 5/7
Paciuksenkaari 6 B 14
3h+k+s
, Kerrostalo
73.5 m2
2/7
Paciuksenkaari 6 B 14
3h+k+s
, Kerrostalo
73.5 m2
Kerros 2/7
Paciuksenkaari 6 C 30
3h+k+s
, Kerrostalo
73.5 m2
2/7
Paciuksenkaari 6 C 30
3h+k+s
, Kerrostalo
73.5 m2
Kerros 2/7
Paciuksenkaari 6 C 33
3h+k+s
, Kerrostalo
73.5 m2
3/7
Paciuksenkaari 6 C 33
3h+k+s
, Kerrostalo
73.5 m2
Kerros 3/7
Paciuksenkaari 6 B 17
3h+k+s
, Kerrostalo
73.5 m2
3/7
Paciuksenkaari 6 B 17
3h+k+s
, Kerrostalo
73.5 m2
Kerros 3/7
Paciuksenkaari 6 B 23
3h+k+s
, Kerrostalo
73.5 m2
5/7
Paciuksenkaari 6 B 23
3h+k+s
, Kerrostalo
73.5 m2
Kerros 5/7
Paciuksenkaari 6 B 20
3h+k+s
, Kerrostalo
73.5 m2
4/7
Paciuksenkaari 6 B 20
3h+k+s
, Kerrostalo
73.5 m2
Kerros 4/7
Paciuksenkaari 6 B 26
3h+k+s
, Kerrostalo
73.5 m2
6/7
Paciuksenkaari 6 B 26
3h+k+s
, Kerrostalo
73.5 m2
Kerros 6/7
Paciuksenkaari 6 A 1
3h+k+s
, Kerrostalo
75.5 m2
1/4
Paciuksenkaari 6 A 1
3h+k+s
, Kerrostalo
75.5 m2
Kerros 1/4
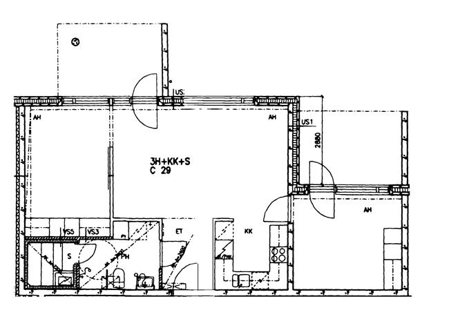
Paciuksenkaari 6 C 29
3h+kk+s
, Kerrostalo
64.5 m2
1/7
Paciuksenkaari 6 C 29
3h+kk+s
, Kerrostalo
64.5 m2
Kerros 1/7
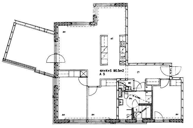
Paciuksenkaari 6 A 13
4h+k+s
, Kerrostalo
90.5 m2
4/4
Paciuksenkaari 6 A 13
4h+k+s
, Kerrostalo
90.5 m2
Kerros 4/4
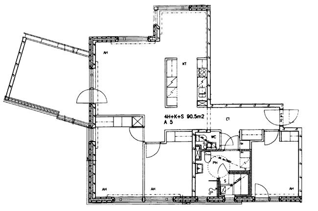
Paciuksenkaari 6 A 5
4h+k+s
, Kerrostalo
90.5 m2
2/4
Paciuksenkaari 6 A 5
4h+k+s
, Kerrostalo
90.5 m2
Kerros 2/4
Paciuksenkaari 6 A 9
4h+k+s
, Kerrostalo
90.5 m2
3/4
Paciuksenkaari 6 A 9
4h+k+s
, Kerrostalo
90.5 m2
Kerros 3/4
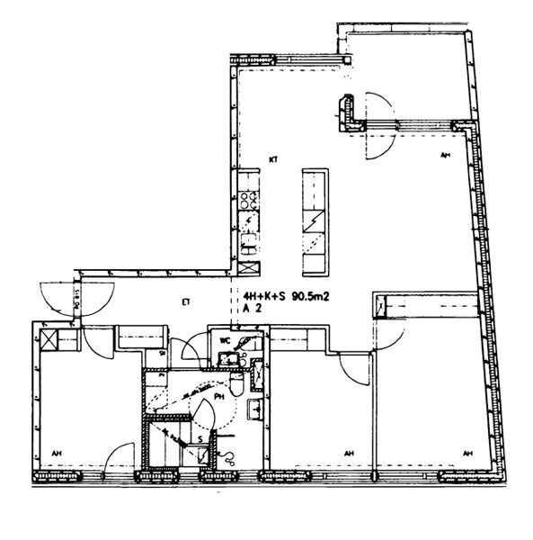
Paciuksenkaari 6 A 2
4h+k+s
, Kerrostalo
90.5 m2
2/4
Paciuksenkaari 6 A 2
4h+k+s
, Kerrostalo
90.5 m2
Kerros 2/4
Paciuksenkaari 6 A 10
4h+k+s
, Kerrostalo
90.5 m2
4/4
Paciuksenkaari 6 A 10
4h+k+s
, Kerrostalo
90.5 m2
Kerros 4/4
Paciuksenkaari 6 A 6
4h+k+s
, Kerrostalo
90.5 m2
3/4
Paciuksenkaari 6 A 6
4h+k+s
, Kerrostalo
90.5 m2
Kerros 3/4
Paciuksenkaari 6 C 42
4h+k+s
, Kerrostalo
105 m2
6-7/7
Paciuksenkaari 6 C 42
4h+k+s
, Kerrostalo
105 m2
Kerros 6-7/7