Kohteen esittely
Miksi Asuntosäätiö?
Me uskomme, että onnellinen koti ja laadukas asuminen kuuluvat kaikille. Emme tavoittele voittoa, vaan käytämme kaikki vastikkeista ja vuokrista saadut tulot toimintamme kehittämiseen. Jo yli 33 000 suomalaista on valinnut Asuntosäätiön tarjoaman kodin. Tiesithän, että myös lemmikit ovat tervetulleita kaikkiin koteihimme!
Rakennuksen tiedot
- Asumismuoto Asokoti
- Keskimääräinen asumisoikeusmaksu / jm² 224,61€
- Hissit 3
- Talosauna 1
- Kuivaushuone Kyllä
- Asuntoja 95
- Asuinrakennuksia 1
- Käyttövastike / kk / jm² 19,06€
- Valmistumisvuosi 1994
- Porrashuoneet 3
- Energialuokka E
- Lämmitysmuoto Kauko
- Autopaikat 62
- Laajakaista DNA Welho
- Antennijärjestelmä Kaapeli
- KaapeliTV DNA
- Kattomateriaali Huopa
- Runkomateriaali Betoni
- Lemmikit Sallittu
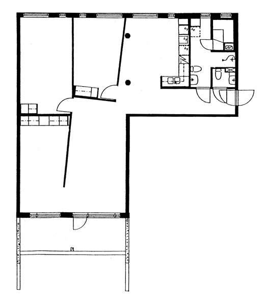
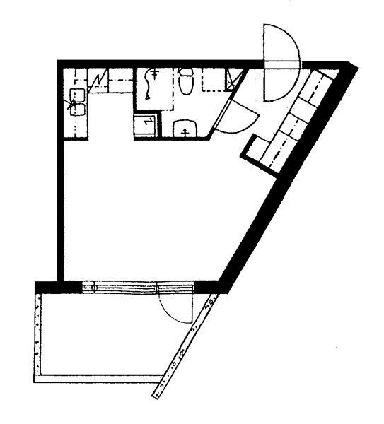
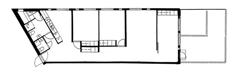
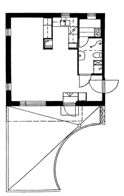
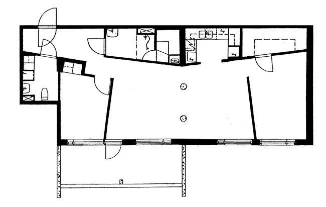
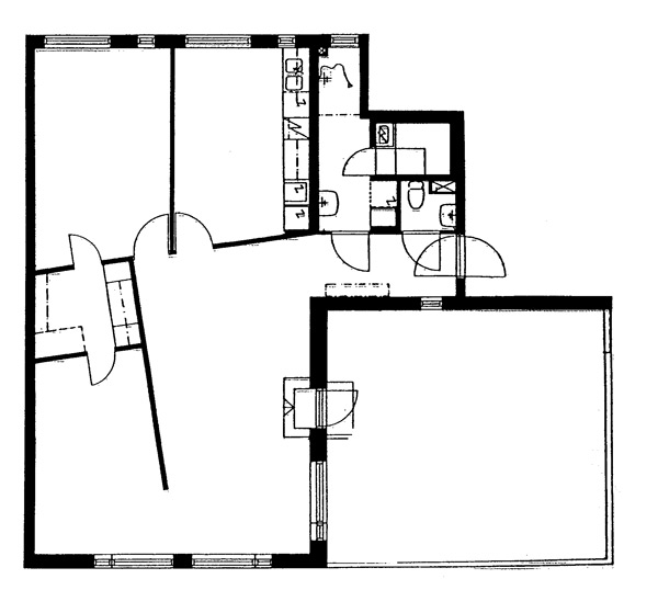
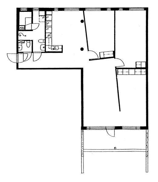
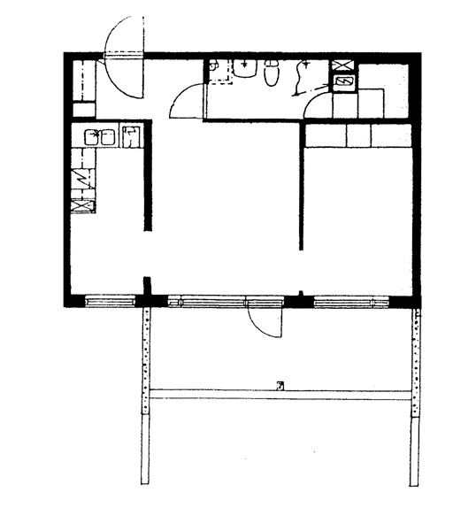
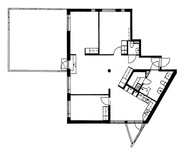
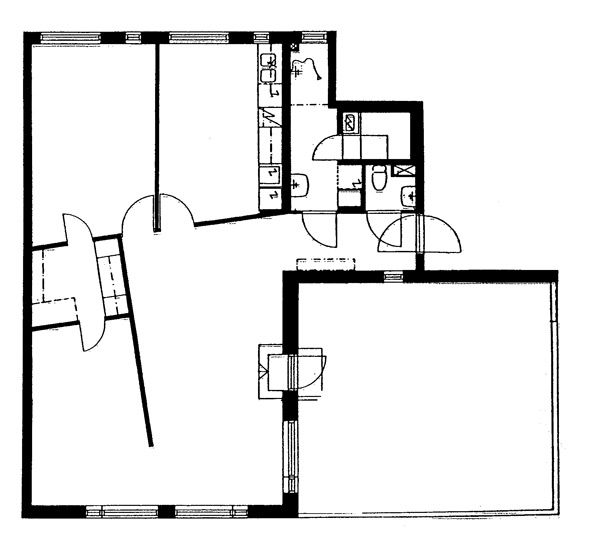
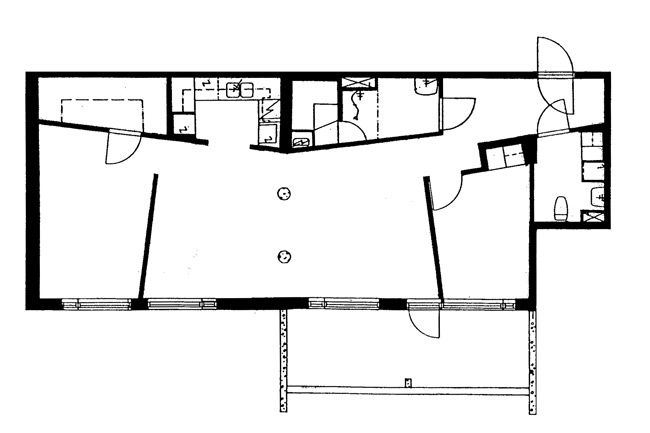
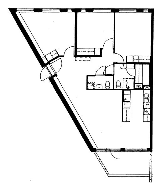
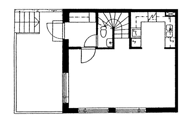
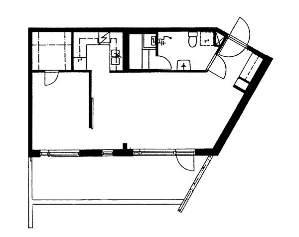
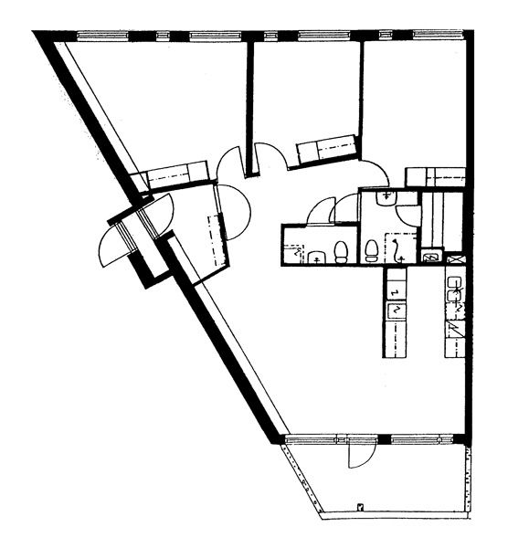
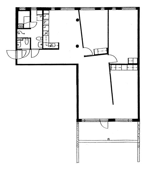
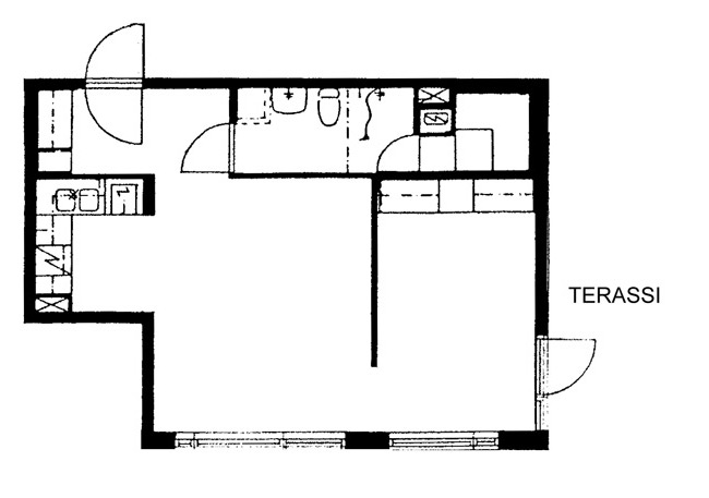
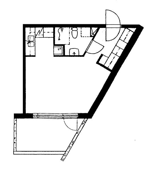
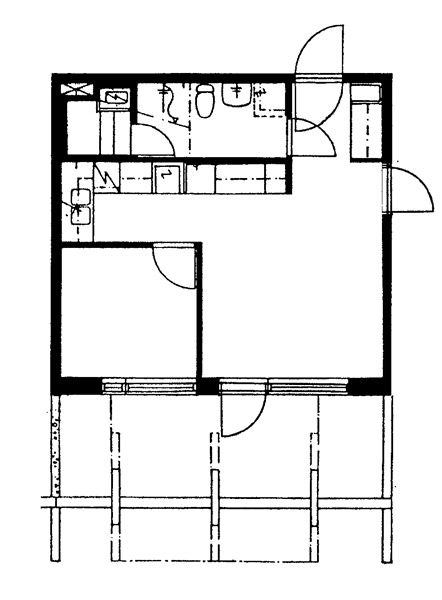
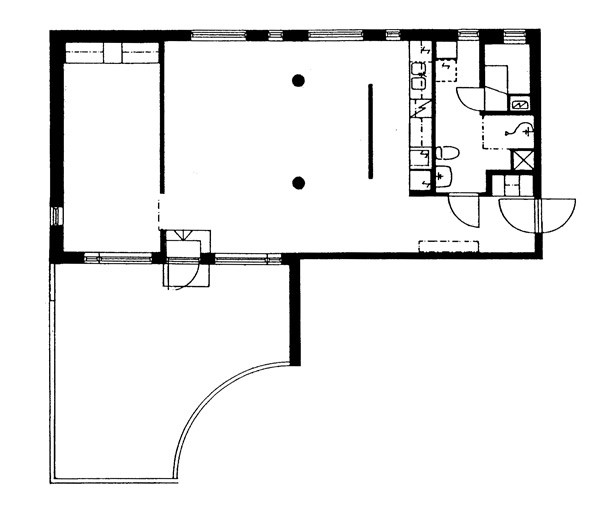
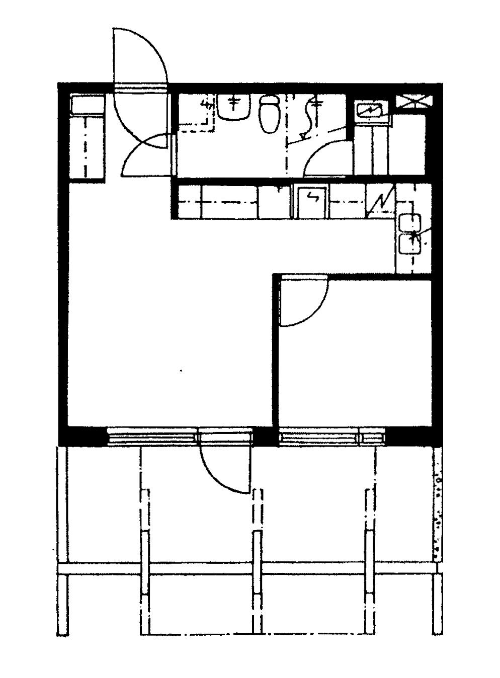
Huoneistot ja pohjakuvat: Punamäenpolku 1, Kerrostalo, Piharakennus
Lisää hakemukselle kaikki haluamasi asuntotyypit. Mahdollisuutesi asunnon saamiseksi paranevat, kun voimme tarjota sinulle kaikkia valitsemasi asuntotyypin asuntoja, jotka mahdollisesti vapautuvat myöhemmin tästä kohteesta. Olet automaattisesti näiden asuntotyyppien hakuprosessissa.
Punamäenpolku 1 E 70
1h+kk
, Kerrostalo
27.5 m2
3/14
Punamäenpolku 1 E 70
1h+kk
, Kerrostalo
27.5 m2
Kerros 3/14
Punamäenpolku 1 B 7
1h+kk
, Kerrostalo
27.5 m2
3/14
Punamäenpolku 1 B 7
1h+kk
, Kerrostalo
27.5 m2
Kerros 3/14
Punamäenpolku 1 B 11
1h+kk
, Kerrostalo
27.5 m2
4/14
Punamäenpolku 1 B 11
1h+kk
, Kerrostalo
27.5 m2
Kerros 4/14
Punamäenpolku 1 B 15
1h+kk
, Kerrostalo
27.5 m2
5/14
Punamäenpolku 1 B 15
1h+kk
, Kerrostalo
27.5 m2
Kerros 5/14
Punamäenpolku 1 E 82
1h+kk
, Kerrostalo
27.5 m2
6/14
Punamäenpolku 1 E 82
1h+kk
, Kerrostalo
27.5 m2
Kerros 6/14
Punamäenpolku 1 E 74
1h+kk
, Kerrostalo
27.5 m2
4/14
Punamäenpolku 1 E 74
1h+kk
, Kerrostalo
27.5 m2
Kerros 4/14
Punamäenpolku 1 B 19
1h+kk
, Kerrostalo
27.5 m2
6/14
Punamäenpolku 1 B 19
1h+kk
, Kerrostalo
27.5 m2
Kerros 6/14
Punamäenpolku 1 E 78
1h+kk
, Kerrostalo
27.5 m2
5/14
Punamäenpolku 1 E 78
1h+kk
, Kerrostalo
27.5 m2
Kerros 5/14
Punamäenpolku 1 D 34
1h+kk
, Kerrostalo
28.5 m2
4/14
Punamäenpolku 1 D 34
1h+kk
, Kerrostalo
28.5 m2
Kerros 4/14
Punamäenpolku 1 D 37
1h+kk
, Kerrostalo
28.5 m2
5/14
Punamäenpolku 1 D 37
1h+kk
, Kerrostalo
28.5 m2
Kerros 5/14
Punamäenpolku 1 D 43
1h+kk
, Kerrostalo
28.5 m2
7/14
Punamäenpolku 1 D 43
1h+kk
, Kerrostalo
28.5 m2
Kerros 7/14
Punamäenpolku 1 D 52
1h+kk
, Kerrostalo
28.5 m2
10/14
Punamäenpolku 1 D 52
1h+kk
, Kerrostalo
28.5 m2
Kerros 10/14
Punamäenpolku 1 D 40
1h+kk
, Kerrostalo
28.5 m2
6/14
Punamäenpolku 1 D 40
1h+kk
, Kerrostalo
28.5 m2
Kerros 6/14
Punamäenpolku 1 D 31
1h+kk
, Kerrostalo
28.5 m2
3/14
Punamäenpolku 1 D 31
1h+kk
, Kerrostalo
28.5 m2
Kerros 3/14
Punamäenpolku 1 D 49
1h+kk
, Kerrostalo
28.5 m2
9/14
Punamäenpolku 1 D 49
1h+kk
, Kerrostalo
28.5 m2
Kerros 9/14
Punamäenpolku 1 D 46
1h+kk
, Kerrostalo
28.5 m2
8/14
Punamäenpolku 1 D 46
1h+kk
, Kerrostalo
28.5 m2
Kerros 8/14
Punamäenpolku 1 B 24
1h+kk+s
, Kerrostalo
35.5 m2
8/14
Punamäenpolku 1 B 24
1h+kk+s
, Kerrostalo
35.5 m2
Kerros 8/14
Punamäenpolku 1 E 90
1h+kk+s
, Kerrostalo
35.5 m2
8/14
Punamäenpolku 1 E 90
1h+kk+s
, Kerrostalo
35.5 m2
Kerros 8/14
Punamäenpolku 1 D 44
2h+k+s
, Kerrostalo
65.5 m2
7/14
Punamäenpolku 1 D 44
2h+k+s
, Kerrostalo
65.5 m2
Kerros 7/14
Punamäenpolku 1 D 53
2h+k+s
, Kerrostalo
65.5 m2
10/14
Punamäenpolku 1 D 53
2h+k+s
, Kerrostalo
65.5 m2
Kerros 10/14
Punamäenpolku 1 D 35
2h+k+s
, Kerrostalo
65.5 m2
4/14
Punamäenpolku 1 D 35
2h+k+s
, Kerrostalo
65.5 m2
Kerros 4/14
Punamäenpolku 1 D 47
2h+k+s
, Kerrostalo
65.5 m2
8/14
Punamäenpolku 1 D 47
2h+k+s
, Kerrostalo
65.5 m2
Kerros 8/14
Punamäenpolku 1 D 38
2h+k+s
, Kerrostalo
65.5 m2
5/14
Punamäenpolku 1 D 38
2h+k+s
, Kerrostalo
65.5 m2
Kerros 5/14
Punamäenpolku 1 D 41
2h+k+s
, Kerrostalo
65.5 m2
6/14
Punamäenpolku 1 D 41
2h+k+s
, Kerrostalo
65.5 m2
Kerros 6/14
Punamäenpolku 1 D 32
2h+k+s
, Kerrostalo
65.5 m2
3/14
Punamäenpolku 1 D 32
2h+k+s
, Kerrostalo
65.5 m2
Kerros 3/14
Punamäenpolku 1 D 50
2h+k+s
, Kerrostalo
65.5 m2
9/14
Punamäenpolku 1 D 50
2h+k+s
, Kerrostalo
65.5 m2
Kerros 9/14
Punamäenpolku 1 C 30
2h+k+s
, Kerrostalo
66.5 m2
3/14
Punamäenpolku 1 C 30
2h+k+s
, Kerrostalo
66.5 m2
Kerros 3/14
Punamäenpolku 1 E 84
2h+k+s
, Kerrostalo
71.5 m2
6/14
Punamäenpolku 1 E 84
2h+k+s
, Kerrostalo
71.5 m2
Kerros 6/14
Punamäenpolku 1 B 17
2h+k+s
, Kerrostalo
71.5 m2
6/14
Punamäenpolku 1 B 17
2h+k+s
, Kerrostalo
71.5 m2
Kerros 6/14
Punamäenpolku 1 D 60
2h+kk
, Kerrostalo
40 m2
12/14
Punamäenpolku 1 D 60
2h+kk
, Kerrostalo
40 m2
Kerros 12/14
Punamäenpolku 1 D 59
2h+kk
, Kerrostalo
42 m2
12/14
Punamäenpolku 1 D 59
2h+kk
, Kerrostalo
42 m2
Kerros 12/14
Punamäenpolku 1 D 65
2h+kk
, Kerrostalo
42 m2
14/14
Punamäenpolku 1 D 65
2h+kk
, Kerrostalo
42 m2
Kerros 14/14
Punamäenpolku 1 E 86
2h+kk+s
, Kerrostalo
35.5 m2
7/14
Punamäenpolku 1 E 86
2h+kk+s
, Kerrostalo
35.5 m2
Kerros 7/14
Punamäenpolku 1 B 22
2h+kk+s
, Kerrostalo
35.5 m2
7/14
Punamäenpolku 1 B 22
2h+kk+s
, Kerrostalo
35.5 m2
Kerros 7/14
Punamäenpolku 1 E 89
2h+kk+s
, Kerrostalo
35.5 m2
8/14
Punamäenpolku 1 E 89
2h+kk+s
, Kerrostalo
35.5 m2
Kerros 8/14
Punamäenpolku 1 B 25
2h+kk+s
, Kerrostalo
35.5 m2
8/14
Punamäenpolku 1 B 25
2h+kk+s
, Kerrostalo
35.5 m2
Kerros 8/14
Punamäenpolku 1 E 92
2h+kk+s
, Kerrostalo
37.5 m2
9/14
Punamäenpolku 1 E 92
2h+kk+s
, Kerrostalo
37.5 m2
Kerros 9/14
Punamäenpolku 1 B 27
2h+kk+s
, Kerrostalo
37.5 m2
9/14
Punamäenpolku 1 B 27
2h+kk+s
, Kerrostalo
37.5 m2
Kerros 9/14
Punamäenpolku 1 B 18
2h+kk+s
, Kerrostalo
42 m2
6/14
Punamäenpolku 1 B 18
2h+kk+s
, Kerrostalo
42 m2
Kerros 6/14
Punamäenpolku 1 E 71
2h+kk+s
, Kerrostalo
42 m2
3/14
Punamäenpolku 1 E 71
2h+kk+s
, Kerrostalo
42 m2
Kerros 3/14
Punamäenpolku 1 E 79
2h+kk+s
, Kerrostalo
42 m2
5/14
Punamäenpolku 1 E 79
2h+kk+s
, Kerrostalo
42 m2
Kerros 5/14
Punamäenpolku 1 B 6
2h+kk+s
, Kerrostalo
42 m2
3/14
Punamäenpolku 1 B 6
2h+kk+s
, Kerrostalo
42 m2
Kerros 3/14
Punamäenpolku 1 E 83
2h+kk+s
, Kerrostalo
42 m2
Kerros 6/14
Punamäenpolku 1 B 14
2h+kk+s
, Kerrostalo
42 m2
5/14
Punamäenpolku 1 B 14
2h+kk+s
, Kerrostalo
42 m2
Kerros 5/14
Punamäenpolku 1 E 67
2h+kk+s
, Kerrostalo
45.5 m2
2/14
Punamäenpolku 1 E 67
2h+kk+s
, Kerrostalo
45.5 m2
Kerros 2/14
Punamäenpolku 1 B 4
2h+kk+s
, Kerrostalo
45.5 m2
2/14
Punamäenpolku 1 B 4
2h+kk+s
, Kerrostalo
45.5 m2
Kerros 2/14
Punamäenpolku 1 D 56
2h+kk+s
, Kerrostalo
53 m2
11/14
Punamäenpolku 1 D 56
2h+kk+s
, Kerrostalo
53 m2
Kerros 11/14
Punamäenpolku 1 A 1
3h+k+s
, Kerrostalo
67 m2
2-3/14
Punamäenpolku 1 A 1
3h+k+s
, Kerrostalo
67 m2
Kerros 2-3/14
Punamäenpolku 1 A 2
3h+k+s
, Kerrostalo
67 m2
2-3/14
Punamäenpolku 1 A 2
3h+k+s
, Kerrostalo
67 m2
Kerros 2-3/14
Punamäenpolku 1 F 94
3h+k+s
, Kerrostalo
67.5 m2
2-3/14
Punamäenpolku 1 F 94
3h+k+s
, Kerrostalo
67.5 m2
Kerros 2-3/14
Punamäenpolku 1 E 87
3h+k+s
, Kerrostalo
72 m2
7/14
Punamäenpolku 1 E 87
3h+k+s
, Kerrostalo
72 m2
Kerros 7/14
Punamäenpolku 1 B 21
3h+k+s
, Kerrostalo
72 m2
7/14
Punamäenpolku 1 B 21
3h+k+s
, Kerrostalo
72 m2
Kerros 7/14
Punamäenpolku 1 D 55
3h+k+s
, Kerrostalo
75 m2
Kerros 11/14
Punamäenpolku 1 B 10
3h+k+s
, Kerrostalo
78 m2
4/14
Punamäenpolku 1 B 10
3h+k+s
, Kerrostalo
78 m2
Kerros 4/14
Punamäenpolku 1 E 75
3h+k+s
, Kerrostalo
78 m2
4/14
Punamäenpolku 1 E 75
3h+k+s
, Kerrostalo
78 m2
Kerros 4/14
Punamäenpolku 1 F 95
3h+k+s
, Kerrostalo
81 m2
2-3/14
Punamäenpolku 1 F 95
3h+k+s
, Kerrostalo
81 m2
Kerros 2-3/14
Punamäenpolku 1 D 64
3h+k+s
, Kerrostalo
85.5 m2
14-15/14
Punamäenpolku 1 D 64
3h+k+s
, Kerrostalo
85.5 m2
Kerros 14-15/14
Punamäenpolku 1 E 93
3h+k+s
, Kerrostalo
86 m2
10/14
Punamäenpolku 1 E 93
3h+k+s
, Kerrostalo
86 m2
Kerros 10/14
Punamäenpolku 1 B 20
3h+k+s
, Kerrostalo
86 m2
6/14
Punamäenpolku 1 B 20
3h+k+s
, Kerrostalo
86 m2
Kerros 6/14
Punamäenpolku 1 B 12
3h+k+s
, Kerrostalo
86 m2
4/14
Punamäenpolku 1 B 12
3h+k+s
, Kerrostalo
86 m2
Kerros 4/14
Punamäenpolku 1 E 81
3h+k+s
, Kerrostalo
86 m2
6/14
Punamäenpolku 1 E 81
3h+k+s
, Kerrostalo
86 m2
Kerros 6/14
Punamäenpolku 1 E 85
3h+k+s
, Kerrostalo
86 m2
7/14
Punamäenpolku 1 E 85
3h+k+s
, Kerrostalo
86 m2
Kerros 7/14
Punamäenpolku 1 B 28
3h+k+s
, Kerrostalo
86 m2
9/14
Punamäenpolku 1 B 28
3h+k+s
, Kerrostalo
86 m2
Kerros 9/14
Punamäenpolku 1 B 29
3h+k+s
, Kerrostalo
86 m2
10/14
Punamäenpolku 1 B 29
3h+k+s
, Kerrostalo
86 m2
Kerros 10/14
Punamäenpolku 1 B 16
3h+k+s
, Kerrostalo
86 m2
5/14
Punamäenpolku 1 B 16
3h+k+s
, Kerrostalo
86 m2
Kerros 5/14
Punamäenpolku 1 E 91
3h+k+s
, Kerrostalo
86 m2
9/14
Punamäenpolku 1 E 91
3h+k+s
, Kerrostalo
86 m2
Kerros 9/14
Punamäenpolku 1 B 26
3h+k+s
, Kerrostalo
86 m2
8/14
Punamäenpolku 1 B 26
3h+k+s
, Kerrostalo
86 m2
Kerros 8/14
Punamäenpolku 1 E 88
3h+k+s
, Kerrostalo
86 m2
8/14
Punamäenpolku 1 E 88
3h+k+s
, Kerrostalo
86 m2
Kerros 8/14
Punamäenpolku 1 E 73
3h+k+s
, Kerrostalo
86 m2
4/14
Punamäenpolku 1 E 73
3h+k+s
, Kerrostalo
86 m2
Kerros 4/14
Punamäenpolku 1 E 77
3h+k+s
, Kerrostalo
86 m2
5/14
Punamäenpolku 1 E 77
3h+k+s
, Kerrostalo
86 m2
Kerros 5/14
Punamäenpolku 1 B 23
3h+k+s
, Kerrostalo
86 m2
7/14
Punamäenpolku 1 B 23
3h+k+s
, Kerrostalo
86 m2
Kerros 7/14
Punamäenpolku 1 B 8
3h+k+s
, Kerrostalo
86 m2
3/14
Punamäenpolku 1 B 8
3h+k+s
, Kerrostalo
86 m2
Kerros 3/14
Punamäenpolku 1 E 69
3h+k+s
, Kerrostalo
86 m2
3/14
Punamäenpolku 1 E 69
3h+k+s
, Kerrostalo
86 m2
Kerros 3/14
Punamäenpolku 1 D 61
3h+k+s
, Kerrostalo
90 m2
12/14
Punamäenpolku 1 D 61
3h+k+s
, Kerrostalo
90 m2
Kerros 12/14
Punamäenpolku 1 E 76
3h+k+s
, Kerrostalo
107 m2
Kerros 4/14
Punamäenpolku 1 D 33
3h+tk+s
, Kerrostalo
74 m2
Kerros 4/14
Punamäenpolku 1 D 36
3h+tk+s
, Kerrostalo
81.5 m2
5/14
Punamäenpolku 1 D 36
3h+tk+s
, Kerrostalo
81.5 m2
Kerros 5/14
Punamäenpolku 1 E 68
4h+k
, Kerrostalo
108.5 m2
2/14
Punamäenpolku 1 E 68
4h+k
, Kerrostalo
108.5 m2
Kerros 2/14
Punamäenpolku 1 D 39
4h+k+s
, Kerrostalo
89 m2
6/14
Punamäenpolku 1 D 39
4h+k+s
, Kerrostalo
89 m2
Kerros 6/14
Punamäenpolku 1 D 42
4h+k+s
, Kerrostalo
94.5 m2
7/14
Punamäenpolku 1 D 42
4h+k+s
, Kerrostalo
94.5 m2
Kerros 7/14
Punamäenpolku 1 D 63
4h+k+s
, Kerrostalo
96.5 m2
13/14
Punamäenpolku 1 D 63
4h+k+s
, Kerrostalo
96.5 m2
Kerros 13/14
Punamäenpolku 1 D 45
4h+k+s
, Kerrostalo
104 m2
8/14
Punamäenpolku 1 D 45
4h+k+s
, Kerrostalo
104 m2
Kerros 8/14
Punamäenpolku 1 D 58
4h+k+s
, Kerrostalo
106 m2
Kerros 12/14
Punamäenpolku 1 D 54
4h+k+s
, Kerrostalo
106 m2
11/14
Punamäenpolku 1 D 54
4h+k+s
, Kerrostalo
106 m2
Kerros 11/14
Punamäenpolku 1 E 72
4h+k+s
, Kerrostalo
108.5 m2
3/14
Punamäenpolku 1 E 72
4h+k+s
, Kerrostalo
108.5 m2
Kerros 3/14
Punamäenpolku 1 B 13
4h+k+s
, Kerrostalo
108.5 m2
5/14
Punamäenpolku 1 B 13
4h+k+s
, Kerrostalo
108.5 m2
Kerros 5/14
Punamäenpolku 1 B 3
4h+k+s
, Kerrostalo
108.5 m2
2/14
Punamäenpolku 1 B 3
4h+k+s
, Kerrostalo
108.5 m2
Kerros 2/14
Punamäenpolku 1 B 5
4h+k+s
, Kerrostalo
108.5 m2
3/14
Punamäenpolku 1 B 5
4h+k+s
, Kerrostalo
108.5 m2
Kerros 3/14
Punamäenpolku 1 E 80
4h+k+s
, Kerrostalo
108.5 m2
5/14
Punamäenpolku 1 E 80
4h+k+s
, Kerrostalo
108.5 m2
Kerros 5/14
Punamäenpolku 1 D 62
4h+k+s
, Kerrostalo
112 m2
13/14
Punamäenpolku 1 D 62
4h+k+s
, Kerrostalo
112 m2
Kerros 13/14
Punamäenpolku 1 D 66
4h+k+s
, Kerrostalo
113 m2
Kerros 14-15/14
Punamäenpolku 1 D 57
5h+k+s
, Kerrostalo
111 m2
11/14
Punamäenpolku 1 D 57
5h+k+s
, Kerrostalo
111 m2
Kerros 11/14
Punamäenpolku 1 D 51
5h+k+s
, Kerrostalo
112 m2
10/14
Punamäenpolku 1 D 51
5h+k+s
, Kerrostalo
112 m2
Kerros 10/14
Punamäenpolku 1 D 48
5h+k+s
, Kerrostalo
112 m2
9/14
Punamäenpolku 1 D 48
5h+k+s
, Kerrostalo
112 m2
Kerros 9/14


