Kohteen esittely
Klaavuntien asumisoikeuskodit muodostavat suojaisan asuinkorttelin naapuritontin talon kanssa. Asuntosäätiön 45 kotia tarjoavat mukavaa asumista hyvin suunnitelluissa yksiöissä, kaksioissa tai kolmioissa. Kohde on savuton.
Helsingin vanhimpiin lähiöihin lukeutuva Puotila on noussut nopeasti yhdeksi suosituimmista asuinalueista itäisessä Helsingissä. Vartiokylänlahden rannalla sijaitseva Puotila henkii kodikasta 1960-luvun tunnelmaa.
Rakennustaiteellisesti arvokkaaksi luokiteltu alue on myös Helsingin seudun merkittävimpiä luontokohteita. Vartiokylänlahden ympäristössä mutkitteleva luonto- ja kulttuuripolku, uimaranta, venesatama ja viljelypalstat kutsuvat nauttimaan merellisestä luonnosta kaikkina vuodenaikoina. Puotilan kaunis kartanoravintola puistoineen tarjoaa tunnelmallisen levähdyspaikan keskellä kaupunkia.
Miksi Asuntosäätiö?
Me uskomme, että onnellinen koti ja laadukas asuminen kuuluvat kaikille. Emme tavoittele voittoa, vaan käytämme kaikki vastikkeista ja vuokrista saadut tulot toimintamme kehittämiseen. Jo yli 33 000 suomalaista on valinnut Asuntosäätiön tarjoaman kodin. Tiesithän, että myös lemmikit ovat tervetulleita kaikkiin koteihimme!
Rakennuksen tiedot
- Asumismuoto Asokoti
- Keskimääräinen asumisoikeusmaksu / jm² 616,67€
- Hissit 1
- Talosauna 1
- Pyykkitupa Kyllä
- Kuivaushuone Kyllä
- Asuntoja 45
- Asuinrakennuksia 1
- Käyttövastike / kk / jm² 16,85€
- Valmistumisvuosi 2024
- Porrashuoneet 1
- Energialuokka B2018
- Lämmitysmuoto Kauko
- Autopaikat 20
- Kerhohuone 1
- Laajakaista DNA Netti
- Antennijärjestelmä Kaapeli
- KaapeliTV DNA
- Kattomateriaali Huopa
- Runkomateriaali Betoni
- Lemmikit Sallittu
Huoneistot ja pohjakuvat: Klaavuntie 13, Kerrostalo
Lisää hakemukselle kaikki haluamasi asuntotyypit. Mahdollisuutesi asunnon saamiseksi paranevat, kun voimme tarjota sinulle kaikkia valitsemasi asuntotyypin asuntoja, jotka mahdollisesti vapautuvat myöhemmin tästä kohteesta. Olet automaattisesti näiden asuntotyyppien hakuprosessissa.
Klaavuntie 13 A 26
1h+kt
, Kerrostalo
32.5 m2
5/6
Klaavuntie 13 A 26
1h+kt
, Kerrostalo
32.5 m2
Kerros 5/6
Klaavuntie 13 A 1
1h+kt
, Kerrostalo
32.5 m2
2/6
Klaavuntie 13 A 1
1h+kt
, Kerrostalo
32.5 m2
Kerros 2/6
Klaavuntie 13 A 36
1h+kt
, Kerrostalo
32.5 m2
6/6
Klaavuntie 13 A 36
1h+kt
, Kerrostalo
32.5 m2
Kerros 6/6
Klaavuntie 13 A 6
1h+kt
, Kerrostalo
32.5 m2
3/6
Klaavuntie 13 A 6
1h+kt
, Kerrostalo
32.5 m2
Kerros 3/6
Klaavuntie 13 A 16
1h+kt
, Kerrostalo
32.5 m2
4/6
Klaavuntie 13 A 16
1h+kt
, Kerrostalo
32.5 m2
Kerros 4/6
Klaavuntie 13 A 3
1h+kt
, Kerrostalo
37 m2
2/6
Klaavuntie 13 A 3
1h+kt
, Kerrostalo
37 m2
Kerros 2/6
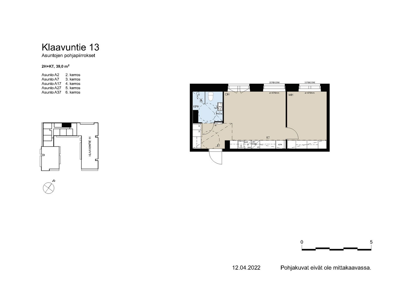
Klaavuntie 13 A 37
2h+kt
, Kerrostalo
39 m2
6/6
Klaavuntie 13 A 37
2h+kt
, Kerrostalo
39 m2
Kerros 6/6
Klaavuntie 13 A 7
2h+kt
, Kerrostalo
39 m2
3/6
Klaavuntie 13 A 7
2h+kt
, Kerrostalo
39 m2
Kerros 3/6
Klaavuntie 13 A 17
2h+kt
, Kerrostalo
39 m2
4/6
Klaavuntie 13 A 17
2h+kt
, Kerrostalo
39 m2
Kerros 4/6
Klaavuntie 13 A 2
2h+kt
, Kerrostalo
39 m2
2/6
Klaavuntie 13 A 2
2h+kt
, Kerrostalo
39 m2
Kerros 2/6
Klaavuntie 13 A 27
2h+kt
, Kerrostalo
39 m2
5/6
Klaavuntie 13 A 27
2h+kt
, Kerrostalo
39 m2
Kerros 5/6
Klaavuntie 13 A 9
2h+kt
, Kerrostalo
44 m2
3/6
Klaavuntie 13 A 9
2h+kt
, Kerrostalo
44 m2
Kerros 3/6
Klaavuntie 13 A 19
2h+kt
, Kerrostalo
44 m2
4/6
Klaavuntie 13 A 19
2h+kt
, Kerrostalo
44 m2
Kerros 4/6
Klaavuntie 13 A 29
2h+kt
, Kerrostalo
44 m2
5/6
Klaavuntie 13 A 29
2h+kt
, Kerrostalo
44 m2
Kerros 5/6
Klaavuntie 13 A 39
2h+kt
, Kerrostalo
44 m2
6/6
Klaavuntie 13 A 39
2h+kt
, Kerrostalo
44 m2
Kerros 6/6
Klaavuntie 13 A 40
2h+kt
, Kerrostalo
44.5 m2
6/6
Klaavuntie 13 A 40
2h+kt
, Kerrostalo
44.5 m2
Kerros 6/6
Klaavuntie 13 A 30
2h+kt
, Kerrostalo
44.5 m2
5/6
Klaavuntie 13 A 30
2h+kt
, Kerrostalo
44.5 m2
Kerros 5/6
Klaavuntie 13 A 10
2h+kt
, Kerrostalo
44.5 m2
3/6
Klaavuntie 13 A 10
2h+kt
, Kerrostalo
44.5 m2
Kerros 3/6
Klaavuntie 13 A 11
2h+kt
, Kerrostalo
44.5 m2
3/6
Klaavuntie 13 A 11
2h+kt
, Kerrostalo
44.5 m2
Kerros 3/6
Klaavuntie 13 A 31
2h+kt
, Kerrostalo
44.5 m2
5/6
Klaavuntie 13 A 31
2h+kt
, Kerrostalo
44.5 m2
Kerros 5/6
Klaavuntie 13 A 20
2h+kt
, Kerrostalo
44.5 m2
4/6
Klaavuntie 13 A 20
2h+kt
, Kerrostalo
44.5 m2
Kerros 4/6
Klaavuntie 13 A 41
2h+kt
, Kerrostalo
44.5 m2
6/6
Klaavuntie 13 A 41
2h+kt
, Kerrostalo
44.5 m2
Kerros 6/6
Klaavuntie 13 A 21
2h+kt
, Kerrostalo
44.5 m2
4/6
Klaavuntie 13 A 21
2h+kt
, Kerrostalo
44.5 m2
Kerros 4/6
Klaavuntie 13 A 13
2h+kt
, Kerrostalo
51 m2
3/6
Klaavuntie 13 A 13
2h+kt
, Kerrostalo
51 m2
Kerros 3/6
Klaavuntie 13 A 43
2h+kt
, Kerrostalo
51 m2
6/6
Klaavuntie 13 A 43
2h+kt
, Kerrostalo
51 m2
Kerros 6/6
Klaavuntie 13 A 23
2h+kt
, Kerrostalo
51 m2
4/6
Klaavuntie 13 A 23
2h+kt
, Kerrostalo
51 m2
Kerros 4/6
Klaavuntie 13 A 33
2h+kt
, Kerrostalo
51 m2
5/6
Klaavuntie 13 A 33
2h+kt
, Kerrostalo
51 m2
Kerros 5/6
Klaavuntie 13 A 24
2h+kt
, Kerrostalo
53.5 m2
4/6
Klaavuntie 13 A 24
2h+kt
, Kerrostalo
53.5 m2
Kerros 4/6
Klaavuntie 13 A 14
2h+kt
, Kerrostalo
53.5 m2
3/6
Klaavuntie 13 A 14
2h+kt
, Kerrostalo
53.5 m2
Kerros 3/6
Klaavuntie 13 A 44
2h+kt
, Kerrostalo
53.5 m2
6/6
Klaavuntie 13 A 44
2h+kt
, Kerrostalo
53.5 m2
Kerros 6/6
Klaavuntie 13 A 4
2h+kt
, Kerrostalo
53.5 m2
2/6
Klaavuntie 13 A 4
2h+kt
, Kerrostalo
53.5 m2
Kerros 2/6
Klaavuntie 13 A 34
2h+kt
, Kerrostalo
53.5 m2
5/6
Klaavuntie 13 A 34
2h+kt
, Kerrostalo
53.5 m2
Kerros 5/6
Klaavuntie 13 A 45
2h+kt+s
, Kerrostalo
51.5 m2
6/6
Klaavuntie 13 A 45
2h+kt+s
, Kerrostalo
51.5 m2
Kerros 6/6
Klaavuntie 13 A 5
2h+kt+s
, Kerrostalo
51.5 m2
2/6
Klaavuntie 13 A 5
2h+kt+s
, Kerrostalo
51.5 m2
Kerros 2/6
Klaavuntie 13 A 25
2h+kt+s
, Kerrostalo
51.5 m2
4/6
Klaavuntie 13 A 25
2h+kt+s
, Kerrostalo
51.5 m2
Kerros 4/6
Klaavuntie 13 A 15
2h+kt+s
, Kerrostalo
51.5 m2
3/6
Klaavuntie 13 A 15
2h+kt+s
, Kerrostalo
51.5 m2
Kerros 3/6
Klaavuntie 13 A 35
2h+kt+s
, Kerrostalo
51.5 m2
5/6
Klaavuntie 13 A 35
2h+kt+s
, Kerrostalo
51.5 m2
Kerros 5/6
Klaavuntie 13 A 28
3h+kt
, Kerrostalo
65 m2
5/6
Klaavuntie 13 A 28
3h+kt
, Kerrostalo
65 m2
Kerros 5/6
Klaavuntie 13 A 18
3h+kt
, Kerrostalo
65 m2
4/6
Klaavuntie 13 A 18
3h+kt
, Kerrostalo
65 m2
Kerros 4/6
Klaavuntie 13 A 38
3h+kt
, Kerrostalo
65 m2
6/6
Klaavuntie 13 A 38
3h+kt
, Kerrostalo
65 m2
Kerros 6/6
Klaavuntie 13 A 12
3h+kt+s
, Kerrostalo
69.5 m2
3/6
Klaavuntie 13 A 12
3h+kt+s
, Kerrostalo
69.5 m2
Kerros 3/6
Klaavuntie 13 A 22
3h+kt+s
, Kerrostalo
69.5 m2
4/6
Klaavuntie 13 A 22
3h+kt+s
, Kerrostalo
69.5 m2
Kerros 4/6
Klaavuntie 13 A 32
3h+kt+s
, Kerrostalo
69.5 m2
5/6
Klaavuntie 13 A 32
3h+kt+s
, Kerrostalo
69.5 m2
Kerros 5/6
Klaavuntie 13 A 42
3h+kt+s
, Kerrostalo
69.5 m2
6/6
Klaavuntie 13 A 42
3h+kt+s
, Kerrostalo
69.5 m2
Kerros 6/6
