Kohteen esittely
Viihtyisä kohde rauhallisella alueella päättyvän tien päässä, ei läpiajoa. Jokaiselle asunnolle saatavissa autopaikka. Aktiivinen asukastoimikunta. Kohteessa on maalämpö ja omatoimiviherhoito.
Kävelymatka Heurekalle, Keravanjoen rannoille ja Tikkurilan rautatieasemalle. Tikkurilan keskustan palvelut lähellä.
Miksi Asuntosäätiö?
Me uskomme, että onnellinen koti ja laadukas asuminen kuuluvat kaikille. Emme tavoittele voittoa, vaan käytämme kaikki vastikkeista ja vuokrista saadut tulot toimintamme kehittämiseen. Jo yli 33 000 suomalaista on valinnut Asuntosäätiön tarjoaman kodin. Tiesithän, että myös lemmikit ovat tervetulleita kaikkiin koteihimme!
Rakennuksen tiedot
- Asumismuoto Asokoti
- Keskimääräinen asumisoikeusmaksu / jm² 183,91€
- Hissit Ei
- Talosauna Ei
- Asuntoja 25
- Asuinrakennuksia 7
- Käyttövastike / kk / jm² 15,13€
- Valmistumisvuosi 1994
- Energialuokka C
- Lämmitysmuoto Maalämpö
- Autopaikat 25
- Laajakaista DNA Netti
- Antennijärjestelmä Kaapeli
- KaapeliTV DNA
- Kattomateriaali Pelti
- Runkomateriaali Betoni
- Lemmikit Sallittu
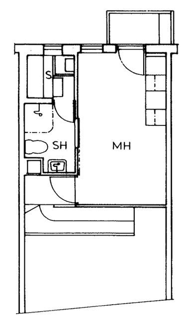
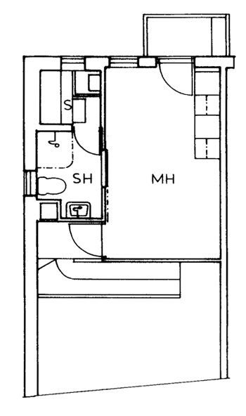
Huoneistot ja pohjakuvat: Iestie 1-2, Piharakennus, Luhtikäytävätalo, Paritalo, Rivitalo
Lisää hakemukselle kaikki haluamasi asuntotyypit. Mahdollisuutesi asunnon saamiseksi paranevat, kun voimme tarjota sinulle kaikkia valitsemasi asuntotyypin asuntoja, jotka mahdollisesti vapautuvat myöhemmin tästä kohteesta. Olet automaattisesti näiden asuntotyyppien hakuprosessissa.
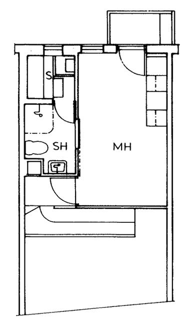
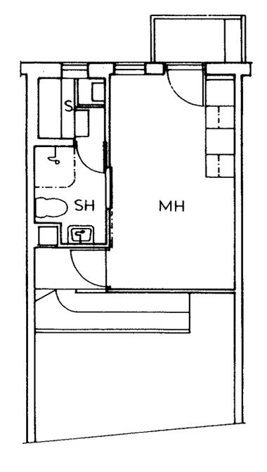
Iestie 2 C 9
2h+k+s
, Rivitalo
63.5 m2
1-2/2
Iestie 2 C 9
2h+k+s
, Rivitalo
63.5 m2
Kerros 1-2/2
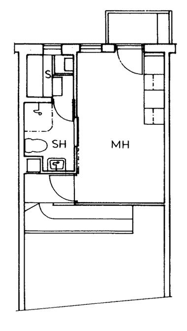
Iestie 2 C 8
2h+k+s
, Rivitalo
63.5 m2
1-2/2
Iestie 2 C 8
2h+k+s
, Rivitalo
63.5 m2
Kerros 1-2/2
Iestie 2 C 7
2h+k+s
, Rivitalo
63.5 m2
1-2/2
Iestie 2 C 7
2h+k+s
, Rivitalo
63.5 m2
Kerros 1-2/2
Iestie 2 D 11
2h+k+s
, Rivitalo
63.5 m2
1-2/2
Iestie 2 D 11
2h+k+s
, Rivitalo
63.5 m2
Kerros 1-2/2
Iestie 2 D 13
2h+k+s
, Rivitalo
63.5 m2
1-2/2
Iestie 2 D 13
2h+k+s
, Rivitalo
63.5 m2
Kerros 1-2/2
Iestie 2 D 12
2h+k+s
, Rivitalo
63.5 m2
1-2/2
Iestie 2 D 12
2h+k+s
, Rivitalo
63.5 m2
Kerros 1-2/2
Iestie 2 E 17
2h+k+s
, Rivitalo
63.5 m2
1-2/2
Iestie 2 E 17
2h+k+s
, Rivitalo
63.5 m2
Kerros 1-2/2
Iestie 2 E 15
2h+k+s
, Rivitalo
63.5 m2
1-2/2
Iestie 2 E 15
2h+k+s
, Rivitalo
63.5 m2
Kerros 1-2/2
Iestie 2 E 16
2h+k+s
, Rivitalo
63.5 m2
1-2/2
Iestie 2 E 16
2h+k+s
, Rivitalo
63.5 m2
Kerros 1-2/2
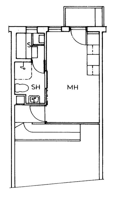
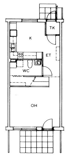
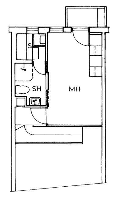
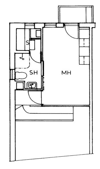
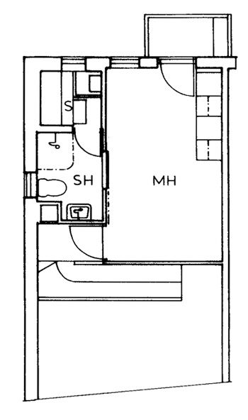
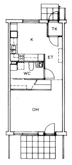
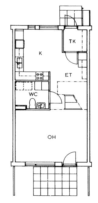
Iestie 2 F 20
2h+kk+s
, Luhtikäytävätalo
50.5 m2
1/2
Iestie 2 F 20
2h+kk+s
, Luhtikäytävätalo
50.5 m2
Kerros 1/2
Iestie 2 F 18
2h+kk+s
, Luhtikäytävätalo
50.5 m2
1/2
Iestie 2 F 18
2h+kk+s
, Luhtikäytävätalo
50.5 m2
Kerros 1/2
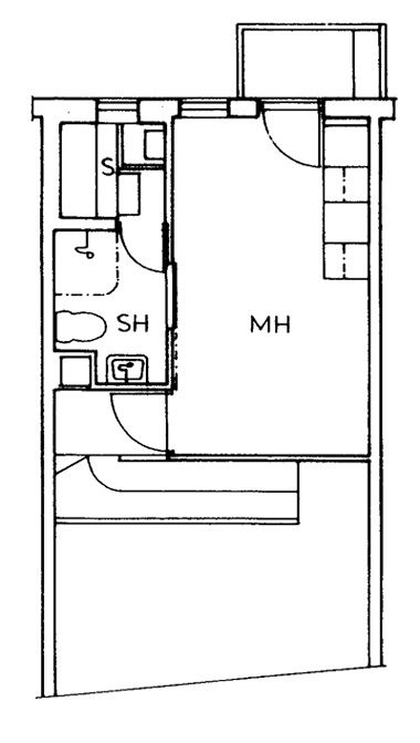
Iestie 2 F 19
2h+kk+s
, Luhtikäytävätalo
50.5 m2
2/2
Iestie 2 F 19
2h+kk+s
, Luhtikäytävätalo
50.5 m2
Kerros 2/2
Iestie 2 F 21
2h+kk+s
, Luhtikäytävätalo
50.5 m2
Kerros 2/2
Iestie 2 G 23
2h+kk+s
, Luhtikäytävätalo
50.5 m2
2/2
Iestie 2 G 23
2h+kk+s
, Luhtikäytävätalo
50.5 m2
Kerros 2/2
Iestie 2 G 25
2h+kk+s
, Luhtikäytävätalo
50.5 m2
2/2
Iestie 2 G 25
2h+kk+s
, Luhtikäytävätalo
50.5 m2
Kerros 2/2
Iestie 2 G 22
2h+kk+s
, Luhtikäytävätalo
50.5 m2
1/2
Iestie 2 G 22
2h+kk+s
, Luhtikäytävätalo
50.5 m2
Kerros 1/2
Iestie 2 G 24
2h+kk+s
, Luhtikäytävätalo
50.5 m2
1/2
Iestie 2 G 24
2h+kk+s
, Luhtikäytävätalo
50.5 m2
Kerros 1/2
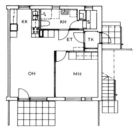
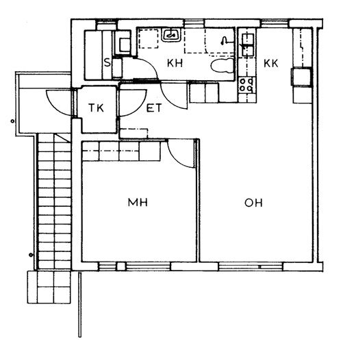
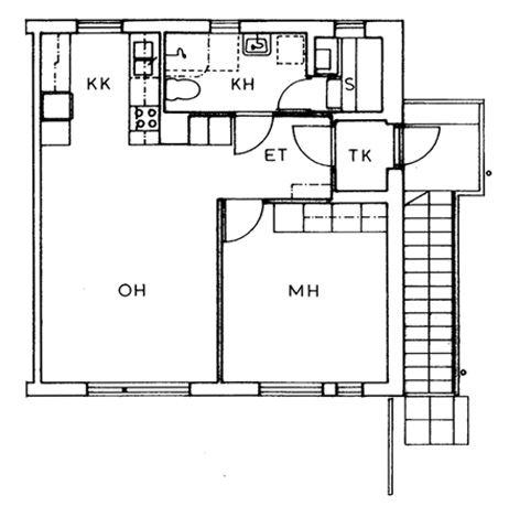
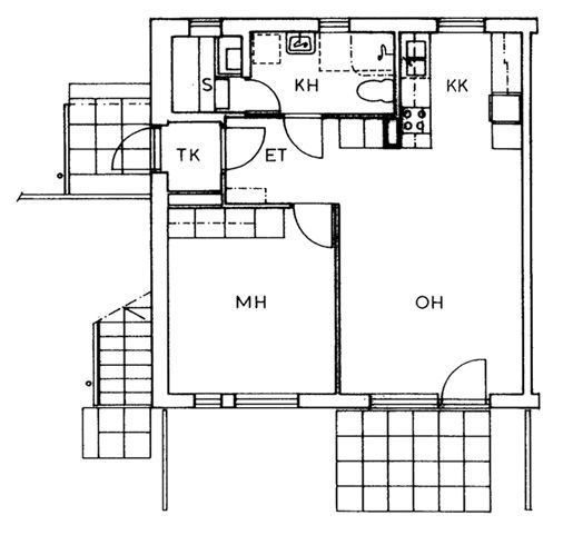
Iestie 1 A 1
3h+k+s
, Paritalo
79 m2
1-2/2
Iestie 1 A 1
3h+k+s
, Paritalo
79 m2
Kerros 1-2/2
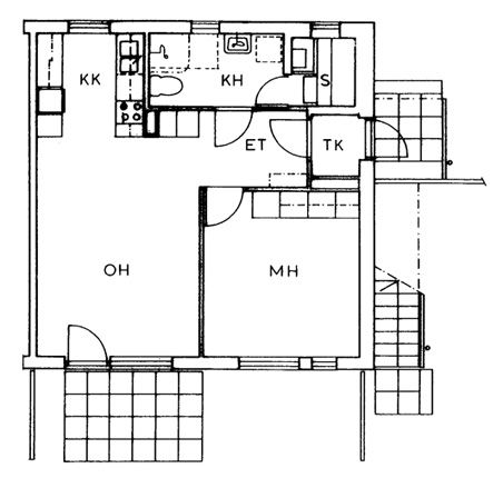
Iestie 1 A 2
3h+k+s
, Paritalo
79 m2
1-2/2
Iestie 1 A 2
3h+k+s
, Paritalo
79 m2
Kerros 1-2/2
Iestie 1 B 3
3h+k+s
, Rivitalo
79 m2
1-2/2
Iestie 1 B 3
3h+k+s
, Rivitalo
79 m2
Kerros 1-2/2
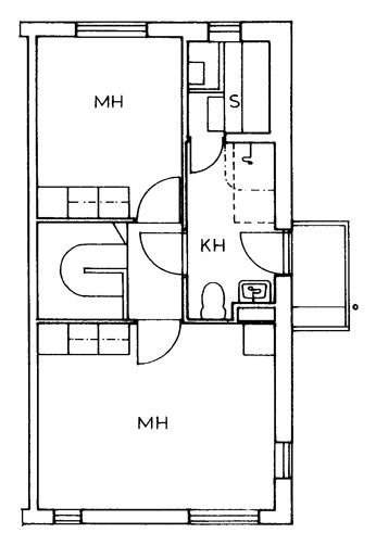
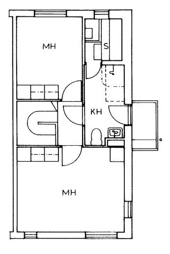
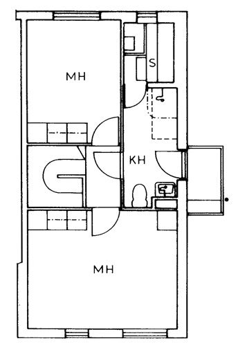
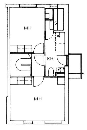
Iestie 2 C 6
3h+k+s
, Rivitalo
80.5 m2
1-2/2
Iestie 2 C 6
3h+k+s
, Rivitalo
80.5 m2
Kerros 1-2/2
Iestie 2 D 10
3h+k+s
, Rivitalo
80.5 m2
1-2/2
Iestie 2 D 10
3h+k+s
, Rivitalo
80.5 m2
Kerros 1-2/2
Iestie 2 E 14
3h+k+s
, Rivitalo
80.5 m2
1-2/2
Iestie 2 E 14
3h+k+s
, Rivitalo
80.5 m2
Kerros 1-2/2
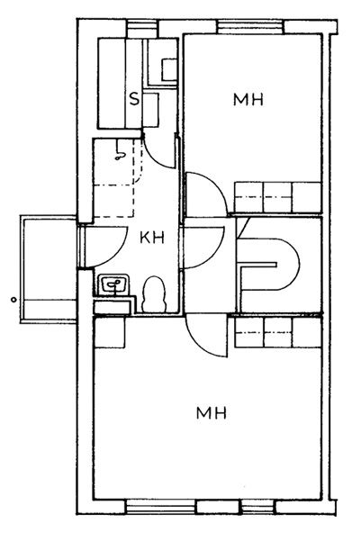
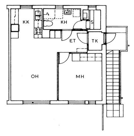
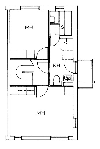
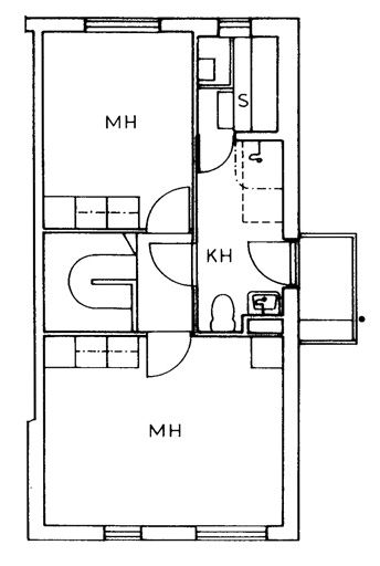
Iestie 1 B 4
4h+k+s
, Rivitalo
90 m2
1-2/2
Iestie 1 B 4
4h+k+s
, Rivitalo
90 m2
Kerros 1-2/2
Iestie 1 B 5
4h+k+s
, Rivitalo
90 m2
1-2/2
Iestie 1 B 5
4h+k+s
, Rivitalo
90 m2
Kerros 1-2/2