Kohteen esittely
Viihtyisä rivitalokohde puistomaisella alueella Suutarilassa. Asunnot ovat kahdessa tasossa ja niihin kuuluu omat suojaisat pihat.
Lähellä on ruokakauppa, päiväkoti ja koulut lukioon saakka sekä paljon harrastusmahdollisuuksia. Lähin juna-asema on Puistolassa, mutta myös pitkän matkan junien pysähdyspaikka Tikkurila on lähellä. Omalla autolla olet hetkessä kehä kolmosella.
Miksi Asuntosäätiö?
Me uskomme, että onnellinen koti ja laadukas asuminen kuuluvat kaikille. Emme tavoittele voittoa, vaan käytämme kaikki vastikkeista ja vuokrista saadut tulot toimintamme kehittämiseen. Jo yli 33 000 suomalaista on valinnut Asuntosäätiön tarjoaman kodin. Tiesithän, että myös lemmikit ovat tervetulleita kaikkiin koteihimme!
Rakennuksen tiedot
- Asumismuoto Asokoti
- Keskimääräinen asumisoikeusmaksu / jm² 327,88€
- Hissit Ei
- Talosauna Ei
- Asuntoja 20
- Asuinrakennuksia 10
- Käyttövastike / kk / jm² 16,01€
- Valmistumisvuosi 1995
- Peruskorjattu 2025
- Energialuokka C, D
- Lämmitysmuoto Kauko
- Autopaikat 24
- Laajakaista DNA Netti
- Antennijärjestelmä Kaapeli
- KaapeliTV DNA
- Kattomateriaali Pelti
- Lemmikit Sallittu
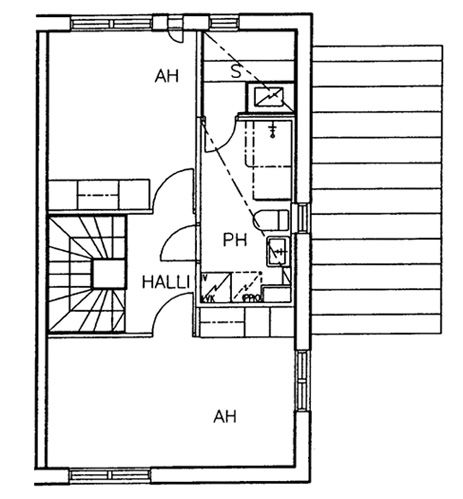
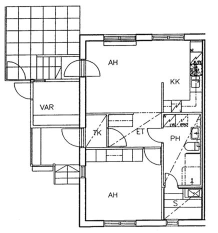
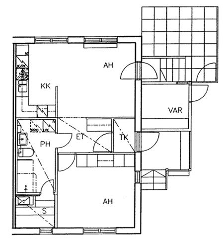
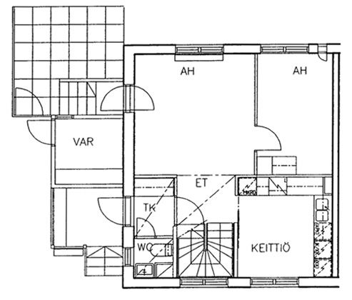
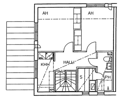
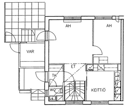
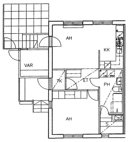
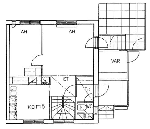
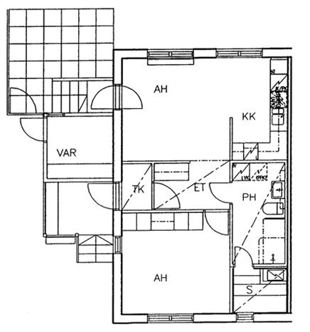
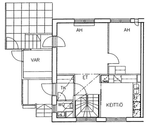
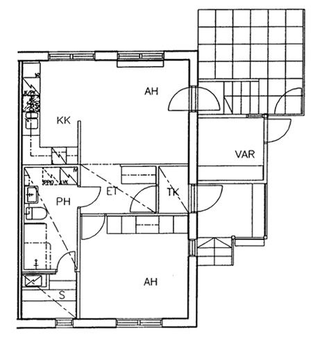
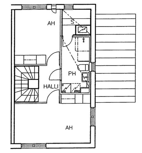
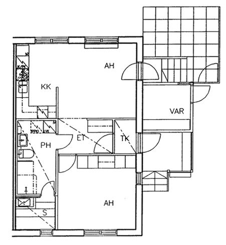
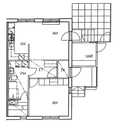
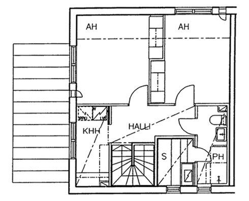
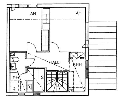
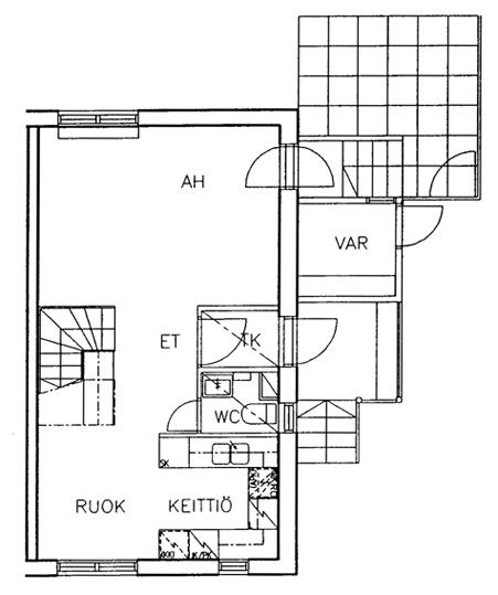
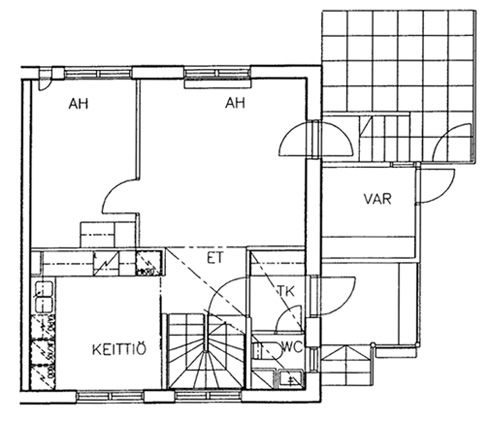
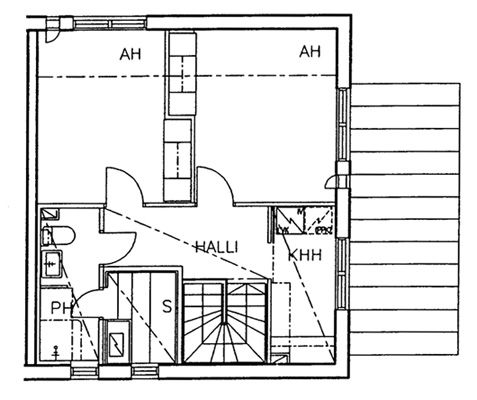
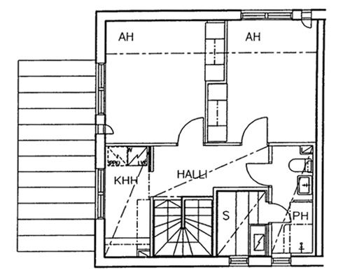
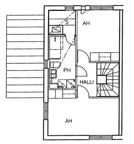
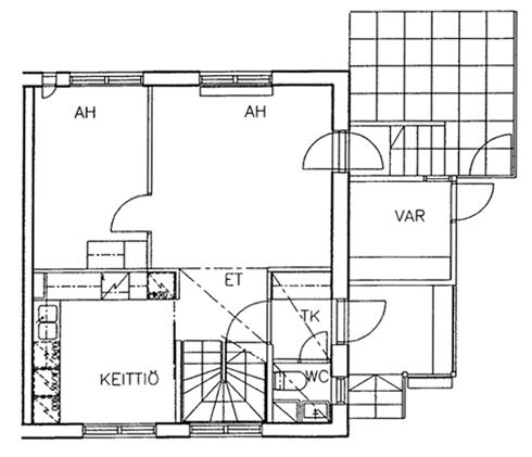
Huoneistot ja pohjakuvat: Tikkurikuja 10, Piharakennus, Paritalo, Rivitalo
Lisää hakemukselle kaikki haluamasi asuntotyypit. Mahdollisuutesi asunnon saamiseksi paranevat, kun voimme tarjota sinulle kaikkia valitsemasi asuntotyypin asuntoja, jotka mahdollisesti vapautuvat myöhemmin tästä kohteesta. Olet automaattisesti näiden asuntotyyppien hakuprosessissa.
Tikkurikuja 10-12 O 15
2h+kk+s
, Rivitalo
51 m2
1/1
Tikkurikuja 10-12 O 15
2h+kk+s
, Rivitalo
51 m2
Kerros 1/1
Tikkurikuja 10-12 P 16
2h+kk+s
, Rivitalo
51 m2
1/1
Tikkurikuja 10-12 P 16
2h+kk+s
, Rivitalo
51 m2
Kerros 1/1
Tikkurikuja 10-12 E 5
2h+kk+s
, Rivitalo
51 m2
1/1
Tikkurikuja 10-12 E 5
2h+kk+s
, Rivitalo
51 m2
Kerros 1/1
Tikkurikuja 10-12 F 6
2h+kk+s
, Rivitalo
51 m2
1/1
Tikkurikuja 10-12 F 6
2h+kk+s
, Rivitalo
51 m2
Kerros 1/1
Tikkurikuja 10-12 R 17
2h+kk+s
, Paritalo
51 m2
1/1
Tikkurikuja 10-12 R 17
2h+kk+s
, Paritalo
51 m2
Kerros 1/1
Tikkurikuja 10-12 S 18
2h+kk+s
, Paritalo
51 m2
1/1
Tikkurikuja 10-12 S 18
2h+kk+s
, Paritalo
51 m2
Kerros 1/1
Tikkurikuja 10-12 N 14
2h+kk+s
, Rivitalo
51 m2
1/2
Tikkurikuja 10-12 N 14
2h+kk+s
, Rivitalo
51 m2
Kerros 1/2
Tikkurikuja 10-12 M 13
2h+kk+s
, Rivitalo
51 m2
1/2
Tikkurikuja 10-12 M 13
2h+kk+s
, Rivitalo
51 m2
Kerros 1/2
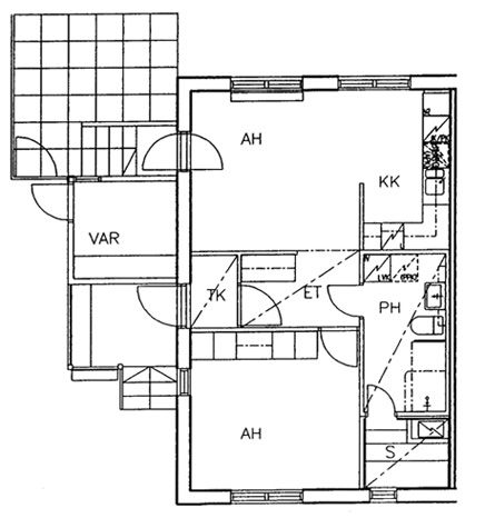
Tikkurikuja 10-12 K 11
3h+k+s
, Rivitalo
80 m2
1-2/2
Tikkurikuja 10-12 K 11
3h+k+s
, Rivitalo
80 m2
Kerros 1-2/2
Tikkurikuja 10-12 L 12
3h+k+s
, Rivitalo
80 m2
1-2/2
Tikkurikuja 10-12 L 12
3h+k+s
, Rivitalo
80 m2
Kerros 1-2/2
Tikkurikuja 10-12 C 3
3h+k+s
, Rivitalo
80 m2
1-2/2
Tikkurikuja 10-12 C 3
3h+k+s
, Rivitalo
80 m2
Kerros 1-2/2
Tikkurikuja 10-12 D 4
3h+k+s
, Rivitalo
80 m2
1-2/2
Tikkurikuja 10-12 D 4
3h+k+s
, Rivitalo
80 m2
Kerros 1-2/2
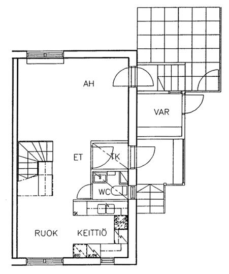
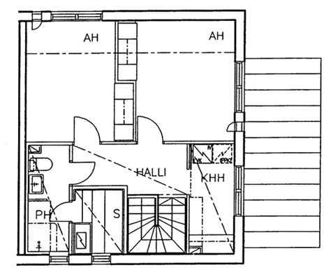
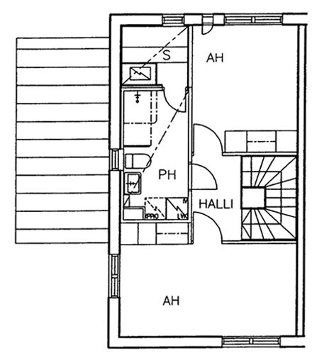
Tikkurikuja 10-12 B 2
4h+k+s
, Paritalo
94 m2
1-2/2
Tikkurikuja 10-12 B 2
4h+k+s
, Paritalo
94 m2
Kerros 1-2/2
Tikkurikuja 10-12 A 1
4h+k+s
, Paritalo
94 m2
Kerros 1-2/2
Tikkurikuja 10-12 H 8
4h+k+s
, Rivitalo
94 m2
Kerros 1-2/2
Tikkurikuja 10-12 G 7
4h+k+s
, Rivitalo
94 m2
1-2/2
Tikkurikuja 10-12 G 7
4h+k+s
, Rivitalo
94 m2
Kerros 1-2/2
Tikkurikuja 10-12 I 9
4h+k+s
, Rivitalo
94 m2
Kerros 1-2/2
Tikkurikuja 10-12 J 10
4h+k+s
, Rivitalo
94 m2
1-2/2
Tikkurikuja 10-12 J 10
4h+k+s
, Rivitalo
94 m2
Kerros 1-2/2
Tikkurikuja 10-12 T 19
4h+k+s
, Paritalo
94 m2
1-2/2
Tikkurikuja 10-12 T 19
4h+k+s
, Paritalo
94 m2
Kerros 1-2/2
Tikkurikuja 10-12 U 20
4h+k+s
, Paritalo
94 m2
Kerros 1-2/2


