Kohteen esittely
Miksi Asuntosäätiö?
Me uskomme, että onnellinen koti ja laadukas asuminen kuuluvat kaikille. Emme tavoittele voittoa, vaan käytämme kaikki vastikkeista ja vuokrista saadut tulot toimintamme kehittämiseen. Jo yli 33 000 suomalaista on valinnut Asuntosäätiön tarjoaman kodin. Tiesithän, että myös lemmikit ovat tervetulleita kaikkiin koteihimme!
Rakennuksen tiedot
- Asumismuoto Asokoti
- Keskimääräinen asumisoikeusmaksu / jm² 357,86€
- Hissit 1
- Talosauna Ei
- Kuivaushuone Kyllä
- Asuntoja 22
- Asuinrakennuksia 1
- Käyttövastike / kk / jm² 17,81€
- Valmistumisvuosi 1999
- Porrashuoneet 1
- Energialuokka F
- Lämmitysmuoto Kauko
- Autopaikat 16
- Laajakaista DNA Welho
- Antennijärjestelmä Kaapeli
- KaapeliTV DNA
- Kattomateriaali Huopa
- Runkomateriaali Betoni
- Lemmikit Sallittu
Huoneistot ja pohjakuvat: Taimistontie 4 B, Piharakennus, Kerrostalo
Lisää hakemukselle kaikki haluamasi asuntotyypit. Mahdollisuutesi asunnon saamiseksi paranevat, kun voimme tarjota sinulle kaikkia valitsemasi asuntotyypin asuntoja, jotka mahdollisesti vapautuvat myöhemmin tästä kohteesta. Olet automaattisesti näiden asuntotyyppien hakuprosessissa.
Taimistontie 4 B A 10
1h+kk+s
, Kerrostalo
40 m2
2/4
Taimistontie 4 B A 10
1h+kk+s
, Kerrostalo
40 m2
Kerros 2/4
Taimistontie 4 B A 22
1h+kk+s
, Kerrostalo
40 m2
4/4
Taimistontie 4 B A 22
1h+kk+s
, Kerrostalo
40 m2
Kerros 4/4
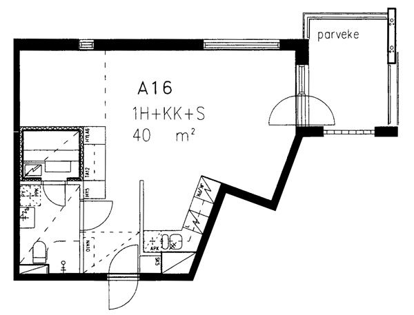
Taimistontie 4 B A 16
1h+kk+s
, Kerrostalo
40 m2
3/4
Taimistontie 4 B A 16
1h+kk+s
, Kerrostalo
40 m2
Kerros 3/4
Taimistontie 4 B A 14
2h+kk+s
, Kerrostalo
50 m2
3/4
Taimistontie 4 B A 14
2h+kk+s
, Kerrostalo
50 m2
Kerros 3/4
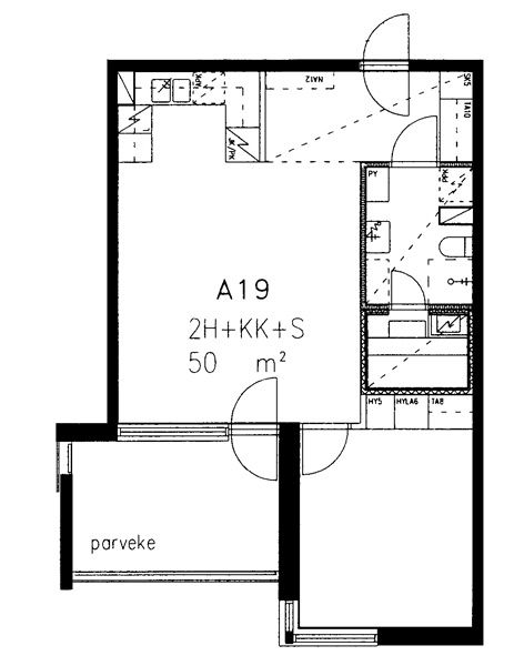
Taimistontie 4 B A 19
2h+kk+s
, Kerrostalo
50 m2
4/4
Taimistontie 4 B A 19
2h+kk+s
, Kerrostalo
50 m2
Kerros 4/4
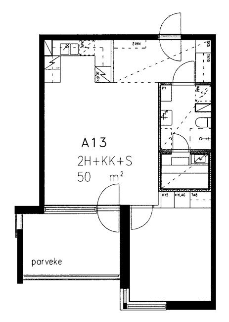
Taimistontie 4 B A 13
2h+kk+s
, Kerrostalo
50 m2
3/4
Taimistontie 4 B A 13
2h+kk+s
, Kerrostalo
50 m2
Kerros 3/4
Taimistontie 4 B A 8
2h+kk+s
, Kerrostalo
50 m2
2/4
Taimistontie 4 B A 8
2h+kk+s
, Kerrostalo
50 m2
Kerros 2/4
Taimistontie 4 B A 7
2h+kk+s
, Kerrostalo
50 m2
2/4
Taimistontie 4 B A 7
2h+kk+s
, Kerrostalo
50 m2
Kerros 2/4
Taimistontie 4 B A 20
2h+kk+s
, Kerrostalo
50 m2
4/4
Taimistontie 4 B A 20
2h+kk+s
, Kerrostalo
50 m2
Kerros 4/4
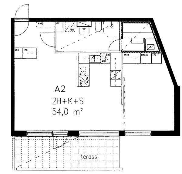
Taimistontie 4 B A 2
2h+kk+s
, Kerrostalo
54 m2
1/4
Taimistontie 4 B A 2
2h+kk+s
, Kerrostalo
54 m2
Kerros 1/4
Taimistontie 4 B A 12
2h+tk+s
, Kerrostalo
66 m2
3/4
Taimistontie 4 B A 12
2h+tk+s
, Kerrostalo
66 m2
Kerros 3/4
Taimistontie 4 B A 4
2h+tk+s
, Kerrostalo
66 m2
1/4
Taimistontie 4 B A 4
2h+tk+s
, Kerrostalo
66 m2
Kerros 1/4
Taimistontie 4 B A 6
2h+tk+s
, Kerrostalo
66 m2
Kerros 2/4
Taimistontie 4 B A 9
2h+tk+s
, Kerrostalo
66 m2
2/4
Taimistontie 4 B A 9
2h+tk+s
, Kerrostalo
66 m2
Kerros 2/4
Taimistontie 4 B A 21
2h+tk+s
, Kerrostalo
66 m2
4/4
Taimistontie 4 B A 21
2h+tk+s
, Kerrostalo
66 m2
Kerros 4/4
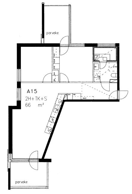
Taimistontie 4 B A 15
2h+tk+s
, Kerrostalo
66 m2
3/4
Taimistontie 4 B A 15
2h+tk+s
, Kerrostalo
66 m2
Kerros 3/4
Taimistontie 4 B A 18
2h+tk+s
, Kerrostalo
66 m2
4/4
Taimistontie 4 B A 18
2h+tk+s
, Kerrostalo
66 m2
Kerros 4/4
Taimistontie 4 B A 5
3h+k+s
, Kerrostalo
78.5 m2
Kerros 2/4
Taimistontie 4 B A 17
3h+k+s
, Kerrostalo
78.5 m2
Kerros 4/4
Taimistontie 4 B A 1
3h+k+s
, Kerrostalo
78.5 m2
1/4
Taimistontie 4 B A 1
3h+k+s
, Kerrostalo
78.5 m2
Kerros 1/4
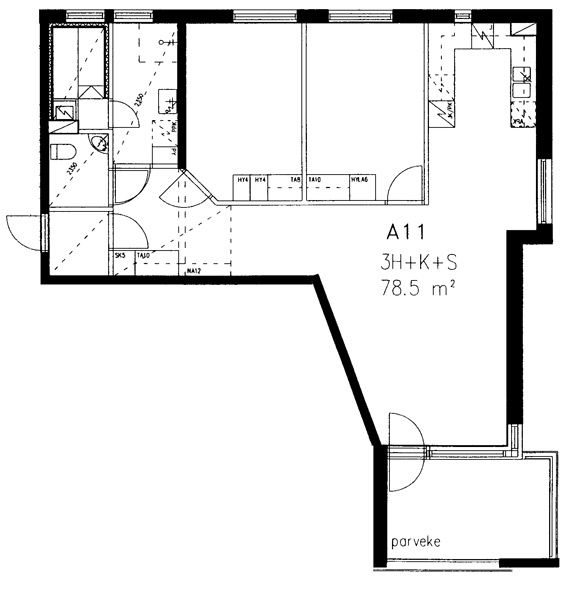
Taimistontie 4 B A 11
3h+k+s
, Kerrostalo
78.5 m2
3/4
Taimistontie 4 B A 11
3h+k+s
, Kerrostalo
78.5 m2
Kerros 3/4
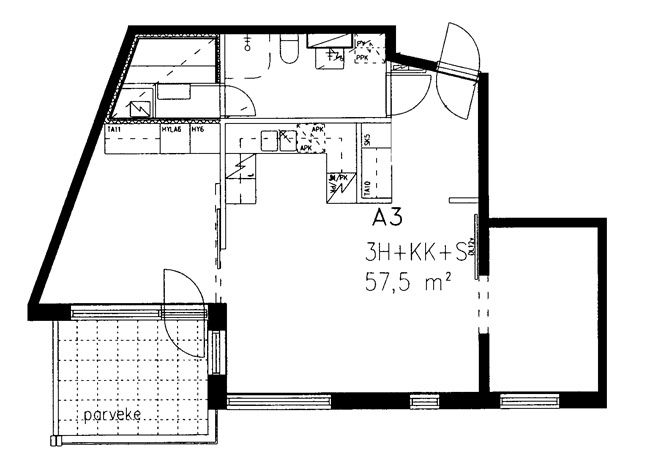
Taimistontie 4 B A 3
3h+kk+s
, Kerrostalo
57.5 m2
1/4
Taimistontie 4 B A 3
3h+kk+s
, Kerrostalo
57.5 m2
Kerros 1/4


