Kohteen esittely
Miksi Asuntosäätiö?
Me uskomme, että onnellinen koti ja laadukas asuminen kuuluvat kaikille. Emme tavoittele voittoa, vaan käytämme kaikki vastikkeista ja vuokrista saadut tulot toimintamme kehittämiseen. Jo yli 33 000 suomalaista on valinnut Asuntosäätiön tarjoaman kodin. Tiesithän, että myös lemmikit ovat tervetulleita kaikkiin koteihimme!
Rakennuksen tiedot
- Asumismuoto Asokoti
- Keskimääräinen asumisoikeusmaksu / jm² 303,5€
- Hissit Ei
- Talosauna Ei
- Asuntoja 17
- Asuinrakennuksia 6
- Käyttövastike / kk / jm² 14,92€
- Valmistumisvuosi 1996
- Peruskorjattu 2025
- Energialuokka D
- Lämmitysmuoto Kauko
- Autopaikat 68
- Laajakaista DNA Welho
- Antennijärjestelmä Kaapeli
- KaapeliTV DNA
- Kattomateriaali Tiili
- Runkomateriaali Betoni
- Lemmikit Sallittu
Huoneistot ja pohjakuvat: Rapolantie 8-10, Paritalo, Rivitalo
Lisää hakemukselle kaikki haluamasi asuntotyypit. Mahdollisuutesi asunnon saamiseksi paranevat, kun voimme tarjota sinulle kaikkia valitsemasi asuntotyypin asuntoja, jotka mahdollisesti vapautuvat myöhemmin tästä kohteesta. Olet automaattisesti näiden asuntotyyppien hakuprosessissa.
Rapolantie 8-10 C 6
3h+k+s
, Paritalo
83 m2
1-2/2
Rapolantie 8-10 C 6
3h+k+s
, Paritalo
83 m2
Kerros 1-2/2
Rapolantie 8-10 F 17
3h+k+s
, Rivitalo
84 m2
1-2/2
Rapolantie 8-10 F 17
3h+k+s
, Rivitalo
84 m2
Kerros 1-2/2
Rapolantie 8-10 B 3
4h+k+s
, Paritalo
94 m2
1-2/2
Rapolantie 8-10 B 3
4h+k+s
, Paritalo
94 m2
Kerros 1-2/2
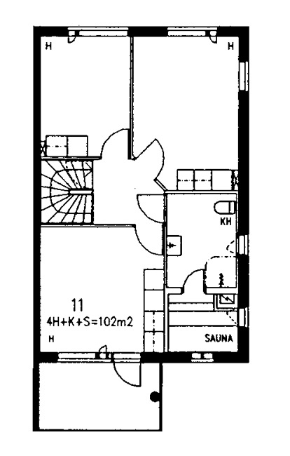
Rapolantie 8-10 E 11
4h+k+s
, Rivitalo
102 m2
1-2/2
Rapolantie 8-10 E 11
4h+k+s
, Rivitalo
102 m2
Kerros 1-2/2
Rapolantie 8-10 D 8
4h+k+s
, Rivitalo
103 m2
1-2/2
Rapolantie 8-10 D 8
4h+k+s
, Rivitalo
103 m2
Kerros 1-2/2
Rapolantie 8-10 A 1
4h+k+s
, Paritalo
103 m2
1-2/2
Rapolantie 8-10 A 1
4h+k+s
, Paritalo
103 m2
Kerros 1-2/2
Rapolantie 8-10 F 16
4h+k+s
, Rivitalo
103 m2
1-2/2
Rapolantie 8-10 F 16
4h+k+s
, Rivitalo
103 m2
Kerros 1-2/2
Rapolantie 8-10 F 15
4h+k+s
, Rivitalo
103 m2
1-2/2
Rapolantie 8-10 F 15
4h+k+s
, Rivitalo
103 m2
Kerros 1-2/2
Rapolantie 8-10 E 12
4h+k+s
, Rivitalo
103 m2
1-2/2
Rapolantie 8-10 E 12
4h+k+s
, Rivitalo
103 m2
Kerros 1-2/2
Rapolantie 8-10 A 2
5h+k+s
, Paritalo
103 m2
1-2/2
Rapolantie 8-10 A 2
5h+k+s
, Paritalo
103 m2
Kerros 1-2/2
Rapolantie 8-10 C 5
5h+k+s
, Paritalo
108 m2
1-2/2
Rapolantie 8-10 C 5
5h+k+s
, Paritalo
108 m2
Kerros 1-2/2
Rapolantie 8-10 B 4
5h+k+s
, Paritalo
108 m2
1-2/2
Rapolantie 8-10 B 4
5h+k+s
, Paritalo
108 m2
Kerros 1-2/2
Rapolantie 8-10 D 10
5h+k+s
, Rivitalo
110.5 m2
1-2/2
Rapolantie 8-10 D 10
5h+k+s
, Rivitalo
110.5 m2
Kerros 1-2/2
Rapolantie 8-10 D 7
5h+k+s
, Rivitalo
110.5 m2
1-2/2
Rapolantie 8-10 D 7
5h+k+s
, Rivitalo
110.5 m2
Kerros 1-2/2
Rapolantie 8-10 E 13
5h+k+s
, Rivitalo
110.5 m2
1-2/2
Rapolantie 8-10 E 13
5h+k+s
, Rivitalo
110.5 m2
Kerros 1-2/2
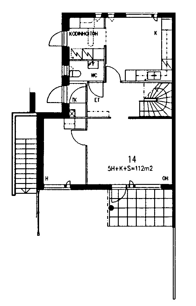
Rapolantie 8-10 F 14
5h+k+s
, Rivitalo
112 m2
1-2/2
Rapolantie 8-10 F 14
5h+k+s
, Rivitalo
112 m2
Kerros 1-2/2
