Kohteen esittely
Hiekkalaiturintie 2 kerrostalokohde merellisen Aurinkolahden kupeessa Vuosaaressa. Kohde koostuu 54 asunnosta, joiden koot vaihtelevat yksiöistä viiden huoneen asuntoihin, 39,5–100,5 m². Kohteessa on kolme hissiä ja asukkaiden käytössä on myös pyykkitupa, kuivaushuone sekä kerhotila. Kohteessa on kaukolämmitys.
Kohde sijaitsee vehreiden ulkoilualueiden vieressä, 200 metrin päässä merenrannasta. Kauppakeskus Columbuksen päivittäispalvelut ovat kävelymatkan päässä. Kohteen vieressä on myös Aurinkolahden koulun bussipysäkki. Hyviä kulkuyhteyksiä täydentää alle kilometrin päässä sijaitseva Vuosaaren metroasema.
Miksi Asuntosäätiö?
Me uskomme, että onnellinen koti ja laadukas asuminen kuuluvat kaikille. Emme tavoittele voittoa, vaan käytämme kaikki vastikkeista ja vuokrista saadut tulot toimintamme kehittämiseen. Jo yli 33 000 suomalaista on valinnut Asuntosäätiön tarjoaman kodin. Tiesithän, että myös lemmikit ovat tervetulleita kaikkiin koteihimme!
Rakennuksen tiedot
- Asumismuoto Asokoti
- Keskimääräinen asumisoikeusmaksu / jm² 352,31€
- Hissit 3
- Talosauna 1
- Pyykkitupa Kyllä
- Kuivaushuone Kyllä
- Asuntoja 54
- Asuinrakennuksia 1
- Käyttövastike / kk / jm² 16,24€
- Valmistumisvuosi 1999
- Porrashuoneet 3
- Energialuokka E
- Lämmitysmuoto Kauko
- Autopaikat 43
- Kerhohuone 1
- Askarteluhuone 1
- Laajakaista DNA Welho
- Antennijärjestelmä Kaapeli
- KaapeliTV DNA
- Kattomateriaali Huopa
- Runkomateriaali Betoni
- Lemmikit Sallittu
Huoneistot ja pohjakuvat: Hiekkalaiturintie 2, Kerrostalo
Lisää hakemukselle kaikki haluamasi asuntotyypit. Mahdollisuutesi asunnon saamiseksi paranevat, kun voimme tarjota sinulle kaikkia valitsemasi asuntotyypin asuntoja, jotka mahdollisesti vapautuvat myöhemmin tästä kohteesta. Olet automaattisesti näiden asuntotyyppien hakuprosessissa.
Hiekkalaiturintie 2 C 37
2h+k
, Kerrostalo
39.5 m2
1/5
Hiekkalaiturintie 2 C 37
2h+k
, Kerrostalo
39.5 m2
Kerros 1/5
Hiekkalaiturintie 2 C 48
2h+k
, Kerrostalo
39.5 m2
4/5
Hiekkalaiturintie 2 C 48
2h+k
, Kerrostalo
39.5 m2
Kerros 4/5
Hiekkalaiturintie 2 C 52
2h+k
, Kerrostalo
39.5 m2
5/5
Hiekkalaiturintie 2 C 52
2h+k
, Kerrostalo
39.5 m2
Kerros 5/5
Hiekkalaiturintie 2 C 44
2h+k
, Kerrostalo
39.5 m2
3/5
Hiekkalaiturintie 2 C 44
2h+k
, Kerrostalo
39.5 m2
Kerros 3/5
Hiekkalaiturintie 2 C 40
2h+k
, Kerrostalo
39.5 m2
2/5
Hiekkalaiturintie 2 C 40
2h+k
, Kerrostalo
39.5 m2
Kerros 2/5
Hiekkalaiturintie 2 B 19
2h+k+s
, Kerrostalo
43 m2
1/5
Hiekkalaiturintie 2 B 19
2h+k+s
, Kerrostalo
43 m2
Kerros 1/5
Hiekkalaiturintie 2 A 10
2h+k+s
, Kerrostalo
54 m2
3/5
Hiekkalaiturintie 2 A 10
2h+k+s
, Kerrostalo
54 m2
Kerros 3/5
Hiekkalaiturintie 2 A 14
2h+k+s
, Kerrostalo
54 m2
4/5
Hiekkalaiturintie 2 A 14
2h+k+s
, Kerrostalo
54 m2
Kerros 4/5
Hiekkalaiturintie 2 A 6
2h+k+s
, Kerrostalo
54 m2
2/5
Hiekkalaiturintie 2 A 6
2h+k+s
, Kerrostalo
54 m2
Kerros 2/5
Hiekkalaiturintie 2 A 18
2h+k+s
, Kerrostalo
54 m2
5/5
Hiekkalaiturintie 2 A 18
2h+k+s
, Kerrostalo
54 m2
Kerros 5/5
Hiekkalaiturintie 2 C 42
2h+k+s
, Kerrostalo
57.5 m2
2/5
Hiekkalaiturintie 2 C 42
2h+k+s
, Kerrostalo
57.5 m2
Kerros 2/5
Hiekkalaiturintie 2 C 50
2h+k+s
, Kerrostalo
57.5 m2
4/5
Hiekkalaiturintie 2 C 50
2h+k+s
, Kerrostalo
57.5 m2
Kerros 4/5
Hiekkalaiturintie 2 C 54
2h+k+s
, Kerrostalo
57.5 m2
5/5
Hiekkalaiturintie 2 C 54
2h+k+s
, Kerrostalo
57.5 m2
Kerros 5/5
Hiekkalaiturintie 2 C 46
2h+k+s
, Kerrostalo
57.5 m2
3/5
Hiekkalaiturintie 2 C 46
2h+k+s
, Kerrostalo
57.5 m2
Kerros 3/5
Hiekkalaiturintie 2 B 30
2h+kk
, Kerrostalo
47 m2
Kerros 4/5
Hiekkalaiturintie 2 B 33
2h+kk
, Kerrostalo
47 m2
5/5
Hiekkalaiturintie 2 B 33
2h+kk
, Kerrostalo
47 m2
Kerros 5/5
Hiekkalaiturintie 2 B 26
2h+kk
, Kerrostalo
47 m2
3/5
Hiekkalaiturintie 2 B 26
2h+kk
, Kerrostalo
47 m2
Kerros 3/5
Hiekkalaiturintie 2 B 34
2h+kk
, Kerrostalo
47 m2
5/5
Hiekkalaiturintie 2 B 34
2h+kk
, Kerrostalo
47 m2
Kerros 5/5
Hiekkalaiturintie 2 B 21
2h+kk
, Kerrostalo
47 m2
2/5
Hiekkalaiturintie 2 B 21
2h+kk
, Kerrostalo
47 m2
Kerros 2/5
Hiekkalaiturintie 2 B 22
2h+kk
, Kerrostalo
47 m2
2/5
Hiekkalaiturintie 2 B 22
2h+kk
, Kerrostalo
47 m2
Kerros 2/5
Hiekkalaiturintie 2 B 25
2h+kk
, Kerrostalo
47 m2
3/5
Hiekkalaiturintie 2 B 25
2h+kk
, Kerrostalo
47 m2
Kerros 3/5
Hiekkalaiturintie 2 B 29
2h+kk
, Kerrostalo
47 m2
4/5
Hiekkalaiturintie 2 B 29
2h+kk
, Kerrostalo
47 m2
Kerros 4/5
Hiekkalaiturintie 2 A 16
2h+kk+s
, Kerrostalo
41 m2
5/5
Hiekkalaiturintie 2 A 16
2h+kk+s
, Kerrostalo
41 m2
Kerros 5/5
Hiekkalaiturintie 2 A 4
2h+kk+s
, Kerrostalo
41 m2
2/5
Hiekkalaiturintie 2 A 4
2h+kk+s
, Kerrostalo
41 m2
Kerros 2/5
Hiekkalaiturintie 2 A 12
2h+kk+s
, Kerrostalo
41 m2
4/5
Hiekkalaiturintie 2 A 12
2h+kk+s
, Kerrostalo
41 m2
Kerros 4/5
Hiekkalaiturintie 2 A 2
2h+kk+s
, Kerrostalo
41 m2
1/5
Hiekkalaiturintie 2 A 2
2h+kk+s
, Kerrostalo
41 m2
Kerros 1/5
Hiekkalaiturintie 2 A 8
2h+kk+s
, Kerrostalo
41 m2
3/5
Hiekkalaiturintie 2 A 8
2h+kk+s
, Kerrostalo
41 m2
Kerros 3/5
Hiekkalaiturintie 2 C 45
3h+k+s
, Kerrostalo
69 m2
3/5
Hiekkalaiturintie 2 C 45
3h+k+s
, Kerrostalo
69 m2
Kerros 3/5
Hiekkalaiturintie 2 C 53
3h+k+s
, Kerrostalo
69 m2
5/5
Hiekkalaiturintie 2 C 53
3h+k+s
, Kerrostalo
69 m2
Kerros 5/5
Hiekkalaiturintie 2 C 41
3h+k+s
, Kerrostalo
69 m2
2/5
Hiekkalaiturintie 2 C 41
3h+k+s
, Kerrostalo
69 m2
Kerros 2/5
Hiekkalaiturintie 2 C 38
3h+k+s
, Kerrostalo
69 m2
1/5
Hiekkalaiturintie 2 C 38
3h+k+s
, Kerrostalo
69 m2
Kerros 1/5
Hiekkalaiturintie 2 C 49
3h+k+s
, Kerrostalo
69 m2
4/5
Hiekkalaiturintie 2 C 49
3h+k+s
, Kerrostalo
69 m2
Kerros 4/5
Hiekkalaiturintie 2 B 32
3h+k+s
, Kerrostalo
74.5 m2
5/5
Hiekkalaiturintie 2 B 32
3h+k+s
, Kerrostalo
74.5 m2
Kerros 5/5
Hiekkalaiturintie 2 A 5
3h+k+s
, Kerrostalo
74.5 m2
2/5
Hiekkalaiturintie 2 A 5
3h+k+s
, Kerrostalo
74.5 m2
Kerros 2/5
Hiekkalaiturintie 2 B 23
3h+k+s
, Kerrostalo
74.5 m2
2/5
Hiekkalaiturintie 2 B 23
3h+k+s
, Kerrostalo
74.5 m2
Kerros 2/5
Hiekkalaiturintie 2 B 20
3h+k+s
, Kerrostalo
74.5 m2
2/5
Hiekkalaiturintie 2 B 20
3h+k+s
, Kerrostalo
74.5 m2
Kerros 2/5
Hiekkalaiturintie 2 B 31
3h+k+s
, Kerrostalo
74.5 m2
4/5
Hiekkalaiturintie 2 B 31
3h+k+s
, Kerrostalo
74.5 m2
Kerros 4/5
Hiekkalaiturintie 2 B 27
3h+k+s
, Kerrostalo
74.5 m2
3/5
Hiekkalaiturintie 2 B 27
3h+k+s
, Kerrostalo
74.5 m2
Kerros 3/5
Hiekkalaiturintie 2 B 35
3h+k+s
, Kerrostalo
74.5 m2
5/5
Hiekkalaiturintie 2 B 35
3h+k+s
, Kerrostalo
74.5 m2
Kerros 5/5
Hiekkalaiturintie 2 B 24
3h+k+s
, Kerrostalo
74.5 m2
3/5
Hiekkalaiturintie 2 B 24
3h+k+s
, Kerrostalo
74.5 m2
Kerros 3/5
Hiekkalaiturintie 2 A 17
3h+k+s
, Kerrostalo
74.5 m2
5/5
Hiekkalaiturintie 2 A 17
3h+k+s
, Kerrostalo
74.5 m2
Kerros 5/5
Hiekkalaiturintie 2 A 9
3h+k+s
, Kerrostalo
74.5 m2
3/5
Hiekkalaiturintie 2 A 9
3h+k+s
, Kerrostalo
74.5 m2
Kerros 3/5
Hiekkalaiturintie 2 A 13
3h+k+s
, Kerrostalo
74.5 m2
4/5
Hiekkalaiturintie 2 A 13
3h+k+s
, Kerrostalo
74.5 m2
Kerros 4/5
Hiekkalaiturintie 2 B 28
3h+k+s
, Kerrostalo
74.5 m2
4/5
Hiekkalaiturintie 2 B 28
3h+k+s
, Kerrostalo
74.5 m2
Kerros 4/5
Hiekkalaiturintie 2 A 11
4h+k+s
, Kerrostalo
86.5 m2
3/5
Hiekkalaiturintie 2 A 11
4h+k+s
, Kerrostalo
86.5 m2
Kerros 3/5
Hiekkalaiturintie 2 A 7
4h+k+s
, Kerrostalo
86.5 m2
2/5
Hiekkalaiturintie 2 A 7
4h+k+s
, Kerrostalo
86.5 m2
Kerros 2/5
Hiekkalaiturintie 2 A 1
4h+k+s
, Kerrostalo
86.5 m2
1/5
Hiekkalaiturintie 2 A 1
4h+k+s
, Kerrostalo
86.5 m2
Kerros 1/5
Hiekkalaiturintie 2 A 3
4h+k+s
, Kerrostalo
86.5 m2
2/5
Hiekkalaiturintie 2 A 3
4h+k+s
, Kerrostalo
86.5 m2
Kerros 2/5
Hiekkalaiturintie 2 A 15
4h+k+s
, Kerrostalo
86.5 m2
4/5
Hiekkalaiturintie 2 A 15
4h+k+s
, Kerrostalo
86.5 m2
Kerros 4/5
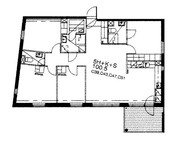
Hiekkalaiturintie 2 C 43
5h+k+s
, Kerrostalo
100.5 m2
3/5
Hiekkalaiturintie 2 C 43
5h+k+s
, Kerrostalo
100.5 m2
Kerros 3/5
Hiekkalaiturintie 2 C 39
5h+k+s
, Kerrostalo
100.5 m2
2/5
Hiekkalaiturintie 2 C 39
5h+k+s
, Kerrostalo
100.5 m2
Kerros 2/5
Hiekkalaiturintie 2 C 47
5h+k+s
, Kerrostalo
100.5 m2
4/5
Hiekkalaiturintie 2 C 47
5h+k+s
, Kerrostalo
100.5 m2
Kerros 4/5
Hiekkalaiturintie 2 C 51
5h+k+s
, Kerrostalo
100.5 m2
5/5
Hiekkalaiturintie 2 C 51
5h+k+s
, Kerrostalo
100.5 m2
Kerros 5/5
Hiekkalaiturintie 2 C 36
5h+k+s
, Kerrostalo
100.5 m2
1/5
Hiekkalaiturintie 2 C 36
5h+k+s
, Kerrostalo
100.5 m2
Kerros 1/5


