Kohteen esittely
Hiekkalaiturintie 4 on kerrostalokohde merellisen Aurinkolahden kupeessa Vuosaaressa. Kohde koostuu 40 asunnosta, joiden huoneistojen koot vaihtelevat yksiöistä neljän huoneen asuntoihin, 41–82,5 m². Kohteessa on kaksi hissiä, ja asukkaiden käytössä on myös pyykkitupa, kuivaushuone sekä kerhotila. Kohteessa on kaukolämmitys.
Kohde sijaitsee vehreiden ulkoilualueiden vieressä, 200 metrin päässä merenrannasta. Kauppakeskus Columbuksen päivittäispalvelut ovat kävelymatkan päässä. Kohteen lähettyvillä on myös Aurinkolahden koulun bussipysäkki. Hyviä kulkuyhteyksiä täydentää alle kilometrin päässä sijaitseva Vuosaaren metroasema.
Miksi Asuntosäätiö?
Me uskomme, että onnellinen koti ja laadukas asuminen kuuluvat kaikille. Emme tavoittele voittoa, vaan käytämme kaikki vastikkeista ja vuokrista saadut tulot toimintamme kehittämiseen. Jo yli 33 000 suomalaista on valinnut Asuntosäätiön tarjoaman kodin. Tiesithän, että myös lemmikit ovat tervetulleita kaikkiin koteihimme!
Rakennuksen tiedot
- Asumismuoto Asokoti
- Keskimääräinen asumisoikeusmaksu / jm² 348,99€
- Hissit 2
- Talosauna Ei
- Pyykkitupa Kyllä
- Kuivaushuone Kyllä
- Asuntoja 40
- Asuinrakennuksia 1
- Käyttövastike / kk / jm² 16,13€
- Valmistumisvuosi 1996
- Porrashuoneet 2
- Energialuokka E
- Lämmitysmuoto Kauko
- Autopaikat 34
- Kerhohuone 1
- Askarteluhuone 1
- Laajakaista DNA Welho
- Antennijärjestelmä Kaapeli
- KaapeliTV DNA
- Kattomateriaali Huopa
- Runkomateriaali Betoni
- Lemmikit Sallittu
Huoneistot ja pohjakuvat: Hiekkalaiturintie 4, Kerrostalo
Lisää hakemukselle kaikki haluamasi asuntotyypit. Mahdollisuutesi asunnon saamiseksi paranevat, kun voimme tarjota sinulle kaikkia valitsemasi asuntotyypin asuntoja, jotka mahdollisesti vapautuvat myöhemmin tästä kohteesta. Olet automaattisesti näiden asuntotyyppien hakuprosessissa.
Hiekkalaiturintie 4 A 2
1h+k+s
, Kerrostalo
41 m2
1/5
Hiekkalaiturintie 4 A 2
1h+k+s
, Kerrostalo
41 m2
Kerros 1/5
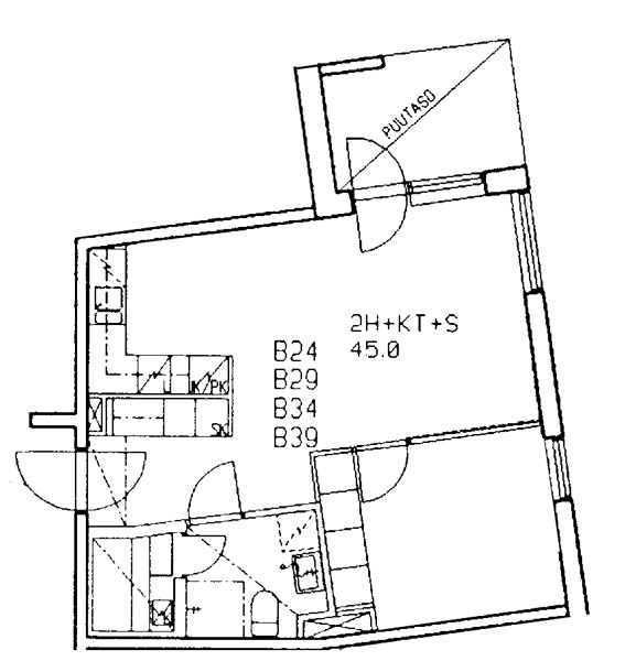
Hiekkalaiturintie 4 B 39
2h+k+s
, Kerrostalo
45 m2
5/5
Hiekkalaiturintie 4 B 39
2h+k+s
, Kerrostalo
45 m2
Kerros 5/5
Hiekkalaiturintie 4 B 29
2h+k+s
, Kerrostalo
45 m2
3/5
Hiekkalaiturintie 4 B 29
2h+k+s
, Kerrostalo
45 m2
Kerros 3/5
Hiekkalaiturintie 4 B 34
2h+k+s
, Kerrostalo
45 m2
4/5
Hiekkalaiturintie 4 B 34
2h+k+s
, Kerrostalo
45 m2
Kerros 4/5
Hiekkalaiturintie 4 B 24
2h+k+s
, Kerrostalo
45 m2
2/5
Hiekkalaiturintie 4 B 24
2h+k+s
, Kerrostalo
45 m2
Kerros 2/5
Hiekkalaiturintie 4 B 38
2h+k+s
, Kerrostalo
45.5 m2
5/5
Hiekkalaiturintie 4 B 38
2h+k+s
, Kerrostalo
45.5 m2
Kerros 5/5
Hiekkalaiturintie 4 B 33
2h+k+s
, Kerrostalo
45.5 m2
4/5
Hiekkalaiturintie 4 B 33
2h+k+s
, Kerrostalo
45.5 m2
Kerros 4/5
Hiekkalaiturintie 4 B 23
2h+k+s
, Kerrostalo
45.5 m2
2/5
Hiekkalaiturintie 4 B 23
2h+k+s
, Kerrostalo
45.5 m2
Kerros 2/5
Hiekkalaiturintie 4 B 28
2h+k+s
, Kerrostalo
45.5 m2
3/5
Hiekkalaiturintie 4 B 28
2h+k+s
, Kerrostalo
45.5 m2
Kerros 3/5
Hiekkalaiturintie 4 A 1
2h+k+s
, Kerrostalo
53.5 m2
1/5
Hiekkalaiturintie 4 A 1
2h+k+s
, Kerrostalo
53.5 m2
Kerros 1/5
Hiekkalaiturintie 4 A 17
2h+k+s
, Kerrostalo
53.5 m2
5/5
Hiekkalaiturintie 4 A 17
2h+k+s
, Kerrostalo
53.5 m2
Kerros 5/5
Hiekkalaiturintie 4 A 13
2h+k+s
, Kerrostalo
53.5 m2
4/5
Hiekkalaiturintie 4 A 13
2h+k+s
, Kerrostalo
53.5 m2
Kerros 4/5
Hiekkalaiturintie 4 A 9
2h+k+s
, Kerrostalo
53.5 m2
3/5
Hiekkalaiturintie 4 A 9
2h+k+s
, Kerrostalo
53.5 m2
Kerros 3/5
Hiekkalaiturintie 4 A 5
2h+k+s
, Kerrostalo
53.5 m2
2/5
Hiekkalaiturintie 4 A 5
2h+k+s
, Kerrostalo
53.5 m2
Kerros 2/5
Hiekkalaiturintie 4 B 40
2h+k+s
, Kerrostalo
56.5 m2
5/5
Hiekkalaiturintie 4 B 40
2h+k+s
, Kerrostalo
56.5 m2
Kerros 5/5
Hiekkalaiturintie 4 B 30
2h+k+s
, Kerrostalo
56.5 m2
3/5
Hiekkalaiturintie 4 B 30
2h+k+s
, Kerrostalo
56.5 m2
Kerros 3/5
Hiekkalaiturintie 4 B 35
2h+k+s
, Kerrostalo
56.5 m2
4/5
Hiekkalaiturintie 4 B 35
2h+k+s
, Kerrostalo
56.5 m2
Kerros 4/5
Hiekkalaiturintie 4 B 25
2h+k+s
, Kerrostalo
56.5 m2
2/5
Hiekkalaiturintie 4 B 25
2h+k+s
, Kerrostalo
56.5 m2
Kerros 2/5
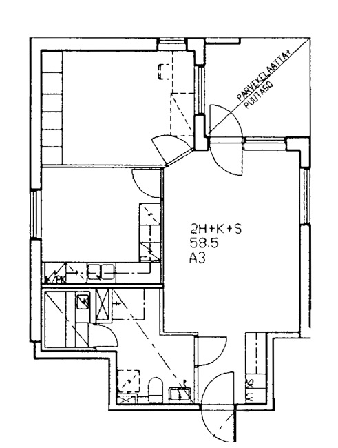
Hiekkalaiturintie 4 A 3
2h+k+s
, Kerrostalo
58.5 m2
1/5
Hiekkalaiturintie 4 A 3
2h+k+s
, Kerrostalo
58.5 m2
Kerros 1/5
Hiekkalaiturintie 4 A 15
2h+k+s
, Kerrostalo
58.5 m2
4/5
Hiekkalaiturintie 4 A 15
2h+k+s
, Kerrostalo
58.5 m2
Kerros 4/5
Hiekkalaiturintie 4 A 19
2h+k+s
, Kerrostalo
58.5 m2
5/5
Hiekkalaiturintie 4 A 19
2h+k+s
, Kerrostalo
58.5 m2
Kerros 5/5
Hiekkalaiturintie 4 A 11
2h+k+s
, Kerrostalo
58.5 m2
3/5
Hiekkalaiturintie 4 A 11
2h+k+s
, Kerrostalo
58.5 m2
Kerros 3/5
Hiekkalaiturintie 4 A 7
2h+k+s
, Kerrostalo
58.5 m2
2/5
Hiekkalaiturintie 4 A 7
2h+k+s
, Kerrostalo
58.5 m2
Kerros 2/5
Hiekkalaiturintie 4 B 37
2h+k+s
, Kerrostalo
59 m2
5/5
Hiekkalaiturintie 4 B 37
2h+k+s
, Kerrostalo
59 m2
Kerros 5/5
Hiekkalaiturintie 4 B 27
2h+k+s
, Kerrostalo
59 m2
3/5
Hiekkalaiturintie 4 B 27
2h+k+s
, Kerrostalo
59 m2
Kerros 3/5
Hiekkalaiturintie 4 B 32
2h+k+s
, Kerrostalo
59 m2
4/5
Hiekkalaiturintie 4 B 32
2h+k+s
, Kerrostalo
59 m2
Kerros 4/5
Hiekkalaiturintie 4 B 22
2h+k+s
, Kerrostalo
59 m2
2/5
Hiekkalaiturintie 4 B 22
2h+k+s
, Kerrostalo
59 m2
Kerros 2/5
Hiekkalaiturintie 4 B 31
3h+k+s
, Kerrostalo
72.5 m2
4/5
Hiekkalaiturintie 4 B 31
3h+k+s
, Kerrostalo
72.5 m2
Kerros 4/5
Hiekkalaiturintie 4 B 26
3h+k+s
, Kerrostalo
72.5 m2
3/5
Hiekkalaiturintie 4 B 26
3h+k+s
, Kerrostalo
72.5 m2
Kerros 3/5
Hiekkalaiturintie 4 B 20
3h+k+s
, Kerrostalo
72.5 m2
1/5
Hiekkalaiturintie 4 B 20
3h+k+s
, Kerrostalo
72.5 m2
Kerros 1/5
Hiekkalaiturintie 4 B 21
3h+k+s
, Kerrostalo
72.5 m2
2/5
Hiekkalaiturintie 4 B 21
3h+k+s
, Kerrostalo
72.5 m2
Kerros 2/5
Hiekkalaiturintie 4 B 36
3h+k+s
, Kerrostalo
72.5 m2
5/5
Hiekkalaiturintie 4 B 36
3h+k+s
, Kerrostalo
72.5 m2
Kerros 5/5
Hiekkalaiturintie 4 A 14
4h+k+s
, Kerrostalo
80.5 m2
4/5
Hiekkalaiturintie 4 A 14
4h+k+s
, Kerrostalo
80.5 m2
Kerros 4/5
Hiekkalaiturintie 4 A 18
4h+k+s
, Kerrostalo
80.5 m2
5/5
Hiekkalaiturintie 4 A 18
4h+k+s
, Kerrostalo
80.5 m2
Kerros 5/5
Hiekkalaiturintie 4 A 10
4h+k+s
, Kerrostalo
80.5 m2
3/5
Hiekkalaiturintie 4 A 10
4h+k+s
, Kerrostalo
80.5 m2
Kerros 3/5
Hiekkalaiturintie 4 A 6
4h+k+s
, Kerrostalo
80.5 m2
2/5
Hiekkalaiturintie 4 A 6
4h+k+s
, Kerrostalo
80.5 m2
Kerros 2/5
Hiekkalaiturintie 4 A 4
4h+k+s
, Kerrostalo
82.5 m2
2/5
Hiekkalaiturintie 4 A 4
4h+k+s
, Kerrostalo
82.5 m2
Kerros 2/5
Hiekkalaiturintie 4 A 16
4h+k+s
, Kerrostalo
82.5 m2
5/5
Hiekkalaiturintie 4 A 16
4h+k+s
, Kerrostalo
82.5 m2
Kerros 5/5
Hiekkalaiturintie 4 A 12
4h+k+s
, Kerrostalo
82.5 m2
4/5
Hiekkalaiturintie 4 A 12
4h+k+s
, Kerrostalo
82.5 m2
Kerros 4/5
Hiekkalaiturintie 4 A 8
4h+k+s
, Kerrostalo
82.5 m2
3/5
Hiekkalaiturintie 4 A 8
4h+k+s
, Kerrostalo
82.5 m2
Kerros 3/5


