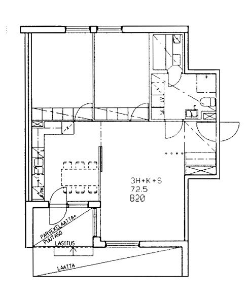
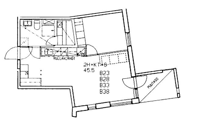
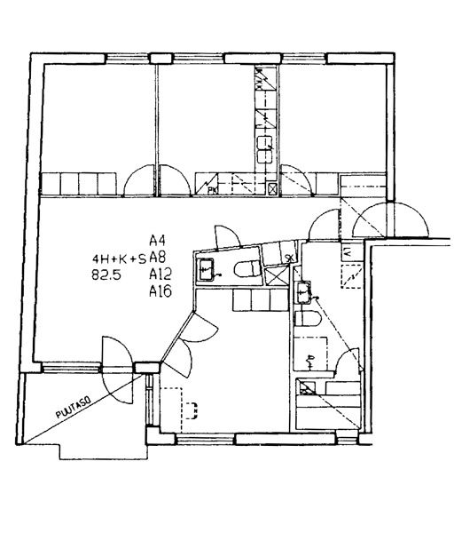
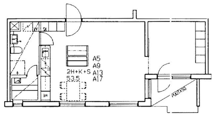
- Asunnot
- Asukkaalle
- Kotielämää
- Asuntosäätiö
- Oma hakemus
Asuntosäätiö
- Tuulikuja 2,
- 02100 Espoo









