Kohteen esittely
Pienen Villasaaren tie 13 on lapsiystävällisellä alueella sijaitseva rivitalokohde Vuosaaressa. Kohde koostuu 20 asunnosta, jotka ovat kooltaan kaksioita sekä neljän ja viiden huoneen asuntoja, 53,5–116,5 m². Asuntojen pohjaratkaisut ovat persoonallisia, ja ne mukautuvat erilaisiin elämäntilanteisiin. Kohteessa on kaukolämmitys.
Kohde sijaitsee vehreällä alueella, jossa lähettyvillä on useita ulkoiluun soveltuvia puistoja ja leikkipaikkoja. Liikuntamahdollisuuksia tarjoavat myös läheltä löytyvä frisbeegolfrata sekä Vuosaaren jäähalli. Kohteen kupeessa on kauppa. Vuosaaren metroasemalle pääsee kohteesta autolla alle 10 minuutissa, ja ajomatka Helsinkiin puolestaan taittuu 30 minuutissa.
Miksi Asuntosäätiö?
Me uskomme, että onnellinen koti ja laadukas asuminen kuuluvat kaikille. Emme tavoittele voittoa, vaan käytämme kaikki vastikkeista ja vuokrista saadut tulot toimintamme kehittämiseen. Jo yli 33 000 suomalaista on valinnut Asuntosäätiön tarjoaman kodin. Tiesithän, että myös lemmikit ovat tervetulleita kaikkiin koteihimme!
Rakennuksen tiedot
- Asumismuoto Asokoti
- Keskimääräinen asumisoikeusmaksu / jm² 403,29€
- Hissit Ei
- Talosauna Ei
- Asuntoja 20
- Asuinrakennuksia 5
- Käyttövastike / kk / jm² 14,17€
- Valmistumisvuosi 2003
- Energialuokka D
- Lämmitysmuoto Kauko
- Autopaikat 29
- Laajakaista DNA Welho
- Antennijärjestelmä Kaapeli
- KaapeliTV DNA
- Kattomateriaali Pelti
- Runkomateriaali Betoni
- Lemmikit Sallittu
Huoneistot ja pohjakuvat: Pienen Villasaaren tie 13, Paritalo, Rivitalo
Lisää hakemukselle kaikki haluamasi asuntotyypit. Mahdollisuutesi asunnon saamiseksi paranevat, kun voimme tarjota sinulle kaikkia valitsemasi asuntotyypin asuntoja, jotka mahdollisesti vapautuvat myöhemmin tästä kohteesta. Olet automaattisesti näiden asuntotyyppien hakuprosessissa.
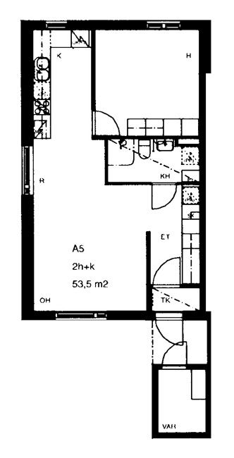
Pienenvillasaarentie 13 A 5
2h+k
, Rivitalo
53.5 m2
1/2
Pienenvillasaarentie 13 A 5
2h+k
, Rivitalo
53.5 m2
Kerros 1/2
Pienenvillasaarentie 13 B 10
2h+k
, Rivitalo
54 m2
1/2
Pienenvillasaarentie 13 B 10
2h+k
, Rivitalo
54 m2
Kerros 1/2
Pienenvillasaarentie 13 B 8
4h+k+s
, Rivitalo
110 m2
1/2
Pienenvillasaarentie 13 B 8
4h+k+s
, Rivitalo
110 m2
Kerros 1/2
Pienenvillasaarentie 13 C 15
4h+k+s
, Rivitalo
112 m2
1/2
Pienenvillasaarentie 13 C 15
4h+k+s
, Rivitalo
112 m2
Kerros 1/2
Pienenvillasaarentie 13 C 11
4h+k+s
, Rivitalo
112 m2
1/2
Pienenvillasaarentie 13 C 11
4h+k+s
, Rivitalo
112 m2
Kerros 1/2
Pienenvillasaarentie 13 C 16
4h+k+s
, Rivitalo
112 m2
1/2
Pienenvillasaarentie 13 C 16
4h+k+s
, Rivitalo
112 m2
Kerros 1/2
Pienenvillasaarentie 13 C 12
4h+k+s
, Rivitalo
112 m2
1-2/2
Pienenvillasaarentie 13 C 12
4h+k+s
, Rivitalo
112 m2
Kerros 1-2/2
Pienenvillasaarentie 13 C 14
4h+k+s
, Rivitalo
112 m2
1/2
Pienenvillasaarentie 13 C 14
4h+k+s
, Rivitalo
112 m2
Kerros 1/2
Pienenvillasaarentie 13 C 13
4h+k+s
, Rivitalo
112 m2
1-2/2
Pienenvillasaarentie 13 C 13
4h+k+s
, Rivitalo
112 m2
Kerros 1-2/2
Pienenvillasaarentie 13 B 6
5h+k+s
, Rivitalo
110 m2
1/2
Pienenvillasaarentie 13 B 6
5h+k+s
, Rivitalo
110 m2
Kerros 1/2
Pienenvillasaarentie 13 B 9
5h+k+s
, Rivitalo
110 m2
1/2
Pienenvillasaarentie 13 B 9
5h+k+s
, Rivitalo
110 m2
Kerros 1/2
Pienenvillasaarentie 13 B 7
5h+k+s
, Rivitalo
110 m2
1/2
Pienenvillasaarentie 13 B 7
5h+k+s
, Rivitalo
110 m2
Kerros 1/2
Pienenvillasaarentie 13 A 3
5h+k+s
, Rivitalo
110 m2
1/2
Pienenvillasaarentie 13 A 3
5h+k+s
, Rivitalo
110 m2
Kerros 1/2
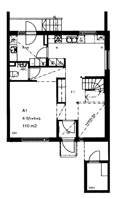
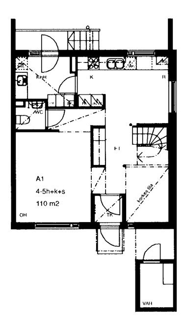
Pienenvillasaarentie 13 A 1
5h+k+s
, Rivitalo
110 m2
1/2
Pienenvillasaarentie 13 A 1
5h+k+s
, Rivitalo
110 m2
Kerros 1/2
Pienenvillasaarentie 13 A 4
5h+k+s
, Rivitalo
110 m2
1/2
Pienenvillasaarentie 13 A 4
5h+k+s
, Rivitalo
110 m2
Kerros 1/2
Pienenvillasaarentie 13 A 2
5h+k+s
, Rivitalo
110 m2
1/2
Pienenvillasaarentie 13 A 2
5h+k+s
, Rivitalo
110 m2
Kerros 1/2
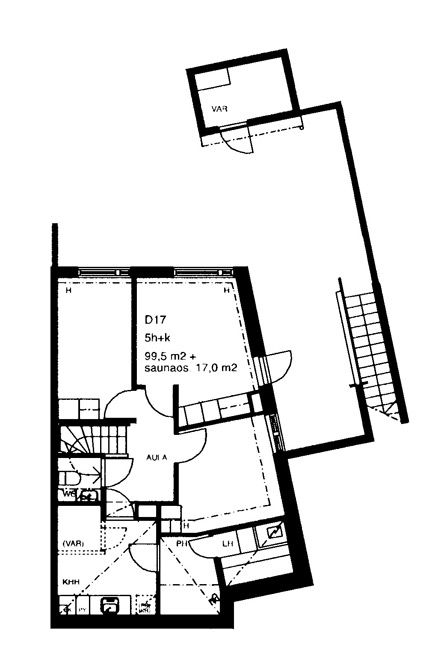
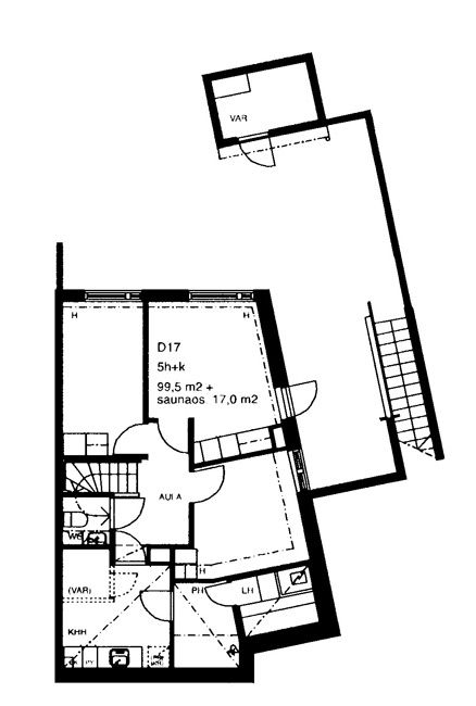
Pienenvillasaarentie 13 D 17
5h+k+s
, Paritalo
116.5 m2
1/2
Pienenvillasaarentie 13 D 17
5h+k+s
, Paritalo
116.5 m2
Kerros 1/2
Pienenvillasaarentie 13 D 18
5h+k+s
, Paritalo
116.5 m2
1/2
Pienenvillasaarentie 13 D 18
5h+k+s
, Paritalo
116.5 m2
Kerros 1/2
Pienenvillasaarentie 13 E 20
5h+k+s
, Paritalo
116.5 m2
1/2
Pienenvillasaarentie 13 E 20
5h+k+s
, Paritalo
116.5 m2
Kerros 1/2
Pienenvillasaarentie 13 E 19
5h+k+s
, Paritalo
116.5 m2
1/2
Pienenvillasaarentie 13 E 19
5h+k+s
, Paritalo
116.5 m2
Kerros 1/2
