Kohteen esittely
Pohjavedenkuja 3 on kerrostalokohde kauniissa pihapiirissä Helsingin Vuosaaressa. Kohteessa on 52 asuntoa, joiden koot vaihtelevat kaksioista neljän huoneen asuntoihin, 41–89 m². Asukkailla on käytössään pyykkitupa, kuivaushuone sekä askarteluhuone. Kohteessa on kaukolämmitys.
Kauppakeskus Columbuksen päivittäispalvelut ovat muutaman minuutin kävelyn päässä kohteesta. Kohteen läheisyydestä löytyvät myös koulu, päiväkoti sekä terveysasema. Alue tarjoaa myös mahdollisuudet ulkoiluun ja liikuntaan, sillä lähettyvillä on useita urheilukenttiä, liikuntahalleja sekä ulkoilureittejä.
Miksi Asuntosäätiö?
Me uskomme, että onnellinen koti ja laadukas asuminen kuuluvat kaikille. Emme tavoittele voittoa, vaan käytämme kaikki vastikkeista ja vuokrista saadut tulot toimintamme kehittämiseen. Jo yli 33 000 suomalaista on valinnut Asuntosäätiön tarjoaman kodin. Tiesithän, että myös lemmikit ovat tervetulleita kaikkiin koteihimme!
Rakennuksen tiedot
- Asumismuoto Asokoti
- Keskimääräinen asumisoikeusmaksu / jm² 351,17€
- Hissit 3
- Talosauna Ei
- Pyykkitupa Kyllä
- Kuivaushuone Kyllä
- Asuntoja 52
- Asuinrakennuksia 1
- Käyttövastike / kk / jm² 15,85€
- Valmistumisvuosi 1998
- Porrashuoneet 3
- Energialuokka E
- Lämmitysmuoto Kauko
- Autopaikat 43
- Askarteluhuone 1
- Laajakaista DNA Welho
- Antennijärjestelmä Kaapeli
- KaapeliTV DNA
- Kattomateriaali Huopa
- Runkomateriaali Betoni
- Lemmikit Sallittu
Huoneistot ja pohjakuvat: Pohjavedenkuja 3, Kerrostalo
Lisää hakemukselle kaikki haluamasi asuntotyypit. Mahdollisuutesi asunnon saamiseksi paranevat, kun voimme tarjota sinulle kaikkia valitsemasi asuntotyypin asuntoja, jotka mahdollisesti vapautuvat myöhemmin tästä kohteesta. Olet automaattisesti näiden asuntotyyppien hakuprosessissa.
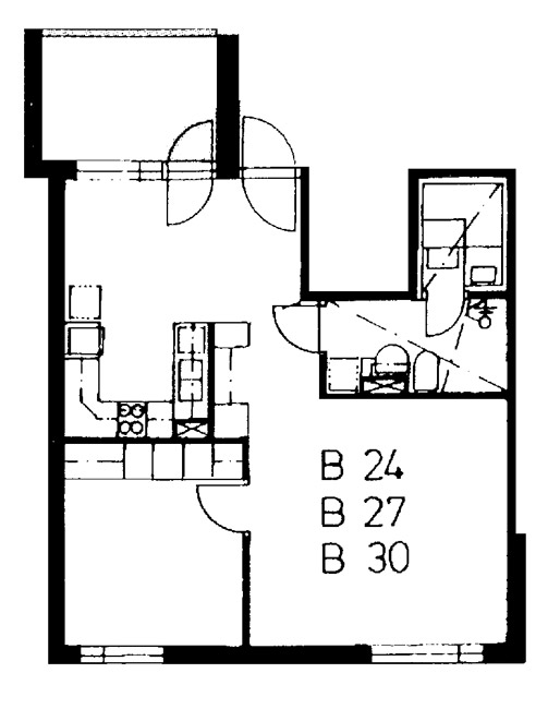
Pohjavedenkuja 3 B 24
2h+k+s
, Kerrostalo
55 m2
2/6
Pohjavedenkuja 3 B 24
2h+k+s
, Kerrostalo
55 m2
Kerros 2/6
Pohjavedenkuja 3 B 27
2h+k+s
, Kerrostalo
55 m2
3/6
Pohjavedenkuja 3 B 27
2h+k+s
, Kerrostalo
55 m2
Kerros 3/6
Pohjavedenkuja 3 B 30
2h+k+s
, Kerrostalo
55 m2
4/6
Pohjavedenkuja 3 B 30
2h+k+s
, Kerrostalo
55 m2
Kerros 4/6
Pohjavedenkuja 3 B 33
2h+k+s
, Kerrostalo
55 m2
5/6
Pohjavedenkuja 3 B 33
2h+k+s
, Kerrostalo
55 m2
Kerros 5/6
Pohjavedenkuja 3 C 34
2h+kk+s
, Kerrostalo
41 m2
Kerros 1/6
Pohjavedenkuja 3 A 2
2h+kk+s
, Kerrostalo
41 m2
1/6
Pohjavedenkuja 3 A 2
2h+kk+s
, Kerrostalo
41 m2
Kerros 1/6
Pohjavedenkuja 3 A 3
2h+kk+s
, Kerrostalo
44 m2
1/6
Pohjavedenkuja 3 A 3
2h+kk+s
, Kerrostalo
44 m2
Kerros 1/6
Pohjavedenkuja 3 C 35
2h+kk+s
, Kerrostalo
44 m2
1/6
Pohjavedenkuja 3 C 35
2h+kk+s
, Kerrostalo
44 m2
Kerros 1/6
Pohjavedenkuja 3 C 50
2h+kk+s
, Kerrostalo
44.5 m2
5/6
Pohjavedenkuja 3 C 50
2h+kk+s
, Kerrostalo
44.5 m2
Kerros 5/6
Pohjavedenkuja 3 A 14
2h+kk+s
, Kerrostalo
44.5 m2
4/6
Pohjavedenkuja 3 A 14
2h+kk+s
, Kerrostalo
44.5 m2
Kerros 4/6
Pohjavedenkuja 3 C 46
2h+kk+s
, Kerrostalo
44.5 m2
4/6
Pohjavedenkuja 3 C 46
2h+kk+s
, Kerrostalo
44.5 m2
Kerros 4/6
Pohjavedenkuja 3 A 18
2h+kk+s
, Kerrostalo
44.5 m2
5/6
Pohjavedenkuja 3 A 18
2h+kk+s
, Kerrostalo
44.5 m2
Kerros 5/6
Pohjavedenkuja 3 C 38
2h+kk+s
, Kerrostalo
44.5 m2
2/6
Pohjavedenkuja 3 C 38
2h+kk+s
, Kerrostalo
44.5 m2
Kerros 2/6
Pohjavedenkuja 3 C 42
2h+kk+s
, Kerrostalo
44.5 m2
3/6
Pohjavedenkuja 3 C 42
2h+kk+s
, Kerrostalo
44.5 m2
Kerros 3/6
Pohjavedenkuja 3 A 10
2h+kk+s
, Kerrostalo
44.5 m2
3/6
Pohjavedenkuja 3 A 10
2h+kk+s
, Kerrostalo
44.5 m2
Kerros 3/6
Pohjavedenkuja 3 A 6
2h+kk+s
, Kerrostalo
44.5 m2
2/6
Pohjavedenkuja 3 A 6
2h+kk+s
, Kerrostalo
44.5 m2
Kerros 2/6
Pohjavedenkuja 3 C 36
2h+kk+s
, Kerrostalo
49 m2
1/6
Pohjavedenkuja 3 C 36
2h+kk+s
, Kerrostalo
49 m2
Kerros 1/6
Pohjavedenkuja 3 C 41
2h+kk+s
, Kerrostalo
50 m2
3/6
Pohjavedenkuja 3 C 41
2h+kk+s
, Kerrostalo
50 m2
Kerros 3/6
Pohjavedenkuja 3 C 37
2h+kk+s
, Kerrostalo
50 m2
2/6
Pohjavedenkuja 3 C 37
2h+kk+s
, Kerrostalo
50 m2
Kerros 2/6
Pohjavedenkuja 3 C 49
2h+kk+s
, Kerrostalo
50 m2
5/6
Pohjavedenkuja 3 C 49
2h+kk+s
, Kerrostalo
50 m2
Kerros 5/6
Pohjavedenkuja 3 C 45
2h+kk+s
, Kerrostalo
50 m2
4/6
Pohjavedenkuja 3 C 45
2h+kk+s
, Kerrostalo
50 m2
Kerros 4/6
Pohjavedenkuja 3 B 29
2h+kk+s
, Kerrostalo
50.5 m2
4/6
Pohjavedenkuja 3 B 29
2h+kk+s
, Kerrostalo
50.5 m2
Kerros 4/6
Pohjavedenkuja 3 B 26
2h+kk+s
, Kerrostalo
50.5 m2
3/6
Pohjavedenkuja 3 B 26
2h+kk+s
, Kerrostalo
50.5 m2
Kerros 3/6
Pohjavedenkuja 3 B 23
2h+kk+s
, Kerrostalo
50.5 m2
2/6
Pohjavedenkuja 3 B 23
2h+kk+s
, Kerrostalo
50.5 m2
Kerros 2/6
Pohjavedenkuja 3 C 48
3h+k+s
, Kerrostalo
71.5 m2
4/6
Pohjavedenkuja 3 C 48
3h+k+s
, Kerrostalo
71.5 m2
Kerros 4/6
Pohjavedenkuja 3 C 40
3h+k+s
, Kerrostalo
71.5 m2
2/6
Pohjavedenkuja 3 C 40
3h+k+s
, Kerrostalo
71.5 m2
Kerros 2/6
Pohjavedenkuja 3 C 44
3h+k+s
, Kerrostalo
71.5 m2
Kerros 3/6
Pohjavedenkuja 3 C 52
3h+k+s
, Kerrostalo
71.5 m2
5/6
Pohjavedenkuja 3 C 52
3h+k+s
, Kerrostalo
71.5 m2
Kerros 5/6
Pohjavedenkuja 3 A 17
3h+k+s
, Kerrostalo
73 m2
5/6
Pohjavedenkuja 3 A 17
3h+k+s
, Kerrostalo
73 m2
Kerros 5/6
Pohjavedenkuja 3 A 13
3h+k+s
, Kerrostalo
73 m2
4/6
Pohjavedenkuja 3 A 13
3h+k+s
, Kerrostalo
73 m2
Kerros 4/6
Pohjavedenkuja 3 A 5
3h+k+s
, Kerrostalo
73 m2
2/6
Pohjavedenkuja 3 A 5
3h+k+s
, Kerrostalo
73 m2
Kerros 2/6
Pohjavedenkuja 3 A 9
3h+k+s
, Kerrostalo
73 m2
3/6
Pohjavedenkuja 3 A 9
3h+k+s
, Kerrostalo
73 m2
Kerros 3/6
Pohjavedenkuja 3 A 1
3h+k+s
, Kerrostalo
77.5 m2
1/6
Pohjavedenkuja 3 A 1
3h+k+s
, Kerrostalo
77.5 m2
Kerros 1/6
Pohjavedenkuja 3 B 32
3h+k+s
, Kerrostalo
80.5 m2
5-6/6
Pohjavedenkuja 3 B 32
3h+k+s
, Kerrostalo
80.5 m2
Kerros 5-6/6
Pohjavedenkuja 3 A 19
3h+kk+s
, Kerrostalo
56 m2
5/6
Pohjavedenkuja 3 A 19
3h+kk+s
, Kerrostalo
56 m2
Kerros 5/6
Pohjavedenkuja 3 C 47
3h+kk+s
, Kerrostalo
56 m2
4/6
Pohjavedenkuja 3 C 47
3h+kk+s
, Kerrostalo
56 m2
Kerros 4/6
Pohjavedenkuja 3 A 15
3h+kk+s
, Kerrostalo
56 m2
4/6
Pohjavedenkuja 3 A 15
3h+kk+s
, Kerrostalo
56 m2
Kerros 4/6
Pohjavedenkuja 3 C 39
3h+kk+s
, Kerrostalo
56 m2
2/6
Pohjavedenkuja 3 C 39
3h+kk+s
, Kerrostalo
56 m2
Kerros 2/6
Pohjavedenkuja 3 C 51
3h+kk+s
, Kerrostalo
56 m2
5/6
Pohjavedenkuja 3 C 51
3h+kk+s
, Kerrostalo
56 m2
Kerros 5/6
Pohjavedenkuja 3 A 7
3h+kk+s
, Kerrostalo
56 m2
2/6
Pohjavedenkuja 3 A 7
3h+kk+s
, Kerrostalo
56 m2
Kerros 2/6
Pohjavedenkuja 3 C 43
3h+kk+s
, Kerrostalo
56 m2
3/6
Pohjavedenkuja 3 C 43
3h+kk+s
, Kerrostalo
56 m2
Kerros 3/6
Pohjavedenkuja 3 A 11
3h+kk+s
, Kerrostalo
56 m2
3/6
Pohjavedenkuja 3 A 11
3h+kk+s
, Kerrostalo
56 m2
Kerros 3/6
Pohjavedenkuja 3 A 4
3h+kk+s
, Kerrostalo
67.5 m2
1/6
Pohjavedenkuja 3 A 4
3h+kk+s
, Kerrostalo
67.5 m2
Kerros 1/6
Pohjavedenkuja 3 A 12
4h+k+s
, Kerrostalo
87.5 m2
Kerros 3/6
Pohjavedenkuja 3 A 20
4h+k+s
, Kerrostalo
87.5 m2
5/6
Pohjavedenkuja 3 A 20
4h+k+s
, Kerrostalo
87.5 m2
Kerros 5/6
Pohjavedenkuja 3 A 8
4h+k+s
, Kerrostalo
87.5 m2
2/6
Pohjavedenkuja 3 A 8
4h+k+s
, Kerrostalo
87.5 m2
Kerros 2/6
Pohjavedenkuja 3 A 16
4h+k+s
, Kerrostalo
87.5 m2
4/6
Pohjavedenkuja 3 A 16
4h+k+s
, Kerrostalo
87.5 m2
Kerros 4/6
Pohjavedenkuja 3 B 22
4h+k+s
, Kerrostalo
88.5 m2
2/6
Pohjavedenkuja 3 B 22
4h+k+s
, Kerrostalo
88.5 m2
Kerros 2/6
Pohjavedenkuja 3 B 28
4h+k+s
, Kerrostalo
88.5 m2
4/6
Pohjavedenkuja 3 B 28
4h+k+s
, Kerrostalo
88.5 m2
Kerros 4/6
Pohjavedenkuja 3 B 31
4h+k+s
, Kerrostalo
88.5 m2
5/6
Pohjavedenkuja 3 B 31
4h+k+s
, Kerrostalo
88.5 m2
Kerros 5/6
Pohjavedenkuja 3 B 25
4h+k+s
, Kerrostalo
88.5 m2
3/6
Pohjavedenkuja 3 B 25
4h+k+s
, Kerrostalo
88.5 m2
Kerros 3/6
Pohjavedenkuja 3 B 21
4h+k+s
, Kerrostalo
89 m2
1/6
Pohjavedenkuja 3 B 21
4h+k+s
, Kerrostalo
89 m2
Kerros 1/6


