Kohteen esittely
Hissitalo Hyvinkään Kirjavatolpalla. Kaikissa asunnoissa on oma sauna. Osassa asuntoja on parveke, osassa pieni piha.
Lähellä päiväkoti, useampi ruokakauppa, ruotsinkielinen koulu, puistoja ja Suomen rautatiemuseo puutarhoineen ja kesäkahviloineen. Myös keskustan palvelut lähietäisyydellä.
Miksi Asuntosäätiö?
Me uskomme, että onnellinen koti ja laadukas asuminen kuuluvat kaikille. Emme tavoittele voittoa, vaan käytämme kaikki vastikkeista ja vuokrista saadut tulot toimintamme kehittämiseen. Jo yli 33 000 suomalaista on valinnut Asuntosäätiön tarjoaman kodin. Tiesithän, että myös lemmikit ovat tervetulleita kaikkiin koteihimme!
Rakennuksen tiedot
- Asumismuoto Asokoti
- Keskimääräinen asumisoikeusmaksu / jm² 299,81€
- Hissit 1
- Talosauna Ei
- Asuntoja 13
- Asuinrakennuksia 1
- Käyttövastike / kk / jm² 17,73€
- Valmistumisvuosi 1997
- Peruskorjattu 2025
- Porrashuoneet 1
- Energialuokka E
- Lämmitysmuoto Kauko
- Autopaikat 14
- Askarteluhuone 1
- Laajakaista Elisa
- Antennijärjestelmä Kaapeli
- KaapeliTV Elisa
- Kattomateriaali Huopa
- Runkomateriaali Betoni
- Lemmikit Sallittu
Huoneistot ja pohjakuvat: Muottikatu 20, Piharakennus, Kerrostalo
Lisää hakemukselle kaikki haluamasi asuntotyypit. Mahdollisuutesi asunnon saamiseksi paranevat, kun voimme tarjota sinulle kaikkia valitsemasi asuntotyypin asuntoja, jotka mahdollisesti vapautuvat myöhemmin tästä kohteesta. Olet automaattisesti näiden asuntotyyppien hakuprosessissa.
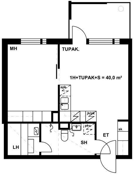
Muottikatu 20 A 9
1h+tk+s
, Kerrostalo
40 m2
3/3
Muottikatu 20 A 9
1h+tk+s
, Kerrostalo
40 m2
Kerros 3/3
Muottikatu 20 A 4
1h+tk+s
, Kerrostalo
40 m2
2/3
Muottikatu 20 A 4
1h+tk+s
, Kerrostalo
40 m2
Kerros 2/3
Muottikatu 20 A 7
2h+k+s
, Kerrostalo
59.5 m2
2/3
Muottikatu 20 A 7
2h+k+s
, Kerrostalo
59.5 m2
Kerros 2/3
Muottikatu 20 A 12
2h+k+s
, Kerrostalo
59.5 m2
Kerros 3/3
Muottikatu 20 A 3
2h+k+s
, Kerrostalo
59.5 m2
1/3
Muottikatu 20 A 3
2h+k+s
, Kerrostalo
59.5 m2
Kerros 1/3
Muottikatu 20 A 2
3h+k+s
, Kerrostalo
78 m2
1/3
Muottikatu 20 A 2
3h+k+s
, Kerrostalo
78 m2
Kerros 1/3
Muottikatu 20 A 6
3h+k+s
, Kerrostalo
78 m2
2/3
Muottikatu 20 A 6
3h+k+s
, Kerrostalo
78 m2
Kerros 2/3
Muottikatu 20 A 11
3h+k+s
, Kerrostalo
78 m2
3/3
Muottikatu 20 A 11
3h+k+s
, Kerrostalo
78 m2
Kerros 3/3
Muottikatu 20 A 13
3h+k+s
, Kerrostalo
81.5 m2
3/3
Muottikatu 20 A 13
3h+k+s
, Kerrostalo
81.5 m2
Kerros 3/3
Muottikatu 20 A 8
3h+k+s
, Kerrostalo
81.5 m2
2/3
Muottikatu 20 A 8
3h+k+s
, Kerrostalo
81.5 m2
Kerros 2/3
Muottikatu 20 A 5
5h+k+s
, Kerrostalo
102.5 m2
2/3
Muottikatu 20 A 5
5h+k+s
, Kerrostalo
102.5 m2
Kerros 2/3
Muottikatu 20 A 1
5h+k+s
, Kerrostalo
102.5 m2
1/3
Muottikatu 20 A 1
5h+k+s
, Kerrostalo
102.5 m2
Kerros 1/3
Muottikatu 20 A 10
5h+k+s
, Kerrostalo
102.5 m2
3/3
Muottikatu 20 A 10
5h+k+s
, Kerrostalo
102.5 m2
Kerros 3/3