Kohteen esittely
Keskustan tuntumassa, rauhallisella sijainnilla kadun päässä rivitalokohde, jossa asuntoja 1-2 tasossa.
Lähellä joenrantaa ja Imatrankoskea sekä Imatran valtionhotellin viereen jäävää upeaa puistoaluetta. Kävelymatka eri kauppoihin, myös kaikkiin keskustan palveluihin ja kesällä kesäteatteriin!
Miksi Asuntosäätiö?
Me uskomme, että onnellinen koti ja laadukas asuminen kuuluvat kaikille. Emme tavoittele voittoa, vaan käytämme kaikki vastikkeista ja vuokrista saadut tulot toimintamme kehittämiseen. Jo yli 33 000 suomalaista on valinnut Asuntosäätiön tarjoaman kodin. Tiesithän, että myös lemmikit ovat tervetulleita kaikkiin koteihimme!
Rakennuksen tiedot
- Asumismuoto Asokoti
- Keskimääräinen asumisoikeusmaksu / jm² 317,94€
- Hissit Ei
- Talosauna Ei
- Asuntoja 24
- Asuinrakennuksia 5
- Käyttövastike / kk / jm² 10,94€
- Valmistumisvuosi 1998
- Energialuokka D
- Lämmitysmuoto Kauko
- Autopaikat 24
- Laajakaista Elisa
- Antennijärjestelmä Kaapeli
- KaapeliTV Elisa
- Kattomateriaali Pelti
- Runkomateriaali Betoni
- Lemmikit Sallittu
Huoneistot ja pohjakuvat: Esterinkatu 41, Rivitalo, Piharakennus
Lisää hakemukselle kaikki haluamasi asuntotyypit. Mahdollisuutesi asunnon saamiseksi paranevat, kun voimme tarjota sinulle kaikkia valitsemasi asuntotyypin asuntoja, jotka mahdollisesti vapautuvat myöhemmin tästä kohteesta. Olet automaattisesti näiden asuntotyyppien hakuprosessissa.
Esterinkatu 41 A 4
1h+tk+s
, Rivitalo
44 m2
1/1
Esterinkatu 41 A 4
1h+tk+s
, Rivitalo
44 m2
Kerros 1/1
Esterinkatu 41 A 1
1h+tk+s
, Rivitalo
44 m2
1/1
Esterinkatu 41 A 1
1h+tk+s
, Rivitalo
44 m2
Kerros 1/1
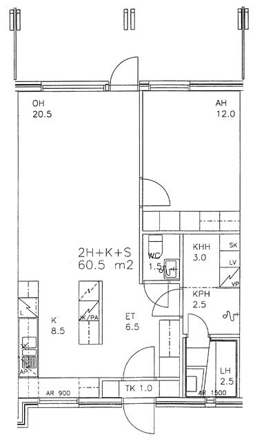
Esterinkatu 41 E 22
2h+k+s
, Rivitalo
60.5 m2
1/1
Esterinkatu 41 E 22
2h+k+s
, Rivitalo
60.5 m2
Kerros 1/1
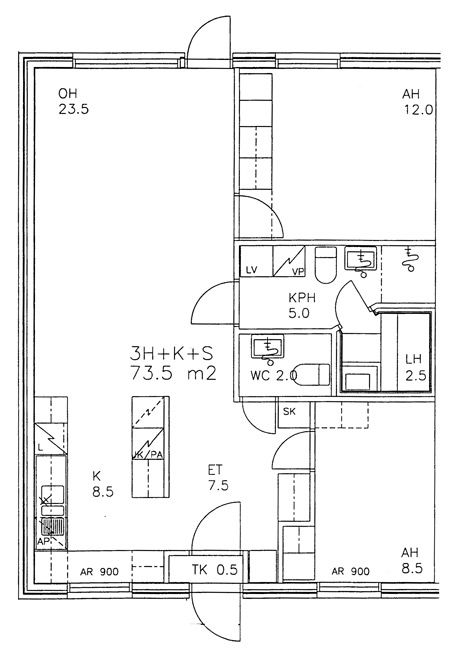
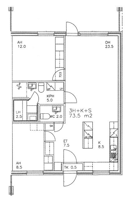
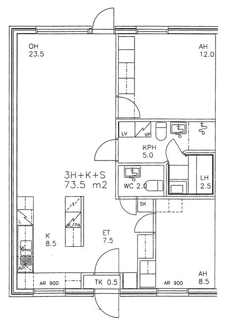
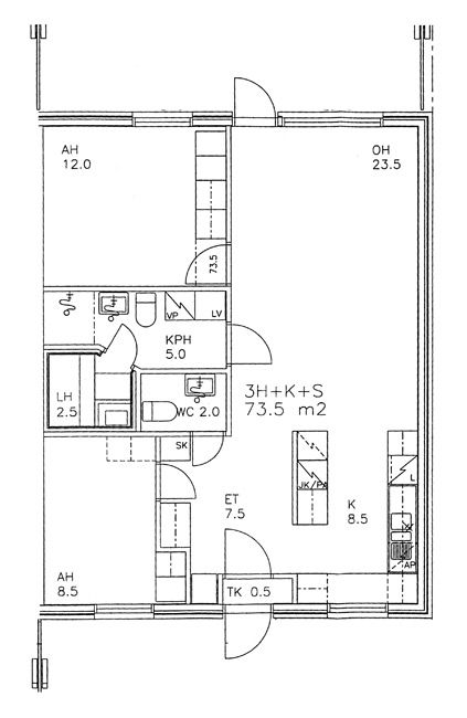
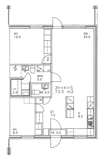
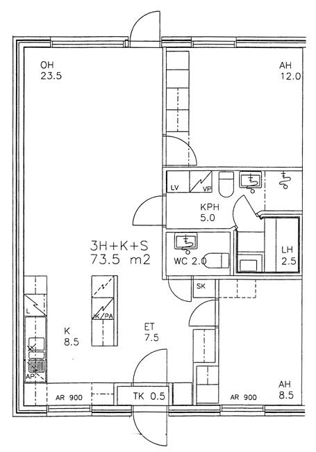
Esterinkatu 41 B 6
3h+k+s
, Rivitalo
73.5 m2
1/1
Esterinkatu 41 B 6
3h+k+s
, Rivitalo
73.5 m2
Kerros 1/1
Esterinkatu 41 B 7
3h+k+s
, Rivitalo
73.5 m2
1/1
Esterinkatu 41 B 7
3h+k+s
, Rivitalo
73.5 m2
Kerros 1/1
Esterinkatu 41 B 8
3h+k+s
, Rivitalo
73.5 m2
1/1
Esterinkatu 41 B 8
3h+k+s
, Rivitalo
73.5 m2
Kerros 1/1
Esterinkatu 41 B 5
3h+k+s
, Rivitalo
73.5 m2
1/1
Esterinkatu 41 B 5
3h+k+s
, Rivitalo
73.5 m2
Kerros 1/1
Esterinkatu 41 A 2
3h+k+s
, Rivitalo
73.5 m2
1/1
Esterinkatu 41 A 2
3h+k+s
, Rivitalo
73.5 m2
Kerros 1/1
Esterinkatu 41 A 3
3h+k+s
, Rivitalo
73.5 m2
1/1
Esterinkatu 41 A 3
3h+k+s
, Rivitalo
73.5 m2
Kerros 1/1
Esterinkatu 41 E 24
3h+k+s
, Rivitalo
73.5 m2
1/1
Esterinkatu 41 E 24
3h+k+s
, Rivitalo
73.5 m2
Kerros 1/1
Esterinkatu 41 E 20
3h+k+s
, Rivitalo
73.5 m2
1/1
Esterinkatu 41 E 20
3h+k+s
, Rivitalo
73.5 m2
Kerros 1/1
Esterinkatu 41 E 19
3h+k+s
, Rivitalo
73.5 m2
1/1
Esterinkatu 41 E 19
3h+k+s
, Rivitalo
73.5 m2
Kerros 1/1
Esterinkatu 41 E 23
3h+k+s
, Rivitalo
73.5 m2
1/1
Esterinkatu 41 E 23
3h+k+s
, Rivitalo
73.5 m2
Kerros 1/1
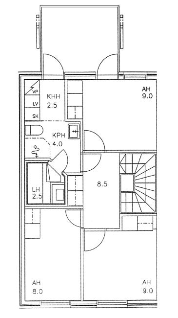
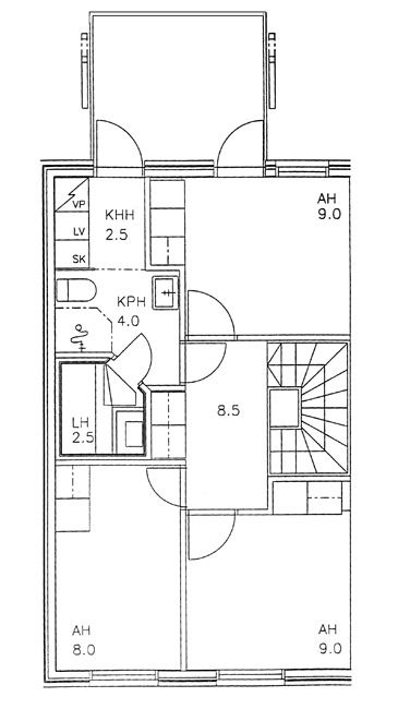
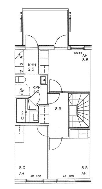
Esterinkatu 41 C 10
4h+k+s
, Rivitalo
88 m2
1/2
Esterinkatu 41 C 10
4h+k+s
, Rivitalo
88 m2
Kerros 1/2
Esterinkatu 41 D 16
4h+k+s
, Rivitalo
88 m2
1/2
Esterinkatu 41 D 16
4h+k+s
, Rivitalo
88 m2
Kerros 1/2
Esterinkatu 41 D 15
4h+k+s
, Rivitalo
88 m2
1/2
Esterinkatu 41 D 15
4h+k+s
, Rivitalo
88 m2
Kerros 1/2
Esterinkatu 41 D 14
4h+k+s
, Rivitalo
88 m2
1/2
Esterinkatu 41 D 14
4h+k+s
, Rivitalo
88 m2
Kerros 1/2
Esterinkatu 41 D 17
4h+k+s
, Rivitalo
88 m2
1/2
Esterinkatu 41 D 17
4h+k+s
, Rivitalo
88 m2
Kerros 1/2
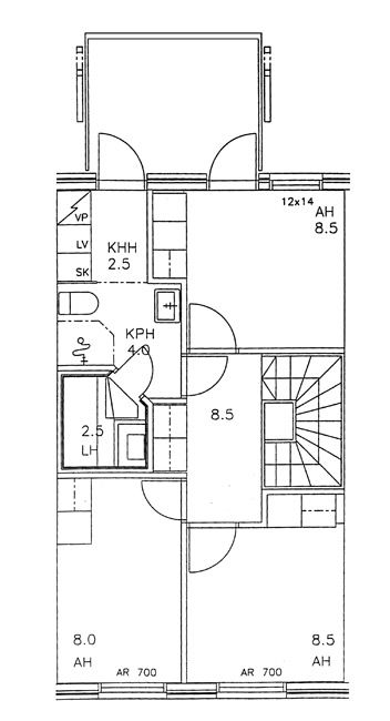
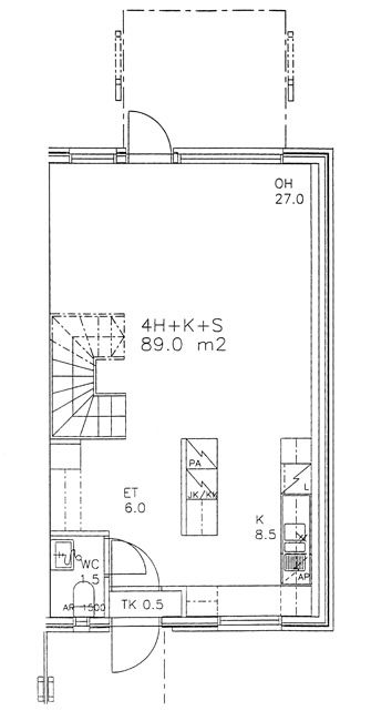
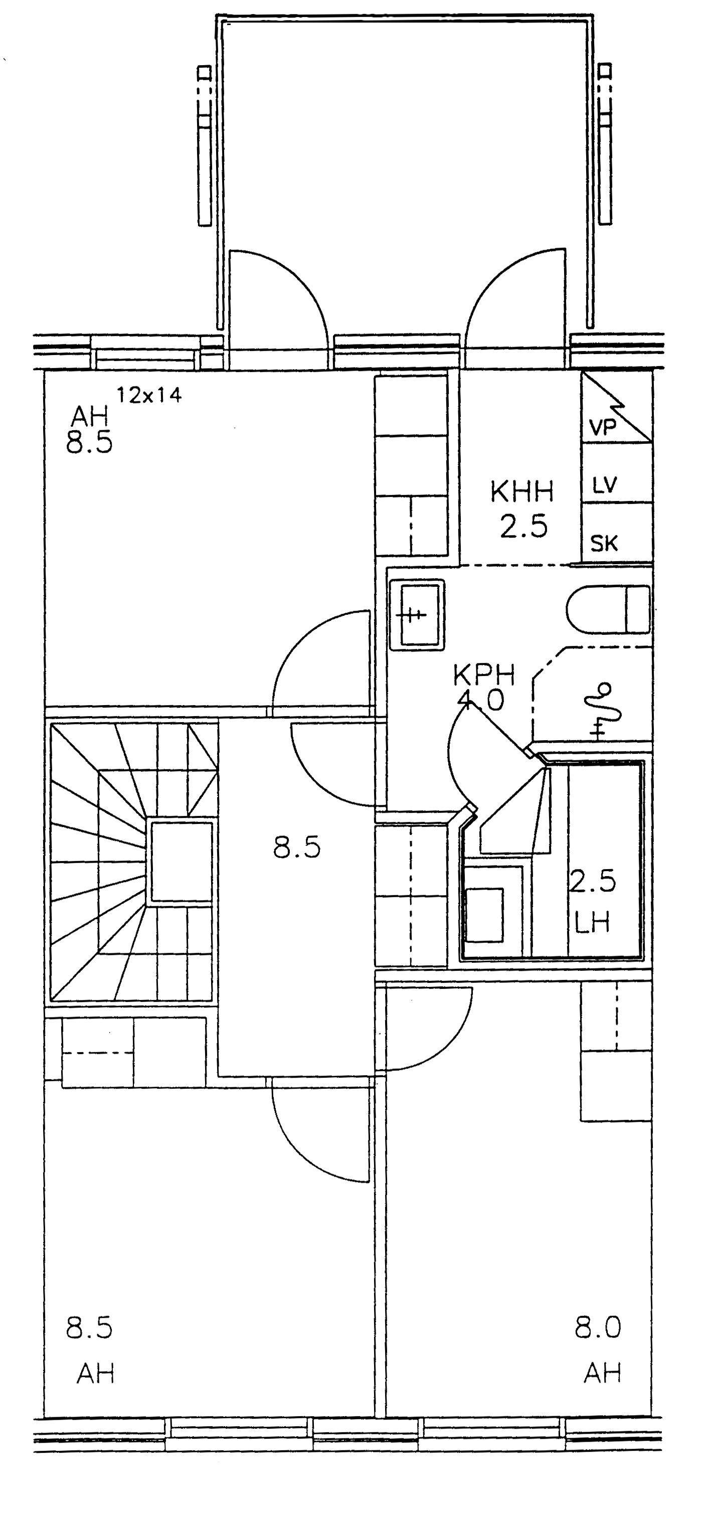
Esterinkatu 41 C 9
4h+k+s
, Rivitalo
89 m2
Kerros 1/2
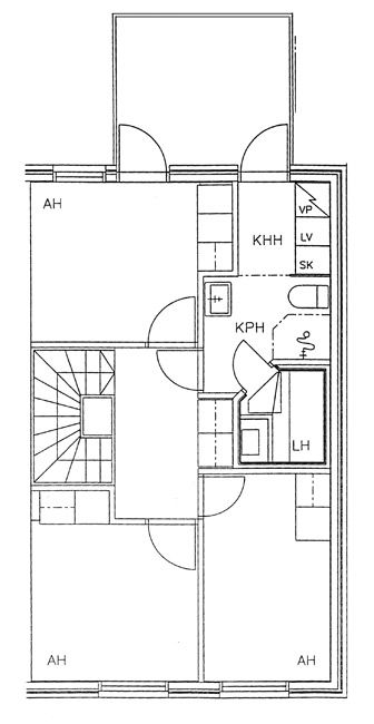
Esterinkatu 41 D 13
4h+k+s
, Rivitalo
89 m2
2/2
Esterinkatu 41 D 13
4h+k+s
, Rivitalo
89 m2
Kerros 2/2


