Kohteen esittely
Mansikkalan palveluiden tuntumassa idyllinen rivitalokohde, jossa kaikki asunnot yhdessä tasossa.
Alueella on kouluja ja hyvät ulkoilumahdollisuudet joen varressa, josta löytyy mm. mahdollisuus kalastaa ja harrastaa kulttuuria. Lähellä kauppoja ruokakaupoista auto- ja kodintarvikeliikkeisiin sekä ravintoloita. Juna-asemalle ja keskustaan kumpaankin noin kilometrin matka. Parin kilometrin päässä myös kaksi kylpylää.
Miksi Asuntosäätiö?
Me uskomme, että onnellinen koti ja laadukas asuminen kuuluvat kaikille. Emme tavoittele voittoa, vaan käytämme kaikki vastikkeista ja vuokrista saadut tulot toimintamme kehittämiseen. Jo yli 33 000 suomalaista on valinnut Asuntosäätiön tarjoaman kodin. Tiesithän, että myös lemmikit ovat tervetulleita kaikkiin koteihimme!
Rakennuksen tiedot
- Asumismuoto Asokoti
- Keskimääräinen asumisoikeusmaksu / jm² 290,14€
- Hissit Ei
- Talosauna Ei
- Asuntoja 19
- Asuinrakennuksia 4
- Käyttövastike / kk / jm² 10,27€
- Valmistumisvuosi 1997
- Energialuokka D
- Lämmitysmuoto Kauko
- Autopaikat 20
- Laajakaista Elisa
- Antennijärjestelmä Kaapeli
- KaapeliTV Elisa
- Kattomateriaali Tiili
- Runkomateriaali Betoni
- Lemmikit Sallittu
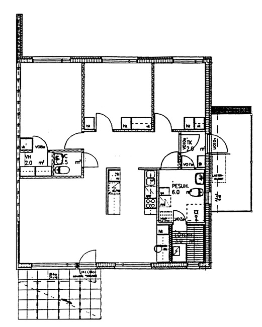
Huoneistot ja pohjakuvat: Myrskykuja 19, Piharakennus, Rivitalo
Lisää hakemukselle kaikki haluamasi asuntotyypit. Mahdollisuutesi asunnon saamiseksi paranevat, kun voimme tarjota sinulle kaikkia valitsemasi asuntotyypin asuntoja, jotka mahdollisesti vapautuvat myöhemmin tästä kohteesta. Olet automaattisesti näiden asuntotyyppien hakuprosessissa.
Myrskykuja 19 C 11
1h+tk+s
, Rivitalo
45 m2
1/1
Myrskykuja 19 C 11
1h+tk+s
, Rivitalo
45 m2
Kerros 1/1
Myrskykuja 19 D 15
2h+k+s
, Rivitalo
59.5 m2
1/1
Myrskykuja 19 D 15
2h+k+s
, Rivitalo
59.5 m2
Kerros 1/1
Myrskykuja 19 D 16
2h+k+s
, Rivitalo
59.5 m2
1/1
Myrskykuja 19 D 16
2h+k+s
, Rivitalo
59.5 m2
Kerros 1/1
Myrskykuja 19 C 10
2h+k+s
, Rivitalo
59.5 m2
1/1
Myrskykuja 19 C 10
2h+k+s
, Rivitalo
59.5 m2
Kerros 1/1
Myrskykuja 19 C 9
2h+k+s
, Rivitalo
59.5 m2
1/1
Myrskykuja 19 C 9
2h+k+s
, Rivitalo
59.5 m2
Kerros 1/1
Myrskykuja 19 D 18
3h+k+s
, Rivitalo
78.5 m2
1/1
Myrskykuja 19 D 18
3h+k+s
, Rivitalo
78.5 m2
Kerros 1/1
Myrskykuja 19 A 2
3h+k+s
, Rivitalo
78.5 m2
1/1
Myrskykuja 19 A 2
3h+k+s
, Rivitalo
78.5 m2
Kerros 1/1
Myrskykuja 19 C 12
3h+k+s
, Rivitalo
78.5 m2
1/1
Myrskykuja 19 C 12
3h+k+s
, Rivitalo
78.5 m2
Kerros 1/1
Myrskykuja 19 B 5
3h+k+s
, Rivitalo
78.5 m2
1/1
Myrskykuja 19 B 5
3h+k+s
, Rivitalo
78.5 m2
Kerros 1/1
Myrskykuja 19 B 6
3h+k+s
, Rivitalo
78.5 m2
1/1
Myrskykuja 19 B 6
3h+k+s
, Rivitalo
78.5 m2
Kerros 1/1
Myrskykuja 19 D 14
4h+k+s
, Rivitalo
89 m2
1/1
Myrskykuja 19 D 14
4h+k+s
, Rivitalo
89 m2
Kerros 1/1
Myrskykuja 19 A 1
4h+k+s
, Rivitalo
89 m2
1/1
Myrskykuja 19 A 1
4h+k+s
, Rivitalo
89 m2
Kerros 1/1
Myrskykuja 19 B 4
4h+k+s
, Rivitalo
89 m2
1/1
Myrskykuja 19 B 4
4h+k+s
, Rivitalo
89 m2
Kerros 1/1
Myrskykuja 19 D 19
5h+k+s
, Rivitalo
100 m2
1/1
Myrskykuja 19 D 19
5h+k+s
, Rivitalo
100 m2
Kerros 1/1
Myrskykuja 19 A 3
5h+k+s
, Rivitalo
100 m2
1/1
Myrskykuja 19 A 3
5h+k+s
, Rivitalo
100 m2
Kerros 1/1
Myrskykuja 19 C 13
5h+k+s
, Rivitalo
100 m2
1/1
Myrskykuja 19 C 13
5h+k+s
, Rivitalo
100 m2
Kerros 1/1
Myrskykuja 19 B 7
5h+k+s
, Rivitalo
100 m2
1/1
Myrskykuja 19 B 7
5h+k+s
, Rivitalo
100 m2
Kerros 1/1