Kohteen esittely
Rivitaloyhtiö Pellonkulman pientaloalueella. Talossa on asuntoja pienistä kaksioista neliöihin, osa asunnoista on luhtitalossa. Yhtiössä on tehty keittiöiden ja kylpyhuoneiden perusparannuksia 2018- 2019. Asukkaiden käytössä on mm. pesutupa.
Lähikauppa aivan vieressä. Haarajoen juna-asemalle alle kilometrin matka.
Miksi Asuntosäätiö?
Me uskomme, että onnellinen koti ja laadukas asuminen kuuluvat kaikille. Emme tavoittele voittoa, vaan käytämme kaikki vastikkeista ja vuokrista saadut tulot toimintamme kehittämiseen. Jo yli 33 000 suomalaista on valinnut Asuntosäätiön tarjoaman kodin. Tiesithän, että myös lemmikit ovat tervetulleita kaikkiin koteihimme!
Rakennuksen tiedot
- Asumismuoto Asokoti
- Keskimääräinen asumisoikeusmaksu / jm² 196,2€
- Hissit Ei
- Talosauna Ei
- Pyykkitupa Kyllä
- Kuivaushuone Kyllä
- Asuntoja 33
- Asuinrakennuksia 5
- Käyttövastike / kk / jm² 13,03€
- Valmistumisvuosi 1993
- Energialuokka D
- Lämmitysmuoto Kauko
- Autopaikat 33
- Kerhohuone 1
- Laajakaista Elisa
- Antennijärjestelmä Kaapeli
- KaapeliTV Elisa
- Kattomateriaali Tiili
- Runkomateriaali Betoni
- Lemmikit Sallittu
Huoneistot ja pohjakuvat: Pellonkulmantie 12, Luhtikäytävätalo, Rivitalo, Piharakennus
Lisää hakemukselle kaikki haluamasi asuntotyypit. Mahdollisuutesi asunnon saamiseksi paranevat, kun voimme tarjota sinulle kaikkia valitsemasi asuntotyypin asuntoja, jotka mahdollisesti vapautuvat myöhemmin tästä kohteesta. Olet automaattisesti näiden asuntotyyppien hakuprosessissa.
Pellonkulmantie 12 B 15
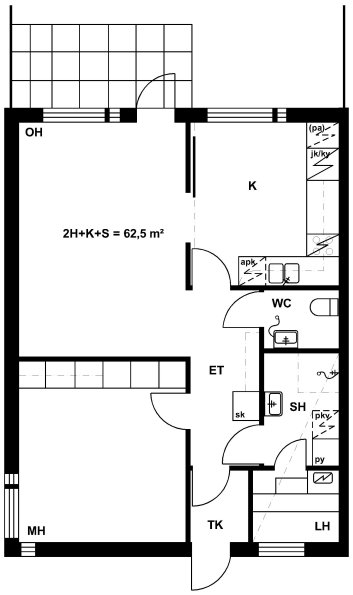
2h+k+s
, Rivitalo
62.5 m2
1/1
Pellonkulmantie 12 B 15
2h+k+s
, Rivitalo
62.5 m2
Kerros 1/1
Pellonkulmantie 12 B 12
2h+k+s
, Rivitalo
62.5 m2
1/1
Pellonkulmantie 12 B 12
2h+k+s
, Rivitalo
62.5 m2
Kerros 1/1
Pellonkulmantie 12 B 13
2h+k+s
, Rivitalo
62.5 m2
1/1
Pellonkulmantie 12 B 13
2h+k+s
, Rivitalo
62.5 m2
Kerros 1/1
Pellonkulmantie 12 B 14
2h+k+s
, Rivitalo
62.5 m2
1/1
Pellonkulmantie 12 B 14
2h+k+s
, Rivitalo
62.5 m2
Kerros 1/1
Pellonkulmantie 12 B 16
2h+k+s
, Rivitalo
62.5 m2
1/1
Pellonkulmantie 12 B 16
2h+k+s
, Rivitalo
62.5 m2
Kerros 1/1
Pellonkulmantie 12 B 11
2h+k+s
, Rivitalo
62.5 m2
1/1
Pellonkulmantie 12 B 11
2h+k+s
, Rivitalo
62.5 m2
Kerros 1/1
Pellonkulmantie 12 C 20
2h+k+s
, Rivitalo
62.5 m2
1/2
Pellonkulmantie 12 C 20
2h+k+s
, Rivitalo
62.5 m2
Kerros 1/2
Pellonkulmantie 12 C 17
2h+k+s
, Rivitalo
62.5 m2
1/2
Pellonkulmantie 12 C 17
2h+k+s
, Rivitalo
62.5 m2
Kerros 1/2
Pellonkulmantie 12 C 19
2h+k+s
, Rivitalo
62.5 m2
1/2
Pellonkulmantie 12 C 19
2h+k+s
, Rivitalo
62.5 m2
Kerros 1/2
Pellonkulmantie 12 C 18
2h+k+s
, Rivitalo
62.5 m2
1/2
Pellonkulmantie 12 C 18
2h+k+s
, Rivitalo
62.5 m2
Kerros 1/2
Pellonkulmantie 12 D 25
2h+k+s
, Luhtikäytävätalo
62.5 m2
1/2
Pellonkulmantie 12 D 25
2h+k+s
, Luhtikäytävätalo
62.5 m2
Kerros 1/2
Pellonkulmantie 12 D 28
2h+k+s
, Luhtikäytävätalo
62.5 m2
2/2
Pellonkulmantie 12 D 28
2h+k+s
, Luhtikäytävätalo
62.5 m2
Kerros 2/2
Pellonkulmantie 12 D 27
2h+k+s
, Luhtikäytävätalo
62.5 m2
2/2
Pellonkulmantie 12 D 27
2h+k+s
, Luhtikäytävätalo
62.5 m2
Kerros 2/2
Pellonkulmantie 12 D 26
2h+k+s
, Luhtikäytävätalo
62.5 m2
1/2
Pellonkulmantie 12 D 26
2h+k+s
, Luhtikäytävätalo
62.5 m2
Kerros 1/2
Pellonkulmantie 12 A 9
2h+kk+s
, Luhtikäytävätalo
47 m2
2/2
Pellonkulmantie 12 A 9
2h+kk+s
, Luhtikäytävätalo
47 m2
Kerros 2/2
Pellonkulmantie 12 A 1
2h+kk+s
, Luhtikäytävätalo
47 m2
1/2
Pellonkulmantie 12 A 1
2h+kk+s
, Luhtikäytävätalo
47 m2
Kerros 1/2
Pellonkulmantie 12 A 5
2h+kk+s
, Luhtikäytävätalo
47 m2
1/2
Pellonkulmantie 12 A 5
2h+kk+s
, Luhtikäytävätalo
47 m2
Kerros 1/2
Pellonkulmantie 12 A 4
2h+kk+s
, Luhtikäytävätalo
47 m2
1/2
Pellonkulmantie 12 A 4
2h+kk+s
, Luhtikäytävätalo
47 m2
Kerros 1/2
Pellonkulmantie 12 A 3
2h+kk+s
, Luhtikäytävätalo
47 m2
1/2
Pellonkulmantie 12 A 3
2h+kk+s
, Luhtikäytävätalo
47 m2
Kerros 1/2
Pellonkulmantie 12 A 10
2h+kk+s
, Luhtikäytävätalo
47 m2
2/2
Pellonkulmantie 12 A 10
2h+kk+s
, Luhtikäytävätalo
47 m2
Kerros 2/2
Pellonkulmantie 12 A 6
2h+kk+s
, Luhtikäytävätalo
47 m2
2/2
Pellonkulmantie 12 A 6
2h+kk+s
, Luhtikäytävätalo
47 m2
Kerros 2/2
Pellonkulmantie 12 A 2
2h+kk+s
, Luhtikäytävätalo
47 m2
1/2
Pellonkulmantie 12 A 2
2h+kk+s
, Luhtikäytävätalo
47 m2
Kerros 1/2
Pellonkulmantie 12 A 7
2h+kk+s
, Luhtikäytävätalo
47 m2
2/2
Pellonkulmantie 12 A 7
2h+kk+s
, Luhtikäytävätalo
47 m2
Kerros 2/2
Pellonkulmantie 12 A 8
2h+kk+s
, Luhtikäytävätalo
47 m2
2/2
Pellonkulmantie 12 A 8
2h+kk+s
, Luhtikäytävätalo
47 m2
Kerros 2/2
Pellonkulmantie 12 C 24
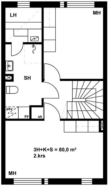
3h+k+s
, Rivitalo
80 m2
Kerros 1-2/2
Pellonkulmantie 12 C 22
3h+k+s
, Rivitalo
80 m2
1-2/2
Pellonkulmantie 12 C 22
3h+k+s
, Rivitalo
80 m2
Kerros 1-2/2
Pellonkulmantie 12 C 21
3h+k+s
, Rivitalo
80 m2
1-2/2
Pellonkulmantie 12 C 21
3h+k+s
, Rivitalo
80 m2
Kerros 1-2/2
Pellonkulmantie 12 C 23
3h+k+s
, Rivitalo
80 m2
1-2/2
Pellonkulmantie 12 C 23
3h+k+s
, Rivitalo
80 m2
Kerros 1-2/2
Pellonkulmantie 12 E 30
3h+k+s
, Rivitalo
80 m2
1-2/2
Pellonkulmantie 12 E 30
3h+k+s
, Rivitalo
80 m2
Kerros 1-2/2
Pellonkulmantie 12 E 32
3h+k+s
, Rivitalo
80 m2
1-2/2
Pellonkulmantie 12 E 32
3h+k+s
, Rivitalo
80 m2
Kerros 1-2/2
Pellonkulmantie 12 E 31
3h+k+s
, Rivitalo
80 m2
1-2/2
Pellonkulmantie 12 E 31
3h+k+s
, Rivitalo
80 m2
Kerros 1-2/2
Pellonkulmantie 12 E 33
4h+k+s
, Rivitalo
95 m2
1-2/2
Pellonkulmantie 12 E 33
4h+k+s
, Rivitalo
95 m2
Kerros 1-2/2
Pellonkulmantie 12 E 29
4h+k+s
, Rivitalo
95 m2
1-2/2
Pellonkulmantie 12 E 29
4h+k+s
, Rivitalo
95 m2
Kerros 1-2/2
